NV2021011| MẪU NHÀ VƯỜN ĐẸP TINH TẾ TẠI SÔNG LÔ - VĨNH PHÚC
Căn nhà 1 tầng mái Nhật thuộc sở hữu của gia đình anh Kim Anh tại Sông Lô - Vĩnh Phúc. Sau khi trao đổi với đội ngũ kiến trúc sư NHÀ ĐẸP 4.0, anh Anh từ lâu đã có ấp ủ mong muốn được xây dựng một căn nhà nhà vườn cấp 4 hiện đại với đầy đủ tiện nghi, lịch sự nhưng bên cạnh đó cũng giữ được những nét đặc trưng của phong cách hiện đại . Chính vì vậy, mẫu nhà 1 tầng mái Nật chính là sự lựa chọn hàng đầu của Nhà Đẹp 4.0 trong thiết kế ngôi nhà dành cho a Anh theo như mong đợi.
Ngôi nhà 1 tầng mái Nhật của gia đình được xây dựng trên diện tích mặt bằng 130m2 với thiết kế 2 mặt tiền. Xung quanh ngôi nhà được bao bởi các khoảng sân rộng tạo cảm giác rộng rãi, thoáng đãng cho toàn bộ không gian căn nhà. Tận dụng địa thế sân trước khá rộng, Nhà Đẹp 4.0 đã thiết kế cho gia chủ một khoảng gara nhà xe chiếm 1 diện tích nhất định tạo nên một không gian khoa học thuận tiện trong sử dụng cũng như đảm bảo an toàn, giữ gìn tài sản là phương tiện đi lại của gia đình.
.jpg)
Phối cảnh 3D cho gia đình A Kim Anh - Sông Lô - Vĩnh Phúc
Bước qua khoảng sân trước, chúng ta cùng đến với sảnh chính của căn nhà. Nhìn tổng hòa, căn nhà được chia ra làm 2 khu vực. Khu vực nhà chính rộng với diện tích lớn nhất của ngôi nhà, bên cạnh là khu vực phòng phụ với thiết kế đua ra ngoài, tạo cảm giác căn nhà của chúng ta thêm rộng rãi hơn. Phía bên phải là khu vực sảnh phụ kết nối giữa nhà chính với bên ngoài. Nếu để ý theo dõi các thiết kế của Nhà Đẹp, chúng ta sẽ luôn thấy lối thiết kế tiện nghi này luôn được đội ngũ kiến trúc sư sử dụng để tận dụng những khoảng không gian thoáng đãng cho căn nhà, đồng thời tạo sự tiện lợi khi di chuyển ra không gian bên ngoài, giúp gia chủ có thể di chuyển ra khu vực ngoài nhanh chóng, thuận tiện thay vì chỉ có 1 lối cửa tại 1 vị trí nhất định.
.jpg)
Phối cảnh 3D cho gia đình A Kim Anh - Sông Lô - Vĩnh Phúc
Đi từ phía ngoài vào chúng ta có thể tiếp cận ngay tới hệ thống bậc thềm, ở đây căn nhà được thiết kế hệ bậc ngũ cấp được lát bằng đá kim sa đen. Với căn nhà có diện tích sử dụng lớn như này, bậc ngũ cấp luôn luôn là một sự lựa chọn tốt khi đưa vào làm thiết kế bậc lên xuống cho ngôi nhà. Không những tạo sự bề thế, vững chắc, cân xứng mà hệ bậc ngũ cấp còn tôn lên nền móng, phân tách rõ rệt giữa khoảng sân và diện tích sử dụng của căn nhà. Xen giữa hai hệ bậc ngũ cấp, kiến trúc sư chúng tôi đã đặt những khoảng không gian nhỏ bao quanh căn nhà để trồng cây cảnh, tạo cảm giác thoải mái, mát mẻ và dễ chịu cho gia chủ khi hòa mình với không gian thiên nhiên trong khu vực mình sinh sống.
.jpg)
Phối cảnh 3D cho gia đình A Kim Anh - Sông Lô - Vĩnh Phúc
Nhìn tổng thể, mẫu nhà của anh Anh được thiết kế khá hài hòa và trang nhã. Với hệ thống mái màu xanh kết hợp với tường nhà được sơn trắng và các khoảng màu nâu sáng tạo nên một căn nhà tưởng như đơn giản nhưng lại đầy tinh tế, sang trọng và lịch lãm. Nhà mái Nhật có công dụng tản nhiệt và chống nóng, có độ dốc vừa phải nên khi thời tiết mưa bão thì nước mưa sẽ thoát tự nhiên chứ không ứ đọng, giúp chống thấm, dột hay ngấm nước. Đây cũng là đặc điểm khác biệt lớn giữa mái Nhật đối với hệ thống mái bằng trong các thiết kế thường được sử dụng.
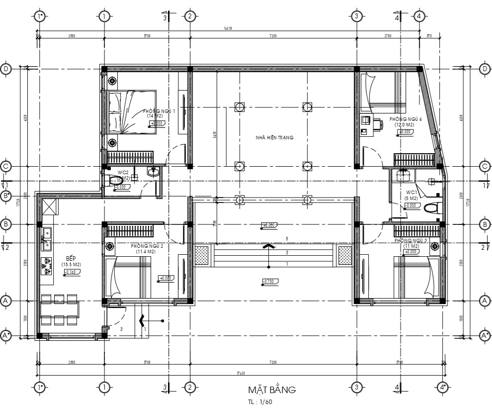
Về mặt bằng công năng, căn nhà có diện tích 130m2 được thiết kế công năng hợp lý. Từ sảnh chính đi vào, chúng ta có thể tiếp cận ngay tới khu vực phòng khách với diện tích khá rộng và một khoảng trống phía trước để di chuyển cũng như tạo khoảng không gian thoáng trước phòng thờ gia tiên. Phòng thờ có diện tích 10m2 hướng ra phía cửa chính hợp với phong thủy và lối thiết kế từ xa xưa của ông cha ta trong việc xây dựng nhà cửa. Không gian thờ phải là khu vực thông thoáng, rộng mở đón ánh sáng, có như vậy mới vượng khí và mang lại tài lộc cho gia chủ. Hai phòng ngủ ở đây được nối liền nhau bởi 1 lối đi. Bên trong mỗi phòng đều có hệ thống cửa ra vào và cửa sổ rộng, tạo sự thông thoáng, thoải mái cho không gian nghỉ ngơi hàng ngày. Với khoảng diện tích rộng như vậy thì gia chủ hoàn toàn có thể sắp đặt, bày trí thêm các vật dụng cũng như đồ nội thất như giường tủ, bàn trang điểm hay ti vi,… tạo thêm tiện ích cho căn phòng mình sử dụng. Phía bên trái phòng thờ cũng là một phòng ngủ lớn với diện tích 15,4m2 với đầy đủ công năng sử dụng như hai phòng ngủ đã kể trên.
.jpg)
Mặt bằng công năng nhà a Kim Anh - Sông Lô - Vĩnh Phúc
Tiếp đến là khu vực không gian bếp với diện tích khá rộng lên tới 18m2. Một cửa ra vào nối thẳng ra khu vực sân trước tạo không gian thoáng đãng, tràn ngập ánh sáng cho không gian căn phòng cùng sự thuận lợi, tiện nghi để di chuyển. Diện tích lớn giúp cho căn bếp có thể thiết kế đầy đủ tiện ích phục vụ nấu nướng cũng như sinh hoạt. Phía sau là khu vực vệ sinh. Với đặc điểm diện tích đất sử dụng khá rộng, Nhà Đẹp 4.0 đã thiết kế một không gian nhà vệ sinh rộng và nhà tách nhau nối liền với khu vực sinh hoạt, vừa tiện nghi lại tạo cảm giác sạch sẽ, vệ sinh trong quá trình sử dụng.
Đó là toàn bộ công trình nhà anh Kim Anh ở Sông Lô, Vĩnh Phúc. Hy vọng sau khi tham khảo ngôi nhà này thì quý vị đã có thêm những ý tưởng thiết kế mới cho riêng mình. Hãy liên hệ ngay với Nhà Đẹp 4.0 qua số Hotline 0974.228.820 để được các chuyên gia tư vấn và báo giá miễn phí nhé!
