NP2022003 - MẪU NHÀ PHỐ ĐÁNG THAM KHẢO NHẤT NĂM NAY
Cuộc sống ngày càng hiện đại kéo theo diện tích đất thổ cư ngày càng bị thu hẹp, với những gia đình có khuôn đất nhỏ thì việc xây dựng nhà cửa lại càng trở nên khó khăn hơn. Tuy nhiên, dựa vào sự tài tình của đội ngũ kiến trúc sư mà mảnh đất 115m2 của gia đình anh Hưng có địa chỉ tại Thanh Hóa đã được NHÀ ĐẸP 4.0 lên phương án thiết kế giải quyết toàn vẹn cả về kiến trúc lẫn công năng sinh hoạt. Để tìm hiểu sâu hơn, mời quý vị và các bạn cùng theo dõi số ngày hôm nay nhé.
.jpg)
Mặt bằng 3D mẫu nhà ống hiện đại mái Thái
Ngôi nhà hiện lên với vẻ đẹp thanh lịch, sang trọng được các Kiến trúc sư thiết kế theo phong cách kiến trúc hiện đại. Công trình được xây dựng với diện tích khổ đất 19,7m x 5,7m. Với diện tích như vậy, KTS đã khéo léo lên ý tưởng thiết kế để căn nhà vừa mang tính thẩm mỹ cao, vừa đáp ứng đầy đủ yêu cầu của gia đình. Tổng thể căn nhà là những gam màu trung tính được kết hợp vô cùng hài hòa, bắt mắt. Tầng một được ốp gạch ô nhỏ tạo sự vững chãi, trẻ trung cùng với đó là các chi tiết ốp gạch thẻ trang trí tại tầng 2 vô cùng hiện đại. Việc ốp gạch giúp dễ dàng vệ sinh, bảo vệ căn nhà trước tác động từ tự nhiên và đặc biệt không lo lắng việc tróc sơn bạc màu. Thiết kết hệ bậc tam cấp được sử dụng rất thuận tiện, tránh tác hại từ môi trường
.jpg)
Mặt bằng 3D mẫu nhà ống hiện đại mái Thái
Khắc phục vấn đề có diện tích nhỏ gây bí bách, KTS thiết kế hệ thống cửa sổ xung quanh nhà, sử dụng chất liệu kính khung nhôm Xingfa cao cấp có tác dụng lưu thông không khí, lấy được ánh sáng tự nhiên giúp cho căn nhà thoáng mát hơn. Tầng 2 và tầng 3 đều đc thiết kế ban công mở rất thông thoáng nhằm đón được nhiều ánh sáng tự nhiên hơn. Phần mái Thái đua ra đến hết phần ban công cũng góp phần làm giảm ảnh hưởng của tự nhiên như mưa, nắng vào trong nhà. Ở ban công chúng tôi sử dụng tấm lan can kính cường lực vừa gia tăng giá trị thẩm mỹ vừa an toàn cho người dùng. Tổng thể công trình với sự kết hợp 3 gam màu trắng, ghi nhấn nhá thêm 1 chút tông màu đỏ gạch rất hài hòa, tinh tế hơn cho căn nhà.
.jpg)
Mặt bằng 3D mẫu nhà ống hiện đại mái Thái
Công trình nhà ống hiện đại 3 tầng được thiết kế với phần mái Thái đang rất được ưa chuộng trong thời gian gần đây. Một công trình hoàn hảo hay không sẽ phụ thuộc rất nhiều vào việc lựa chọn vật liệu sao cho phù hợp và thẩm mỹ. Bởi lẽ đó chúng tôi lựa chọn sử dụng chất liệu ngói không nung cao cấp xếp lớp khiến cho phần mái có thể đảm bảo việc thoát nước tốt, tránh bám bẩn sinh rêu mốc tổn hại đến vẻ đẹp thẩm mỹ của công trình.
Bên cạnh việc mang tới cho gia đình một căn nhà hoàn mỹ, nhiều tiện ích, các KTS của NHÀ ĐẸP 4.0 đã có buổi khảo sát thực tế, nắm bắt thông tin, nhu cầu của khách hàng để thiết kế công năng một cách khoa học nhất. Một bộ hồ sơ hoàn chỉnh khi chúng tôi trao tới tay chủ đầu tư phải đảm bảo đầy đủ tất cả các phần như: bản vẽ 3D ngoại thất, mặt cắt công năng nội thất cơ bản, kỹ thuật điện nước, kỹ thuật kiến trúc và kỹ thuật kết cấu. Chính vì sự tỉ mỉ tâm huyết đó mà khi NHÀ ĐẸP 4.0 gửi mẫu thiết kế phương án bố trí mặt bằng đã nhanh chóng nhận được sự đồng ý từ gia đình anh Hưng. Sau đây là thông tin chi tiết công năng sử dụng của căn nhà mời quý vị tham khảo.
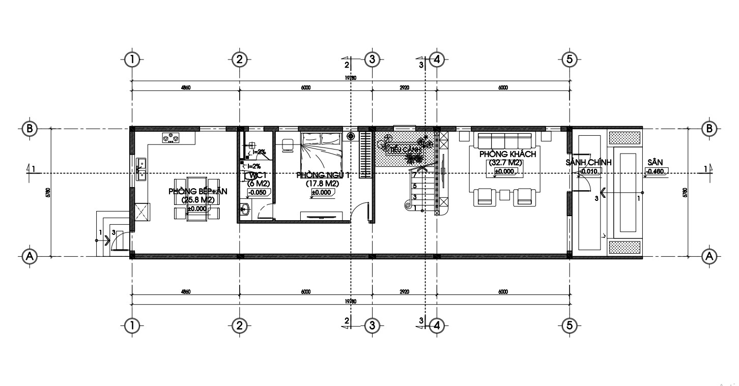
.jpg)
Mặt bằng công năng tầng 1
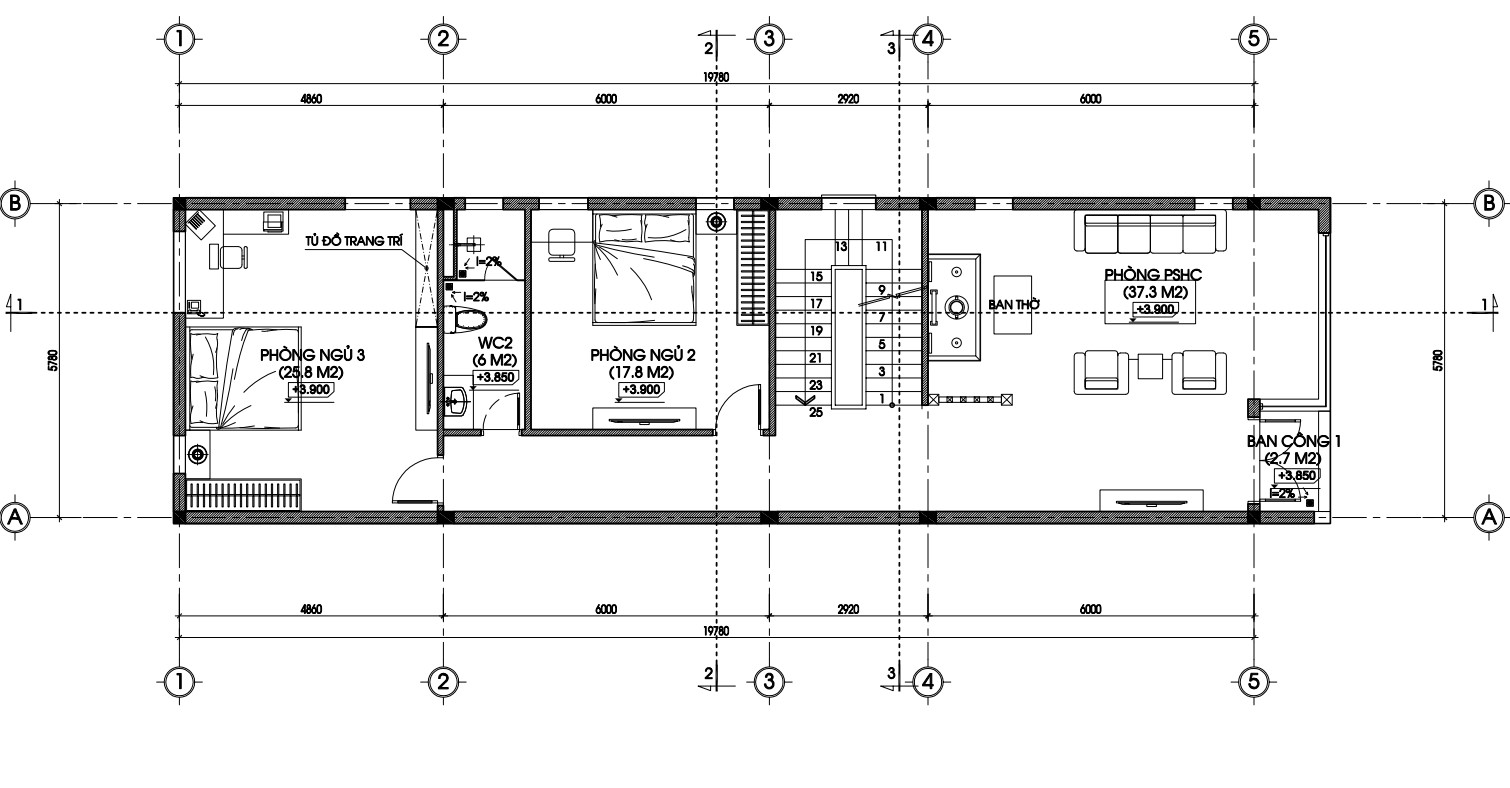
.jpg)
Mặt bằng công năng tầng 2
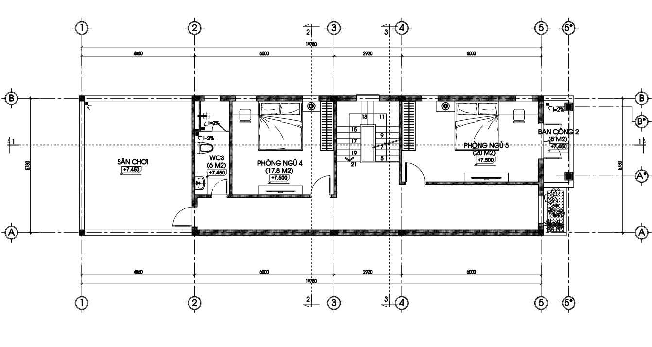
.jpg)
Mặt bằng công năng tầng 3
Thưa quý vị và các bạn, Nhằm đáp ứng tính tiện nghi, không gian thẩm mỹ cho ngôi nhà thì bố trí công năng một cách hợp lý và có khoa học là điều không thể thiếu. Nếu các bạn thấy mẫu thiết kế nhà phố hiện đại mà NHÀ ĐẸP 4.0 vừa đưa ra phù hợp với sở thích của mình, hãy nhấc máy lên và liên hệ ngay với chúng tôi thông qua HOTLINE 0974.228.820 để được hỗ trợ và trải nghiệm những không gian sống thú vị nhất nhé!
Xin cảm ơn đã theo dõi và hẹn gặp lại
