NP2020001| NHÀ PHỐ HIỆN ĐẠI NỔI BẬT TẠI QUẢNG NINH
Đất phố luôn là vấn đề lớn của mỗi chủ đầu tư. Với mong muốn ngôi nhà của mình vừa đáp ứng nhu cầu công năng, vừa đạt được độ thẩm mĩ vì chỉ có duy nhất mặt tiền. Vậy quý bạn đọc đừng bỏ qua bài viết này nhé. Hồ sơ thiết kế đã được chúng tôi bàn giao cho gia đình nhà bác Phùng tại Quảng Ninh – một sản phẩm của Nhà Đẹp 4.0, mời quý bạn đọc cùng tham khảo.
.jpg)
Mẫu nhà phố với mặt tiền 7m
THÔNG TIN CÔNG TRÌNH NHÀ PHỐ DIỆN TÍCH 7M x 11,5M
- Chủ đầu tư: chú Phùng
- Địa điểm: Quảng Ninh
- Năm thiết kế: 2020
- Diện tích thiết kế: 7m x 11,5m
- Công năng: 4 phòng ngủ, 1 phòng thờ, 1 phòng khách, 1 phòng bếp.
- Chi phí hoàn thiện dự kiến: 900 triệu
YÊU CẦU THIẾT KẾ CHO NGÔI NHÀ PHỐ 7X11,5M
Chú Phùng tìm đến công ty chúng tôi với những mong muốn cho ngôi nhà của mình cụ thể như sau:
- Gia đình muốn thi công mẫu nhà phố với diện tích 7m x 11,5m.
- Chính vì là nhà phố duy nhất 1 mặt tiền nên các bác mong muốn ngôi nhà thật sự nổi bật và sang trọng.
- Mang hơi hướng hiện đại, đơn giản nhưng vẫn thu hút, độc đáo.
- Công năng dự kiến thi công là 4 phòng ngủ, 1 phòng thờ, 1 phòng khách, phòng bếp và wc chung.
- Ngoại thất công trình màu trắng chủ đạo, điểm nhấn khỏe khoắn hiện đại, gần gũi với thiên nhiên.
- Chi phí hoàn thiện dự tính không vượt quá 1,2 tỷ.
.jpg)
Phối cảnh 3d mẫu nhà phố hiện đại diện tích 7x11,5m
Ngay sau khi tiếp nhận yêu cầu tư vấn thiết kế của chủ đầu tư, chúng tôi đã đến hiện trạng để khảo sát khu vực thi công công trình, từ đó đưa ra các phương án sơ bộ cho chủ đầu tư lựa chọn.
Sau khi chốt phương án tư vấn, chúng tôi tiến hành họp bàn và chốt phương án 3D chi tiết.
.jpg)
Với thiết kế hệ mái bằng, cùng sảnh chính rộng rãi cho công trình sẽ giúp công trình thông thoáng hơn rất nhiều, thiết kế đơn giản nhưng vẫn có sức hút độc đáo, sang trọng.
Toàn bộ đế công trình được ốp đá không chỉ mang lại tính thẩm mĩ mà còn ngăn thấm nước giảm bớt sự ảnh hưởng cho chất lượng của công trình trong thời gian sử dụng.
Ngoài màu trắng sứ, thân nhà còn được bật lên bởi màu của cửa sổ hệ nhôm xingfa, màu gỗ của cửa chính. Đồng thời trên tầng 2 được bố trí một hệ vách đặc ốp gạch thẻ xám tạo điểm nhấn nổi bật. Việc kết hợp màu sắc này giúp công trình của chúng ta không chỉ mạnh mẽ, bề thế, mà còn rất cuốn hút và nổi bật.
Đáp ứng nhu cầu thông thoáng gần gũi với thiên nhiên, chúng tôi không quên đặt ở phía trước nhà khoảng đất trồng cây giúp không gian sinh hoạt trở nên thoải mái và dễ chịu, chinh phục mọi góc nhìn xung quanh.
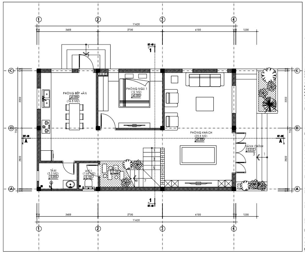
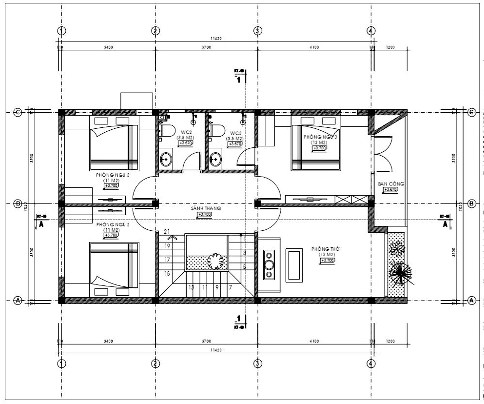
MẶT BẰNG CÔNG NĂNG NHÀ PHỐ DIỆN TÍCH 7M X 11,5M
.jpg)
Mặt bằng tầng 1 nhà phố 7x11,5m
.jpg)
Mặt bằng tầng 2 nhà phố 7x11,5m
Bước từ ngoài vào trong là phòng khách thiết kế rộng rãi với diện tích 25,5m2. Không gian phòng khách được thiết kế tối giản với 2 hệ cửa sổ nhỏ và 1 cửa sổ lớn tạo sự thoải mái và thoáng đãng cho ngôi nhà.
Đi sâu vào bên trong, phía bên phải là 1 phòng ngủ nhỏ 12m2, một phòng bếp 16,5m2. Còn lại, phía bên trái là 1 wc chung và khu vực cầu thang, đồng thời khu vực cầu thang được bố trí 1 tiểu cảnh tạo không gian xanh điểm nhấn cho tầng 1.
Tương tự, lên trên tầng 2 bố trí 2 phòng ngủ nhỏ (11m2), 1 phòng ngủ 13m2 có WC riêng và 1 phòng thờ 13m2. Không gian ngôi nhà trở nên mở hơn khi có 1 ban công trên tầng 2 cùng với khoảng đất nhỏ trồng cây xanh, giúp công trình trở nên hút mắt và độc đáo.
.jpg)
Phối cảnh bố trí công năng + nội thất tầng 1 nhà phố diện tích 7x11,5m
.jpg)
Phối cảnh bố trí công năng + nội thất tầng 2 nhà phố diện tích 7x11,5m
Tất cả các phòng trong ngôi nhà của chú Phùng đều có cửa sổ thông ra bên ngoài, điều này mang đến một không gian tràn ngập không khí trong lành, ngôi nhà như hòa mình với thiên nhiên, mang đến một cảm giác dễ chịu khi trở về nhà sau ngày dài học tập và làm việc.
Trên đây là bản thiết kế mẫu nhà phố diện tích 7x11,5m cho gia đình nhà chú Phùng. Với những gì chúng tôi đã chia sẽ, hy vọng mọi người đã có ý tưởng và dự định cho bản thân và sớm sở hữu cho mình một ngôi nhà lý tưởng. Chúc các bạn thành công!
