NHÀ VƯỜN TẠI THANH HÓA ĐẸP 2020
Biệt thự 1 tầng luôn là chủ đề quen thuộc khi bạn đang có ý định xây nhà. Vậy nên bạn đừng bỏ qua bài viết này nhé.
Mẫu thiết kế biệt thự vườn 1 tầng hiện đại mái Thái với kích thước 10,8m x 10,9m được công ty tư vấn thiết kế kiến trúc và nội thật Nhà Đẹp 4.0 thiết kế cho gia đình anh Sơn có địa chỉ tại Thanh Hóa. Mời các bạn cùng tham khảo.
.jpg)
Mẫu biệt thự vườn 1 tầng hiện đại 10,8 x 10,9m
THÔNG TIN CÔNG TRÌNH BIỆT THỰ VƯỜN 1 TẦNG DIỆN TÍCH 10,8M X 10,9M
Chủ đầu tư: anh Sơn
Địa điểm: Thanh Hóa
Năm thiết kế: 2020
Diện tích thiết kế: 10,8m x 10,9m
Công năng:
- Chủ đầu tư: anh Sơn
- Địa điểm: Thanh Hóa
- Năm thiết kế: 2020
- Diện tích thiết kế: 10,8m x 10,9m
- Công năng: 4 phòng ngủ, 1 phòng khách. (khu phụ đặt bên ngoài).
YÊU CẦU THIẾT KẾ CHO BIỆT THỰ VƯỜN 1 TẦNG DIỆN TÍCH 10,8M X 10,9M
Anh Sơn tìm đến công ty chúng tôi với yêu cầu và mong muốn về ngôi nhà của mình như sau:
- Gia đình muốn thi công mẫu nhà vườn 1 tầng với diện tích hơn 100m2.
- Mang hơi hướng hiện đại, đơn giản nhưng vẫn thu hút, độc đáo.
- Công năng dự kiến thi công là 4 phòng ngủ, 1 phòng khách, phòng bếp và wc chung thiết kế thông thoáng và có sự tách biệt với cách không gian khác.
- Ngoại thất công trình có gam màu chủ đạo nhẹ nhàng, mát mẻ.
- Chi phí hoàn thiện dự tính không vượt quá 1 tỷ.
.jpg)
Phối cảnh 3d mẫu biệt thự vườn 1 tầng diện tích 10,8 x 10,9m
Ngay sau khi tiếp nhận yêu cầu tư vấn thiết kế của chủ đầu tư, chúng tôi đã đến hiện trạng bắt tay vào khảo sát khu vực thi công công trình, từ đó đưa ra các phương án sơ bộ cho chủ đầu tư lựa chọn.
Sau khi được tư vấn rất cụ thế kỹ càng cho công trình nhà mình, cô chú nhanh chóng chốt phương án chọn, và chúng tôi tiến hành họp bàn và chốt phương án 3D chi tiết.
.jpg)
Với thiết kế hệ mái Thái độ dốc cao, cùng 2 sảnh cho công trình sẽ giúp công trình thông thoáng hơn rất nhiều, thiết kế đơn giản nhưng vẫn có sức hút độc đáo, sang trọng. Hệ mái được bố trí 1 mái chính và 1 mái phụ, vừa tạo bố cục hài hòa cân đối, vừa mang điểm nhấn độc đáo cho ngôi nhà.
Công trình được thiết kế hệ tam cấp cùng với 2 cột chính. Thân cột được thu nhỏ dần về phía đầu cột, việc cách điệu này cũng tăng thêm phần hiện đại cho ngôi nhà của anh Sơn. Toàn bộ đế công trình được ốp đá không chỉ mang lại tính thẩm mĩ mà còn ngăn thấm nước giảm bớt sự ảnh hưởng cho chất lượng của công trình trong thời gian sử dụng.
Mái ngói màu xanh dương kết hợp cùng tone màu xanh nhạt nhẹ nhàng sẽ tạo nên sự liên kết nổi bật và hơi hướng hiện đại. Ngoài màu xanh nhạt, gam màu phụ được sử dụng trên phần cửa sổ mái, phân tầng giữa thân nhà và mái, đường chỉ cột là màu trắng sứ. Thân nhà còn được bật lên bởi màu của cửa sổ hệ nhôm xingfa, màu café nhạt trên đế cột chính. Việc kết hợp màu sắc này giúp công trình của chúng ta không chỉ mạnh mẽ, bề thế, mà còn rất cuốn hút và nổi bật.
Đáp ứng nhu cầu thông thoáng gần gũi với thiên nhiên, chúng tôi không quên đặt ở mái hệ thống cửa sổ thông gió, đồng thời hông nhà được thiết kế dàn hoa lam gỗ nổi bật, và xung quanh nhà đều được bố trí những khoảng đất nhỏ trồng cây xanh, giúp không gian sinh hoạt trở nên thoải mái và dễ chịu, chinh phục mọi góc nhìn từ nhiều phía.
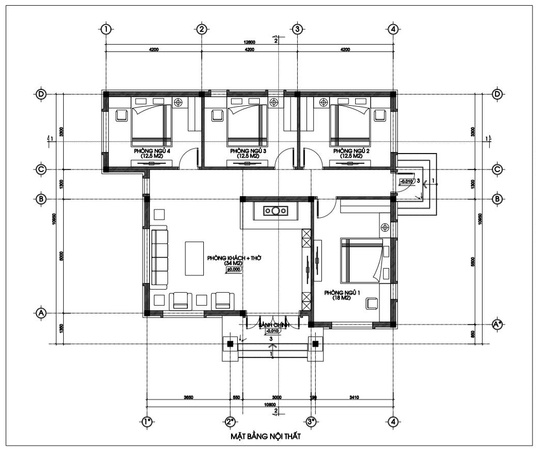
MẶT BẰNG CÔNG NĂNG BIỆT THỰ VƯỜN 1 TẦNG DIỆN TÍCH 10,8M X 10,9M

Nhìn vào bản vẽ chúng ta có thể nhận thấy cách bài trí công năng ngôi nhà khá phù hợp. Bước từ ngoài vào trong là phòng khách thiết kế rộng rãi với diện tích 34m2. Không gian phòng khách được thiết kế tối giản, với 3 hệ cửa sổ lớn nhỏ tạo sự thoải mái và thoáng đãng cho ngôi nhà. Còn lại là các không gian phòng ngủ. Với thiết kế để khu phụ ra bên ngoài một phần cũng tiện lợi, sạch sẽ cho nơi ở hơn rất nhiều. Trong số 4 phòng ngủ, có 1 phòng ngủ lớn (18 m2) và 3 phòng ngủ nhỏ (12,5m2).
.jpg)
Phối cảnh bố trí công năng + nội thất nhà vườn 1 tầng kích thước 10,8 x 10,9m
Điều đặc biệt đó là thiết kế tất cả các phòng trong ngôi nhà của anh Sơn đều có cửa sổ thông ra bên ngoài, điều này mang đến một không gian tràn ngập không khí trong lành, ngôi nhà như hòa mình với thiên nhiên, mang đến một cảm giác dễ chịu khi trở về nhà sau ngày dài học tập và làm việc.
Trên đây là bản thiết kế mẫu nhà vườn 1 tầng diện tích 10,8m x 10,9m của gia đình nhà anh Sơn tại Thanh Hóa. Hy vọng trên đây sẽ là gợi ý phù hợp cho các bạn khi đang muốn xây dựng ngôi nhà phong cách và kích thước tương tự. Cảm ơn và chúc các bạn thành công!
