NHÀ VƯỜN 1 TẦNG MÁI THÁI HIỆN ĐẠI KẾT HỢP TÂN CỔ
Biệt thự vườn 1 tầng đang là mô hình nhà được ưa chuộng rất nhiều tại Việt Nam. Đặc biệt biệt thự mang hình thức mái Thái đang được sự ưu ái của rất nhiều chủ đầu tư. Để mọi người nhanh chóng có được sự lựa chọn cho mình, chúng tôi xin giới thiệu hồ sơ thiết kế mẫu nhà biệt thự vườn 1 tầng mái Thái với kích thước 14m x 16,5m được công ty cổ phần thiết kế kiến trúc và nội thất Nhà Đẹp 4.0 thiết kế cho gia đình anh Cường có địa chỉ tại Hải Dương.
.jpg)
Mẫu biệt thự vườn mái Thái với mặt tiền 16,5m
THÔNG TIN CÔNG TRÌNH NHÀ CẤP 4 MÁI THÁI DIỆN TÍCH 14M X 16,5M
Chủ đầu tư: Anh Cường
Địa điểm: Tứ Kỳ - Hải Dương
Năm thiết kế: 2020
Diện tích thiết kế: 14m x 16,5m
Công năng: 3 phòng ngủ,1 phòng khách kết hợp 1 phòng thờ, 1 phòng bếp.
YÊU CẦU THIẾT KẾ CHO NGÔI NHÀ CẤP 4 14X16,5M
Anh Cường tìm đến công ty chúng tôi với những mong muốn cho ngôi nhà của mình cụ thể như sau:
- Gia đình muốn thi công mẫu nhà biệt thự vườn 1 tầng mái Thái với diện tích 14m x 16,5m.
- Khu đất của gia đình rất rộng, nên muốn ngôi nhà thật sự nổi bật và sang trọng.
- Mang hơi hướng hiện đại, nhưng vẫn mang chút tân cổ, đơn giản nhưng vẫn thu hút, độc đáo.
- Công năng dự kiến thi công là 3 phòng ngủ, 1 phòng thờ kết hợp 1 phòng khách, phòng bếp và wc chung thiết kế thông thoáng.
- Ngoại thất công trình màu trắng chủ đạo, khỏe khoắn, gần gũi với thiên nhiên.
.jpg)
Phối cảnh 3d mẫu nhà biệt thự vườn mái Thái diện tích 14x16,5m
Ngay sau khi tiếp nhận yêu cầu tư vấn thiết kế của chủ đầu tư, chúng tôi đã đến hiện trạng để khảo sát khu vực thi công công trình, từ đó đưa ra các phương án sơ bộ cho chủ đầu tư lựa chọn.
Sau khi chốt phương án tư vấn, chúng tôi tiến hành họp bàn và chốt phương án 3D chi tiết.
.jpg)
Với thiết kế hệ mái Thái độ dốc cao, cùng 4 sảnh xung quanh cho công trình sẽ giúp công trình thông thoáng hơn rất nhiều, thiết kế đơn giản nhưng vẫn có sức hút độc đáo, sang trọng. Hệ mái được bố trí đan xen lớp giữa các mái chính và mái phụ, vừa tạo bố cục hài hòa cân đối, vừa mang điểm nhấn độc đáo cho ngôi nhà.
Công trình được thiết kế hệ thất cấp cùng với phong cách hiện đại kết hợp tân cổ. Hiện đại được toát lên ở đặc điểm mái và hình khối của ngôi nhà, với các hệ cột vuông, phào chỉ đơn giản đã toát lên vẻ hiện đại cho công trình. Ngoài ra, sảnh chính được bố trí hệ vòm, điểm chút hoa văn trên các thân cột, cách tạo hình trên cửa sổ giả trên mái và khung viền cửa sổ chính đã tạo lên sự quyền uy, sang trọng và đúng chất tân cổ cho ngôi nhà. Toàn bộ đế công trình được ốp đá không chỉ mang lại tính thẩm mĩ mà còn ngăn thấm nước giảm bớt sự ảnh hưởng cho chất lượng của công trình trong thời gian sử dụng.
Mái ngói màu xanh kết hợp cùng tone màu trắng sứ sẽ tạo nên sự nổi bật và hơi hướng hiện đại. Ngoài màu trắng sứ, phân tầng và mái nhà còn được sử dụng màu cà phê tạo điểm nhấn độc đáo cho ngôi nhà. Việc kết hợp màu sắc này giúp công trình của chúng ta không chỉ mạnh mẽ, bề thế, mà còn rất cuốn hút và nổi bật.
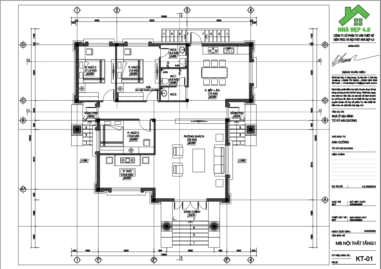
MẶT BẰNG CÔNG NĂNG BIỆT THỰ VƯỜN MÁI THÁI DIỆN TÍCH 14M X 16,5M

Nhìn vào bản vẽ chúng ta có thể nhận thấy cách bài trí công năng ngôi nhà khá phù hợp. Bước từ ngoài vào trong là phòng khách thiết kế rộng rãi với diện tích 32m2. Không gian phòng khách được thiết kế tối giản tạo sự thoải mái và thoáng đãng cho ngôi nhà.
Bên cạnh đó là phòng thờ (10,5m2) tạo sự thuận tiện mỗi khi thắp hương của chính gia chủ và những người thân thích khác. Bên trái ngôi nhà được bố trí ba phòng ngủ với 2 phòng ngủ nhỏ (11m2) và 1 phòng ngủ lớn (14m2) có wc riêng, bên phải là khu phụ với wc riêng và không gian phòng bếp khá rộng (19m2).

Phối cảnh bố trí công năng + nội thất biệt thự vườn mái Thái diện tích 14x16,5m
Điều đặc biệt đó là thiết kế tất cả các phòng trong ngôi nhà của anh Cường đều có cửa sổ thông ra bên ngoài, điều này mang đến một không gian tràn ngập không khí trong lành, ngôi nhà như hòa mình với thiên nhiên, mang đến một cảm giác dễ chịu khi trở về nhà sau ngày dài học tập và làm việc.
Trên đây là bản thiết kế mẫu nhà biệt thự vườn mái Thái diện tích 14x16,5m cho gia đình nhà anh Cường. Với những gì chúng tôi đã chia sẽ, hy vọng mọi người đã có ý tưởng và dự định cho bản thân và sớm sở hữu cho mình một ngôi nhà lý tưởng. Chúc các bạn thành công!
Link youtube review chi tiết bản hồ sơ thiết kế công trình nhà anh Cường - Hải Dương:
