NHÀ PHỐ HIỆN ĐẠI TẠI THÀNH PHỐ PHÚC YÊN
Đất phố luôn là vấn đề lớn của mỗi chủ đầu tư. Với mong muốn ngôi nhà của mình vừa đáp ứng nhu cầu công năng, vừa đạt được độ thẩm mĩ vì chỉ có duy nhất mặt tiền. Vậy quý bạn đọc đừng bỏ qua bài viết này nhé. Hồ sơ thiết kế đã được chúng tôi bàn giao cho gia đình nhà chú Thiết tại Phúc Yên – một sản phẩm của Nhà Đẹp 4.0, mời quý bạn đọc cùng tham khảo.
.jpg)
Mẫu nhà phố với mặt tiền 7m
THÔNG TIN CÔNG TRÌNH NHÀ PHỐ DIỆN TÍCH 5M x 14M
- Chủ đầu tư: chú Thiết
- Địa điểm: Hùng Vương, Phúc Yên
- Năm thiết kế: 2020
- Diện tích thiết kế: 5m x 14m
- Công năng: 3 phòng ngủ, 1 phòng thờ, 1 phòng khách, 1 phòng bếp.
- Chi phí hoàn thiện dự kiến: 1,6 tỷ
YÊU CẦU THIẾT KẾ CHO NGÔI NHÀ PHỐ 5X14M
Chú Thiết tìm đến công ty chúng tôi với những mong muốn cho ngôi nhà của mình cụ thể như sau:
- Gia đình muốn thi công mẫu nhà phố với diện tích 5m x 14m.
- Chính vì là nhà phố duy nhất 1 mặt tiền nên chú mong muốn ngôi nhà thật sự nổi bật và sang trọng.
- Mang hơi hướng hiện đại, đơn giản nhưng vẫn thu hút, độc đáo.
- Công năng dự kiến thi công là 3 phòng ngủ, 1 phòng thờ, 1 phòng khách, phòng bếp.
- Ngoại thất công trình màu trắng chủ đạo, điểm nhấn khỏe khoắn hiện đại, gần gũi với thiên nhiên.
- Chi phí hoàn thiện dự tính không vượt quá 2 tỷ.
.jpg)
Phối cảnh 3d mẫu nhà phố hiện đại diện tích 5x14m
Ngay sau khi tiếp nhận yêu cầu tư vấn thiết kế của chủ đầu tư, chúng tôi đã đến hiện trạng để khảo sát khu vực thi công công trình, từ đó đưa ra các phương án sơ bộ cho chủ đầu tư lựa chọn.
Sau khi chốt phương án tư vấn, chúng tôi tiến hành họp bàn và chốt phương án 3D chi tiết.
.jpg)
Với thiết kế hệ mái bằng, cùng sảnh chính rộng rãi cho công trình sẽ giúp công trình thông thoáng hơn rất nhiều, thiết kế đơn giản nhưng vẫn có sức hút độc đáo, sang trọng.
Toàn bộ đế công trình được ốp đá không chỉ mang lại tính thẩm mĩ mà còn ngăn thấm nước giảm bớt sự ảnh hưởng cho chất lượng của công trình trong thời gian sử dụng.
Ngoài màu trắng sứ, thân nhà còn được bật lên bởi màu của cửa sổ hệ nhôm xingfa, màu gỗ của cửa chính. Đồng thời trên tầng 2 được bố trí một hệ vách đặc ốp gạch thẻ xám tạo điểm nhấn nổi bật. Việc kết hợp màu sắc này giúp công trình của chúng ta không chỉ mạnh mẽ, bề thế, mà còn rất cuốn hút và nổi bật.
Đáp ứng nhu cầu thông thoáng gần gũi với thiên nhiên, chúng tôi không quên đặt ở phía trước nhà khoảng đất trồng cây giúp không gian sinh hoạt trở nên thoải mái và dễ chịu, chinh phục mọi góc nhìn xung quanh.
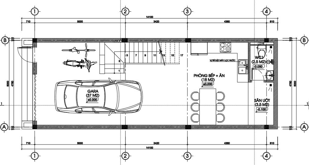
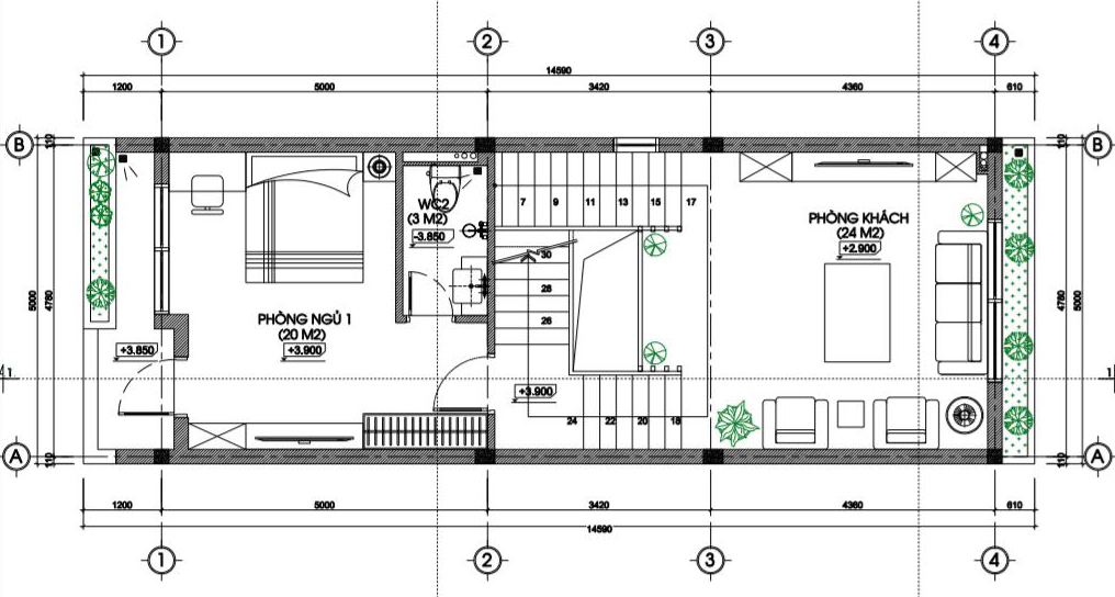
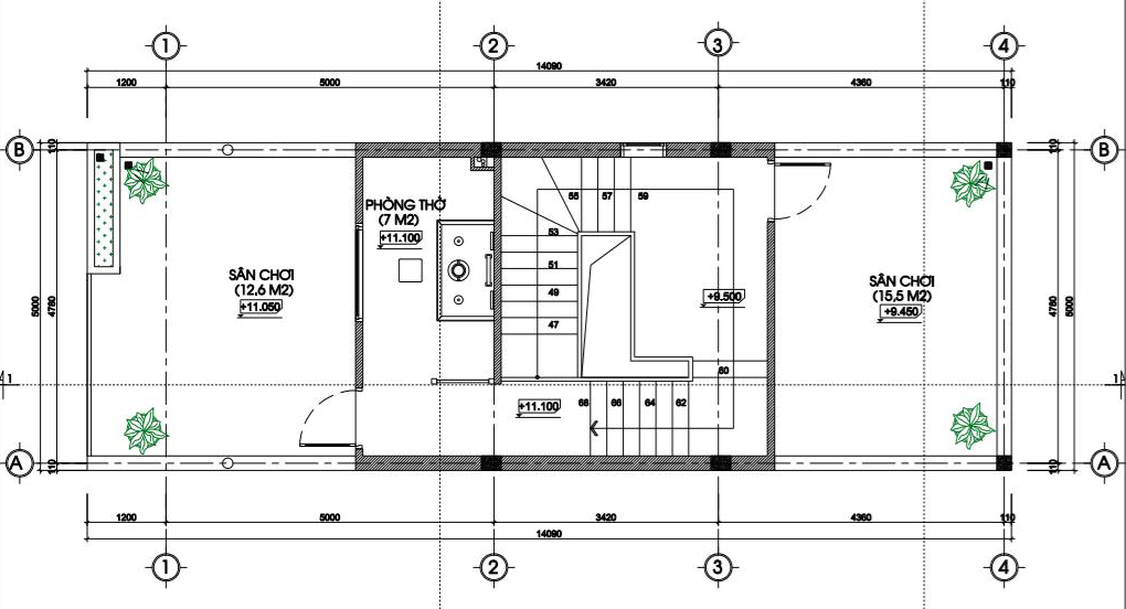
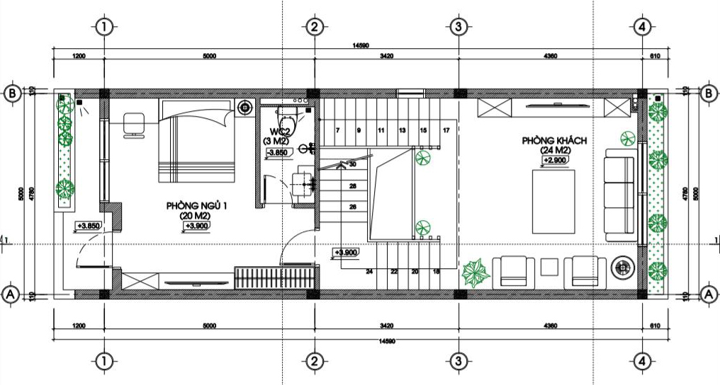
MẶT BẰNG CÔNG NĂNG NHÀ PHỐ DIỆN TÍCH 5M X 14M

Mặt bằng tầng 1 nhà phố 5x14m

Mặt bằng tầng 2 nhà phố 5x14m
.jpg)
Mặt bằng tầng 3 nhà phố 5x14m

Mặt bằng tầng 4 nhà phố 5x14m
Bước từ ngoài vào trong là gara rộng rãi với diện tích 37m2. Đi sâu vào trong là bếp ăn (18m2) với sân ướt và 1 wc chung. Lên tầng 2 được bố trí 1 phòng ngủ master (20m2) và phòng khách (24m2). Không gian phòng khách được thiết kế tối giản với 1 hệ cửa sổ lớn tạo sự thoải mái và thoáng đãng cho ngôi nhà. Tiếp tục lên tầng 3 là 2 phòng ngủ với 1 phòng ngủ lớn (22m2) và 1 phòng ngủ nhỏ (12m2) cùng 1 wc chung. Phòng ngủ lớn có ban công riêng rộng rãi thoáng mát. Cuối cùng trên tầng 4 có 2 sân chơi khá thoải mái. Không gian này được mở gần gũi với thiên nhiên, là nơi lấy lại cảm giác dễ chịu sau những ngày học tập và làm việc mệt mỏi.
Trên đây là bản thiết kế mẫu nhà phố diện tích 5x14m cho gia đình nhà chú Thiết. Với những gì chúng tôi đã chia sẽ, hy vọng mọi người đã có ý tưởng và dự định cho bản thân và sớm sở hữu cho mình một ngôi nhà lý tưởng. Chúc các bạn thành công!
