NHÀ PHỐ ĐẸP MẮT TẠI MÊ LINH HÀ NỘI
Nhà phố là lối thiết kế được ưa chuộng tại các vùng đất thành thị. Chính vì diện tích nhỏ nên nhà phố thường được xây dựng nhiều tầng, đồng bộ, ngăn nắp, sạch sẽ, các mặt đều hướng ra phố, tạo nên một mô hình đồng đều, tạo mỹ quan cho đô thị. Ngày hôm nay chúng tôi xin giới thiệu với quý vị mẫu nhà phố kích thước 7 x 17,5m, được Nhà Đẹp 4.0 thiết kế cho gia đình anh Bắc tại Mê Linh, Hà Nội.

Mẫu nhà lô phố với mặt tiền 7m
THÔNG TIN CÔNG TRÌNH NHÀ LÔ PHỐ DIỆN TÍCH 7M X 17,5M
- Chủ đầu tư: anh Bắc
- Địa điểm: Mê Linh, Hà Nội
- Năm thiết kế: 2020
- Diện tích thiết kế: 7m x 17,5m
- Công năng: 3 phòng ngủ, 1 phòng thờ, 1 phòng khách, 1 phòng bếp.
YÊU CẦU THIẾT KẾ CHO NGÔI NHÀ LÔ PHỐ 7X17,5M
Anh Bắc tìm đến công ty chúng tôi với những mong muốn cho ngôi nhà của mình cụ thể như sau:
- Gia đình muốn thi công mẫu nhà lô phố với diện tích 7m x 17,5m.
- Khu đất của gia đình là đất phố nên cần phô ra những gì đặc sắc nhất.
- Công năng dự kiến thi công là 3 phòng ngủ, 1 phòng thờ, 1 phòng khách, 1 phòng bếp.
- Ngoại thất công trình màu nhẹ nhàng, thanh thoát, gần gũi với thiên nhiên.

Mẫu nhà phố hiện đại diện tích 7x17,5m
Ngay sau khi tiếp nhận yêu cầu tư vấn thiết kế của chủ đầu tư, chúng tôi đã đến hiện trạng bắt tay vào khảo sát khu vực thi công công trình, từ đó đưa ra các phương án sơ bộ cho chủ đầu tư lựa chọn. Sau khi được tư vấn cụ thể kỹ càng cho công trình nhà mình, anh Bắc nhanh chóng chốt phương án chọn, và chúng tôi tiến hành đưa ra bản vẽ chi tiết.

Lối thiết kế theo phong cách hiện đại, sự kết hợp những hình khối đơn giản lại trở thành 1 tổ hợp khối độc đáo. Mái bằng lạ mắt,trên tầng ba, gây sự chú ý ngay từ đầu cho người nhìn. Với những phong cách thiết kế hiện nay, lựa chọn mái bằng cho 1 căn nhà phố cũng không còn lạ lẫm. Nhưng với thiết kế tầng ba cao thoáng thì công trình nhà anh Băc lại không hề đi theo lối mòn như các công trình nhà phố khác. Mái bằng đơn giản, kết hợp với hình khối tối ưu, màu sắc ngoại thất trang nhã, toàn bộ ngoại thất của công trình mang đậm hơi hướng hiện đại. Chất liệu lan can sắt tĩnh điện sử dụng hài hòa theo phong cách đương thời. Việc bố trí phân tán rất nhiều cửa sổ xung quanh nhà giúp lấy sáng tự nhiên thuận lợi và lưu thông không khí tốt hơn. Sự lựa chọn chất liệu nhôm kính cho cửa sổ và cửa đi hoàn toàn phù hợp. Cả tầng 2 và tầng 3 đều được bố trí khoảng ban công và sấn chơi rộng thoáng. Khối cầu thang được tách khéo léo riêng biệt. Giúp chuyển biến hình khối lạ mắt, tạo cảm giác công trình được mở rộng không gian hơn nhiều.
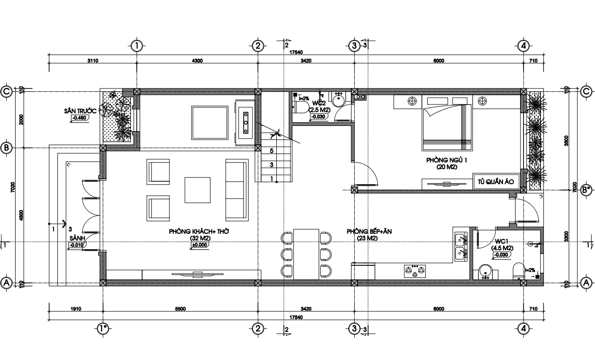
MẶT BẰNG CÔNG NĂNG NHÀ PHỐ DIỆN TÍCH 7M X 17,5M



Bước từ ngoài vào trong là phòng khách kết hợp phòng thờ thiết kế rộng rãi với diện tích 32m2. Không cầu kỳ, không có cửa sổ thoáng, nhưng không gian vẫn được mở tối ưu. Phòng thờ được chọn vị trí hợp phong thủy, vẫn giữ được nét tôn nghiêm và ấm cúng. Đi sâu vào bên trong là phòng bếp ăn rộng 23m2, được mở rộng bằng một sảnh riêng rẽ ra bên ngoài. Bếp ăn được sắp xếp gọn gàng với khu vực nấu nướng và bàn ăn đầy đủ. Sau đó là nhà vệ sinh chung rộng 4,5m2. Còn lại 1 phòng ngủ master rộng 20m2.
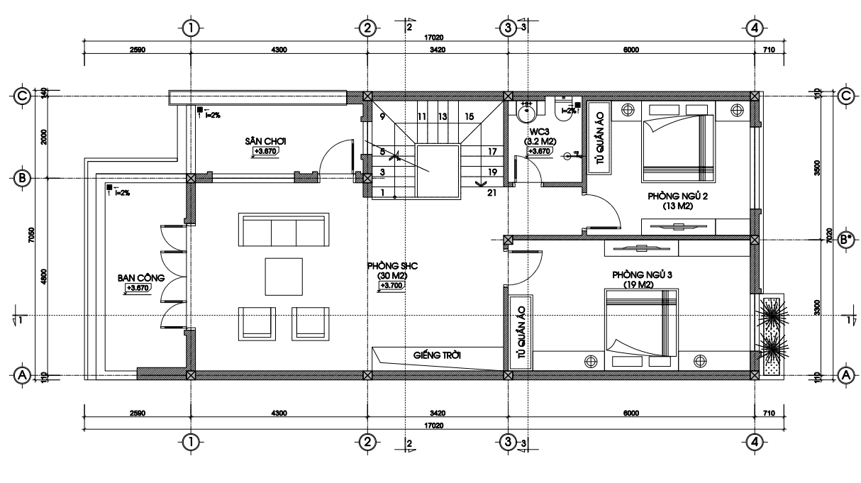
Lên trên tầng 2 là những không gian riêng tư của 2 phòng ngủ bên phải cầu thang. Một phòng ngủ nhỏ có kích thước 13m2, và một phòng ngủ lớn rộng 19m2. Cùng 1 vệ sinh chung toàn tầng 2 rộng 3,2m2 . Bên phải cầu thang là 1 phòng sinh hoạt chung 30m2. Trên tầng 2 có 1 sân chơi và 1 ban công rộng rãi, giúp mọi người có vị trí thư giãn mỗi lúc căng thẳng.
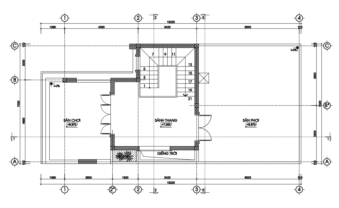
Trên tầng ba là toàn bộ dành cho không gian sân chơi và sân phơi. Tổng thể một công trình nhà ống thì việc lấy sáng rất quan trọng, nên với công trình nhà anh Bắc được chúng tôi bố trí giếng trời, nên luôn đảm bảo các không gian bên trong được thoáng đãng.
Và đó là sơ lược 1 công trình nhà phố 3 tầng mà đội ngũ KTS Nhà Đẹp 4.0 thiết kế cho gia đình anh Bắc tại Mê Linh, Hà Nội. Hy vọng sẽ là gợi ý phù hợp cho các bạn khi đang muốn xây dựng ngôi nhà phong cách và kích thước tương tự. Mọi ý kiến đóng góp quý vị có thể để lại dưới phần bình luận, hoặc đang cần tư vấn về thiết kế thi công, quý vị hãy liên hệ với hotline của Nhà Đẹp 4.0 để chúng tôi có thể hỗ trợ trực tiếp. Chúc các bạn thành công!
