NHÀ PHỐ 3 TẦNG CHO MẶT TIỀN HẸP
Với khu đất diện tích hạn chế thì việc xây dựng một công trình nhà phố là điều dễ hiểu. Giải quyết hết về vấn đề công năng, ánh sáng, tính thẩm mĩ là vô cùng quan trọng. Bằng những tính toán và tâm huyết, đội ngũ kiến trúc sư Nhà Đẹp 4.0 cùng chủ đầu tư đã phác thảo nên công trình nhà phố. Một sản phẩm được thiết kế cho anh Giáp có địa chỉ tại Tiền Phong, Mê Linh, Hà Nội.

Mẫu nhà phố với mặt tiền 4,2m
THÔNG TIN CÔNG TRÌNH NHÀ PHỐ DIỆN TÍCH 4,2M X 14M
- Chủ đầu tư: anh Giáp
- Địa điểm: Hà Nội
- Năm thiết kế: 2020
- Diện tích thiết kế: 4,2m x 14m
- Công năng: 2 phòng ngủ, 1 phòng thờ, 1 phòng khách, 1 phòng bếp và 1 phòng sinh hoạt chung.
YÊU CẦU THIẾT KẾ CHO NGÔI NHÀ PHỐ 4,2 x 14M
Anh Giáp tìm đến công ty chúng tôi với những mong muốn cho ngôi nhà của mình cụ thể như sau:
- Gia đình muốn thi công mẫu nhà phố với diện tích 4,2m x 14m.
- Mang hơi hướng hiện đại, một mặt tiền nên cần phô hết được cá tính cho công trình.
- Công năng dự kiến thi công là 2 phòng ngủ, 1 phòng thờ, 1 phòng khách, 1 phòng bếp.
- Ngoại thất công trình màu nhẹ nhàng, thanh thoát, gần gũi với thiên nhiên.

Mẫu nhà phố hiện đại diện tích 4,2x14m
Ngay sau khi tiếp nhận yêu cầu tư vấn của chủ đầu tư, chúng tôi đã đến hiện trạng bắt tay vào khảo sát khu vực thi công công trình. Sau khi được tư vấn cụ thể kỹ càng cho công trình nhà mình, anh Giáp đưa ra lựa chọn phương án và chúng tôi tiến hành bản vẽ chi tiết.

Với những hạn chế của 1 công trình nhà phố, càng kiến trúc sư xử lý trọn vẹn mặt tiền cho công trình thực sự nổi bật. Hệ thống mái đơn giản. Kết hợp với bố cục vuông vắn, tạo nên một tổ hợp khối hiện đại sang trọng. Như những mong muốn ban đầu của anh Giáp, công trình nhà anh đơn giản, nhưng lại ấm áp một chút. Nên tông màu được sử dụng cho ngoại thất chủ yếu là trung tính và kết hợp những điểm nhấn là gam màu nóng. Tại tầng 1, mặt tiền được ốp gạch hoàn toàn, cùng hệ thống đèn hắt ấn tượng, tạo sự hoài niệm ấm áp. Với tầng 2, Mạnh mẽ cá tính bằng đường nét của khung nổi bao quanh mặt tiền. Toàn bộ bề mặt được ốp gạch inax nhạt màu. Còn lại trên tầng 3 lại là sự kết hợp giữa nhẹ nhàng và cá tính. Không gian trên tầng 3 có độ mở tối ưu cùng 3 mặt tiếp xúc tự nhiên. Hệ thống lam ngang và dọc đan xen nhau giúp bố cục chuyển biến một cách linh hoạt gây thú vị cho người nhìn. Lan can kính được sử dụng phù hợp cho một công trình hiện đại. Vị trí này là vị trí lý tưởng để chúng ta có thể thư giãn và ngắm nhìn không gian xung quanh.
Tổng thể công trình là sự kết hợp ăn ý giữa bố cục và tông màu, giữa hình khối và chất liệu. Toàn bộ hệ thống cửa sổ và cửa chính sửa dụng chất liệu nhôm kính, giúp căn nhà phố nhà anh Giáp luôn tràn ngập ánh sáng tự nhiên đồng thời cũng tăng tính chất hiện đại cho công trình.
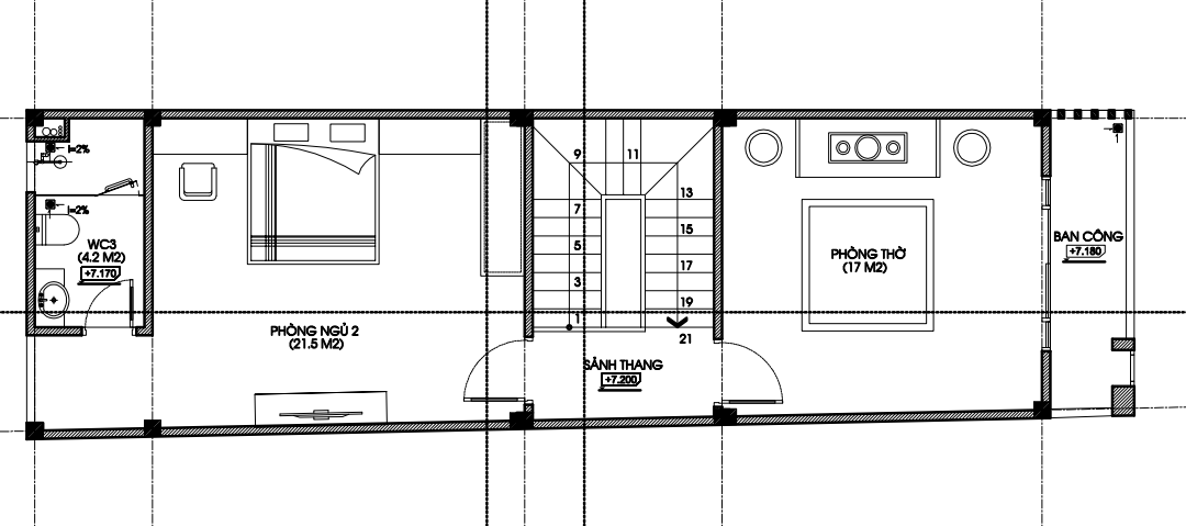
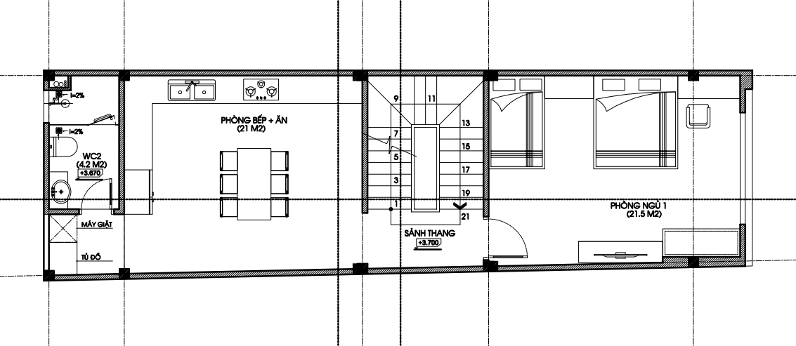
MẶT BẰNG CÔNG NĂNG NHÀ PHỐ DIỆN TÍCH 4,2M X 14M
.png)
.png)
.png)
Công trình được xây dựng với kích thước mặt tiền 4,2m, chiều sâu 14m. Bước từ sảnh chính đi vào là phòng khách rộng 17m2. Nơi tiếp đón khách được đặt bộ bàn ghế sofa gọn gàng. Hệ thống cầu thang ngăn cách phòng khách với các khu vực bên trong. Bên trong là 1 không gian tự do. Có thể là một nơi làm việc lưu động, nơi vui chơi của cả nhà, hoặc đơn giản là nơi cần sử dụng đến rất nhiều khi nhà có công việc. Còn lại khu vực sau cùng là vệ sinh chung rộng 3m2. Lên tầng 2, phía bên trái cầu thang là 1 phòng ngủ rộng 21,5m2. Bên phải cầu thang là khu vực bếp ăn rộng 21m2 cùng 1 khu phụ để máy giặt và tủ đồ. Vệ sinh chung được đặt vị trí tương tự như dưới tầng 1. Tầng 3 còn lại công năng bao gồm 1 phòng thờ rộng 17m2 và 1 phòng ngủ master rộng 21,5m2.
Tất cả các không gian bên trong luôn được bố trí lấy sáng và lấy thoáng thuận lợi, giúp mọi người có được một cuộc sống thoáng đãng, thoải mái.
Và vừa rồi chúng ta vừa trải nghiệm công trình nhà phố kích thước 4,2 x 14m của gia đình anh Giáp tại Mê Linh, Hà Nội. Hy vọng đây sẽ là gợi ý phù hợp cho các bạn khi đang có mong muốn xây dựng ngôi nhà có phong cách và kích thước tương tự. Mọi ý kiến đóng góp quý vị có thể viết dưới phần bình luận. Cần tư vấn về thiết kế thi công quý vị hãy để lại số điện thoại hoặc liên hệ hotline của Nhà Đẹp 4.0 để chúng tôi có thể hỗ trợ trực tiếp. Chúc các bạn thành công!
