MẪU NHÀ PHỐ PHONG CÁCH BÁN TÂN CỔ ĐIỂN TẠI BÌNH XUYÊN - VĨNH PHÚC
Đất cho khu đô thị hoặc liền kề có diện tích khá hạn chế. Việc xây một ngôi nhà phố hiện nay không còn quá lạ lẫm. Các phong cách thiết kế cho loại công trình này cũng khá đa dạng. Và một trong số đó là phong cách bán tân cổ điển. Trái ngược với những gì phóng khoáng tân tiến, phong cách này lại hoàn toàn trầm lặng nhưng lại nổi bật với nét sang trọng quyền quý. Dưới đây là mẫu biệt thự nhà phố được Nhà Đẹp 4.0 thiết kế cho gia đình anh Trung có địa chỉ tại Bình Xuyên, Vĩnh Phúc. Mời quý vị và các bạn cùng chiêm ngưỡng.

Mẫu nhà phố với mặt tiền 5,2m
THÔNG TIN CÔNG TRÌNH NHÀ PHỐ DIỆN TÍCH 5,2M x 14M
- Chủ đầu tư: anh Trung
- Địa điểm: Bình Xuyên - Vĩnh Phúc
- Năm thiết kế: 2020
- Diện tích thiết kế: 5,2m x 14m
- Công năng: 4 phòng ngủ, 1 phòng thờ, 1 phòng khách, 1 phòng bếp.
- Chi phí hoàn thiện dự kiến: 1,2 tỷ
YÊU CẦU THIẾT KẾ CHO NGÔI NHÀ PHỐ 5,2X14M
Anh Trung tìm đến công ty chúng tôi với những mong muốn cho ngôi nhà của mình cụ thể như sau:
- Gia đình muốn thi công mẫu nhà phố với diện tích 5,2m x 14m.
- Chính vì là nhà phố duy nhất 1 mặt tiền nên các bác mong muốn ngôi nhà thật sự nổi bật và sang trọng.
- Công năng dự kiến thi công là 4 phòng ngủ, 1 phòng thờ, 1 phòng khách, phòng bếp.
- Ngoại thất công trình màu trắng chủ đạo, điểm nhấn khỏe khoắn hiện đại, gần gũi với thiên nhiên.
- Chi phí hoàn thiện dự tính không vượt quá 2 tỷ.

Ngay sau khi tiếp nhận yêu cầu tư vấn thiết kế của chủ đầu tư, chúng tôi đã đến hiện trạng bắt tay vào khảo sát khu vực thi công công trình, từ đó đưa ra các phương án sơ bộ cho chủ đầu tư lựa chọn. Sau khi được tư vấn cụ thể kỹ càng cho công trình nhà mình, anh Trung nhanh chóng chốt phương án chọn, và chúng tôi tiến hành đưa ra bản vẽ chi tiết.
Không hẳn hào nhoáng phô trương như một công trình tân cổ điển, công trình nhà anh Trung sáng bừng lên với những nét riêng biệt. Hệ mái Thái cao ráo đươc lựa chọn sử dụng cho phong cách này, hoàn toàn phù hợp cho bố cục 3 tầng cao ráo. Các con sơn đơn được bố trí dưới mái tuy không mang chức năng nâng đỡ nhiều, nhưng lại tăng tính thẩm mĩ và đặc trưng cho chút hoài cổ. Cùng với đó, thước cột tròn tinh tế được nhắc lại từ tầng hai lên tầng ba, đường phào chỉ đơn giản nhưng hết sức đẹp mắt, những chi tiết tuy quen thuộc nhưng lại vô cùng gây ấn tượng cho người nhìn xung quanh. Hệ vòm trước ban công của công trình giúp vị trí trở nên thông thoáng, đồng thời kéo lại sự nhẹ nhàng uyển chuyển cho một bố cục vuông vắn trong công trình bán tân cổ điển. Với tầng 3 là một ban công nhỏ nhắn thì ở tầng 2 lại có một khoảng hiên rộng rãi. Cả 2 vị trí đều được sử dụng lan can hoa văn đẹp mắt sang trọng. Với phong cách bán tân cổ điển, đặc biệt lại là công trình nhà phố, nên chúng tôi tư vấn cho anh Trung những chất liệu sử dụng phù hợp cho bố cục tổng thể và nhu cầu sử dụng. Toàn bộ hệ cửa được dùng chất liệu nhôm kính để lấy sáng tự nhiên thuận lợi, lưu thông không khí dễ dàng, thẩm mĩ vẫn được đảm bảo nét sang trọng cho công trình.
Tổng thể công trình mang hơi hưởng ấm áp, từ tông màu cho đến những chi tiết nhỏ. Màu trắng sứ chủ đạo nhẹ nhàng, kết hợp với những mảng tường ốp gạch màu trung tính. Hệ cột vuông cũng được sơn giả đá sáng màu. Sự kết hợp hài hòa giữa các vật liệu cùng hệ thống đèn cổ điển. Tất cả tạo nên một công trình bán tân cổ điển gây cảm tình với chủ sở hữu và người xem.
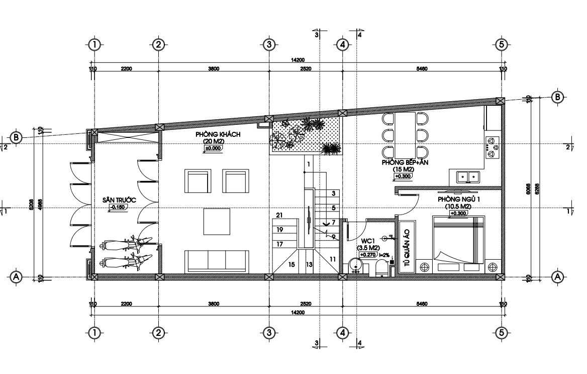
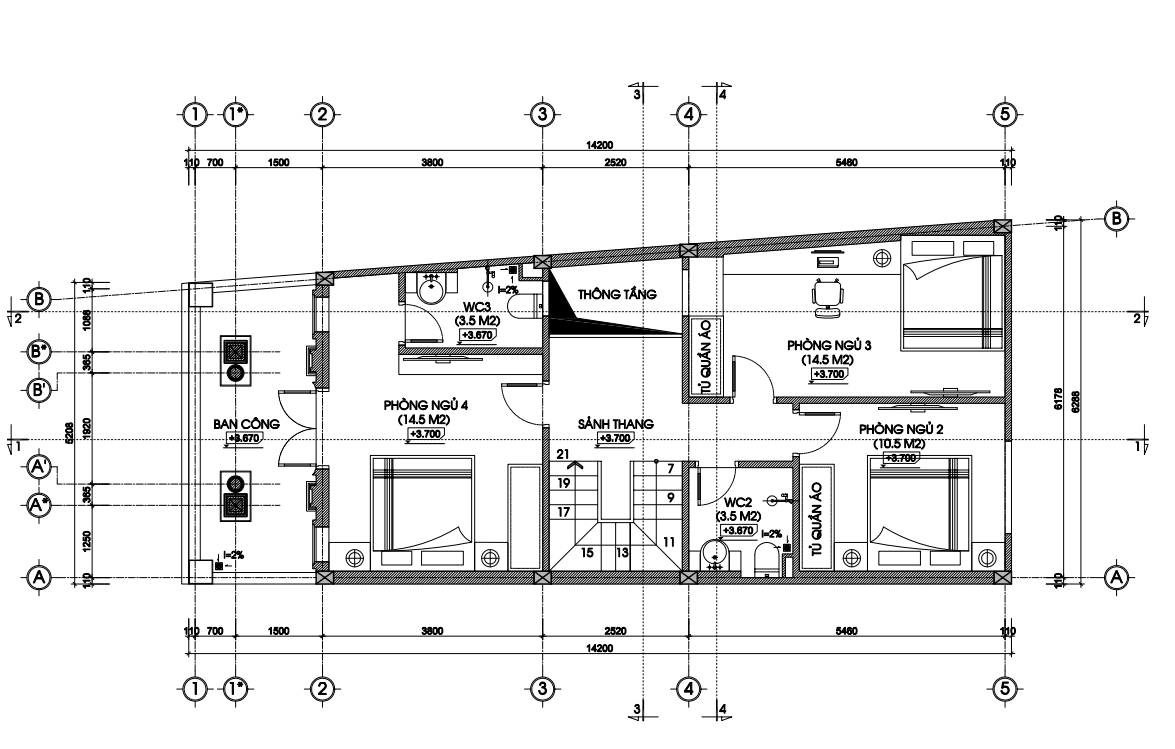
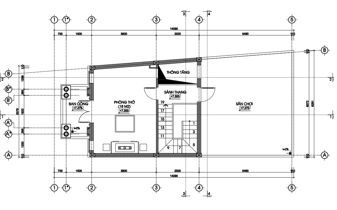
MẶT BẰNG CÔNG NĂNG NHÀ PHỐ DIỆN TÍCH 5,2M X 14M
.png)
Mặt bằng tầng 1 nhà phố 5,2x14m
.png)
Mặt bằng tầng 2 nhà phố 5,2x14m
.png)
Mặt bằng tầng 3 nhà phố 5,2x14m
Với kích thước công trình thay đổi từ mặt tiền 5,2m cho đến mặt hậu là 6,2m, chiều sâu ngôi nhà được kéo dài 14,2m. Bên trong công năng được bố trí như sau. Bước từ cổng vào là sân trước để xe. Sảnh chính rộng rãi với hệ cửa 4 cánh. Và đầu tiên là không gian phòng khách.Vị trí này rộng 20m2. Không gian này được ngăn cách với các không gian bên trong bằng tiểu cảnh trước cầu thang. Đây dường như là điểm nhấn đặc biệt cho tầng 1, đồng thời cũng giúp không gian sống trở nên xanh mát, thoải mái hơn cho mọi người. Bên trong là khu vực bếp ăn rộng 15m2 cùng 1 phòng ngủ nho nhỏ rộng 10,2m2. Vệ sinh chung cho tầng 1 rộng 3,5m2 được đặt khéo léo sau khu vực cầu thang. Lên tầng 2 phía bên trái là 1 phòng ngủ master rộng 14,5m2 có ban công riêng rộng rãi. Bên phải cầu thang còn 2 phòng ngủ nữa có kích thước lần lượt là 10,5m2 và 14,5m2. Vệ sinh chung cho tầng 2 được đặt tương tự như dưới tầng 1. Còn lại trên tầng 3 là khu vực phòng thờ riêng tư. Khu vực phòng thờ rộng 18m2. Ngoài ra còn có một sân chơi phía sau nhà để có thể trồng cây xanh hoặc là vị trí cả nhà có thể vui chơi ngày cuối tuần.
Và đó là sơ lược của một công trình nhà phố phong cách bán tân cổ điển. Hy vọng sẽ là gợi ý phù hợp cho các bạn khi đang muốn xây dựng ngôi nhà phong cách và kích thước tương tự. Mọi ý kiến đóng góp quý vị có thể để lại dưới phần bình luận, hoặc đang cần tư vấn về thiết kế thi công, quý vị hãy liên hệ với hotline của Nhà Đẹp 4.0 để chúng tôi có thể hỗ trợ trực tiếp. Chúc các bạn thành công!
