MẪU NHÀ PHỐ NỔI BẬT TẠI THANH HÓA
Một ngôi nhà phố vừa đủ công năng, vừa đạt được độ thẩm mĩ, có phải vấn đề các bạn đang băn khoăn. Đặc biệt chiếm trọn cảm tình của chủ nhà. Vậy quý bạn đọc đừng bỏ qua bài viết này nhé. Hồ sơ thiết kế đã được chúng tôi bàn giao cho gia đình nhà chú Hưng tại Thanh Hóa – một sản phẩm của Nhà Đẹp 4.0, mời quý bạn đọc cùng tham khảo.
.jpg)
Mẫu nhà phố với mặt tiền 5,7m
THÔNG TIN CÔNG TRÌNH NHÀ PHỐ DIỆN TÍCH 5,7M x 19,7M
- Chủ đầu tư: anh Hưng
- Địa điểm: Thanh Hóa
- Năm thiết kế: 2020
- Diện tích thiết kế: 5,7m x 19,7m
- Công năng: 5 phòng ngủ, 1 phòng thờ, 1 phòng khách, 1 phòng bếp, 1 phòng sinh hoạt chung.
- Chi phí hoàn thiện dự kiến: 1,8 tỷ
YÊU CẦU THIẾT KẾ CHO NGÔI NHÀ PHỐ 5,7X19,7M
Anh Hưng tìm đến công ty chúng tôi với những mong muốn cho ngôi nhà của mình cụ thể như sau:
- Gia đình muốn thi công mẫu nhà phố với diện tích 5,7m x 19,7m.
- Chính vì là nhà phố duy nhất 1 mặt tiền nên các bác mong muốn ngôi nhà thật sự nổi bật và sang trọng.
- Mang hơi hướng hiện đại, đơn giản nhưng vẫn thu hút, độc đáo.
- Công năng dự kiến thi công là 5 phòng ngủ, 1 phòng thờ, 1 phòng khách, phòng bếp và 1 phòng sinh hoạt chung.
- Ngoại thất công trình màu trắng chủ đạo, điểm nhấn khỏe khoắn hiện đại, gần gũi với thiên nhiên.
- Chi phí hoàn thiện dự tính không vượt quá 2 tỷ.
.jpg)
Phối cảnh 3d mẫu nhà phố hiện đại diện tích 5,7x19,7m
Ngay sau khi tiếp nhận yêu cầu tư vấn thiết kế của chủ đầu tư, chúng tôi đã đến hiện trạng để khảo sát khu vực thi công công trình, từ đó đưa ra các phương án sơ bộ cho chủ đầu tư lựa chọn.
Sau khi chốt phương án tư vấn, chúng tôi tiến hành họp bàn và chốt phương án 3D chi tiết.
.jpg)
Với thiết kế hệ mái thái cao ráo, cùng sảnh chính rộng rãi cho công trình sẽ giúp công trình thông thoáng hơn rất nhiều, thiết kế đơn giản nhưng vẫn có sức hút độc đáo, sang trọng.
Toàn bộ đế công trình được ốp đá không chỉ mang lại tính thẩm mĩ mà còn ngăn thấm nước giảm bớt sự ảnh hưởng cho chất lượng của công trình trong thời gian sử dụng.
Ngoài màu trắng sứ, thân nhà còn được bật lên bởi màu của cửa sổ hệ nhôm xingfa, màu gỗ của cửa chính. Đồng thời trên tầng 2 được bố trí một hệ vách đặc ốp gạch thẻ xám tạo điểm nhấn nổi bật. Việc kết hợp màu sắc này giúp công trình của chúng ta không chỉ mạnh mẽ, bề thế, mà còn rất cuốn hút và nổi bật. Lan can chất liệu kính trong là sự lựa chọn thông minh cho công trình nhà phong cách hiện đại.
Đáp ứng nhu cầu thông thoáng gần gũi với thiên nhiên, chúng tôi không quên đặt ở phía trước nhà khoảng đất trồng cây giúp không gian sinh hoạt trở nên thoải mái và dễ chịu, chinh phục mọi góc nhìn xung quanh.
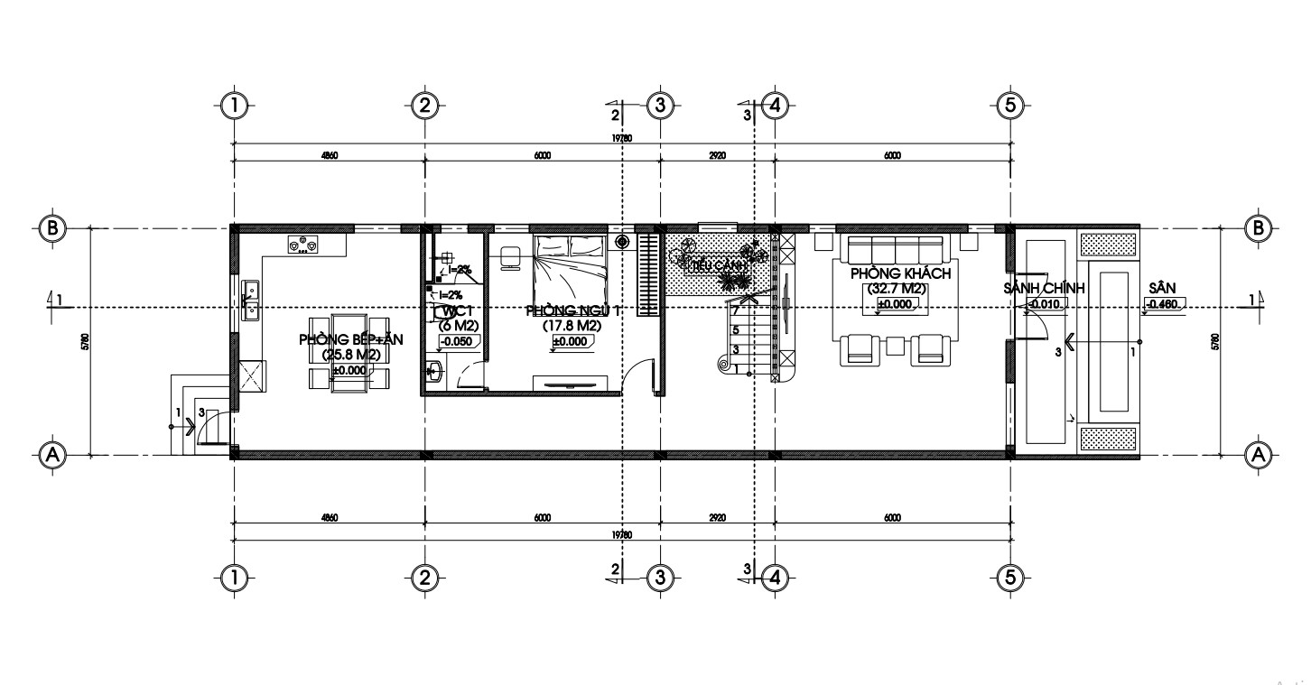
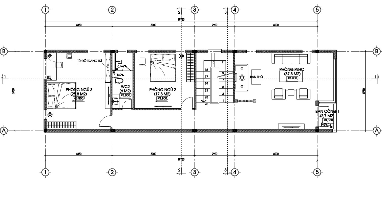
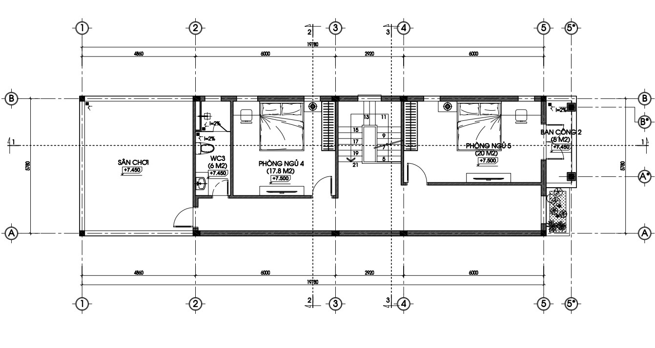
MẶT BẰNG CÔNG NĂNG NHÀ PHỐ DIỆN TÍCH 5,7M X 19,7M

Mặt bằng tầng 1 nhà phố 5,7x19,7m
.jpg)
Mặt bằng tầng 2 nhà phố 5,7x19,7m

Mặt bằng tầng 3 nhà phố 5,7x19,7m
Bước từ ngoài vào trong là phòng khách thiết kế rộng rãi với diện tích 32,7m2. Không gian phòng khách được thiết kế tối giản với 2 cửa sổ nhỏ. Kệ tivi ngăn cách khéo léo khu vực cầu thang. Đặc biệt tại đây được bố trí cây xanh tiểu cảnh bên trong nên ngay từ những không gian đầu tiên đã gây ấn tượng cho khách khứa. Đi sâu vào bên trong là 1 phòng ngủ rộng 17,8m2 có vệ sinh riêng. Cuối cùng là phòng bếp ăn rộng 25,8m2, được mở rộng bằng một sảnh riêng rẽ ra bên ngoài. Bếp ăn được sắp xếp gọn gàng với khu vực nấu nướng hướng hợp mệnh gia chủ và bàn ăn đầy đủ. Tầng 2 được bố trí 2 phòng ngủ với 1 vệ sinh chung. Còn lại tầng 3 được bố trí 2 phòng ngủ có kích thước tương tự nhau. Phía bên trái cầu thang là khu vực đặt ban thờ và phòng sinh hoạt chung rộng 37,3m2. Việc bố trí này giúp phòng thờ của gia đình luôn tôn nghiêm, ấm cúng, yên tĩnh nhất có thể.
Trên đây là bản thiết kế mẫu nhà phố diện tích 5,7 x 19,7m cho gia đình nhà ạnh Hưng. Với những gì chúng tôi đã chia sẻ, hy vọng mọi người đã có ý tưởng và dự định cho bản thân và sớm sở hữu cho mình một ngôi nhà lý tưởng. Chúc các bạn thành công!
