MẪU NHÀ PHỐ ĐỘC ĐÁO TẠI THẠCH THẤT, HÀ NỘI
Thiết kế kiến trúc nhà phố là một phong cách tiêu biểu trong số các phong cách thiết kế kiến trúc. Đây là một công việc vô cùng khó khăn đòi hỏi các nhà thiết kế phải thật khéo léo trong việc phân chia, sắp đặt các phòng, cầu thang, thiết kế mặt tiền,v.v. Dưới đây là một công trình nhà phố được chủ đầu tư ưng ý ngay từ những phương án đầu. Công trình được Nhà Đẹp 4.0 thiết kế cho anh Nhuận có địa chỉ tại Thạch Thất, Hà Nội. Chúng ta sẽ cùng đi khám phá sau đây.

Mẫu nhà phố với mặt tiền 4,6m
THÔNG TIN CÔNG TRÌNH NHÀ PHỐ DIỆN TÍCH 4,6M x 9,2M
- Chủ đầu tư: anh Nhuận
- Địa điểm: Thạch Thất
- Năm thiết kế: 2020
- Diện tích thiết kế: 4,6m x 9,2m
- Công năng: 3 phòng ngủ, 1 phòng thờ, 1 phòng khách, 1 phòng bếp, 1 sân phơi.
- Chi phí hoàn thiện dự kiến: 1,4 tỷ.
YÊU CẦU THIẾT KẾ CHO NGÔI NHÀ PHỐ 4,6X9,2M
Anh Nhuận tìm đến công ty chúng tôi với những mong muốn cho ngôi nhà của mình cụ thể như sau:
- Gia đình muốn thi công mẫu nhà phố với diện tích 4,6m x 9,2m.
- Chính vì là nhà phố duy nhất 1 mặt tiền nên các bác mong muốn ngôi nhà thật sự nổi bật và sang trọng.
- Mang hơi hướng hiện đại, đơn giản nhưng vẫn thu hút, độc đáo.
- Công năng dự kiến thi công là 3 phòng ngủ, 1 phòng thờ, 1 phòng khách, phòng bếp và sân phơi.
- Ngoại thất công trình màu trắng chủ đạo, điểm nhấn khỏe khoắn hiện đại, gần gũi với thiên nhiên.
- Chi phí hoàn thiện dự tính không vượt quá 2 tỷ.

Phối cảnh 3d mẫu nhà phố hiện đại diện tích 4,6x9,2m
Ngay sau khi tiếp nhận yêu cầu tư vấn thiết kế của chủ đầu tư, chúng tôi đã đến hiện trạng bắt tay vào khảo sát khu vực thi công công trình, từ đó đưa ra các phương án sơ bộ cho chủ đầu tư lựa chọn. Sau khi được tư vấn cụ thể kỹ càng cho công trình nhà mình, anh Nhuận nhanh chóng chốt phương án chọn, và chúng tôi tiến hành đưa ra bản vẽ chi tiết.

Ấn tượng từ khuôn viên đất nhỏ hẹp, công trình có kích thước ngoài 4,6 x 9,2m. Sự hạn chế của diện tích nên càng cần có cách phân chia khéo léo từ ngoại thất đến nội thất. Tổng thể công trình là sự kết hợp giữa các mảng khối vuông vức. Tuy là những khối vuông đơn giản nhưng khi kết hợp với nhau lại vô cùng hài hòa và lạ mắt. Thiết kế tầng cao với bố cục 3 tầng 1 tum. Dường như khi đứng ở bên dưới chúng ta không thể quan sát hết được mái của công trình nữa. Hệ mái bằng vẫn được sử dụng quen thuộc cho một công trình nhà phố. Màu sơn ngoại thất nhẹ nhàng lựa chọn thích hợp nhất là gam màu trắng chủ đạo. Trải dài từ tầng tum xuống tầng 2 là những điểm nhấn tối màu như bồn đất trồng cây được ốp toàn bộ, hay mảng tưởng vàng nâu nhấn nhá sắc nét. Còn lại toàn bộ bề mặt mảng tường tầng 1 được ốp gạch vân đá, thể hiện sự vững chắc và sang trọng của công trình. Thu hút của công trình nhà phố chính là tầng trên cao được bố trí ban công gần như tách nổi hẳn bố cục. Lan can kính được sử dụng khéo léo ăn khớp với phong cách thực thời. Với công trình nhà phố, việc lấy ánh sáng tự nhiên rất quan trọng nên giải pháp sử dụng hệ thống cửa nhôm xingfa là hoàn toàn hợp lý. Ngoài ra, những bồn cây nhỏ chính là những điểm cộng nữa cho công trình, giúp công trình gần gũi với thiên nhiên hơn.
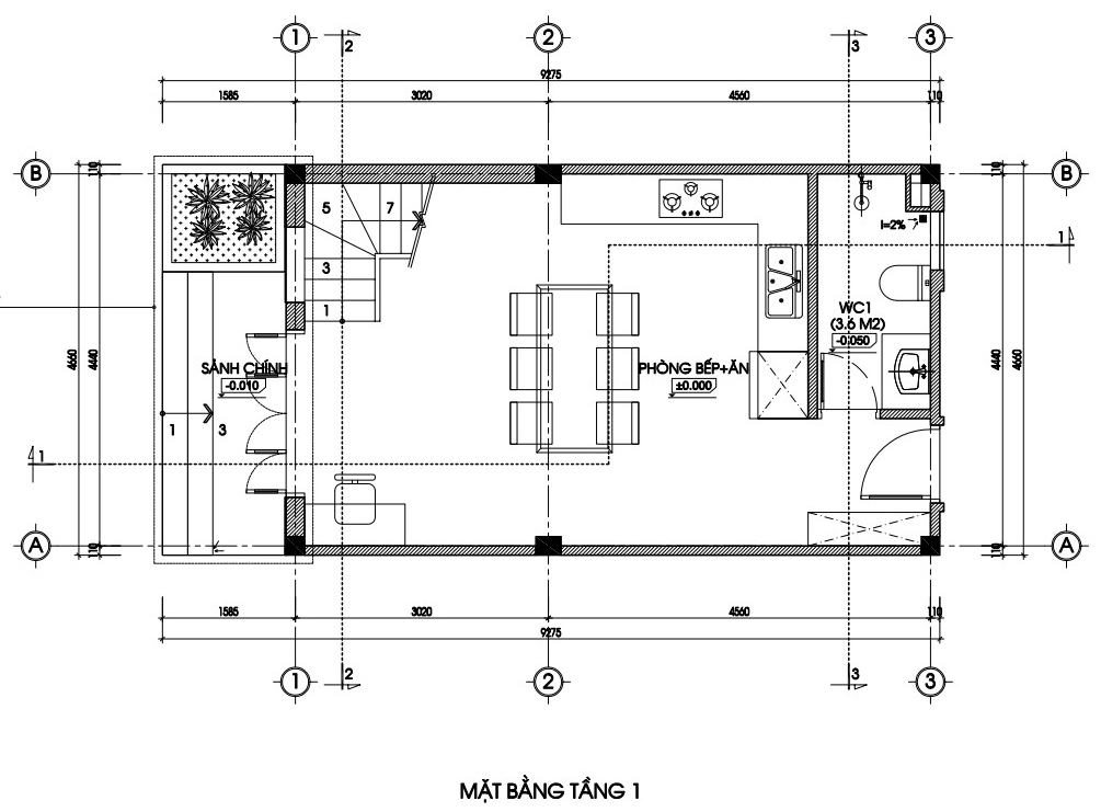
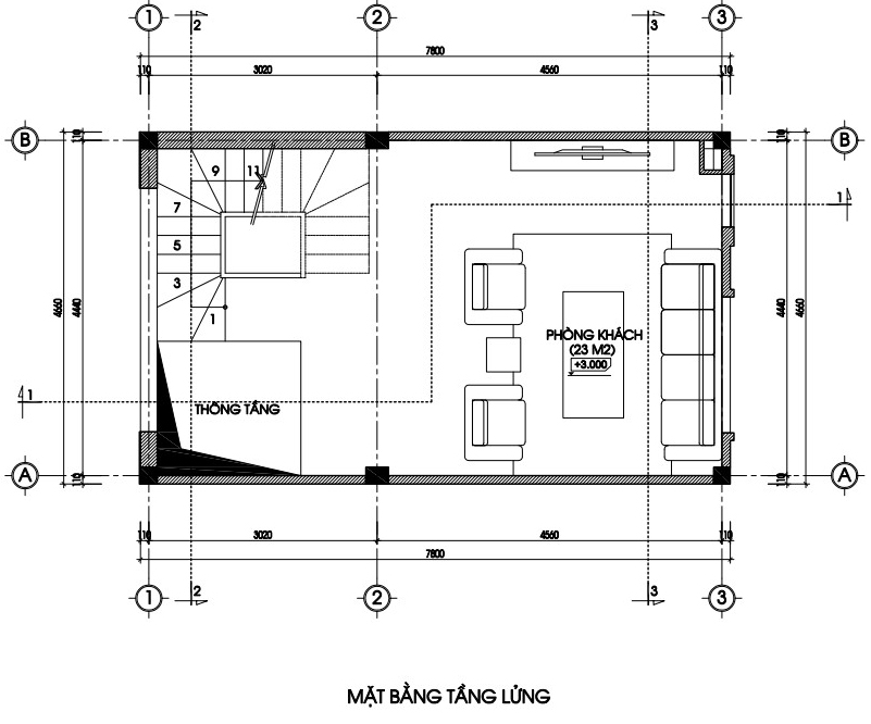
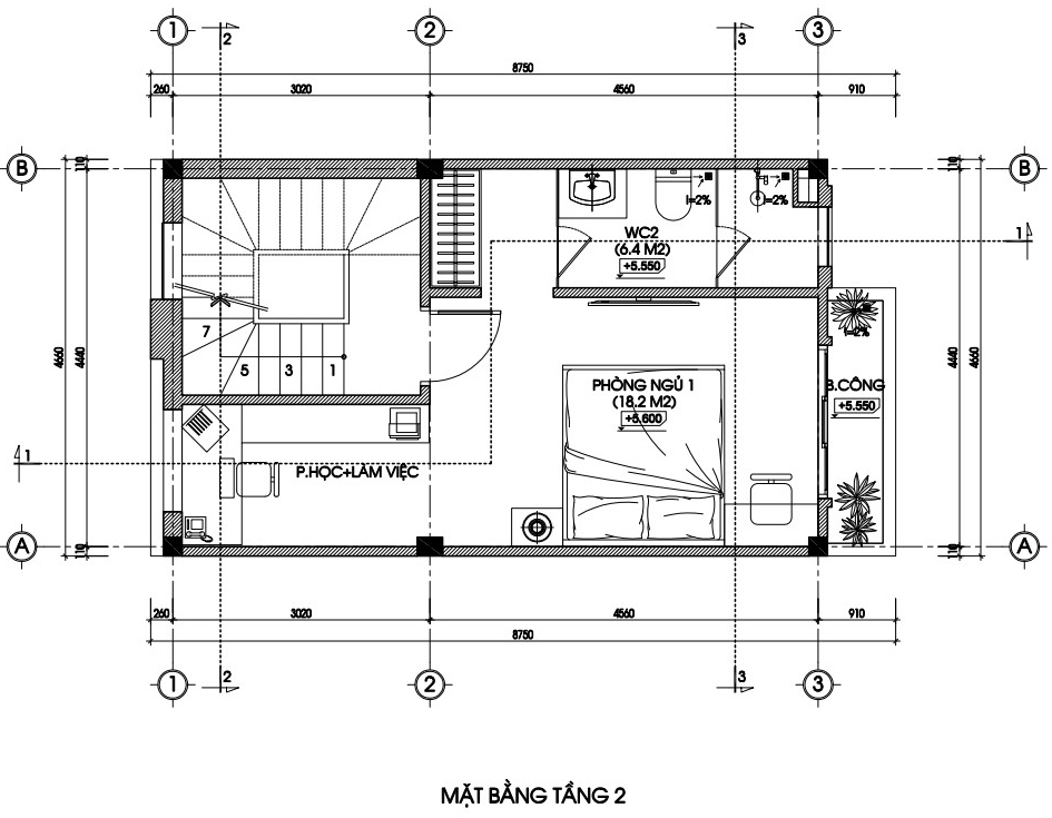
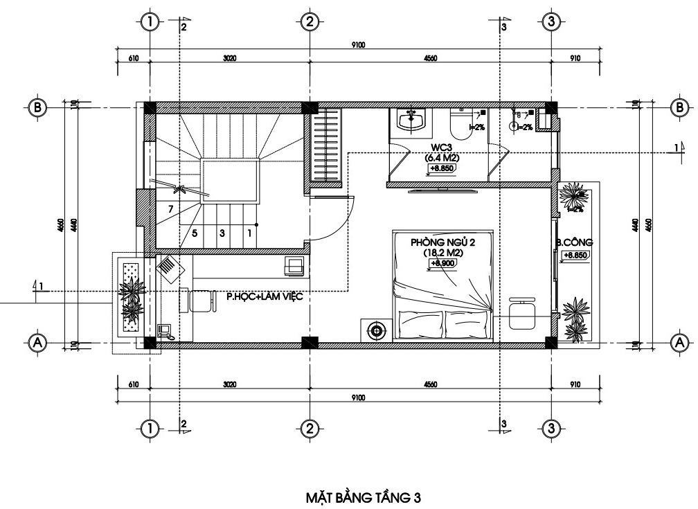
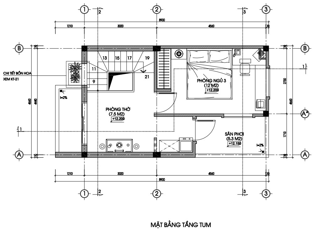
MẶT BẰNG CÔNG NĂNG NHÀ PHỐ DIỆN TÍCH 4,6M X 9,2M





Với diện tích nhỏ gọn, thì tầng 1 công trình khá đơn giản. Đi từ sảnh chính vào sẽ là khu vực bếp. Khu vực bếp được dành trọn cho tầng 1, từ khu vực bếp có lối riêng đi ra sân sau nhà. Lên trên tầng 2 là không gian yên tĩnh riêng tư cho một phòng ngủ. master rộng 18,2m2. Vị trí làm việc được đặt cạnh vách kính lớn. Ngoài ra, phòng ngủ có ban công riêng rộng rãi. Đó cùng là cách bố trí tương tự trên tầng 3, phòng ngủ master có kích thước và sắp xếp giống tầng 2 bên dưới. Còn lại trên tầng tum, được bố trí 1 phòng ngủ nhỏ rộng 12m2, một khu vực phòng thờ rộng 7,5m2, và một sân phơi rộng 5,3m2. Toàn bộ các không gian trong công trình đều được lấy sáng và đáp ứng độ thông thoáng.
Và chúng ta vừa được chiêm ngưỡng ngoại thất và công năng của công trình nhà phố diện tích 4,6 x 9,2m của gia đình anh Nhuận. Hy vọng mọi người đã có ý tưởng và dự định cho bản thân và sớm sở hữu cho mình một ngôi nhà lý tưởng. Mọi ý kiến đóng góp quý vị có thể để lại dưới phần bình luận, hoặc đang cần tư vấn về thiết kế thi công, quý vị hãy liên hệ với hotline của Nhà Đẹp 4.0 để chúng tôi có thể hỗ trợ trực tiếp. Chúc các bạn thành công!
