MẪU NHÀ ỐNG 3 TẦNG CÓ GARA 3 PHÒNG NGỦ 1 PHÒNG THỜ
Mẫu nhà ống 3 tầng có gara được khá nhiều khách hàng gửi yêu cầu tư vấn thiết kế đến công ty chúng tôi. Đa số nhu cầu của khách hàng đó chính là phối cảnh kiến trúc hiện đại, mặt tiền thoáng và chi phí đầu tư tiết kiệm.
Để khách hàng có thể tự giải đáp những thắc mắc, hoàn thiện thêm cho những kế hoạch thi công của gia đình, hãy cùng khám phá và chiêm ngưỡng mẫu nhà ống 3 tầng của chúng tôi dưới đây.

Mẫu thiết kế nhà ống 3 tầng hiện đại
Nhìn từ xa mẫu thiết kế nhà thể hiện hình khối kiến trúc kiên cố và vững chãi. Sự bề thế không quá phô trương, tuy nhiên những đường nét thẳng và mặt phẳng trước, tạo điểm nhấn khá lôi cuốn so với những mẫu nhà phố cùng phong cách thiết kế.
Khối dầm sàn tầng 2 chạy thẳng lên tầng 3 được đổ khối đua rộng hơn so với tầng 1 gần 1m. Điều này làm cho hình khối chung của tổng thể cân đối hơn. Mặt tiền công trình từ đó đáp ứng được nhu cầu đua mở rộng sàn.
Tầng 1 thiết kế gara để xe ô tô, do đó hệ thống cửa cuốn điện tử được lắp đặt. Phần tường trước mặt tiền được ốp đá tự nhiên màu nâu đen khá nổi bật. Khoảng tường trước ban công tầng 2 được thiết kế ốp gạch nghệ thuật màu nâu xám, cùng với lan can kính cường lực và thiết kế hệ thống cửa nhôm Việt Pháp màu nâu đen, một bức tranh hài hòa về màu sắc đang được điểm tô và phô diễn.
Mẫu thiết kế nhà ống 3 tầng đơn giản từ hình khối kiến trúc cho đến màu sắc ngoại thất, mỗi chi tiết cũng như bố cục đều được tính toán chi tiết và cẩn thận. Mẫu thiết kế nhà hoàn toàn chinh phục chủ đầu tư ngay sau khi hoàn thiện phối cảnh thiết kế.
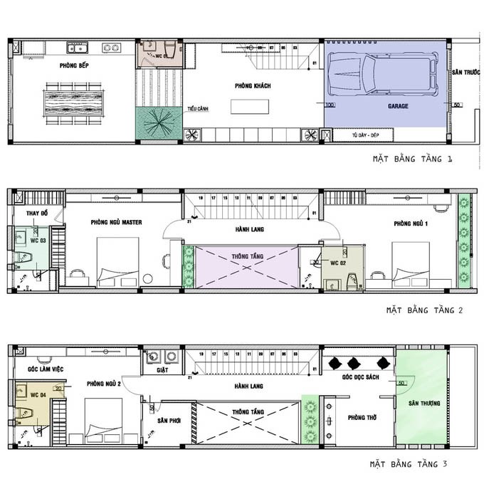
Mặt bằng công năng sử dụng của mẫu nhà ống 3 tầng hiện đại và khoa học

Mặt bằng sử dụng mẫu nhà ống 3 tầng hiện đại và khoa học
Công năng được chúng tôi nghiên cứu khá kỹ trước khi tiến hành thiết kế mặt bằng. Từ phòng ngủ nghỉ riêng cho đến không gian sinh hoạt chung, tất cả đều được tính toán chi tiết và cẩn thận.
Tầng 1 mẫu nhà ống 3 tầng có gara thiết kế phía ngoài là không gian để xe, phía trong là phòng được bố trí ngay cạnh thông với cửa cuốn. Cầu thang bộ được thiết kế lui về góc của phòng khách. Phòng bếp được bố trí phía trong, nhà vệ sinh chung thiết kế đối diện với giềng trời ở khu trung gian giữa phòng ăn và phòng khách.
Tầng 2 thiết kế phòng ngủ chính có nhà vệ sinh khép kín, có thiết kế phòng thay đồ đáp ứng nhu cầu sinh hoạt riêng tư của hai vợ chồng. Phía bên kia hành lang là phòng ngủ số 1 của cậu con trai, thiết kế sử dụng nhà vệ sinh riêng trong phòng ngay cạnh cửa ra vào.
Tầng 3 thiết kế tích hợp nhiều không gian, phòng ngủ số 2 có thiết kế khép kín, tích hợp góc làm việc được thiết kế ưu ái dành riêng cho cô con gái nhỏ. Phía bên kia hành lang là phòng thờ, thiết kế hướng ban công trước, phía ngoài phòng thờ có bố trí góc đọc sách với thiết kế ghế tựa cửa sổ, đem đến không gian sinh hoạt tiện nghi và khá thú vị cho các thành viên trong gia đình.
Mẫu thiết kế nhà ống 3 tầng mái bằng hiện đại, công năng khoa học, cùng với mức chi phí đầu tư hợp lý, hoàn toàn có thể thích ứng với nhiều gia đình hiện nay. Nếu như các bạn yêu thích mẫu thiết kế nhà này của chúng tôi, hãy liên hệ để được kiến trúc sư tư vấn cặn kẽ hơn và sát hơn với điều kiện thi công thực tế của gia đình.
