MẪU NHÀ HIỆN ĐẠI ĐƠN GIẢN ĐẸP MẮT TẠI LẬP THẠCH - VĨNH PHÚC
Bạn đang có ý định xây ngôi nhà cho mình nhưng vẫn chưa có định hướng rõ ràng?
Bạn muốn ngôi nhà nhà mình đơn giản nhưng độc đáo mà vẫn chưa thể tìm được mẫu nhà ưng ý. Vậy thì bạn đừng nên bỏ qua bài viết này nhé.
Mẫu thiết kế biệt thự vườn 1 tầng hiện đại mái Thái với kích thước 12,5 m x 14m được công ty tư vấn thiết kế kiến trúc và nội thất Nhà Đẹp 4.0 thiết kế cho gia đình anh Sơn có địa chỉ tại Lập Thạch, Vĩnh Phúc. Mời các bạn cùng tham khảo.
.jpg)
Mẫu biệt thự vườn 1 tầng hiện đại 12,5m x 14m
THÔNG TIN CÔNG TRÌNH BIỆT THỰ VƯỜN 1 TẦNG DIỆN TÍCH 12,5M X 14M
- Chủ đầu tư: anh Sơn
- Điạ điểm: Lập Thạch - Vĩnh Phúc
- Năm thiết kế: 2020
- Diện tích thiết kế: 12,5m x 14m
- Công năng: 4 phòng ngủ, 1 phòng khách, 1 phòng thờ, bếp bên ngoài.
YÊU CẦU THIẾT KẾ CHO BIỆT THỰ VƯỜN 1 TẦNG DIỆN TÍCH 12,5M X 14M
Anh Sơn tìm đến công ty chúng tôi với yêu cầu và mong muốn về ngôi nhà của mình như sau:
- Gia đình muốn thi công mẫu nhà vườn 1 tầng với diện tích hơn 120m2.
- Với thế đất nhà mình, anh Đạt muốn ngôi nhà của mình thực sự nổi bật, thông thoáng và nhiều cây xanh.
- Mang hơi hướng hiện đại, đơn giản nhưng vẫn thu hút, độc đáo.
- Công năng dự kiến thi công là 4 phòng ngủ, 1 phòng khách, phòng thờ và bếp với vệ sinh chung có sự tách biệt với cách không gian khác đồng thời cũng có sảnh riêng của công trình phụ.
- Ngoại thất công trình có gam màu chủ đạo ấm nóng nổi bật.



Ngay sau khi tiếp nhận yêu cầu tư vấn thiết kế của chủ đầu tư, chúng tôi đã đến hiện trạng bắt tay vào khảo sát khu vực thi công công trình, từ đó đưa ra các phương án sơ bộ cho chủ đầu tư lựa chọn.
Sau khi được tư vấn rất cụ thế kỹ càng cho công trình nhà mình, anh Sơn nhanh chóng chốt phương án chọn, và chúng tôi tiến hành họp bàn và chốt phương án 3D chi tiết.
Công trình được thiết kế hệ ngũ cấp cùng với 2 cột chính. Toàn bộ đế công trình được ốp đá không chỉ mang lại tính thẩm mĩ mà còn ngăn thấm nước giảm bớt sự ảnh hưởng cho chất lượng của công trình trong thời gian sử dụng.
Mái ngói màu đỏ kết hợp cùng tone màu ấm áp vàng cam sẽ tạo nên sự liên kết nổi bật và hơi hướng hiện đại, đáp ứng được nhu cầu của anh Sơn là khi nhìn vào ngôi nhà nhà mình sẽ thấy hoàn toàn hiện đại và cá tính. Ngoài màu vàng cam, ngôi nhà còn được sử dụng màu trắng sứ trên phần phân tầng và mái, cùng với các đường kẻ chỉ ngang chạy suốt xung quan thân nhà. Thân nhà còn được bật lên bởi màu của cửa sổ hệ nhôm xingfa. Việc kết hợp màu sắc này giúp công trình của chúng ta không chỉ cuốn hút và nổi bật, mà còn bộc lộ được tính cách của gia chủ.
Đáp ứng nhu cầu thông thoáng gần gũi với thiên nhiên, chúng tôi không quên đặt ở mái hệ thống cửa sổ thông gió, đồng thời có sảnh riêng với các hệ lam gỗ cho khu phụ, và xung quanh nhà đều được bố trí những khoảng đất nhỏ trồng cây xanh, giúp không gian sinh hoạt trở nên thoải mái và dễ chịu, chinh phục mọi góc nhìn từ nhiều phía.
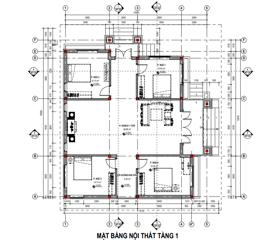
MẶT BẰNG CÔNG NĂNG BIỆT THỰ VƯỜN 1 TẦNG DIỆN TÍCH 12,5M X 14M
.jpg)
Bước từ sảnh chính vào là không gian phòng khách kết hợp phòng thờ rộng 48m2. Không gian rộng phù hợp cho gia đình trưởng họ khi có công việc. Hai bên là các không gian phòng ngủ, với phòng ngủ nhỏ rộng 12m2, 2 phòng ngủ rộng hơn 15m2, và 1 phòng ngủ cuối cùng rộng 16m2.
Tất cả các phòng trong ngôi nhà của anh Sơn đều có cửa sổ thông ra bên ngoài, điều này mang đến một không gian tràn ngập không khí trong lành, ngôi nhà như hòa mình với thiên nhiên, mang đến một cảm giác dễ chịu khi trở về nhà sau ngày dài học tập và làm việc.
Trên đây là bản thiết kế mẫu nhà vườn 1 tầng diện tích 12,5m x 14m của gia đình nhà anh Sơn tại Vĩnh Phúc. Hy vọng trên đây sẽ là gợi ý phù hợp cho các bạn khi đang muốn xây dựng ngôi nhà phong cách và kích thước tương tự. Cảm ơn và chúc các bạn thành công!
