MẪU NHÀ CÁP 4 CHI PHÍ HẤP DẪN TẠI LÂM ĐỒNG
Mẫu biệt thự 1 tầng hiện đại với phối cảnh kiến trúc ấn tượng và công năng khoa học, có tổng mức kinh phí đầu tư chưa đến 1 tỷ đồng được Nhà Đẹp 4.0 thiết kế cho gia đình nhà chú Đức tại Lâm Đồng. Hi vọng sẽ giúp các bạn hoàn thiện ý tưởng thiết kế mẫu biệt thự vườn 1 tầng cho gia đình mình nhé.

Mẫu nhà vườn mái Thái với mặt tiền 9m
THÔNG TIN CÔNG TRÌNH NHÀ CẤP 4 MÁI THÁI DIỆN TÍCH 9M X 18.6M
- Chủ đầu tư: chú Đức
- Địa điểm: Lâm Đồng
- Năm thiết kế: 2020
- Diện tích thiết kế: 9m x 18,6m
- Công năng: 3 phòng ngủ, 1 phòng khách, 1 phòng thờ, 1 phòng bếp.
YÊU CẦU THIẾT KẾ CHO NGÔI NHÀ VƯỜN 9X18,6M
Chú Đức tìm đến công ty chúng tôi với những mong muốn cho ngôi nhà của mình cụ thể như sau:
- Gia đình muốn thi công mẫu nhà vườn mái Thái với diện tích 9m x 18,6m.
- Khu đất của gia đình khá rộng, nên muốn ngôi nhà thật sự nổi bật và sang trọng.
- Mang hơi hướng hiện đại, đơn giản nhưng vẫn thu hút, độc đáo.
- Công năng dự kiến thi công là 3 phòng ngủ, 1 phòng bếp, 1 phòng khách, 1 phòng thờ.
- Ngoại thất công trình màu nhẹ nhàng, thanh thoát, gần gũi với thiên nhiên, đặc biệt gia chủ muốn kết hợp trắng sứ với xanh lam.

Dự định chú Đức thi công mẫu biệt thự 1 tầng hiện đại mái bằng, tuy nhiên suy đi tính lại, mẫu nhà ấn tượng ban đầu vẫn là sự lựa chọn số 1. Chú chốt phương án thiết kế mà mình sẽ thi công chính là mẫu biệt thự 1 tầng hiện đại mái thái.
Phối cảnh kiến trúc yêu cầu phải thể hiện được sự độc đáo, khác biệt và tươi mới hơn so với những mẫu nhà cấp 4 khác. Thiết kế biệt thự phải thể hiện được sự bề thế, sang trọng, tuy nhiên công năng phải khoa học và có thể thiết kế hành lang giao thông tối ưu cho việc di chuyển giữa các không gian trong nhà. Thiết kế đảm bảo có không gian để xe thuận tiện và khoa học, đảm bảo tính riêng tư và thống nhất, không liên quan đến các không gian khác.
Tổng kinh phí đầu tư cho mẫu thiết kế biệt thự 1 tầng hiện đại không vượt quá 1 tỷ, hoàn thiện trước tết nguyên đán 2021.
Với cái nhìn bao quát tổng thể, chúng ta có thể nhìn thấy hình khối mẫu thiết kế nhà toát lên những nét thanh tao và hiện đại. Hình khối kiến trúc kiên cố, từ thiết kế hệ thống mảng khối cho đến bố cục tường, vách đều được tính toán chi tiết và cẩn thận.
Kiến trúc mái thái thiết kế khối mái chữ A được xếp chồng 3 lớp mái, khối đua rộng cùng với màu sắc hiện đại tạo nên những điểm nhấn mạnh mẽ, tinh tế và bề thế cho công trình nhà chú Đức.
Toàn bộ sàn nhà được ốp gạch màu nâu gỗ, đi cùng với ngoại thất màu trằn sáng và thiết kế mái thái màu xanh lam, tạo nên sự đối xứng hoàn hảo.
Mặt tiền và ngoại thất ăn nhập với nhau một cách ăn ý, trong tổng thể cảnh quan sân vườn tươi mát, mẫu nhà hoàn toàn chinh phục được chủ đầu tư.
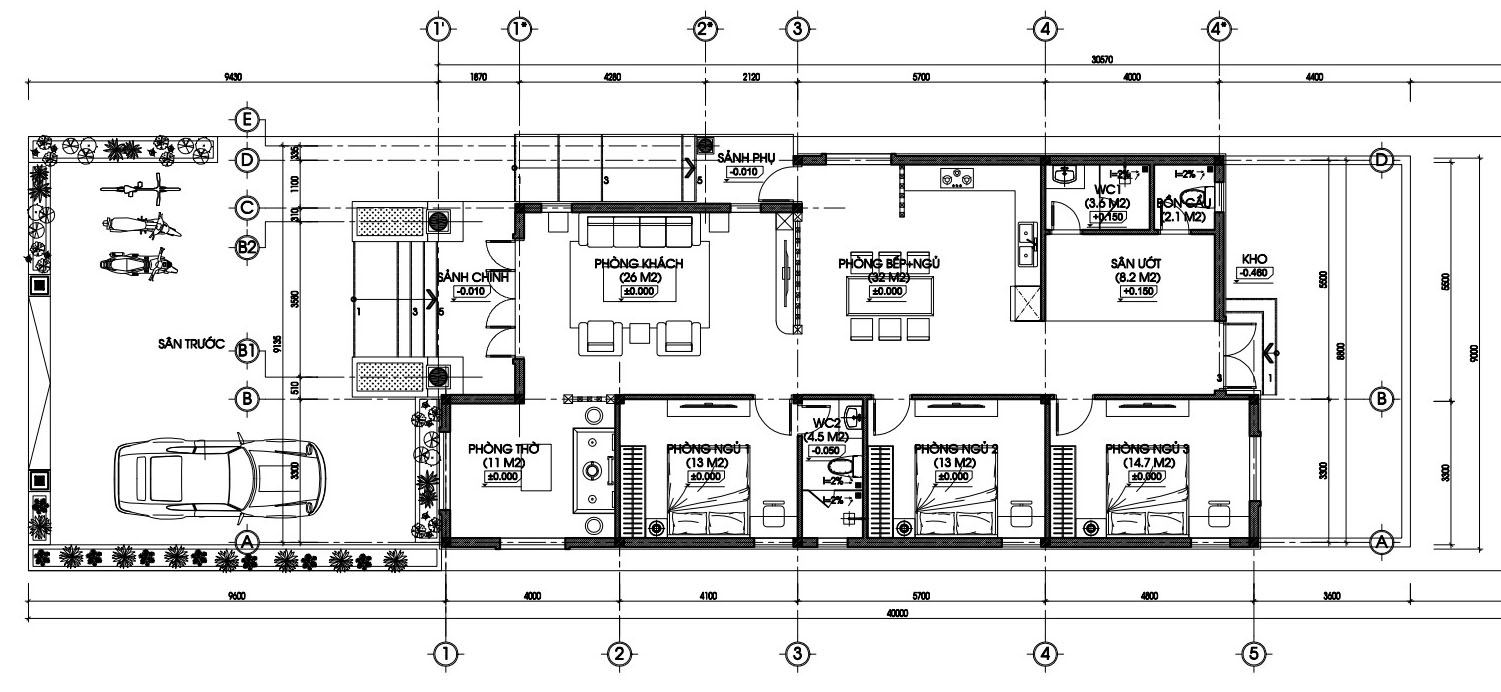
MẶT BẰNG CÔNG NĂNG BIỆT THỰ VƯỜN 1 TẦNG DIỆN TÍCH 9M X 18,6M

Mặt bằng tầng 1 nhà biệt thự 9m x 18,6m
Nhìn vào bản vẽ chúng ta có thể nhận thấy cách bài trí công năng ngôi nhà khá phù hợp. Bước từ ngoài vào trong là phòng khách thiết kế rộng rãi với diện tích 26m2. Không gian phòng khách được thiết kế với 1 hệ cửa sổ lớn và 2 cửa sổ nhỏ. Không gian phòng khách được tạo mở bởi khu cây xanh bên ngoài, tăng thêm sự thoải mái và thoáng đãng cho ngôi nhà.
Bên phải là phòng thờ với diện tích 11m2 và đi sâu vào trong là các không gian phòng ngủ. 3 phòng ngủ có kích thước tương đương nhau với 1 phòng ngủ master rộng 13m2. 1 phòng ngủ nhỏ 13m2 và 1 phòng ngủ còn lại 14,7m2. Tất cả các phòng ngủ đều được bố trí cửa sổ lấy sáng lấy thoáng tốt. Còn lại phía bên phải là vị trí đặt khu vực bếp. Khu vực bếp rộng rãi 32m2. Cạnh đó là khu vực sân ướt và khu vệ sinh chung của cả nhà. Từ đây có lối đi ra sân sau nhà. Lối giao thông phân chia thành luồng thuận tiện cho tất cả thành viên trong gia đình.
Trên đây là bản thiết kế mẫu nhà vườn 1 tầng diện tích 9m x 18,6m của gia đình nhà chú Đức tại Lâm Đồng. Hy vọng đây sẽ là gợi ý phù hợp cho các bạn khi đang muốn xây dựng ngôi nhà phong cách và kích thước tương tự. Cảm ơn và chúc các bạn thành công!
