MẪU NHÀ BA GIAN HAI CHÁI TẠI MỸ ĐỨC HÀ NỘI
Với kiến trúc nhà ở, ngoài chạy theo xu hướng hiện đại, thì cũng không ít chủ đầu tư vẫn muốn giữ nguyên đường nét của chất cổ truyền dân gian, giữ lại những gì tinh hoa của xưa cũ. Đội ngũ kiến trúc rất vui khi được giúp điều đó cho công trình nhà chú Nguyên có địa chỉ tại Mỹ Đức, Hà Nội. Với công trình 3 gian 2 chái kích thước 9,4m x 16,2m, hy vọng các bạn sẽ tìm được nguồn cảm hứng riêng cho công trình tương lai của nhà mình.

Mẫu ba gian hai chái với mặt tiền 16,2m
THÔNG TIN CÔNG TRÌNH NHÀ BA GIAN HAI CHÁI DIỆN TÍCH 9,4M X 16,2M
- Chủ đầu tư: chú Nguyên
- Địa điểm: Mỹ Đức, Hà Nội
- Năm thiết kế: 2020
- Diện tích thiết kế: 9,4m x 16,2m
- Công năng: 4 phòng ngủ, 1 phòng thờ, 1 phòng khách (khu phụ đặt bên ngoài).
YÊU CẦU THIẾT KẾ CHO NGÔI NHÀ VƯỜN 9,4X16,2M
Chú Nguyên tìm đến công ty chúng tôi với những mong muốn cho ngôi nhà của mình cụ thể như sau:
- Gia đình muốn thi công mẫu nhà ba gian hai chái với diện tích 9,4m x 16,2m.
- Khu đất của gia đình khá rộng, nên muốn ngôi nhà thật sự nổi bật và sang trọng.
- Công năng dự kiến thi công là 4 phòng ngủ, 1 phòng thờ, 1 phòng khách.
- Ngoại thất công trình màu nhẹ nhàng, thanh thoát, gần gũi với thiên nhiên.

Mẫu nhà ba gian hai chái diện tích 9,4x16,2m
Ngay sau khi tiếp nhận yêu cầu tư vấn thiết kế của chủ đầu tư, chúng tôi đã đến hiện trạng bắt tay vào khảo sát khu vực thi công công trình, từ đó đưa ra các phương án sơ bộ cho chủ đầu tư lựa chọn. Sau khi được tư vấn cụ thể kỹ càng cho công trình nhà mình, chú Nguyên nhanh chóng chốt phương án chọn, và chúng tôi tiến hành đưa ra bản vẽ chi tiết.

Tổng thể ngôi nhà là hình thức 3 gian 2 chái thân thuộc. Hệ mái Thái độ dốc cao tạo bố cục cân xứng cho công trình. Mái đua ra rộng, tối ưu độ mở của không gian. Màu ngói đổ gạch truyền thống được lựa chọn phù hợp với phong cách ba gian 2 chái, để người nhìn luôn cảm nhận được sự ấm áp thân quen của không khí cổ xưa. Màu ngói hòa với tông màu ngoại thất nhẹ nhàng, chúng tôi tư vấn cho chú Nguyên về màu sơn ngoại thất, ưu tiên cho gam màu trung tính, đó là kem và trắng sứ. Tuy nhiên, chất hiện đại vẫn được thể hiện qua các chi tiết nhỏ. Toàn bộ thân nhà được bật lên bằng những đường kẻ chỉ lõm màu nâu đậm. Đặc biết chạy dọc từ trên mái xuống cửa sổ là những mảng tường được ốp gạch tạo điểm nhấn rõ rệt cho ngoại thất công trình. Với những chất liệu được sử dụng hiện đại và rộng rãi trên thị trường, toàn bộ hệ cửa sổ cho ngôi nhà chú Nguyên được dùng chất liệu nhôm xingfa bền đẹp và lấy sáng khá tốt. Đế công trình cũng được ốp hoàn toàn bằng đá tự nhiên, phù hợp với hệ thống ngũ cấp cao ráo và chắc chắn.
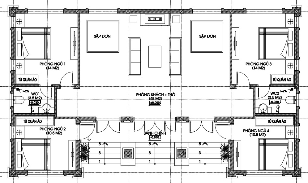
MẶT BẰNG CÔNG NĂNG NHÀ BA GIAN HAI CHÁI DIỆN TÍCH 9,4M X 16,2M

Không gian trung tâm là khu vực nhà 3 gian đậm chất truyền thống Việt. Gian giữa là vị trí để sập thờ và bàn tiếp khách. 2 gian bên cạnh là vị trí để sập đơn. Nội thất thích hợp lựa chọn cho phong cách này vẫn là chất liệu gỗ ấm áp. Còn lại là khu vực các phòng ngủ. 2 bên chái được bố trí sắp xếp tương tự nhau. Với mỗi bên là 2 phòng ngủ, Một phòng ngủ nhỏ rộng 10,5m2 có lỗi riêng đi ra trực tiếp sân ngoài. Một phòng ngủ master rộng 15m2 có wc riêng rộng 3,5m2. Tất cả các không gian trong công trình đều được bố trí cửa sổ lấy sáng và lưu thông không khí thuận lợi. Bố cục công trình được phân chia khá dễ di chuyển, đơn giản cho phong cách ba gian 2 chái.
Và nếu quý vị cũng đang quan tâm mấu nhà cần xây dựng theo phong cách này thì hy vọng đây sẽ là 1 gợi ý lý tưởng. Mọi ý kiến đóng góp quý vị có thể để lại dưới phần bình luận. cần tư vấn thiết kế thi công quý vị hãy để lại sđt hoặc liên hệ hotline của Nhà Đẹp 4.0 để chúng tôi có thể hỗ trợ trực tiếp. Chúc các bạn thành công!
