MẪU NHÀ 1 TẦNG TẠI HẢI PHÒNG ĐẸP NGẤT NGÂY
Mẫu nhà cấp 4 kiểu Nhật Bản được thiết kế theo kiểu nhà vườn sẽ làm bạn phải thích thú bởi kinh phí tiết kiệm nhưng vẫn đảm bảo sự độc đáo khác biệt. Phong cách trẻ trung pha chút mộc mạc của cỏ cây, mang tới một không gian thoáng đãng và trong lành. Dưới đây là căn biệt thự vườn 1 tầng được Nhà Đẹp 4.0 thiết kế cho gia đình chú Ninh tại Hải Phòng. Mời quý vị và các bạn cùng chiêm ngưỡng.

Mẫu nhà vườn mái Nhật hiện đại
THÔNG TIN CÔNG TRÌNH NHÀ VƯỜN 1 TẦNG DIỆN TÍCH 13M X 15,5M
- Chủ đầu tư: chú Ninh
- Địa điểm: Hải Phòng
- Năm thiết kế: 2020
- Diện tích thiết kế: 13m x 15,5m
- Công năng: 2 phòng ngủ, 1 phòng thờ, 1 phòng khách, 1 phòng bếp.
YÊU CẦU THIẾT KẾ CHO NGÔI NHÀ VƯỜN 13 X 15,5M
Chú Ninh đến công ty chúng tôi với những mong muốn cho ngôi nhà của mình cụ thể như sau:
- Gia đình muốn thi công mẫu nhà vườn mái Nhật với diện tích 13 x 15,5m.
- Khu đất của gia đình khá rộng, nên muốn ngôi nhà thật sự nổi bật và sang trọng.
- Mang hơi hướng hiện đại nhưng vẫn mang một chút tân cổ, đơn giản nhưng vẫn thu hút, độc đáo.
- Công năng dự kiến thi công là 2 phòng ngủ, 1 phòng thờ, 1 phòng khách.
- Ngoại thất công trình màu nhẹ nhàng, thanh thoát, gần gũi với thiên nhiên.


Ngay sau khi tiếp nhận yêu cầu tư vấn thiết kế của chủ đầu tư, chúng tôi đã đến hiện trạng bắt tay vào khảo sát khu vực thi công công trình, từ đó đưa ra các phương án sơ bộ cho chủ đầu tư lựa chọn. Sau khi được tư vấn cụ thể kỹ càng cho công trình nhà mình, chú Ninh nhanh chóng chốt phương án chọn, và chúng tôi tiến hành đưa ra bản vẽ chi tiết.


Khuôn viên đất là một thách thức cho các kiến trúc sư, khi chủ nhà rất quan trọng hướng nhà và các công năng bên trong. Bằng tâm huyết và sự tính toán kỹ lưỡng, chủ nhà cùng chúng tôi đã cho ra một tác phẩm hợp ý như mong muốn.
Hệ thống mái là điểm nhìn đầu tiên gây ấn tượng lớn. Hệ mái Nhật sang trọng phù hợp cho việc xây dựng một ngôi nhà hiện đại. Màu sắc ngoại thất công trình rõ nét, cá tính, bật lên trên nền trắng là những gờ đắp nổi khỏe khoắn. Dưới cửa sổ là những mảng tường được ốp gạch thẻ tối màu. Sử dụng tông màu đơn giản nhưng lại vô cùng hiện đại, bắt mắt. Hoàn toàn phù hợp với những hình khối, cách bố trí các mảng tường. Công trình được thiết kế hệ tam cấp cùng cột giấu khéo léo bằng cách ốp toàn bộ bằng đá tự nhiên. Ngoài bố cục khỏe khoắn của các chi tiết, thì chúng tôi cũng khá quan tâm tới cảm giác của gia đình gia chủ, nên từ sảnh phụ cho đến khuôn viên đất, chúng tôi đều bố trí những khoảng xanh bắt mắt, đồng thời ở hông nhà là hệ thống lam hoa leo, giúp cuộc sống của mọi người luôn thoải mái, dễ chịu gần gũi với thiên nhiên.
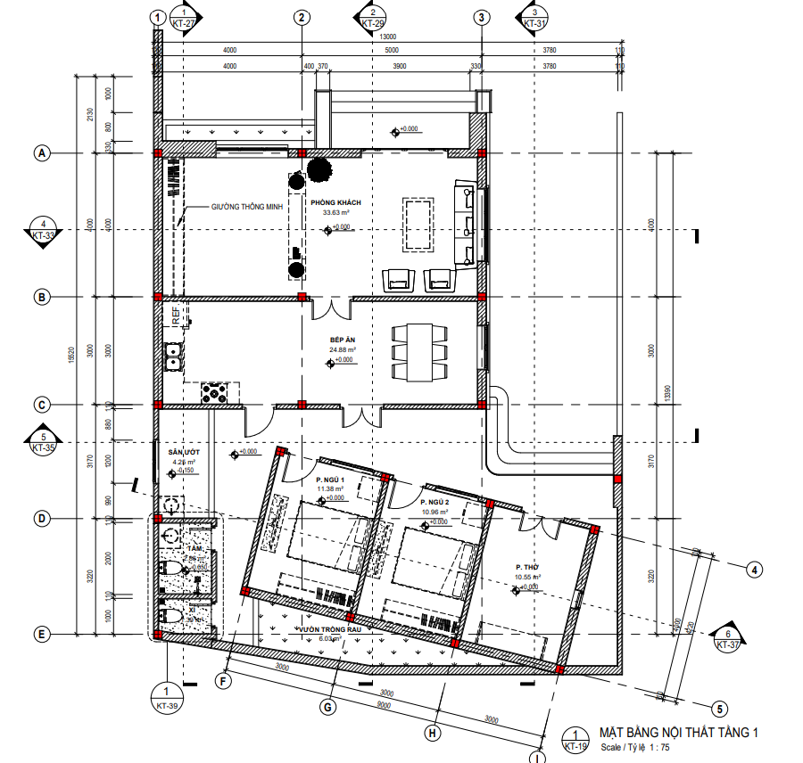
MẶT BẰNG CÔNG NĂNG NHÀ VƯỜN DIỆN TÍCH 13 X 15,5M
.png)
Bước từ ngoài vào trong là phòng khách thiết kế rộng rãi với diện tích 33,63m2. Không gian phòng khách là nơi đầu tiên để cả nhà gặp gỡ, chào đón khách, nên sự sắp xếp đồ đạc cần gọn gàng. Phòng khách sẽ được ngăn cách với các không gian bên trong bằng bức vách riêng biệt. Đi vào bên trong không gian tiếp theo sẽ là không gian bếp ăn. Khu vực bếp ăn xấp xỉ 25m2. Bếp ăn bố trí thoải mái với bàn bếp và bàn ăn. Từ bếp có lối riêng ra sân ướt và 1 lối ra các vị trí phòng ngủ. Khu vệ sinh chung của công trình được đặt vị trí góc khuất. 2 phòng ngủ và phòng thờ được đặt cạnh nhau, với 2 phòng ngủ có kích thước tương đương 11m2. Phòng thờ với diện tích 10,5m2 đặt hướng hợp mệnh với gia chủ. Từ đây cũng có lối ra sảnh phụ rộng rãi. Ngoài ra phía sau nhà, tận dụng những góc cạnh của ô đất, chúng tôi bố trí khoảng trồng rau, vừa tăng tính thẩm mĩ, vừa đáp ứng nhu cầu nhỏ cho gia đình.
.png)
Và chúng ta vừa được chiêm ngưỡng mẫu biệt thự 1 tầng diện tích 13x15,5m của gia đình chú Ninh tại Hải Phòng. Hy vọng sẽ là gợi ý phù hợp cho các bạn khi đang muốn xây dựng ngôi nhà phong cách và kích thước tương tự. Mọi ý kiến đóng góp quý vị có thể để lại dưới phần bình luận, hoặc đang cần tư vấn về thiết kế thi công, quý vị hãy liên hệ với hotline của Nhà Đẹp 4.0 để chúng tôi có thể hỗ trợ trực tiếp. Chúc các bạn thành công!
