MẪU NHÀ 1 TẦNG ĐƠN GIẢN NHẸ NHÀNG VÙNG ĐẤT ĐÀ LẠT
Ngày nay với sự đa dạng và chuyển biến của kiến trúc nhà ở thì các mẫu nhà cấp 4 đang là xu thế được sự quan tâm của các chủ đầu tư. Bởi đây là những thiết kế có chi phí hoàn thiện rẻ cũng như rất dễ thi công. Ngày hôm nay chúng tôi xin giới thiệu với quý vị và các bạn một mẫu thiết kế nhà ở 1 tầng được các kiến trúc sư của Nhà Đẹp 4.0 thiết kế cho gia đình anh Sơn có địa chỉ tại Đà Lạt, chắc chắn sẽ có những ý tưởng mới cho mọi người về căn nhà tương lai của mình. Mời quý vị và các bạn cùng tham khảo.

Mẫu nhà vườn mái Thái với mặt tiền 7m
THÔNG TIN CÔNG TRÌNH NHÀ CẤP 4 MÁI THÁI DIỆN TÍCH 7M X 10,7M
- Chủ đầu tư: anh Sơn
- Địa điểm: Đà Lạt
- Năm thiết kế: 2020
- Diện tích thiết kế: 7m x 10,7m
- Công năng: 2 phòng ngủ, 1 phòng khách, 1 phòng thờ, 1 phòng bếp riêng biệt.
YÊU CẦU THIẾT KẾ CHO NGÔI NHÀ VƯỜN 7X10,7M
Anh Sơn tìm đến công ty chúng tôi với những mong muốn cho ngôi nhà của mình cụ thể như sau:
- Gia đình muốn thi công mẫu nhà vườn mái Thái với diện tích 7m x 10,7m.
- Khu đất của gia đình khá rộng, nên muốn ngôi nhà thật sự nổi bật và sang trọng.
- Mang hơi hướng hiện đại, đơn giản nhưng vẫn thu hút, độc đáo.
- Công năng dự kiến thi công là 2 phòng ngủ, 1 phòng khách, 1 phòng thờ, 1 phòng bếp riêng biệt các không gian.
- Ngoại thất công trình màu nhẹ nhàng, thanh thoát, gần gũi với thiên nhiên.

Mặc dù kiến trúc không quá phức tạp, tuy nhiên nhà cấp 4 lại có rất nhiều phong cách xây dựng khác nhau, từ phong cách cổ điển Châu Âu hay lối kiến trúc Châu Á…đều vô cùng đa dạng và hài hoà, thân thiện với không gian sống và phù hợp với nền văn hoá của người Việt. Đây cũng là một trong những ưu điểm nổi bật của mẫu nhà cấp 4 so với các mẫu nhà khác hiện nay. Đi theo lối đơn giản là nhu cầu hầu hết của các chủ đầu tư khi sở hữu căn nhà vườn 1 tầng.
Với cái nhìn bao quát tổng thể, chúng ta có thể nhìn thấy hình khối mẫu thiết kế nhà toát lên những nét thanh tao và hiện đại. Hình khối kiến trúc kiên cố, từ thiết kế hệ thống mảng khối cho đến bố cục tường, vách đều được tính toán chi tiết và cẩn thận.
Kiến trúc mái thái thiết kế khối mái chữ A được xếp chồng 2 lớp mái, khối đua rộng cùng với màu sắc hiện đại tạo nên những điểm nhấn mạnh mẽ, tinh tế và bề thế cho công trình nhà anh Sơn. Cách kết hợp màu sắc vô cùng ăn ý, với lớp nền sơn trắng thanh thoát và điểm nhấn ấm nóng mạnh mẽ, dễ gây thu hút cho người nhìn từ những dịp đầu tiên.
Mặt tiền và ngoại thất ăn nhập với nhau một cách ăn ý, trong tổng thể cảnh quan sân vườn tươi mát, mẫu nhà hoàn toàn chinh phục được chủ đầu tư.
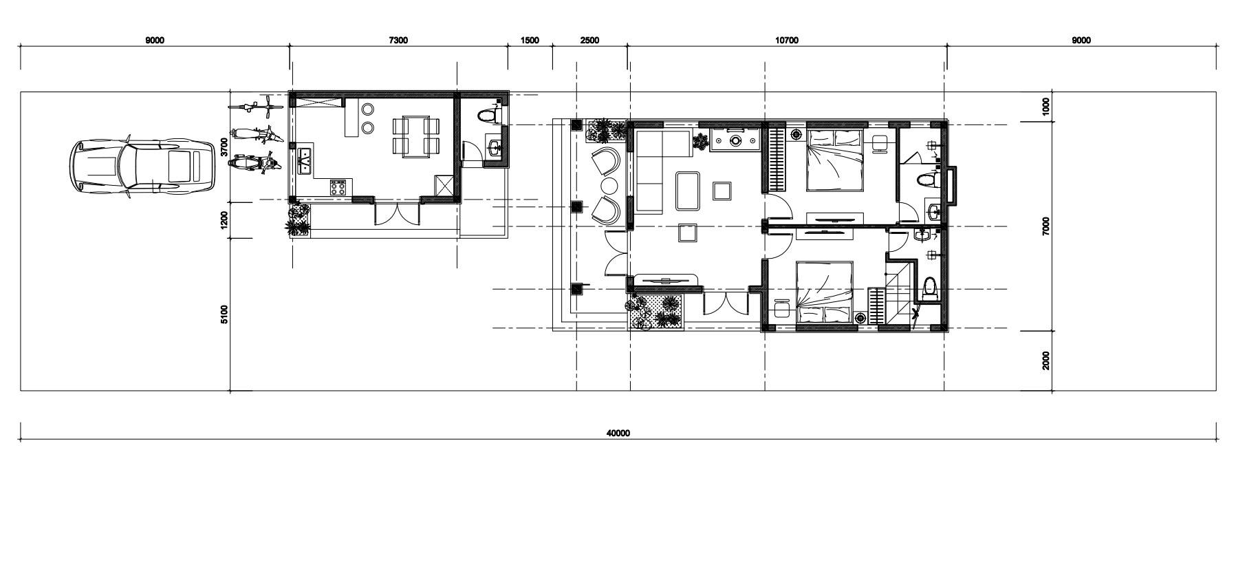
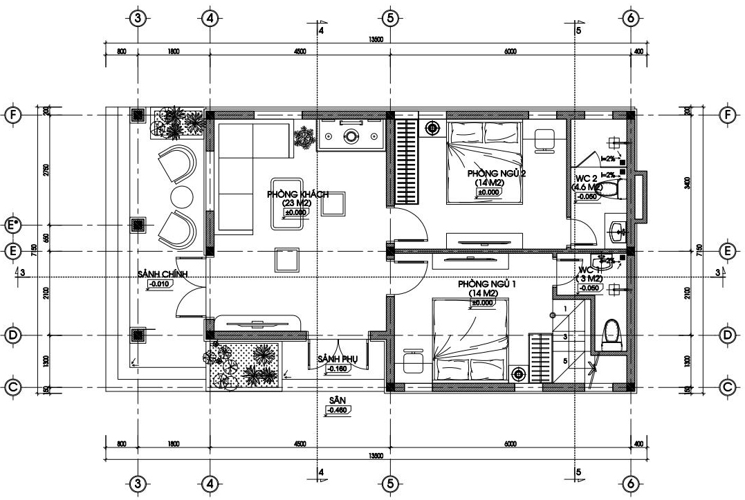
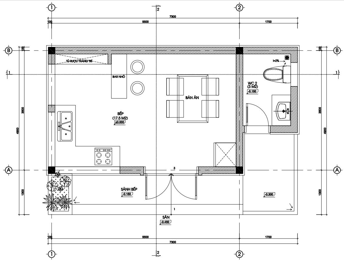
MẶT BẰNG CÔNG NĂNG BIỆT THỰ VƯỜN 1 TẦNG DIỆN TÍCH 7M X 10,7M

Tổng mặt bằng công trình

Bố trí khu ở

Bố trí khu bếp
Nhìn vào bản vẽ chúng ta có thể nhận thấy cách bài trí công năng ngôi nhà khá phù hợp. Bước từ ngoài vào trong là phòng khách kết hợp phòng thờ thiết kế rộng rãi với diện tích 23m2. Không gian phòng khách được thiết kế với 1 hệ cửa sổ lớn và 1 cửa sổ nhỏ. Không gian phòng khách được tạo mở bởi khu cây xanh bên ngoài, tăng thêm sự thoải mái và thoáng đãng cho ngôi nhà.
Bên phải là sảnh phụ rộng rãi. Và đi sâu vào trong là các không gian phòng ngủ. Mỗi phòng ngủ rộng 14m2 được bố trí sắp xếp tương tự nhau. Tất cả các phòng ngủ đều được bố trí cửa sổ lấy sáng lấy thoáng tốt. Còn lại khu vực bếp được đặt riêng biệt. Khu vực bếp rộng rãi 17,5m2 được đặt thoải mái bàn ăn, bàn bar và bàn bếp.
Trên đây là bản thiết kế mẫu nhà vườn 1 tầng diện tích 7m x 10,7m của gia đình nhà anh Sơn tại Đà Lạt. Hy vọng đây sẽ là gợi ý phù hợp cho các bạn khi đang muốn xây dựng ngôi nhà phong cách và kích thước tương tự. Cảm ơn và chúc các bạn thành công!
