MẪU CẤP 4 MÁI THÁI BÁN TÂN CỔ ĐIỂN
Biệt thự, nhà vườn 1 tầng vẫn luôn là chủ đề nóng cho những ý tưởng xây nhà ở hiện nay, không biết các bạn đã có được ý tưởng cho gia đình mình chưa ạ? Để mọi người nhanh chóng có được sự lựa chọn cho mình, chúng tôi xin công khai hồ sơ thiết kế mẫu nhà vườn mái Thái với kích thước 9m x 14m. Được công ty cổ phần tư vấn thiết kế kiến trúc và nội thất Nhà Đẹp 4.0 thiết kế cho gia đình nhà anh Tuấn có địa chỉ tại Hải Phòng. Mời quý các bạn cùng tham khảo.
.jpg)
Mẫu nhà vườn mái Thái với mặt tiền 14m
THÔNG TIN CÔNG TRÌNH NHÀ CẤP 4 MÁI THÁI DIỆN TÍCH 9M X 14M
- Chủ đầu tư: anh Tuấn
- Địa điểm: Hải Phòng
- Năm thiết kế: 2020
- Diện tích thiết kế: 9m x 14m
- Công năng: 4 phòng ngủ, 1 phòng thờ, 1 phòng khách (khu phụ đặt bên ngoài).
YÊU CẦU THIẾT KẾ CHO NGÔI NHÀ VƯỜN 9X14M
Anh Tuấn tìm đến công ty chúng tôi với những mong muốn cho ngôi nhà của mình cụ thể như sau:
- Gia đình muốn thi công mẫu nhà vườn mái Thái với diện tích 9m x 14m.
- Khu đất của gia đình khá rộng, nên muốn ngôi nhà thật sự nổi bật và sang trọng.
- Mang hơi hướng hiện đại nhưng vẫn mang một chút tân cổ, đơn giản nhưng vẫn thu hút, độc đáo.
- Công năng dự kiến thi công là 4 phòng ngủ, 1 phòng thờ, 1 phòng khách.
- Ngoại thất công trình màu nhẹ nhàng, thanh thoát, gần gũi với thiên nhiên.
.jpg)
Mẫu nhà vườn mái Thái hiện đại diện tích 9x14m
Ngay sau khi tiếp nhận yêu cầu tư vấn thiết kế của chủ đầu tư, chúng tôi đã đến hiện trạng để khảo sát khu vực thi công công trình, từ đó đưa ra các phương án sơ bộ cho chủ đầu tư lựa chọn.
Sau khi chốt phương án tư vấn, chúng tôi tiến hành họp bàn và chốt phương án 3D chi tiết.
.jpg)
Với thiết kế hệ mái Thái độ dốc cao, cùng 2 sảnh chính cho công trình sẽ giúp công trình thông thoáng hơn rất nhiều, thiết kế đơn giản nhưng vẫn có sức hút độc đáo, sang trọng. Hệ mái được bố trí 2 mái xếp lớp, vừa tạo bố cục hài hòa cân đối, vừa mang điểm nhấn độc đáo cho ngôi nhà.
Công trình được thiết kế hệ ngũ cấp cùng với 2 cột chính. Toàn bộ đế công trình được ốp đá không chỉ mang lại tính thẩm mĩ mà còn ngăn thấm nước giảm bớt sự ảnh hưởng cho chất lượng của công trình trong thời gian sử dụng.
Mái ngói màu xanh dương kết hợp cùng tone màu trắng sứ sẽ tạo nên sự nổi bật và hơi hướng hiện đại. Ngoài gam màu trắng sứ, trên các đầu cột còn được nhấn thêm bởi màu vàng tươi. Dưới hệ mái cũng được kết hợp giữa màu vàng nhạt và xanh đậm để tại điểm nổi bật. Trên và dưới hệ cửa sổ sẽ được ốp gạch thẻ màu nâu ghi, góp phần lấy lại được sự ấm áp và sang trọng cho công trình. Việc kết hợp màu sắc này giúp công trình của chúng ta không chỉ mạnh mẽ, bề thế, mà còn rất cuốn hút và nổi bật.
Từ màu sắc, cho đến hình khối, công trình nhà anh Tuấn bật lên hơi hướng hiện đại. Nhưng bên cạnh đó, các chi tiết, điểm nhấn ở phào chỉ hoa văn chạy dọc trên cột cũng như mi cửa, đã thổi được phần nào hướng tân cổ vào lớp áo ngoài của ngôi nhà, khiến ngôi nhà trở nên sang trọng và nổi bật hơn.
Đáp ứng nhu cầu thông thoáng gần gũi với thiên nhiên, chúng tôi bố trí ở phía trước nhà khoảng đất trồng cây cùng dàn hoa phía sảnh phụ, giúp không gian sinh hoạt trở nên thoải mái và dễ chịu, chinh phục mọi góc nhìn xung quanh.
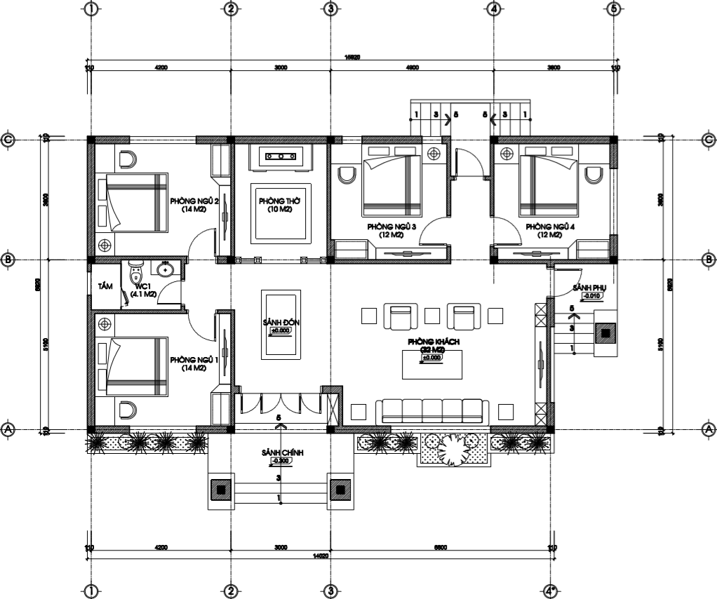
MẶT BẰNG CÔNG NĂNG NHÀ CẤP 4 MÁI THÁI DIỆN TÍCH 9M X 14M
.png)
Nhìn vào bản vẽ chúng ta có thể nhận thấy cách bài trí công năng ngôi nhà khá phù hợp. Bước từ ngoài vào trong là phòng khách thiết kế rộng rãi với diện tích lên tới 32m2. Không gian phòng khách được thiết kế tối giản với 1 hệ cửa sổ lớn tạo sự thoải mái và thoáng đãng cho ngôi nhà.
Phía bên phải sẽ có 2 phòng ngủ có kích thước tương tự nhau (12m2), cùng 1 sảnh hướng sân trước, và 1 lối đi ra công trình phụ phía sau nhà.
Phía bên trái sẽ là 1 phòng thờ (10m2), phòng thờ trước sảnh đón sẽ tiện cho việc hương khói của gia đình cũng như khi có khách khứa tới thăm. Và cuối cùng là 2 phòng ngủ lớn cũng có kích thước như nhau ( 14m2) và 1 wc chung ở giữa.
.jpg)
Phối cảnh bố trí công năng + nội thất nhà vườn mái Thái diện tích 9x14m
Toàn bộ các phòng trong ngôi nhà của anh Tuấn đều có cửa sổ thông ra bên ngoài, điều này mang đến một không gian tràn ngập không khí trong lành, ngôi nhà như hòa mình với thiên nhiên, mang đến một cảm giác dễ chịu khi trở về nhà sau ngày dài học tập và làm việc.
Trên đây là bản thiết kế mẫu nhà vườn 1 tầng mái Thái diện tích 9x14m cho gia đình nhà anh Tuấn có địa chỉ tại Hải Phòng. Với những gì chúng tôi đã chia sẽ, hy vọng mọi người đã có ý tưởng và dự định cho bản thân và sớm sở hữu cho mình một ngôi nhà lý tưởng. Chúc các bạn thành công!
Link youtube reivew chi tiết hồ sơ thiết kế nhà anh Tuấn tại Hải Phòng:
