MẪU CẤP 4 ĐẸP NỔI BẬT TẠI HẢI HÀ,QUẢNG NINH
Nhà cấp 4 hiện tại đang là mô hình nhà được ưa chuộng rất nhiều tại Việt Nam. Đặc biệt nhà cấp 4 mái Thái đang được lòng của rất nhiều nhà thiết kế và chủ đầu tư. Để mọi người nhanh chóng có được sự lựa chọn cho mình, chúng tôi xin công khai hồ sơ thiết kế mẫu nhà cấp 4 mái Thái với kích thước 13m x 16m.
.jpg)
Mẫu nhà cấp 4 mái Thái với mặt tiền 16m
THÔNG TIN CÔNG TRÌNH NHÀ CẤP 4 MÁI THÁI DIỆN TÍCH 13M X 16M
Chủ đầu tư: Lê Huy Đức
Địa điểm: Hải Hà – Quảng Ninh
Năm thiết kế: 2020
Diện tích thiết kế: 13m x 16m
Công năng: 4 phòng ngủ, 1 phòng thờ, 1 phòng khách, 1 phòng bếp, 1 wc riêng.
Chi phí hoàn thiện dự kiến: 1,2 tỷ
YÊU CẦU THIẾT KẾ CHO NGÔI NHÀ CẤP 4 13X16M
Anh Đức tìm đến công ty chúng tôi với những mong muốn cho ngôi nhà của mình cụ thể như sau:
- Gia đình muốn thi công mẫu nhà cấp 4 mái Thái với diện tích 13m x 16m.
- Khu đất của gia đình rất rộng, nên muốn ngôi nhà thật sự nổi bật và sang trọng.
- Mang hơi hướng hiện đại, đơn giản nhưng vẫn thu hút, độc đáo.
- Công năng dự kiến thi công là 4 phòng ngủ, 1 phòng thờ, 1 phòng khách, phòng bếp và wc chung thiết kế thông thoáng và có sự tách biệt với cách không gian khác.
- Ngoại thất công trình màu trắng chủ đạo, khỏe khoắn, gần gũi với thiên nhiên.
- Chi phí hoàn thiện dự tính không vượt quá 1,5 tỷ.
.jpg)
Phối cảnh 3d mẫu nhà cấp 4 mái Thái hiện đại diện tích 13x16m
Ngay sau khi tiếp nhận yêu cầu tư vấn thiết kế của chủ đầu tư, chúng tôi đã đến hiện trạng để khảo sát khu vực thi công công trình, từ đó đưa ra các phương án sơ bộ cho chủ đầu tư lựa chọn.
Sau khi chốt phương án tư vấn, chúng tôi tiến hành họp bàn và chốt phương án 3D chi tiết.
.jpg)
Với thiết kế hệ mái Thái độ dốc cao, cùng 2 sảnh chính cho công trình sẽ giúp công trình thông thoáng hơn rất nhiều, thiết kế đơn giản nhưng vẫn có sức hút độc đáo, sang trọng. Hệ mái được bố trí 2 mái chính và 1 mái phụ, vừa tạo bố cục hài hòa cân đối, vừa mang điểm nhấn độc đáo cho ngôi nhà.
Công trình được thiết kế hệ ngũ cấp cùng với 2 cột chính. Toàn bộ đế công trình được ốp đá không chỉ mang lại tính thẩm mĩ mà còn ngăn thấm nước giảm bớt sự ảnh hưởng cho chất lượng của công trình trong thời gian sử dụng.
Mái ngói màu ghi kết hợp cùng tone màu trắng sứ sẽ tạo nên sự nổi bật và hơi hướng hiện đại. Ngoài màu trắng sứ, thân nhà còn được bật lên bởi màu của cửa sổ hệ nhôm xingfa, màu café đậm trên các viền cửa sổ, đường kẻ chỉ, trên 2 cột chính của ngôi nhà. Đồng thời trên các hệ cửa sổ và cửa sổ giả cũng được ốp gạch thẻ cùng màu café đậm tạo điểm nhấn nổi bật. Việc kết hợp màu sắc này giúp công trình của chúng ta không chỉ mạnh mẽ, bề thế, mà còn rất cuốn hút và nổi bật.
Đáp ứng nhu cầu thông thoáng gần gũi với thiên nhiên, chúng tôi không quên đặt ở phía trước nhà khoảng đất trồng cây cùng dàn hoa phía bếp, giúp không gian sinh hoạt trở nên thoải mái và dễ chịu, chinh phục mọi góc nhìn xung quanh.
.jpg)
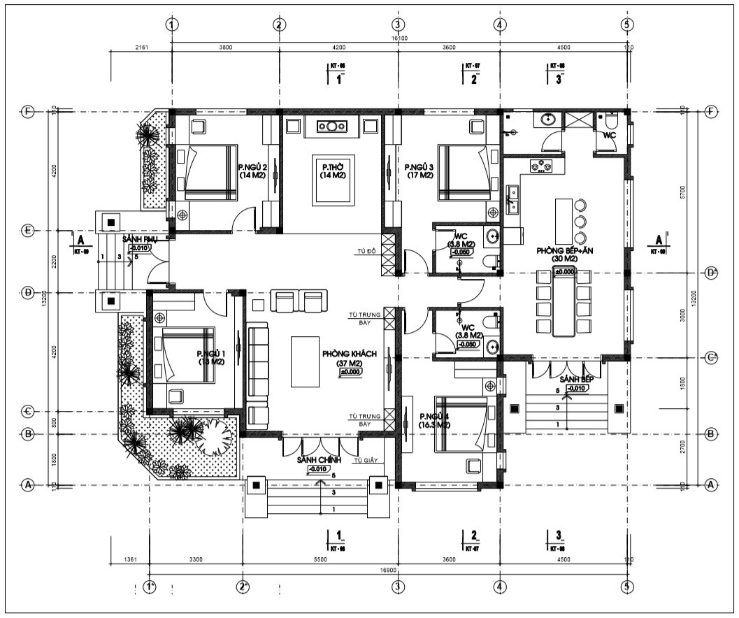
MẶT BẰNG CÔNG NĂNG NHÀ CẤP 4 MÁI THÁI DIỆN TÍCH 13M X 16M
.jpg)
Nhìn vào bản vẽ chúng ta có thể nhận thấy cách bài trí công năng ngôi nhà khá phù hợp. Bước từ ngoài vào trong là phòng khách thiết kế rộng rãi với diện tích 37m2. Không gian phòng khách được thiết kế tối giản tạo sự thoải mái và thoáng đãng cho ngôi nhà.
Đối diện phòng khách là phòng thờ (14m2) tạo sự thuận tiện mỗi khi thắp hương của chính gia chủ và những người thân thích khác. Bên trái ngôi nhà được bố trí hai phòng ngủ đối diện nhau (13m2 và 14m2), bên phải là hai phòng ngủ master đối diện với nhau (17m2). Còn lại khu vực bếp và wc chung được đặt tách biệt với các không gian khác. Như vậy, công năng bên trong được chia làm hai bên, ở giữa là lối đi rộng rãi, đảm bảo việc di chuyển giữa các phòng với nhau được thuận tiện nhất.
.jpg)
Phối cảnh bố trí công năng + nội thất nhà cấp 4 mái Thái diện tích 13x16m
Điều đặc biệt đó là thiết kế tất cả các phòng trong ngôi nhà của anh Đức đều có cửa sổ thông ra bên ngoài, điều này mang đến một không gian tràn ngập không khí trong lành, ngôi nhà như hòa mình với thiên nhiên, mang đến một cảm giác dễ chịu khi trở về nhà sau ngày dài học tập và làm việc.
Trên đây là bản thiết kế mẫu nhà cấp 4 mái Thái diện tích 13x16m cho gia đình nhà anh Đức. Với những gì chúng tôi đã chia sẽ, hy vọng mọi người đã có ý tưởng và dự định cho bản thân và sớm sở hữu cho mình một ngôi nhà lý tưởng. Chúc các bạn thành công!
Link youtube review chi tiết hồ sơ thiết kế công trình nhà anh Đức:
