MẪU BIỆT THỰ ĐẸP NỨC LÒNG NGƯỜI NHÌN
Với một khoảng đất không hề lớn, bạn phân vân không biết mình nên xây cho gia đình một ngôi nhà như thế nào, để vừa tạo sự thoải mái cho sinh hoạt vừa đạt được tính thẩm mĩ?
Hôm nay, chúng tôi xin giới thiệu với quý vị mẫu biệt thự 2 tầng mái Nhật được đội ngũ kiến trúc sư của Nhà Đẹp 4.0 thiết kế cho gia đình nhà anh Tuấn có địa chỉ tại Mê Linh – Hà Nội, với kích thước 7,8m x 13,8m. Mời các bạn cùng tham khảo.
.jpg)
Mẫu biệt thự 2 tầng hiện đại mái Nhật diện tích 7,8 x 13,8m
THÔNG TIN CÔNG TRÌNH BIỆT THỰ 2 TẦNG DIỆN TÍCH 7,8M X 13,8M
- Chủ đầu tư: anh Tuấn
- Điạ điểm: Mê Linh
- Năm thiết kế: 2020
- Diện tích thiết kế: 7,8m x 13,8m
- Công năng: 4 phòng ngủ, 1 phòng khách, 1 phòng thờ, 1 phòng bếp.
YÊU CẦU THIẾT KẾ CHO BIỆT THỰ 2 TẦNG DIỆN TÍCH 7,8M X 13,8M
Anh Tuấn tìm đến công ty chúng tôi với yêu cầu và mong muốn về ngôi nhà của mình như sau:
- Gia đình muốn thi công mẫu nhà biệt thự 2 tầng với diện tích xây dựng hơn 100m2.
- Với thế đất nhà mình, phát triển ngôi nhà theo chiều sâu, anh Tuấn muốn ngôi nhà của mình thực sự nổi bật, thông thoáng.
- Mang hơi hướng hiện đại, 2 mặt tiền, đơn giản nhưng vẫn thu hút, độc đáo.
- Công năng dự kiến thi công là 4 phòng ngủ, 1 phòng khách, 1 phòng thờ, 1 phòng bếp.
- Ngoại thất công trình có gam màu chủ đạo nhẹ nhàng,ấm áp, nổi bật.
Phối cảnh 3d mẫu biệt thự 2 tầng diện tích 7,8 x 13,8m
Ngay sau khi tiếp nhận yêu cầu tư vấn thiết kế của chủ đầu tư, chúng tôi đã đến hiện trạng bắt tay vào khảo sát khu vực thi công công trình, từ đó đưa ra các phương án sơ bộ cho chủ đầu tư lựa chọn.
Sau khi được tư vấn rất cụ thế kỹ càng cho công trình nhà mình, anh Tuấn nhanh chóng chốt phương án chọn, và chúng tôi tiến hành họp bàn và chốt phương án 3D chi tiết.
.jpg)
Với thiết kế hệ mái Nhật độ dốc không cao, cùng 2 sảnh cho công trình sẽ giúp công trình thông thoáng hơn rất nhiều, thiết kế đơn giản nhưng vẫn có sức hút độc đáo, sang trọng.
Công trình được thiết kế hệ tam cấp cùng với 2 cột chính, giúp bố cục trở lên cân đối và thanh thoát hơn. Toàn bộ đế công trình được ốp đá không chỉ mang lại tính thẩm mĩ mà còn ngăn thấm nước giảm bớt sự ảnh hưởng cho chất lượng của công trình trong thời gian sử dụng.
Mái ngói màu xanh dương kết hợp cùng tone màu trắng sứ nhẹ nhàng sẽ tạo nên sự liên kết nổi bật và hơi hướng hiện đại. Ngoài ra, ngôi nhà còn được sử dụng màu cà phê sữa tạo điểm nhấn trên các phần phân tầng, kẻ chỉ trên thân cột và hệ lam gỗ trước sảnh phụ. Thân nhà và viền cửa sổ còn được bật lên bởi những gờ đắp nổi chạy xung quanh tạo điểm nhấn mạnh cho công trình của nhà anh Tuấn. Hệ lan can kính được bố trí trên tầng 2 giúp công trình trở nên hiện đại và sang trọng hơn.
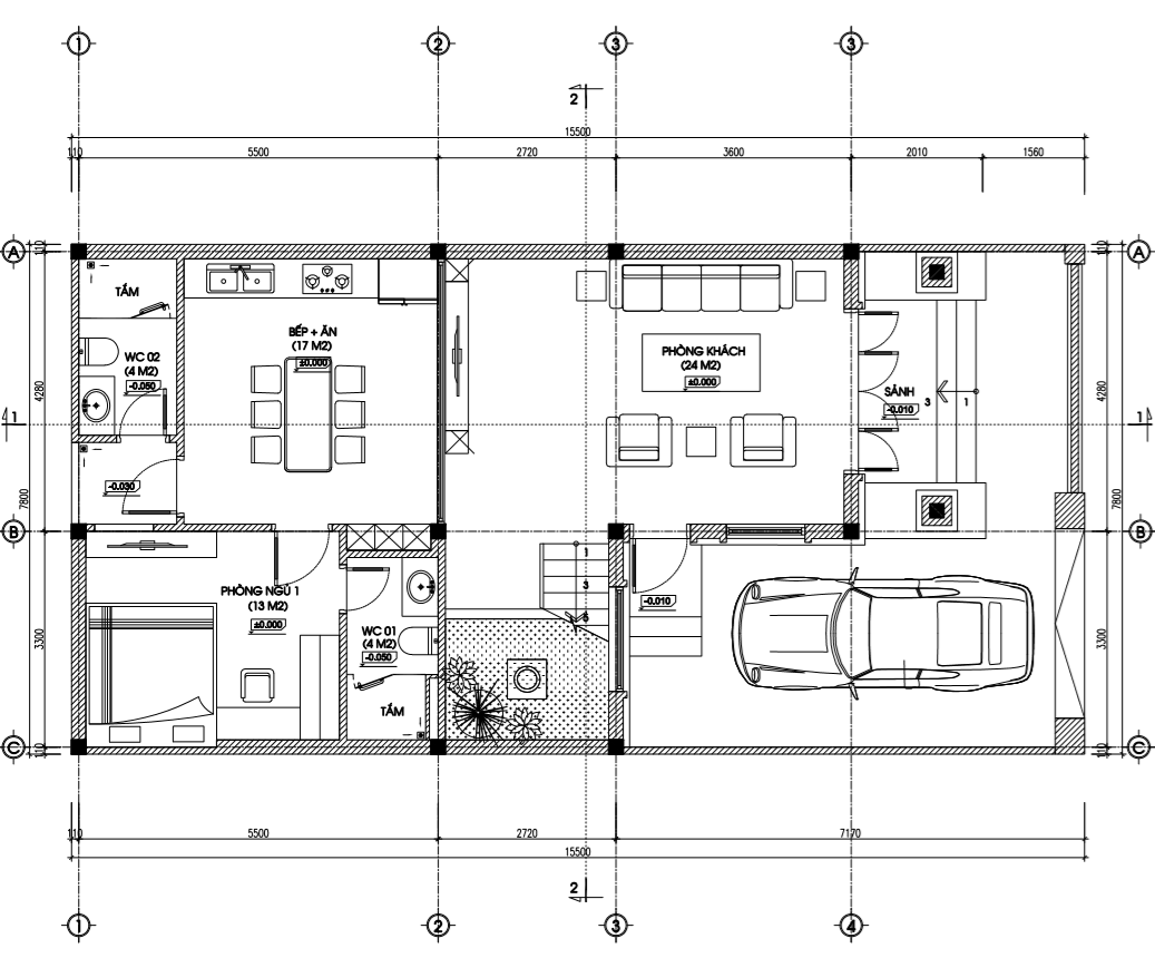
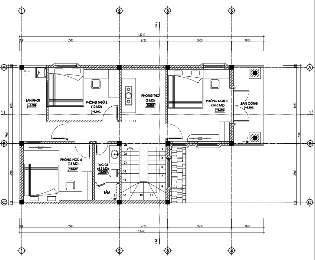
MẶT BẰNG CÔNG NĂNG BIỆT THỰ 2 TẦNG DIỆN TÍCH 7,8M X 13,8M
.png)
Mặt bằng bố trí công năng tầng 1 mẫu biệt thự 2 tầng diện tích 7,8 x 13,8m
.png)
Mặt bằng bố trí công năng tầng 2 mẫu biệt thự 2 tầng diện tích 7,8 x 13,8m
Bước từ ngoài vào trong là phòng khách thiết kế rộng rãi với diện tích 24m2. Không gian phòng khách được thiết kế tối giản, với 1 hệ cửa sổ lớn, đồng thời đươc mở bởi 2 sảnh tạo sự thoải mái và thoáng đãng cho ngôi nhà.
Tiếp đó là không gian phòng bếp (17m2) và 1 phòng ngủ (13m2) có wc riêng. Wc chung của tầng 1 đặt sau khu vực bếp (4m2).
Khu vực cầu thang của là điểm nhấn của tầng 1. Bên dưới cầu thang được chúng tôi bố trí một tiểu cảnh, non bộ, để khi chúng ta vào trong ngôi nhà vẫn cảm nhận được sức sống xanh và trong lành dễ chịu.
Tầng 2 được phân chia bố cục tương tự, với 1 phòng thờ phía trước lối cầu thang (8m2). Bên trái là 2 phòng ngủ với 1 phòng ngủ lớn (13m2) có wc riêng và 1 phòng ngủ nhỏ (12m2). Phía sau sẽ là 1 sân phơi. Bên phải là phòng ngủ cuối cùng (14,5m2) và có ban công riêng rẽ. Ban công khá rộng và thoáng, đứng từ đây sẽ quan sát được toàn bộ không gian xung quanh và phía dưới sân nhà.
.jpg)
Phối cảnh bố trí công năng + nội thất biệt thự tầng 1
.jpg)
Phối cảnh bố trí công năng + nội thất biệt thự tầng 2
Và đương nhiên, tất cả các phòng trong ngôi nhà của anh Tuấn đều có cửa sổ thông ra bên ngoài, điều này mang đến một không gian tràn ngập không khí trong lành, ngôi nhà như hòa mình với thiên nhiên, mang đến một cảm giác dễ chịu khi trở về nhà sau ngày dài học tập và làm việc.
Trên đây là bản thiết kế mẫu biệt thự 2 tầng diện tích 7,8m x 13,8m của gia đình nhà anh Tuấn tại Mê Linh. Hy vọng trên đây sẽ là gợi ý phù hợp cho các bạn khi đang muốn xây dựng ngôi nhà phong cách và kích thước tương tự. Cảm ơn và chúc các bạn thành công!
Video review chi tiết nhà anh Tuấn tại Mê Kinh,Hà Nội:
