MẪU BIỆT THỰ 1 TẦNG MÁI NHẬT TẠI BẮC NINH
Với kiến trúc nhà ở, ngoài chạy theo xu hướng hiện đại, thì cũng không ít các mẫu nhà cho chủ đầu tư lựa chọn. Và hôm nay, chúng tôi xin giới thiệu mẫu biệt thự 1 tầng mái Nhật được đội ngũ kiến trúc sư Nhà Đẹp 4.0 thiết kế cho gia đình nhà chú Thuyết tại Bắc Ninh, hy vọng các bạn sẽ tìm được nguồn cảm hứng riêng cho công trình tương lai của nhà mình.
.jpg)
Mẫu biệt thự vườn 1 tầng hiện đại 9,2m x 20m
THÔNG TIN CÔNG TRÌNH NHÀ VƯỜN DIỆN TÍCH 9,2M X 20M
Chủ đầu tư: chú Thuyết
Địa điểm: Bắc Ninh
Năm thiết kế: 2020
Diện tích thiết kế: 9,2m x 20m
Công năng: 3 phòng ngủ, 1 phòng khách, 1 phòng thờ, 1 phòng bếp.
YÊU CẦU THIẾT KẾ CHO BIỆT THỰ VƯỜN 1 TẦNG DIỆN TÍCH 9,2M X 20M
Chú Thuyết tìm đến công ty chúng tôi với yêu cầu và mong muốn về ngôi nhà của mình như sau:
- Gia đình muốn thi công mẫu nhà vườn 1 tầng với diện tích 180m2.
- Chú Thuyết muốn ngôi nhà mới nhà mình đi theo phong cách hiện đại.
- Công năng dự kiến thi công là 3 phòng ngủ, 1 phòng khách, 1 phòng thờ, 1 phòng bếp.
- Ngoại thất công trình có gam màu chủ đạo nhẹ nhàng, ấm áp.
.jpg)
Phối cảnh 3d mẫu biệt thự vườn 1 tầng diện tích 9,2 x 20m
Ngay sau khi tiếp nhận yêu cầu tư vấn thiết kế của chủ đầu tư, chúng tôi đã đến hiện trạng bắt tay vào khảo sát khu vực thi công công trình, từ đó đưa ra các phương án sơ bộ cho chủ đầu tư lựa chọn.
Sau khi được tư vấn rất cụ thế kỹ càng cho công trình nhà mình, chú Thuyết nhanh chóng chốt phương án chọn, và chúng tôi tiến hành họp bàn và chốt phương án 3D chi tiết.
.jpg)
Với thiết kế hệ mái Nhật độ dốc không cao, cùng hệ ngũ cấp cho công trình sẽ giúp công trình thông thoáng hơn rất nhiều, thiết kế đơn giản nhưng vẫn có sức hút độc đáo, sang trọng.
Toàn bộ đế công trình được ốp đá không chỉ mang lại tính thẩm mĩ mà còn ngăn thấm nước giảm bớt sự ảnh hưởng cho chất lượng của công trình trong thời gian sử dụng.
Mái ngói màu nâu kết hợp cùng tone màu trắng sứ nhẹ nhàng và màu cà phê trên các mi cửa sẽ tạo nên sự liên kết nổi bật và hơi hướng hiện đại, đồng thời cũng rất ấm áp. Ngoài ra, gam màu nâu đậm còn được sử dụng trên các đường kẻ chỉ chạy ngang thân nhà. Việc kết hợp màu sắc này giúp công trình của chúng ta không chỉ mạnh mẽ, bề thế, mà còn rất cuốn hút và nổi bật. Hệ cửa chính của ngôi nhà được sử dụng gỗ lim Nam Phi, còn lại tất cả các hệ cửa sổ được sử dụng chất liệu nhôm xingfa.
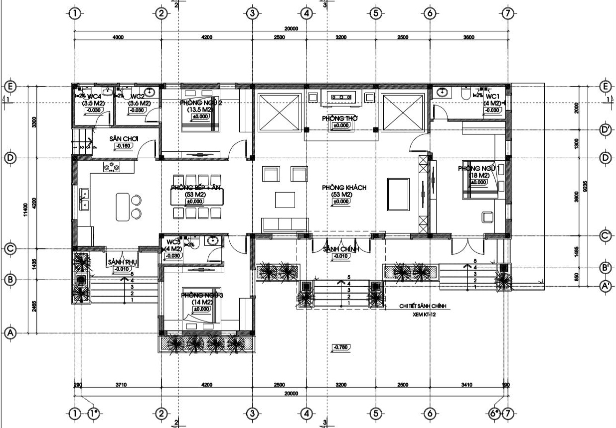
MẶT BẰNG CÔNG NĂNG BIỆT THỰ VƯỜN 1 TẦNG DIỆN TÍCH 9,2M X 20M

Nhìn vào bản vẽ chúng ta có thể nhận thấy cách bài trí công năng ngôi nhà khá phù hợp.
Bước tư ngoài vào trong sẽ là không gian phòng khách rất rộng rãi (53m2). Phòng khách được thiết kế tối giản với 2 hệ cửa số giúp không gian bên trong nhà thông thoáng hơn. Tiếp đó là không gian phòng thờ được đặt kết hợp không giuan phòng khách tiện lợi cho việc hương khói của gia đình cũng như khi có khách khứa đến thăm. Phía bên phải là 1 phòng ngủ master (18m2), ngoài việc có lối thông ra phòng khách, thì phòng ngủ này còn có thêm 1 lối đi riêng ra bên ngoài. Phía bên trái ngôi nhà là không gian cho 2 phòng ngủ còn lại (14m2 và có wc riêng) và khu vực bếp. Tổng diện tích không gian bếp là 53m2 có lối ra sảnh phụ riêng biệt.
Tất cả các phòng trong ngôi nhà của chú Thuyết đều có cửa sổ thông ra bên ngoài, điều này mang đến một không gian tràn ngập không khí trong lành, ngôi nhà như hòa mình với thiên nhiên, mang đến một cảm giác dễ chịu khi trở về nhà sau ngày dài học tập và làm việc.
Trên đây là bản thiết kế mẫu nhà 3 gian 2 chái diện tích 9,2m x 20m của gia đình nhà chú Thuyết tại Bắc Ninh. Hy vọng trên đây sẽ là gợi ý phù hợp cho các bạn khi đang muốn xây dựng ngôi nhà phong cách và kích thước tương tự. Cảm ơn và chúc các bạn thành công!
