MẪU 2 TẦNG ĐẸP MẮT TẠI MÊ LINH - HÀ NỘI
Các mẫu nhà hai tầng hiện đại hiện nay được rất nhiều chủ đầu tư quan tâm. Đặc biệt, muốn làm nổi bật cùng sự sang trọng vốn có thì những mẫu hai tầng mái Nhật là một điển hình. Hình khối đơn giản phóng khoáng, công năng đầy đủ tiện nghi, đó là tất cả những gì chủ sở hữu có được khi xây một căn biệt thự hai tầng hiện đại. Và dưới đây là mẫu biệt thự đội ngũ kiến trúc sư Nhà Đẹp 4.0 thiết kế cho gia đình anh Minh tại Mê Linh, Hà Nội. Mời quý vị và các bạn cùng chiêm ngưỡng.

Mẫu nhà vườn mái Nhật với mặt tiền 9,5m
THÔNG TIN CÔNG TRÌNH NHÀ 2 TẦNG MÁI NHẬT DIỆN TÍCH 9,5M X 16M
- Chủ đầu tư: anh Minh
- Địa điểm: Hà Nội
- Năm thiết kế: 2020
- Diện tích thiết kế: 9,5m x 16m
- Công năng: 4 phòng ngủ, 1 phòng thờ, 1 phòng khách, 1 phòng bếp.
YÊU CẦU THIẾT KẾ CHO NGÔI NHÀ VƯỜN 9,5X16M
Anh Minh tìm đến công ty chúng tôi với những mong muốn cho ngôi nhà của mình cụ thể như sau:
- Gia đình muốn thi công mẫu nhà vườn mái Nhật với diện tích 9,5m x 16m.
- Khu đất của gia đình khá rộng, nên muốn ngôi nhà thật sự nổi bật và sang trọng.
- Mang hơi hướng hiện đại, thu hút, độc đáo.
- Công năng dự kiến thi công là 4 phòng ngủ, 1 phòng thờ, 1 phòng khách, 1 phòng bếp.
- Ngoại thất công trình màu nhẹ nhàng, thanh thoát, gần gũi với thiên nhiên.
.jpg)

Mẫu nhà vườn mái Nhật hiện đại diện tích 9,5x16m
Ngay sau khi tiếp nhận yêu cầu tư vấn thiết kế của chủ đầu tư, chúng tôi đã đến hiện trạng bắt tay vào khảo sát khu vực thi công công trình, từ đó đưa ra các phương án sơ bộ cho chủ đầu tư lựa chọn. Sau khi được tư vấn cụ thể kỹ càng cho công trình nhà mình, anh Minh nhanh chóng chốt phương án chọn, và chúng tôi tiến hành đưa ra bản vẽ chi tiết.

Đến với Nhà Đẹp 4.0 như một cái duyên tình cờ. Anh Minh cho hay, trước đó anh đã rất băn khoăn về mẫu nhà nhà mình. Vì là công trình thực sự tâm huyết, nên anh muốn cẩn thận từng bước ngay từ đầu lên ý tưởng. Thậm chí đến khi thực hiện đào đất móng, anh vẫn còn băn khoăn rất nhiều. Và tại thời điểm đó, anh quyết định chọn Nhà Đẹp 4.0 để hỗ trợ anh trong giai đoạn gâp rút. Một công trình như mong muốn được hoàn thiện.
Công trình được xây dựng với kích thước 9,5 x 16m cả sảnh, phát triển theo chiều sâu. Mái Nhật hiện đại sang trọng, kết hợp với hình khối vuông vức. Với lối thiết kế theo phong cách này, các chi tiết sẽ được giảm bớt sự rườm rà, thay vào đó là sự đơn giản nhưng tinh tế, chắt lọc. Toàn bộ thân nhà nổi bật lên nởi những đường gờ nổi khỏe khoắn. Sơn trắng chủ đạo được sử dụng một cách có ý đồ, để khi kết hợp cùng các mảng tường ốp gạch tối màu sẽ tạo hiệu ứng tương phản bắt mắt. Từ chân cột cho đến đế nhà cũng được ốp đá hoàn toàn, tăng thâm mĩ và đồng thời cũng tăng hạn niên cho lớp sơn bên ngoài. Với mong muốn đáp ứng đủ nhu cầu thông thoáng cho công trình và cho không gian bên trong, chúng tôi bố trí khá nhiều hệ cửa sổ phân tán xung quanh nhà. Ngoài ra sảnh tầng 1 thiết kế rộng rãi, luôn tạo sự thoải mái ngay khi bước chân vào bên trong. Không chỉ vậy, trên tầng 2 là những khoảng thở lớn dành riêng cho ban công và sân chơi. Tại đây còn được bố trí hệ lam gỗ, có thể trồng hoa leo hoặc tùy theo sự sáng tạo và đam mê của chủ nhà.
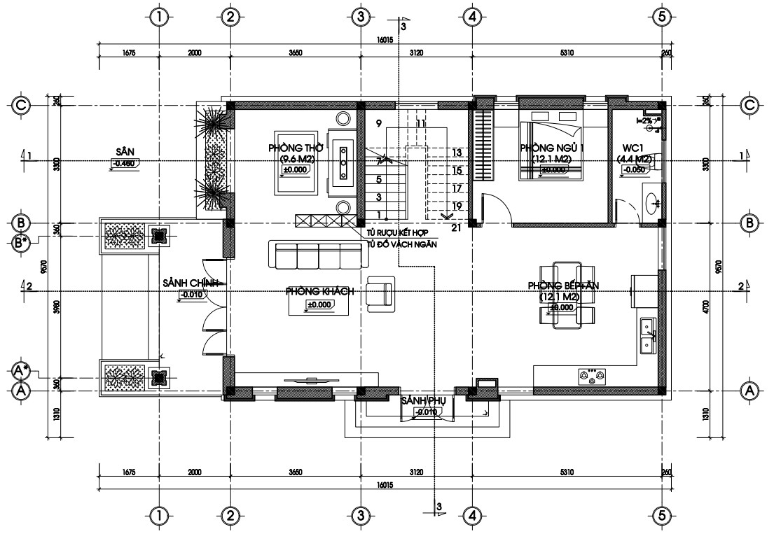
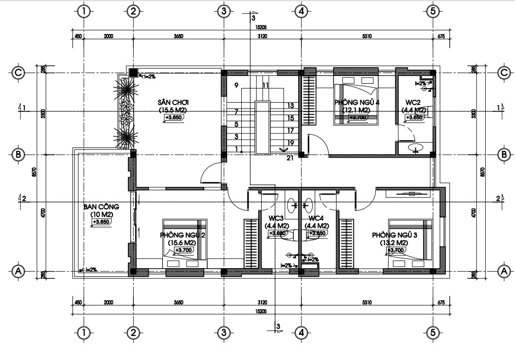
MẶT BẰNG CÔNG NĂNG NHÀ 2 TẦNG DIỆN TÍCH 9,5M X 16M


Bước từ sảnh chính đi vào là không gian phòng khách. Tại đây gia chủ rất chú ý đến cảm giác của khách khứa khi vào chơi nhà. Không cần quá rộng rãi, 20m2 cho một không gian mở rộng, tôn trọng người ngắm, nổi bật cùng tủ trưng bày. Chiếc tủ cũng là sự ngăn cách khéo léo cho không gian phòng thờ phía bên trong. Phòng thờ ở đây rộng 9,6m2. Ánh sáng tự nhiên vẫn được đáp ứng đủ, giữ được nét tôn nghiêm và ấm cúng cần có. Tiếp theo phía bên trong là không gian bếp ăn.Không gian bếp ăn rộng 12,1m2. Bằng sảnh phụ rộng rãi thì nơi đây luôn bảo toàn việc riêng tư của chợ búa và sinh hoạt tách biệt với không gian phòng khách bên ngoài. Còn lại dưới tầng 1 là 1 phòng ngủ rộng 12,1m2, cùng 1 vệ sinh chung rộng 4,4m2. Lên trên tầng 2 là các không gian riêng của 3 phòng ngủ. Toàn bộ các phòng ngủ đều có vệ sinh khép kín. Phòng ngủ nhỏ có kích thước tương tự phòng ngủ bên dưới tầng 1. Một phòng ngủ khác rộng 13,2m2 và cuối cùng là phòng ngủ lớn rộng 15,6m2 có ban công riêng. Trên tầng hai được yêu thích nhất không gian sinh hoạt chung của cả nhà. Riêng khu vực sân chơi rộng rãi lên đến 15,5m2.
Đó là toàn bộ các không gian trong công trình nhà 2 tầng hiện đại mái Nhật. Hy vọng sẽ là ý tưởng phù hợp khi các bạn đang có mong muốn xây dựng mấu có phong cách và kích thước tương tự. Bạn thấy sao về mấu nhà này? Có thể để lại ý kiến dưới phần bình luận hoặc để lại số điện thoại khi đang cần tư vấn về thiết kế thi công. Fanpage, website và hotline chúng tôi để dưới phần mô tả. Chúc các bạn thành công!
