BT2022004 - MẪU BIỆT THỰ MÁI THÁI ĐẸP NHƯ NÀNG THƠ
Nối tiếp sự thành công của những mẫu thiết kế biệt thự 2 tầng tân cổ điển, NHÀ ĐẸP 4.0 đã và đang không ngừng học hỏi, sáng tạo nhằm hướng tới những sản phẩm hoàn mỹ trao tay chủ đầu tư trên khắp các tỉnh thành cả nước. Ngày hôm nay chúng tôi rất vui mừng khi được tiếp tục giới thiệu đến quý vị mẫu thiết kế biệt thự 2 tầng tân cổ điển mái Thái của gia chủ là bác Toàn có địa chỉ tại Mê Linh, Hà Nội do NHÀ ĐẸP 4.0 thiết kế. Mời các bạn cùng tham khảo.
.jpg)
Phối cảnh 3D mẫu biệt thự bán tân cổ điển
Mẫu biệt thự là sự kết hợp khéo léo giữa kiến trúc Châu Âu và Châu Á dựa trên nhu cầu về sở thích, tài chính, sự am hiểu về văn hóa, tính chất khí hậu địa lý khu vực để đưa ra một sản phẩm hoàn thiện nhất. Kiến trúc sư của NHÀ ĐẸP 4.0 đã thổi hồn nghệ thuật vào ngôi nhà với gam màu trắng tinh khôi trang nhã, đây cũng là gam màu chủ đạo của kiến trúc phương Tây cổ điển, kết hợp những đường kẻ chỉ âm tường biến hóa cho mảng tường xây thu hồi vốn thô cứng trở nên có điểm nhấn. Tính toán chiều cao cho công trình là một trong những điều cũng góp phần thể hiện được tài năng của kiến trúc sư, theo đó mẫu nhà 2 tầng mái Thái thường sẽ cao hơn so với những ngôi nhà thông thường khác, kiến trúc sư sẽ sử dụng hệ tam cấp 3 bậc để giảm bớt sự đồ sộ khiến mẫu nhà trở nên cân đối hơn. Hệ bậc được ốp lát đá hoa cương màu sáng có độ ma sát tốt đảm bảo sự thuận tiện và an toàn trong quá trình di chuyển của mọi người.
.jpg)
Phối cảnh 3D mẫu biệt thự bán tân cổ điển
Mặt tiền của mẫu biệt thự được chia đôi với hai mảng kiến trúc tạo hình khác nhau. Nửa bên trái nhìn vào bạn sẽ cảm nhận được hơi thở cổ điển thông qua phần cột trụ áp tường bố trí cân xứng ở 2 bên chạy dọc từ tầng 1 lên đến tầng 2. Phía trên là một ban công hình bán nguyệt được cấu thành từ bệ đỡ bê tông sơn trắng và những thanh sắt mỹ thuật màu đen đã qua gia công uốn cong và sơn tĩnh điện tạo cảm giác mềm mại cho ngôi nhà. Phân nửa còn lại sẽ mang đến cảm giác hiện đại, khỏe khoắn hơn với hệ cột trụ vuông vức đặt 2 bên của sảnh chính được thiết kế đơn giản nhưng vô cùng chắc chắn, có chức năng nâng đỡ mái che phía trên và che mưa nắng cho phần sảnh chính. Ở phía bên trên kiến trúc sư tận dụng khoảng không gian mái che để tạo ra một ban công nhỏ, xung quanh được bao bọc bởi lan can sắt nghệ thuật sơn màu tương phản cùng hệ cột trụ tròn đôi vô cùng bắt mắt. Với khu vực ban công rộng rãi như vậy ngôi nhà vừa có thể đón nắng gió vào bên trong mà gia chủ lại có thể sử dụng làm nơi ngồi ngắm cảnh, thư giãn hay để những chậu cây nhỏ theo ý thích
.jpg)
Phối cảnh 3D mẫu biệt thự bán tân cổ điển
Một chi tiết nữa khiến bạn không thể rời mắt đó chính là mái Thái màu ngói đỏ của công trình. Nhìn từ phía trước hệ mái có hình chữ A giật cấp nhẹ xếp chồng lên nhau khá ấn tượng. Độ dốc mái khá cao là một trong những đặc điểm chống thấm đọng nước mưa vào mùa mưa rất tốt hay giữ ổn định nhiệt độ bên trong nhà nhờ kết cấu đặc biệt này.
Không chỉ đảm bảo về ngoại thất mà phần công năng cũng được chúng tôi rất chú trọng, với kinh nghiệm trong lĩnh vực kiến trúc, NHÀ ĐẸP 4.0 đã có phương án phù hợp từ việc khảo sát thực tế tại công trình. Quá trình khảo sát nhằm đo đạc địa chất, cùng với đó là tìm hiểu nguyện vọng của gia chủ để lên phương án thiết kế mặt bằng công năng phù hợp. Đáp ứng nhu cầu của chủ đầu tư và sắp xếp bố cục một cách khoa học, hợp lý.
.jpg)
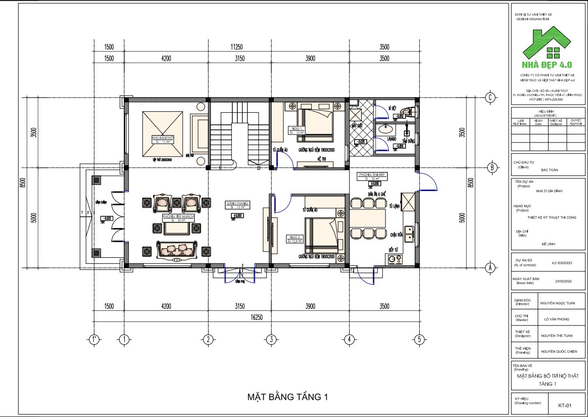
Phương án công năng tầng 1
.jpg)
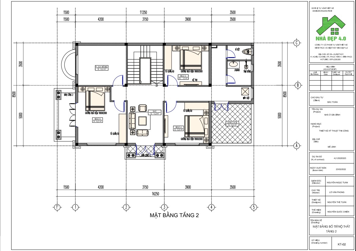
Phương án công năng tầng 2
Mẫu biệt thự được xây dựng với diện tích 8,5 x 16m bao gồm 1 phòng khách kết hợp thờ, 1 bếp ăn và 5 phòng ngủ cùng 2 wc. Với chia sẻ vừa rồi, NHÀ ĐẸP 4.0 hy vọng quý vị và các bạn đã có thêm một mẫu biệt thự đẹp để có tham khảo.
Tự hào là đơn vị kiến trúc uy tín, Nhà Đẹp 4.0 hiện đã và đang có mặt tại khắp các tỉnh thành trên mọi miền tổ quốc góp phần tạo tác nên những mái nhà hoàn hảo. Nếu quý vị và các bạn cần được tư vấn hãy nhanh tay liên hệ đến hotline của chúng tôi 0974.228.820 để được giải đáp mọi thắc mắc một cách nhanh nhất. Cảm ơn đã theo dõi và hẹn gặp lại quý khán giả ở những công trình tiếp theo
