BT2021022 - BIỆT THỰ 2 TẦNG MÁI BẰNG HIỆN ĐẠI, ĐẸP SANG CHẢNH
Ngày nay khi điều kiện về kinh tế cũng như nhu cầu được ở trong một không gian sang trọng ngày càng tăng cao, đội ngũ KTS cũng phải liên tục cải biến tạo hình cho những mẫu nhà trở nên khác biệt mà vẫn theo kịp được xu hướng của thời đại. Đấy là cả một quá trình học hỏi, phát triển không ngừng nghỉ. Giống như câu chuyện của những ngôi nhà biệt thự. Nếu là một concept nhà biệt thự cũ chắc chắn sẽ bị đào thải ngay sau đó không lâu, tuy nhiên với khối đầu óc giàu sáng tạo, biết kết hợp giữa cái cũ và cái mới chắc chắn sẽ mang đến những giá trị thẩm mỹ nằm ngoài mong đợi. Các bạn hãy theo dõi sản phẩm nhà biệt thự 2 tầng dưới đây của nhà chị Mai đang sống tại Nam Viêm, Phúc Yên, Vĩnh Phúc để biết được tính sáng tạo của các KTS NHÀ ĐẸP 4.0 thể hiện được cá tính của gia chủ như thế nào nhé.
.jpg)
Phối cảnh 3D biệt thự 2 tầng mái bằng hiện đại
Khi nhắc đến biệt thự có lẽ bạn sẽ hình dung đến ngay những ngôi nhà nguy nga, tráng lệ với những khối phù điêu hoa văn uốn lượn cầu kỳ đắp nổi. Ngày nay thì lối kiến trúc đó đã được tối giản hơn nhiều, mà đặc biệt trong bài này bạn sẽ không nhìn thấy điều đó. Quy chuẩn về biệt thự hiện đại hoàn toàn khác với ngày trước. Như ngôi nhà của chị Mai đây có thể thấy rõ, là một kiểu kiến trúc hình hộp với những hình khối vuông dài đơn giản. Mỗi một hình mẫu thiết kế sẽ mang đến một hơi hướng riêng. Tùy theo điều kiện kinh tế, diện tích và sở thích mà có thể vận dụng tất cả chúng vào để tạo ra một sản phẩm đẹp mắt nhất. Phủ lên toàn bộ ngôi nhà là gam màu ghi sáng trung tính, không nóng không lạnh, tạo dáng vẻ nhịp nhàng thanh cao.
.jpg)
Phối cảnh 3D biệt thự 2 tầng mái bằng hiện đại
Vẫn được ưu tiên sử dụng hệ cửa kính khung nhôm xingfa cao cấp có bề mặt kính cường lực tốt, độ bền cao, có tác dụng cách âm, cách nhiệt tốt. Hơn thế nữa còn dễ dàng vệ sinh, đặc biệt nó còn mang tới nhiều ánh sáng tự nhiên giúp cho chủ nhà có thể tiết kiệm được nguồn điện năng sử dụng trong sinh hoạt của gia đình. Bề mặt tiếp xúc với tự nhiên không được nhiều do vậy dùng cửa kính còn làm không gian trong nhà được cơi nới thêm ra. Tránh tạo cảm giác bức bí cho ngôi nhà cho nên lan can của ngôi nhà cũng được thiết kế làm bằng kính. Bậc tam cấp của ngôi nhà được làm không quá cao, phần xung quanh được bố trí hàng rào cây xanh và những khóm cây tiểu cảnh trước nhà tôn lên vẻ đẹp hiện đại và hài hòa. Thiết kế này của các KTS còn giảm đi sự thô cứng của ngôi nhà, tạo cảm giác tươi mát hơn
.jpg)
Phối cảnh 3D biệt thự 2 tầng mái bằng hiện đại
Kết hợp với mỗi kiểu thiết kế nhà sẽ mang đến một vẻ đẹp riêng biệt. Được sống trong một không gian hiện đại cùng cảnh quanh xanh mát của cây cối là điều mà ai cũng mong muốn nhất là với những gia đình không có điều kiện về diện tích. Phải rất khéo léo để mang được thiên nhiên đến với ngôi nhà bởi sự phù hợp, không bị rườm rà, tránh việc tạo cảm giác rối mắt, thu hẹp không gian. Không chỉ vậy, điểm nhấn của ngôi nhà chính là phần ban công rất rộng thoáng với lan can kính cường lực tạo nét sang trọng, nhấn nhá thêm giàn trang trí hệ lam bê tông hiện đại cấu thành một nốt chấm phá độc đáo cho tổng thể ngôi nhà. Chính vì thế mà chị Mai cảm thấy rất hài lòng với mẫu thiết kế này.
.jpg)
Phối cảnh 3D biệt thự 2 tầng mái bằng hiện đại
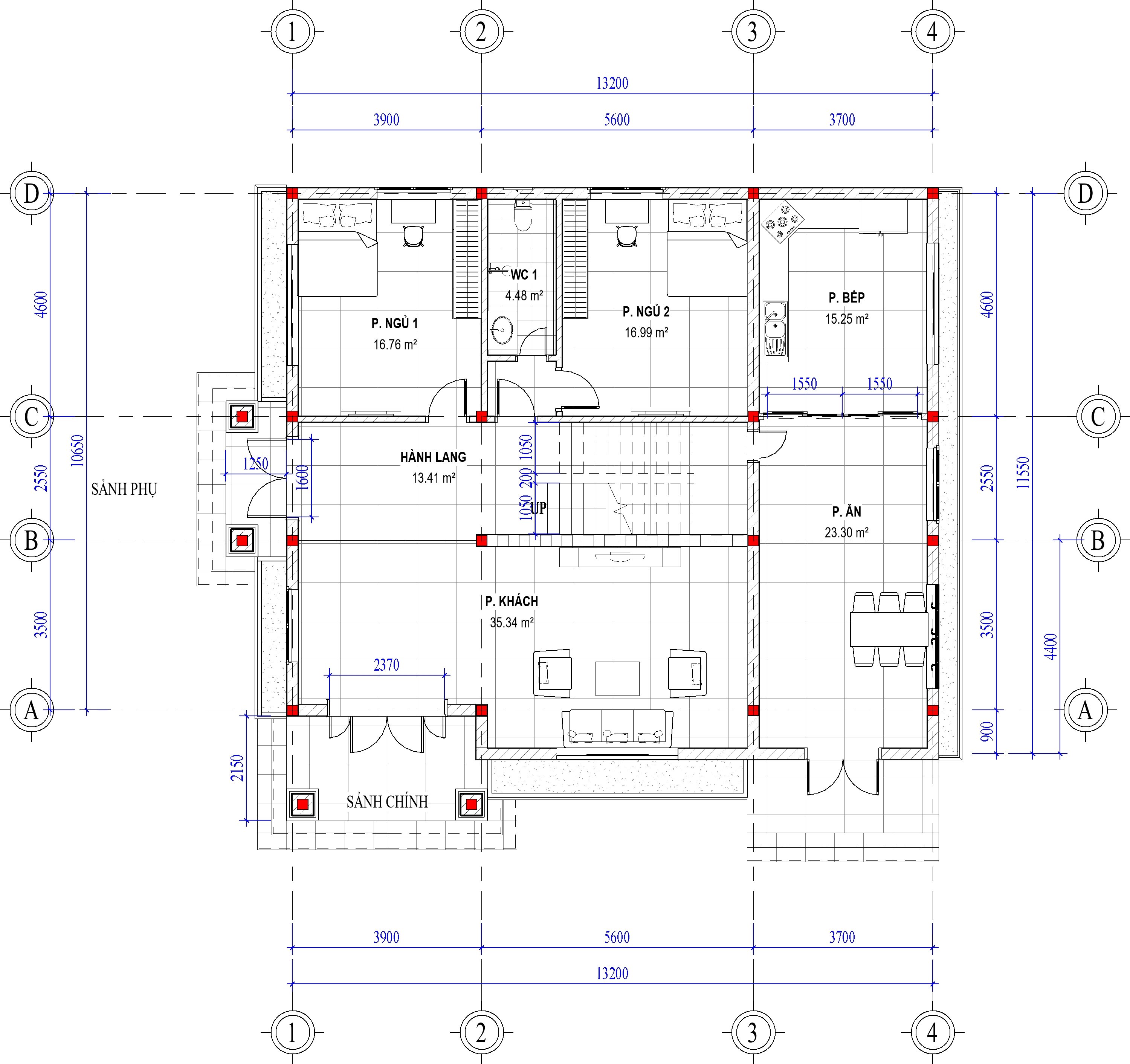
Dưới đây là mặt bằng công năng của gia đình chị Mai mà NHÀ ĐẸP 4.0 sẽ giới thiệu cho các bạn. Cũng như những gia đình khác, sẽ có đầy đủ các phòng ốc liên quan trong căn nhà tuy nhiên việc được bố trí một cách hợp lý về phong thủy, hướng nhà, tiện cho sinh hoạt thì lại là điều mà anh rất tin tưởng và ưng ý khi xem qua mẫu thiết kế
.jpg)
Mẫu mặt bằng công năng tầng 1
.jpg)
Mẫu mặt bằng công năng tầng 2
NHÀ ĐẸP 4.0 sẽ giúp các bạn và gia đình có được những thiết kế độc - đẹp - lạ, nổi bật cá tính của từng gia chủ. Nếu bạn cũng yêu thích mẫu biệt thự đẹp hiện đại này xin vui lòng liên hệ với NHÀ ĐẸP 4.0 để được hỗ trợ một cách tốt nhất thông qua Hotline: 0974.228.820
