BT2021017| BIỆT THỰ 2 TẦNG MÁI THÁI TÂN CỔ
Thiết kế biệt thự phong cách Tân cổ điển là một trong những thế mạnh của NHÀ ĐẸP 4.0. Hàng trăm công trình với phối cảnh kiến trúc sang trọng đã được kiến trúc sư của chúng tôi hoàn thiện cho nhiều chủ đầu tư.
Mẫu biệt thự 2 tầng Tân cổ điển với phối cảnh mặt tiền như mơ, cùng với công năng tối ưu hoá theo diện tích, nhu cầu và kinh phí đầu tư. Đã giúp gia đình 5 người có một cuộc sống tiện nghi và “sang chảnh” nhất có thể. Hãy cùng chúng tôi khám phá và tìm hiểu ngay trong phạm vi bài viết này Để có thêm những ý tưởng thiết kế mới mẻ hơn, hoàn thiện hơn cho gia đình nhé.
Thông tin công trình biệt thự 3 tầng Tân cổ điển đẹp
- Chủ đầu tư: A Tú
- Địa điểm: Khoái Châu - Hưng Yên
- Diện tích thiết kế: 9x12m
- Công trình: biệt thự Tân cổ điển
- Số tầng: 02
- Kinh phí đầu tư: 1,7 tỷ
- Năm thiết kế: 2021
- Công năng: 4 phòng ngủ, 1 phòng thờ, phòng đa năng, phòng khách, phòng bếp
.jpg)
Phối cảnh 3D cho A Tú - Hưng Yên
Mặt tiền ấn tượng của mẫu biệt thự 2 tầng Tân cổ điển
Hình khối kiến trúc biệt thự thể hiện sự kiên cố, bề thế với những mảng khối bố cục cân đối và tỷ lệ vàng về chi tiết và đường nét.
Hệ thống trụ cột ionic thiết kế trước mặt tiền chính và mặt tiền phụ được trang trí khá tỉ mỉ và chi tiết. Phần chân cột và đầu cột đều được thiết kế trang trí hoạ tiết khá đẹp mắt và kỹ lưỡng. Thiết kế hệ trụ cột tròn chính là một trong những đặc trưng trong kiến trúc tân cổ điển biệt thự.
Hệ thống trụ cột chạy cùng với những đường gờ, phào chỉ đẹp mắt phía thân tường và chân cột chịu lực, cột trang trí đã giúp cho mẫu nhà phô diễn hết sự kiên cố và bề thế.
Hệ thống ban công và lan can bằng con tiện, chạy dọc song song với mặt tiền chính và mặt tiền phụ của công trình, điểm tô thêm sự mềm mài, uyển chuyển và thanh thoát của công trình quy mô lớn hạng sang.
.jpg)
View khác của công trình
Kiến trúc mái thái hiện đại, thiết kế giật cấp cùng với khối đua lớn, hệ mái thái chữ A hiện đại, có khả năng thoát nước nhanh, cùng với tính thẩm mĩ cao, thể hiện sự thanh thoát và tươi mới của công trình thiết kế biệt thự phong cách Tân cổ điển.
Hệ thống những đường gờ chạy ngang kẻ lõm thân trước, khi kết hợp cùng với thiết kế kiến trúc trụ cột vững chắc, tô điểm thêm những nét kiên cố và lớn mạnh của mẫu biệt thự đẹp 2 tầng.
Từ hình khối kiến trúc, thiết kế có sự ăn nhập và ăn khớp với nhau theo cách hoàn hảo nhất có thể. Toàn bộ phần chân tường được ốp gạch nghệ thuật màu nâu đen, đi cùng với hệ thống tường rào kiên cố, và thiết kế hoa sắt mĩ nghệ màu vàng, kết hợp với màu trắng sứ ngoại thất tạo nên sự đồng bộ cuốn hút và đẹp mắt.
Hệ thống cửa cổng thiết kế sang trọng và tinh tế với hệ thống cửa sắt mĩ nghệ màu vàng hiện đại, thiết kế cầu kỳ và thể hiện đẳng cấp kiến trúc của biệt thự hạng sang.
Hệ thống cửa nhôm vân gỗ với hình khối vuông và khối vòm cửa ra ban công thể hiến ự phóng khoáng và linh hoạt trong phương án thiết kế. Kiến trúc sư đã kiến tạo nên một mặt tiền ấn tượng và đầy tinh tế, từ đó giúp cho mẫu thiết kế biệt thự tân cổ điển chiếm trọn tình cảm và trái tím của nhiều khách hàng, ngay cả những chủ đầu tư khó tính nhất.
Mặt bằng công năng hiện đại của mẫu biệt thự 2 tầng

Phương án mặt bằng tầng 1
Mặt bằng tầng 1 được bố trí công năng : 1 phòng khách kết hợp thờ, 1 phòng ngủ, 1 bếp được bố trí hợp lý với tối ưu diện tích cho ngôi nhà

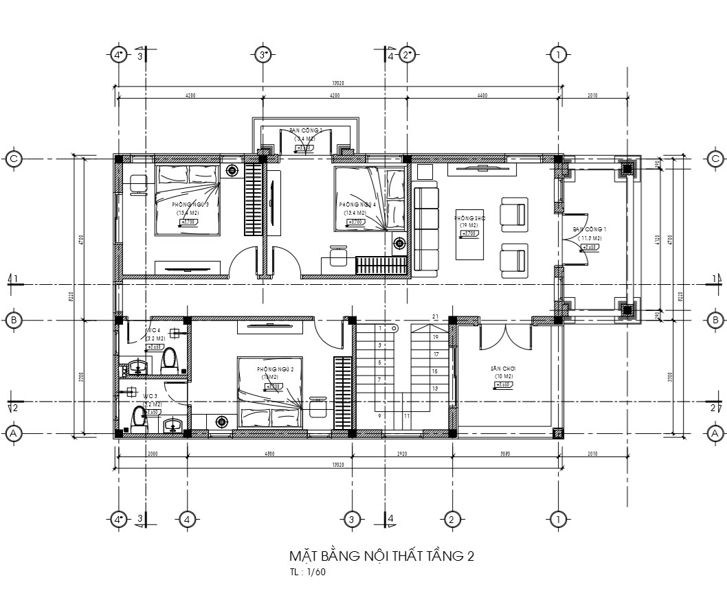
Phương án mặt bằng tầng 2
Mặt bằng tầng 2 được bố trí 3 phòng ngủ trong đó 1 phòng ngủ master, 1 phòng SHC đảm bảo công năng khi sử dụng.
Mẫu biệt thự 2 tầng Tân cổ điển hiện đại, nếu như bạn yêu thích mẫu thiết kế này, hãy liên hệ để được kiến trúc sư tư vấn Hotline: 0974228820
