BT2021014| BIỆT THỰ 2 TẦNG MÁI NHẬT SIÊU ĐẸP TẠI THANH LIÊM - HÀ NAM
Thiết kế biệt thự phong cách hiện đại ngày càng được các gia đình Việt yêu thích. Không chỉ đẹp khác biệt với những chi tiết mạnh mẽ mà những ngôi nhà 2 tầng hiện đại mái Nhật còn hấp dẫn các chủ đầu tư bởi sự bình dị, truyền thống.
Một trong những công trình tiêu biểu của Nhà Đẹp 4.0 được các gia chủ yêu thích và tham khảo thiết kế rất nhiều trong thời gian gần đây là mẫu nhà biệt thự 2 tầng mái Nhật đẹp. Mẫu thiết kế sang trọng, tiện nghi phù hợp với gia đình có nhiều thành viên.
.jpg)
Phối cảnh 3D mẫu biệt thự 2 tầng diện tích 10,4m x 13m
THÔNG TIN CÔNG TRÌNH BIỆT THỰ 2 TẦNG DIỆN TÍCH 10,4M X 13M
- Chủ đầu tư: anh Quang
- Điạ điểm: Thanh Liêm - Hà Nam
- Năm thiết kế: 2021
- Diện tích thiết kế: 10,4m x 13m
- Công năng: 5 phòng ngủ, 1 phòng khách, 1 phòng thờ, 1 phòng bếp, 1 phòng shc.
Cùng Kiến Nhà Đẹp 4.0 tìm hiểu rõ hơn thiết kế biệt thự 2 tầng đẹp và sang chảnh cho gia đình anh Quang tại Thanh Liêm - Hà Nam. Qua quá trình trao đổi thì Nhà Đẹp 4.0 được biết: anh Quang là một người yêu thích lối sống đơn giản, có tính cách phóng khoáng - cởi mở, thích ngôi nhà của mình theo phong cách hiện đại cùng không gian sân vườn thoáng đãng để nghỉ ngơi, thư giãn.
Gia đình của CĐT gồm 3 thế hệ cùng chung sống nên yêu cầu thiết kế 5 phòng ngủ và bố trí sao cho thật khoa học, tăng tính kết nối giữa các thành viên. Ngoài những yêu tố cơ bản như: phòng khách, phòng thờ, khu vực bếp & phòng ăn, WC thì có thêm 1 không gian sinh hoạt chung cho cả gia đình. Với những yêu cầu trên, đội ngũ kiến trúc sư của Nhà Đẹp 4.0 đã nghiên cứu và đưa ra phương án biệt thự mái Nhật 2 tầng cho gia đình anh Quang
Với việc lựa chọn hệ mái Nhật cho công trình biệt thự hiện đại 2 tầng 5 phòng ngủ, các kiến trúc sư Nhà Đẹp 4.0 đã nghiên cứu rất kĩ càng, dựng phối cảnh 3D sau đó gửi cho gia đình chủ đầu tư cùng xem và cho ý kiến đến khi chốt được kiểu dáng của mái.
Mái Nhật với những ưu điểm về thẩm mỹ cũng như phù hợp với kiểu khí hậu của đất nước chúng ta như: chống nóng, chống lạnh, chống ẩm mốc....Mái Nhật đang là sự ưu tiên hàng đầu đối với các công trình biệt thự hiện đại, biệt thự vườn, biệt thự tân cổ điển...
.jpg)
Phối cảnh 3D mẫu biệt thự 2 tầng diện tích 10,4m x 13m
Quang sát từ khu vực tầng 1 của ngôi nhà đẹp 2 tầng mặt tiền 10m các bạn có thể thấy: Trước khi đến với sảnh chính là bậc tam cấp, 2 bên là 2 cột trụ vuông khỏe khoắn giúp chống chịu vững chắc cho ngôi nhà.
Cửa chính được làm bằng gỗ, đan xen với đó là những tấm kính nhỏ giúp dễ dàng quan sát. Hệ cửa sổ sử dụng chất liệu nhôm kính bố trí xung quanh ngôi nhà (cả tầng 1 và tầng 2). Điều này giúp tạo ra một không gian mở vô cùng thoáng đãng, ở bất kì không gian nào thì CĐT và gia đình cũng đều quan sát được cảnh sắc bên ngoài.
Ngoài ra, ngôi nhà còn được sử dụng màu cafe tạo điểm nhấn trên các phần phân tầng, cùng các cột trụ ở sảnh chính và sảnh phụ của công trình. Thân nhà còn được bật lên bởi những gờ đắp nổi chạy xung quanh thân nhà và tạo điểm nhấn mạnh cho các hệ thống cửa sổ.
.jpg)
Phối cảnh 3D mẫu biệt thự 2 tầng diện tích 10,4m x 13m
MẶT BẰNG CÔNG NĂNG BIỆT THỰ 2 TẦNG DIỆN TÍCH 10,4M X 13M
.jpg)
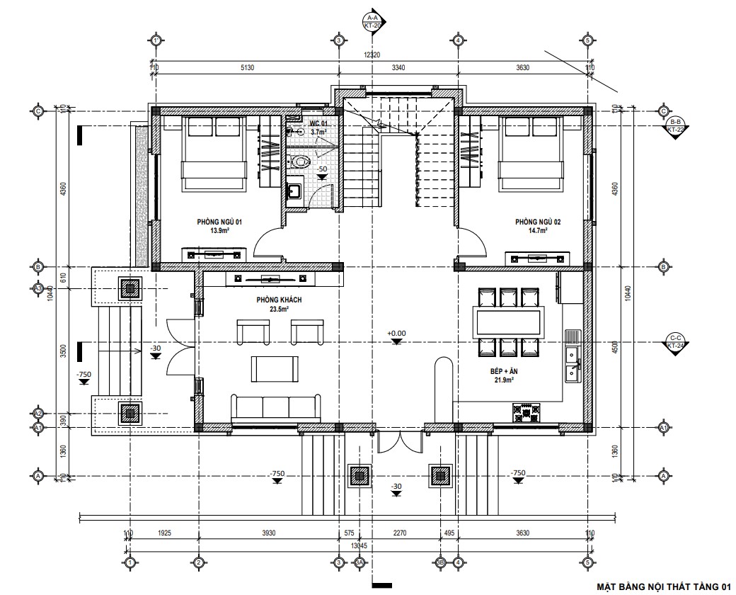
Bước từ ngoài vào trong là phòng khách thiết kế rộng rãi với diện tích 23,5m2. Không gian phòng khách được thiết kế tối giản, với 1 hệ cửa sổ lớn với 2 hệ sảnh chính phụ tạo sự thoải mái và thoáng đãng cho ngôi nhà.
Tiếp đó là không gian phòng bếp (21,9m2) được đặt ngay sâu bên trong. Bên trái là khu vực cầu thang cùng 2 phòng ngủ nhỏ (14m2) với 1 wc chung cho toàn tầng.
.jpg)
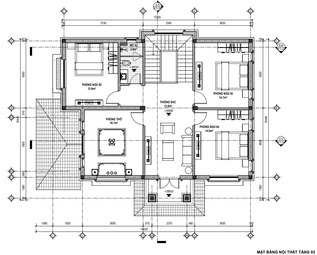
Bước lên tầng 2 đầu tiên sẽ là không gian phòng sinh hoạt chung cho cả nhà rộng 13,9m2. với 2 phòng ngủ phía bên trái (14,7m2). Bên phải còn lại 1 phòng ngủ nhỏ (14m2) cùng phòng thờ 16m2
.jpg)
Mặt cắt 3D nội thất tầng 1
.jpg)
Mặt cắt 3D nội thất tầng 2
Trên đây là bản thiết kế mẫu nhà vườn 1 tầng diện tích 10,4m x 13m của gia đình nhà anh Quang tại Thanh Liêm - Hà Nam. Hy vọng trên đây sẽ là gợi ý phù hợp cho các bạn khi đang muốn xây dựng ngôi nhà phong cách và kích thước tương tự. Cảm ơn và chúc các bạn thành công!
