BT2021013| MẪU BIỆT THỰ MÁI NHẬT 2 TẦNG ĐẸP BẮT MẮT TẠI BẮC GIANG
Bắc Giang là nơi mà công ty Nhà Đẹp 4.0 đã thiết kế rất nhiều các mẫu biệt thự 2 tầng mái nhật cho khách hàng. Đây là một trong những kiểu nhà biệt thự 2 tầng mái nhật hình chữ L 10,8m x 15,7m được Nhà đẹp thiết kế cho anh Khá tại Bắc Giang. Hôm nay Nhà Đẹp 4.0 sẽ chia sẻ với các bạn những hình ảnh cùng với mặt bằng công năng của mẫu nhà này. Xin mời các bạn cùng chúng tôi tham khảo nhé.
.jpg)
Phối cảnh 3D biệt thự 2 tầng 10,8m x 15,7m
THÔNG TIN CÔNG TRÌNH BIỆT THỰ MÁI NHẬT 10,8M X 15,7M
- Chủ đầu tư: anh Khá
- Điạ điểm: Bắc Giang
- Năm thiết kế: 2021
- Diện tích thiết kế: 10,8m x 15,7m
- Công năng: 4 phòng ngủ, 1 phòng khách+thờ, 1 phòng bếp, 1 phòng shc.
Chủ đầu tư cư trú tại Bắc Giang là anh Khá đã gọi điện cho công ty Nhà Đẹp 4.0 chúng tôi để trao đổi và đề xuất về nhu cầu tư vấn thiết kế nhà ở với phong cách hiện đại đơn giản nhưng vẫn đảm bảo được công năng tiện nghi và giá trị thẩm mĩ phải độc đáo. Qua quá trình nói chuyện, thấu hiểu, tư vấn thiết kế với nhiều năm kinh nghiệm trong nghề kiến trúc đã tạo ra rất nhiều mẫu nhà mang phong cách hiện đại, sang trọng. Thì mẫu nhà biệt thự 2 tầng mái nhật hình chữ L 10,8m x 15,7m được kiến trúc sư dày công nghiên cứu đã khiến cho gia đình chủ đầu tư vô cùng ấn tượng và hài lòng.
.jpg)
Phối cảnh 3D biệt thự 2 tầng 10,8m x 15,7m
Với kiểu nhà 2 tầng mái nhật các bạn sẽ tiết kiệm được khá nhiều tiền cho phần mái ngói. Đơn giản vì phần riềm mái đua ra của nhà mái nhật bao giờ cũng thấp hơn so với những kiểu nhà mái thái. Vì vậy đây cũng là một phần quyết định tới giá hoàn thiện, giá nhân công của 1 căn nhà.
Gam màu trắng được sử dụng làm gam màu chính trong toàn bộ tổng thể kiến trúc mẫu nhà biệt thự 2 tầng mái nhật 10,8x15,7m này. Không gian kiến trúc của ngôi nhà được bao phủ toàn bộ bởi lớp sơn màu trắng tinh khiết. Màu sơn trắng được sử dụng trong thiết kế ngoại thất mẫu biệt thự 2 tầng mái Nhật mang lại hiệu quả vô cùng tối ưu. Hơn nữa, việc sử dụng gam màu trắng trong thiết kế ngoại thất có một tác dụng tuyệt vời về mặt tận dụng ánh sáng. Màu sắc trắng chủ đạo tạo nên một giá trị thẩm mỹ rất cao cho công trình. Màu sơn trắng khi có ánh sáng mặt trời chiếu vào tạo ra một không gian mặt tiền nhà mờ ảo, lung linh và giúp lan tỏa ra một nguồn năng lượng tích cực, khỏe khoắn, tràn đầy sinh khí. Cũng chính vì thế mà màu trắng được sử dụng trong việc hoàn thiện rất nhiều trong các mẫu nhà hiện nay từ nhà cấp 4 cho đến lâu đài… vì nó thực sự tạo nên sự hoàn thiện độc đáo cho mặt tiền của ngôi nhà.
.jpg)
Phối cảnh 3D biệt thự 2 tầng 10,8m x 15,7m
Việc lựa chọn loại gạch, màu sắc của gạch để ốp chân tường như thế nào cho phù hợp với kiến trúc cũng phụ thuộc phần lớn vào màu sơn chủ đạo của ngoại thất. Đối với mẫu nhà biệt thự 2 tầng mái nhật này, màu trắng là màu chủ đạo được sử dụng cho toàn bộ không gian ngoại thất của ngôi nhà. Và vì thế mà không gian ở dưới chân tường cần được lựa chọn là loại gạch ốp sẫm màu. Để làm cho kiến trúc ngôi nhà trở nên sang trọng và nâng tầm đẳng cấp hơn. Loại gạch ốp chân tường này được sử dụng rất phổ biến trong thiết kế ngoại thất công trình hiện nay. Loại gạch này mang đến cho ngôi nhà biệt thự 2 tầng rất nhiều công dụng có ích như giúp bảo vệ phần chân tường không bị bong tróc, ngấm nước và vi sinh vật, rêu phong phát triển gây hại cho toàn bộ mặt tiền công trình.
.jpg)
Phối cảnh 3D biệt thự 2 tầng 10,8m x 15,7m
Mẫu thiết kế nhà biệt thự 2 tầng mái nhật 10,8x15,7m được sử dụng phương án mái Nhật. Phần mái Nhật của ngôi nhà biệt thự 2 tầng này được thực hiện theo phương án đổ mái bằng sau đó lợp vì kèo và dán ngói lên trên. Phần mái Nhật đua ra ngoài thì được đổ viền bằng bê tông cốt thép để tạo khối kiến trúc chắc chắn, bền vững cho tổng thể công trình. Màu sắc mái Nhật có màu xanh rất hài hòa với gam màu tổng thể của toàn bộ ngoại thất của ngôi nhà. Mái Nhật mang lại rất nhiều công dụng có ích cho một ngôi nhà, do mái Nhật sở hữu một độ dốc khá cao nên thoát nước mưa rất nhanh và chống nóng rất hiệu quả. Từ những ưu điểm nổi bật đó mái nhật đã góp phần giúp gìn giữ vẻ đẹp vĩnh cửu cho tổng thể ngoại thất của ngôi nhà biệt thự 2 tầng luôn luôn bền đẹp theo từng tháng năm.
Công trình được thiết kế hệ tam cấp cùng với 2 cột chính được ốp đá hoàn toàn, giúp bố cục trở lên cân đối, sang trọng và thanh thoát hơn. Thân nhà và viền cửa sổ còn được bật lên bởi những gờ đắp nổi chạy xung quanh tạo điểm nhấn mạnh cho công trình của nhà anh Khá. Hệ cửa chính sử dụng chất liệu bằng gỗ giúp tôn lên vẻ bề thế của ngôi nhà, còn lại hệ cửa số sử dụng hoàn toàn bằng chất liệu nhôm kính vừa không những hiện đại mà còn thông thoáng.
Ở không gian tầng 2 của căn biệt thự, các kiến trúc sư còn sử dụng hệ thống thanh lam được chống đỡ bởi các hệ trụ chắc chắn tại khu vực ban công. Với tiêu chí ban đầu đã đề ra đó chính là “Nhà xanh – Cuộc sống xanh”, vì thế mà đây cũng chính là khu vực dùng để treo các loại chậu hoa kiểng đẹp mắt. Một không gian nhà vườn đẹp sẽ mang lại cho bạn một không gian sống vô cùng thư giãn cho tất cả các thành viên trong gia đình anh Khá.
MẶT BẰNG CÔNG NĂNG BIỆT THỰ MÁI NHẬT 10,8M X 15,7M
.jpg)
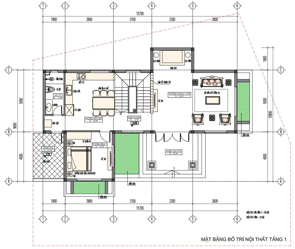
Mặt bằng bố trí công năng tầng 1 mẫu biệt thự 2 tầng diện tích 10,8m x 15,7m
Không gian tầng 1 của mẫu biệt thự 2 tầng mái nhật 10,8x15,7m được phân chia thành 2 mảng chính: một bên từ sảnh đi vào là không gian phòng khách kết hợp với phòng thờ rộng rãi 35m2. Bên kia là không gian dành cho 1 phòng ngủ nhỏ (14m2) và khu vực bếp ăn của gia đình. 1 nhà vệ chung được thiết kế cạnh nhà bếp giúp mang lại sự thuận tiện cho quá trình sinh hoạt cá nhân được dễ dàng.
.jpg)
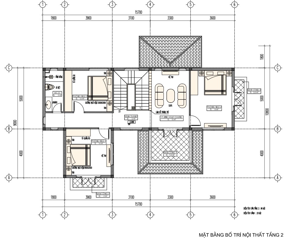
Mặt bằng bố trí công năng tầng 2 mẫu biệt thự 2 tầng diện tích 10,8m x 15,7m
Lên tới tầng 2 là không gian 3 phòng ngủ nhỏ xinh và 1 phòng sinh hoạt chung cho cả nhà. Phòng ngủ được bố trí hợp lý với các đồ nội thất cao cấp sang trọng. 1 nhà vệ sinh chung tiện nghi tương tự tầng 1. Và cuối cùng là 1 ban công đáp ứng đúng nhu cầu của anh Dự. ban công được bố trí hệ lam làm dàn hoa càng tăng thêm độ gần gũi với thiên nhiên cho công trình.
.jpg)
Mặt bằng bố trí nội thất tầng 1
.jpg)
Mặt bằng bố trí nội thất tầng 2
Trên đây là bộ hồ sơ thiết kế nhà biệt thự 2 tầng mái nhật 10,8x15,7m của gia đình anh Khá tại Bắc Giang. Ngôi nhà được thiết kế theo phong cách hiện đại, không gian tiện nghi đẳng cấp mà ai nhìn cũng phải mê mẩn. Mọi yêu cầu tư vấn thiết kế nhà ở bạn hãy liên hệ với kiến trúc sư của công ty Nhà Đẹp 4.0 chúng tôi qua hotline 0974.228.820 để được tư vấn miễn phí.
