BT2021012| MẪU BIỆT THỰ MÁI NHẬT 2 TẦNG AI CŨNG MUỐN SỞ HỮU TẠI THÁI BÌNH
Ấn tượng đầu tiên khi bạn nhìn thấy Thiết kế biệt thự 2 tầng mái Nhật hiện đại là một không gian sống rất sang trọng và yên bình. Ngắm nhìn một cách tổng thể biệt thự vườn 2 tầng hiện đại sau đây chắc chắn bạn sẽ cảm thấy thư thái, nhẹ nhõm sau một ngày dài bon chen với cuộc sống xô bồ bên ngoài. Mẫu biệt thự 2 tầng kích thước 10x13m tràn ngập sức sống hiện đại được Nhà Đẹp 4.0 thiết kế cho gia đình anh Chiến tại Thái Bình. Với mặt tiền ấn tượng cùng với công năng sử dụng khoa học, hy vọng sẽ giúp các bạn có thể tham khảo để có thêm những ý tưởng thiết kế hoàn hảo cho gia đình mình nhé.
.jpg)
Phối cảnh 3D biệt thự 2 tầng mái Nhật diện tích 10m x 13m
THÔNG TIN CÔNG TRÌNH BIỆT THỰ 2 TẦNG DIỆN TÍCH 10M X 13M
- Chủ đầu tư: anh Chiến
- Điạ điểm: Thái Bình
- Năm thiết kế: 2021
- Diện tích thiết kế: 10m x 13m
- Công năng: 4 phòng ngủ, 1 phòng khách, 1 phòng thờ, 1 phòng bếp.
Ngay sau khi tiếp nhận yêu cầu tư vấn thiết kế của chủ đầu tư, chúng tôi đã đến hiện trạng bắt tay vào khảo sát khu vực thi công công trình, từ đó đưa ra các phương án sơ bộ cho chủ đầu tư lựa chọn.
Sau khi được tư vấn rất cụ thế kỹ càng cho công trình nhà mình, anh Chiến nhanh chóng chốt phương án đã chọn, và chúng tôi tiến hành họp bàn và chốt phương án 3D chi tiết.
.jpg)
Phối cảnh 3D biệt thự 2 tầng mái Nhật diện tích 10m x 13m
Không sở hữu hệ thống hoa văn trang trí tinh xảo như những căn biệt thự cổ điển hoành tráng, không rộng lớn như những mẫu nhà đẹp biệt thự tân cổ điển, biệt thự 2 tầng hiện đại mái Nhật nhẹ nhàng và nổi bật giữa nơi đồng quê. Công trình nhà đẹp 2 tầng 10m x 13m do Nhà Đẹp 4.0 thiết kế như một bức họa với những nét kiến trúc độc đáo, đồng điệu với cảnh quan sân vườn tươi sắc xung quanh.
Vốn là người có cá tính phóng khoáng, chuộng lối sống đơn giản nên anh Chiến lựa chọn thiết kế nhà 2 tầng phong cách hiện đại. Vì thế: ngôi biệt thự sẽ không quá tập trung vào những chi tiết hay đường nét kiến trúc.
Đội ngũ KTS của Nhà Đẹp 4.0 đã khéo lép sắp xếp các khối hình một cách cân đối, đầy tình tế, tránh được sự đơn điệu trong tổng thể bố cục. Các công trình biệt thự được khoác lên mình phong cách hiện đại thì được sử dụng đa dạng các vật liệu trang trí ngoại thất. Cụ thể trong ngôi nhà biệt thự vườn xinh đẹp này là chất liệu kính và gỗ được sử dụng xuyên suốt toàn bộ thiết kế, đây chính là điểm nhấn tạo nên sự mới mẻ đầy hấp dẫn.
.jpg)
Phối cảnh 3D biệt thự 2 tầng mái Nhật diện tích 10m x 13m
Điểm hấp dẫn của mẫu thiết kế biệt thự hiện đại 2 tầng không chỉ có sự độc đáo của kiến trúc tổng thể mà còn nằm ở cách phối màu ngoại thất. Màu xanh ghi của mái Nhật và màu nâu của gỗ hòa quyện với màu sơn trắng chủ đạo đem lại sự thư giãn cho mắt nhìn, đồng thời tạo nên nét duyên dáng, khác lạ mà vẫn sang trọng của ngôi biệt thự vườn hiện đại. Ngoài ra, ngôi nhà còn được sử dụng màu nâu tạo điểm nhấn trên các phần phân tầng, tạo điểm nhấn nổi bật cho công trình. Thân nhà và viền cửa sổ còn được trâng trí những gờ đắp nổi chạy xung quanh làm cho người nhìn không hề nhàm chán. Toàn bộ đế công trình được ốp đá không chỉ mang lại tính thẩm mĩ mà còn ngăn thấm nước giảm bớt sự ảnh hưởng cho chất lượng của công trình trong thời gian sử dụng.
Đáp ứng nhu cầu thông thoáng gần gũi với thiên nhiên, chúng tôi bố trí trên tầng 2 cho nhà anh Chiến một khoảng ban công rộng với dàn hoa phía trên. Vừa đóng vai trò là một ban công, vừa là một sân chơi với nhiều cây hoa cây cảnh tạo sự thoải mái và trong lành sau những giờ làm việc và học tập mệt mỏi. Xung quanh nhà đều được bố trí những khoảng đất nhỏ trồng cây xanh, giúp không gian sinh hoạt trở nên thoải mái và dễ chịu, chinh phục mọi góc nhìn từ nhiều phía.
MẶT BẰNG CÔNG NĂNG BIỆT THỰ 2 TẦNG DIỆN TÍCH 10M X 13M
.jpg)
.jpg)
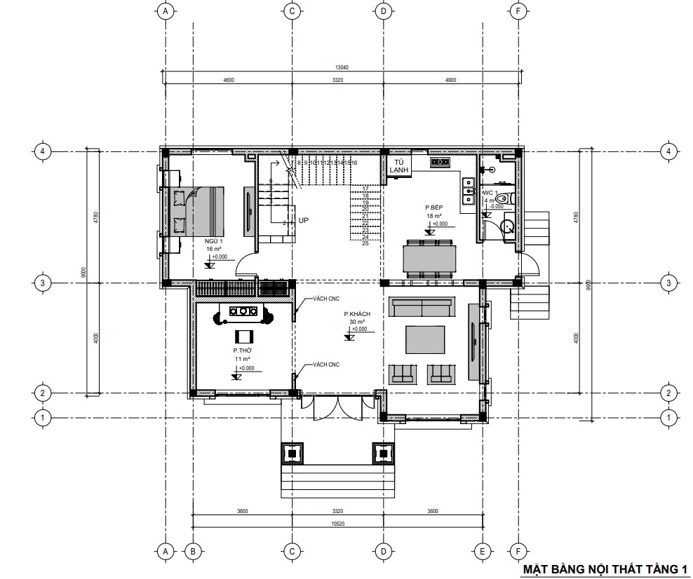
Bước từ ngoài vào trong, bên trái là phòng khách thiết kế rộng rãi với diện tích lên đến 30m2. Không gian phòng khách được thiết kế tối giản, với các hệ cửa sổ lớn nhỏ tạo sự thoải mái và thoáng đãng cho ngôi nhà.
Tiếp đó là không gian phòng thờ (11m2) được đặt ngay bên trái, có vách ngăn CNC ngăn cách với không gian phòng khách tiện lợi cho việc hương khói của gia đình và khách khứa khi đến thăm nhà.
Đi sâu vào bên trong, phía bên trái là 1 phòng ngủ (16m2) và phía bên phải là không gian bếp (18m2) cùng 1 WC chung cho cả gia đình
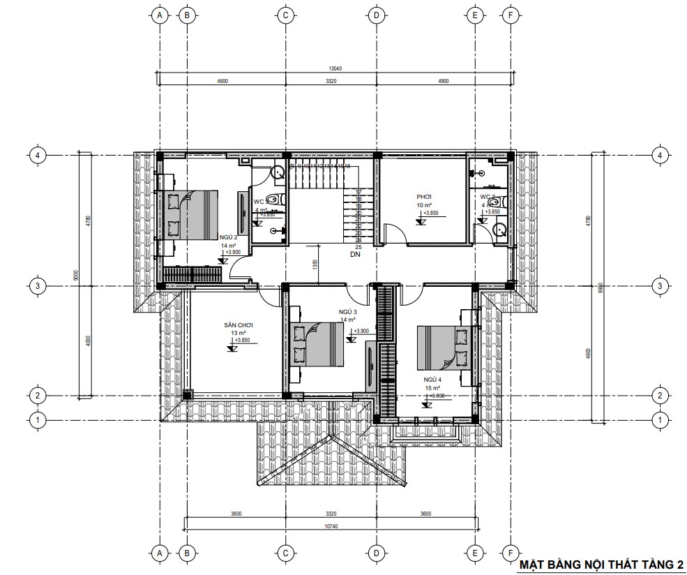
Tầng 2 được phân chia bố gồm 3 phòng ngủ, 1 sân phơi, 1 sân chơi và 1 WC chung cho toàn tầng. Trong đó có 1 phòng ngủ lớn kích thước 14m2 có WC khép kín, 2 phòng ngủ nhỏ có diện tích lần lượt là 14m2 và 15m2. Tầng 2 có 1 ban công rộng thoáng được bố trí hệ giàn hoa tạo điểm nhấn cho ngôi nhà nhà anh Chiến.
.jpg)
Phối cảnh bố trí công năng + nội thất biệt thự tầng 1
.jpg)
Phối cảnh bố trí công năng + nội thất biệt thự tầng 2
Và đương nhiên, tất cả các phòng trong ngôi nhà của anh Chiến đều có cửa sổ thông ra bên ngoài, điều này mang đến một không gian tràn ngập không khí trong lành, ngôi nhà như hòa mình với thiên nhiên, mang đến một cảm giác dễ chịu khi trở về nhà sau ngày dài học tập và làm việc.
Trên đây là bản thiết kế mẫu biệt thự 2 tầng diện tích 10m x 13m của gia đình nhà anh Chiến tại Thái Bình. Hy vọng trên đây sẽ là gợi ý phù hợp cho các bạn khi đang muốn xây dựng ngôi nhà phong cách và kích thước tương tự. Cảm ơn và chúc các bạn thành công!
