BT2021011| BIỆT THỰ 2 TẦNG CẢI TẠO NHƯ MỚI TẠI QUỐC OAI
Mẫu biêth thự 2 tầng mái Nhât mang vẻ đẹp thanh thoát, nhẹ nhàng mà gần gũi, khác với các khối nhà hầm hố của kiến trúc phong cách Pháp cầu kỳ. Mẫu nhà đẹp 2 tầng 4 phòng ngủ quấn hút tại Quốc Oai được cải tạo thể hiện nét đẹp sang trọng đơn giản, tinh tế, bố trí công năng hợp lí, hài hoà.
Gia chủ anh Hiệp ấp ủ từ lâu tình yêu đối với các mẫu nhà mái Nhật sang trọng và tiện nghi. Nắm bắt được yêu cầu và mong muốn của chủ đầu tư. Đội ngũ kiến trúc sư Nhà Đẹp 4.0 đã thiết kế cải tạo cho gia đình anh từ mẫu nhà cấp 4 khá thô, xây vo sang kiểu dáng biệt thự 2 tầng mái Nhật nhẹ nhàng vô cùng bắt mắt. Ngôi biệt thự nhanh chóng chiếm trọn cảm tình của gia đình của đầu tư.
.jpg)
Phối cảnh 3D mẫu biệt thự 2 tầng diện tích 7m x 13m
THÔNG TIN CÔNG TRÌNH BIỆT THỰ 2 TẦNG DIỆN TÍCH 7M X 13M
- Chủ đầu tư: anh Hiệp
- Điạ điểm: Quốc Oai
- Năm thiết kế: 2021
- Diện tích thiết kế: 7m x 13m
- Công năng: 4 phòng ngủ, 1 phòng khách, 1 phòng bếp.
.jpg)
Phối cảnh 3D mẫu biệt thự 2 tầng diện tích 7m x 13m
Tone sơn ngoại thất là một trong những yếu tố quan trọng để thu hút sự chú ý của người nhìn từ phía xa. Với tone ngoại thất màu trắng sáng, mẫu thiết kế nhà đẹp 2 tầng 4 phòng ngủ không chỉ nổi bật giữa không gian thiên nhiên xanh mát mà còn thể hiện được cá tính khác biệt so với các ngôi nhà cùng khu vực.
Các khung cửa nhôm kính SingFa chất lượng cao vừa giúp lấy sáng cho không gian nội thất vừa đảm bảo sự trường tồn với thời gian. Cửa nhôm SingFa kính là loại cửa sang trọng phù hợp với những ngôi nhà biệt thự 2 tầng đẹp.
Bao quanh mẫu thiết kế nhà đẹp 2 tầng 4 phòng ngủ là khoảng sân rộng vừa đủ ,vừa là nơi để phương tiện giao thông vừa là địa điểm vui chơi cho trẻ nhỏ.
Đáp ứng nhu cầu thiết kế của chủ đầu tư, KTS đã thiết kế hệ mái nhật đẹp. Kết cấu mái bao gồm lớp bê tông chịu lực và lớp ngói bao che đảm bảo công năng che nắng, mưa, gió bão và bảo vệ không gian nội thất.
Đặc biệt, để mẫu biệt thự 2 tầng đẹp 4 phòng ngủ vừa đẹp vừa thể hiện được cá tính riêng, KTS đã thiết kế hệ mái ngói có màu xanh khoáng đạt, mạnh mẽ và nhiệt huyết.
Công trình được thiết kế hệ tam cấp cùng với 2 cột chính, giúp bố cục trở lên cân đối và thanh thoát hơn. Toàn bộ đế công trình được ốp đá không chỉ mang lại tính thẩm mĩ mà còn ngăn thấm nước giảm bớt sự ảnh hưởng cho chất lượng của công trình trong thời gian sử dụng.
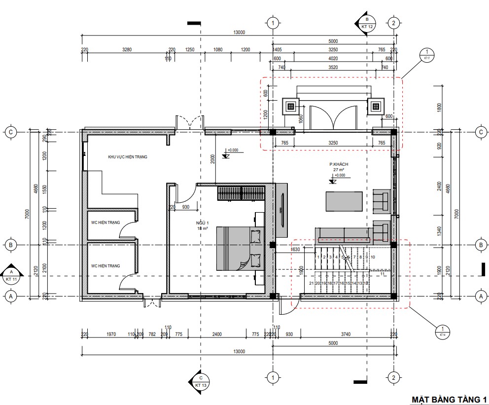
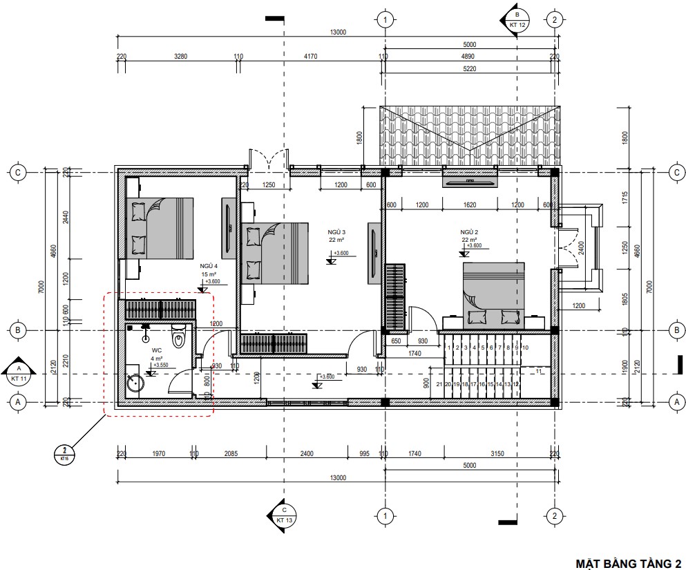
MẶT BẰNG CÔNG NĂNG BIỆT THỰ 2 TẦNG DIỆN TÍCH 7M X 13M
.jpg)
.jpg)
.jpg)
Mặt cắt 3D nội thất tầng 1
.jpg)
Mặt cắt 3D nội thất tầng 2
Bước từ ngoài vào trong là phòng khách thiết kế rộng rãi với diện tích 27m2. Không gian phòng khách được thiết kế tối giản, với 1 hệ cửa sổ lớn tạo sự thoải mái và thoáng đãng cho ngôi nhà.
Tiếp đó là không gian của 1 phòng ngủ (18m2), còn lại là khu bếp và vệ sinh chung của gia đình.
Tầng 2 được phân chia bố cục gồm 3 có kích thước rộng rãi ( 22m2, 22m2, 15m2) và 1 WC chung.
Tất cả các phòng trong ngôi nhà của anh Công đều có cửa sổ thông ra bên ngoài, điều này mang đến một không gian tràn ngập không khí trong lành, ngôi nhà như hòa mình với thiên nhiên, mang đến một cảm giác dễ chịu khi trở về nhà sau ngày dài học tập và làm việc.
Trên đây là bản thiết kế mẫu nhà 2 tầng cải tạo diện tích 7m x 13m của gia đình nhà anh Hiệp tại Quốc Oai. Hy vọng trên đây sẽ là gợi ý phù hợp cho các bạn khi đang muốn xây dựng ngôi nhà phong cách và kích thước tương tự. Cảm ơn và chúc các bạn thành công!
