BT2021010| BIỆT THỰ 2 TẦNG MÁI BẰNG HIỆN ĐẠI TIỆN NGHI TẠI SÓC SƠN - HÀ NỘI
Kiến trúc mái bằng không còn có gì xa lạ đối với người dân Việt Nam. Bởi đa số nhà ở hiện nay đều thiết kế theo dạng này. Còn với biệt thự 2 tầng mái bằng, đa phần xây dựng theo kiếu trúc hiện đại. Những căn biệt thự này phù hợp với các gia đình trẻ hoặc gia chủ yêu thích sự đơn giản trong việc lựa chọn mẫu thiết kế biệt thự 2 tầng. Hiện nay không còn nhiều người hướng tới những kiến trúc biệt thự 2 tầng mái bằng, nhưng cũng không phải là không còn. Do đó nếu giá chủ nào vẫn còn yêu thích sự tinh tế trong các nét kiến trúc biệt thự mái bằng, thì có thể tham khảo những mẫu dưới đây mà chúng tôi giới thiệu:
.jpg)
Phối cảnh 3d mẫu biệt thự 2 tầng hiện đại diện tích 8m x 11,6m
THÔNG TIN CÔNG TRÌNH BIỆT THỰ 2 TẦNG HIỆN ĐẠI DIỆN TÍCH 8M X 11,6M
- Chủ đầu tư: anh Nha
- Điạ điểm: Sóc Sơn - Hà Nội
- Năm thiết kế: 2021
- Diện tích thiết kế: 8m x 11,6m
- Công năng: 4 phòng ngủ, 1 phòng khách+thờ, 1 phòng bếp.
Phối cảnh 3d mẫu biệt thự 2 tầng hiện đại diện tích 8m x 11,6m
Tổng quan về mẫu biệt thự 2 tầng mái bằng này được các kiến trúc sư thiết kế khá tinh tế. Gia chủ khá yêu thích cây cảnh, nên sân vườn khá rộng và có cả cây bóng râm. Do đó Ban công tằng 2 hướng ra sảnh chính được sử dụng làm sân chơi, giải trí uống cf hoặc đọc sách....
Mặt tiền tầng 1 được các kiến trúc sư sử dụng cửa chính làm bằng khung nhôm kính cường lực. Toàn bộ đế công trình được ốp đá không chỉ mang lại tính thẩm mĩ mà còn ngăn thấm nước giảm bớt sự ảnh hưởng cho chất lượng của công trình trong thời gian sử dụng. Tạo ra kiến trúc mái bằng hiện đai, nhìn rất sang trọng và còn chống nóng được cho căn biệt thự.
Màu sơn được lựa chọn màu trắng để phù hợp với gạch ốp mầu vàng tạo ra sự sang trọng cho ngôi nhà. Mảng phía sau của ngôi nhà cũng được ốp bằng gạnh các bạn nhé, nếu không đủ kinh phí, các bạn cũng có thể thay bằng sơn màu cùng loại.
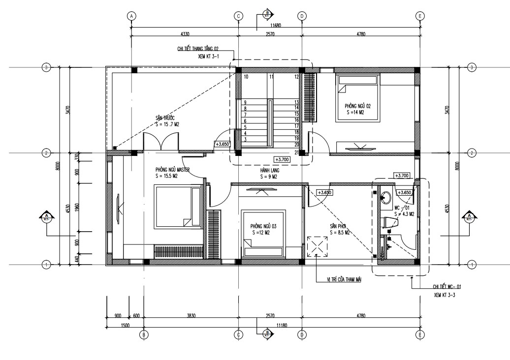
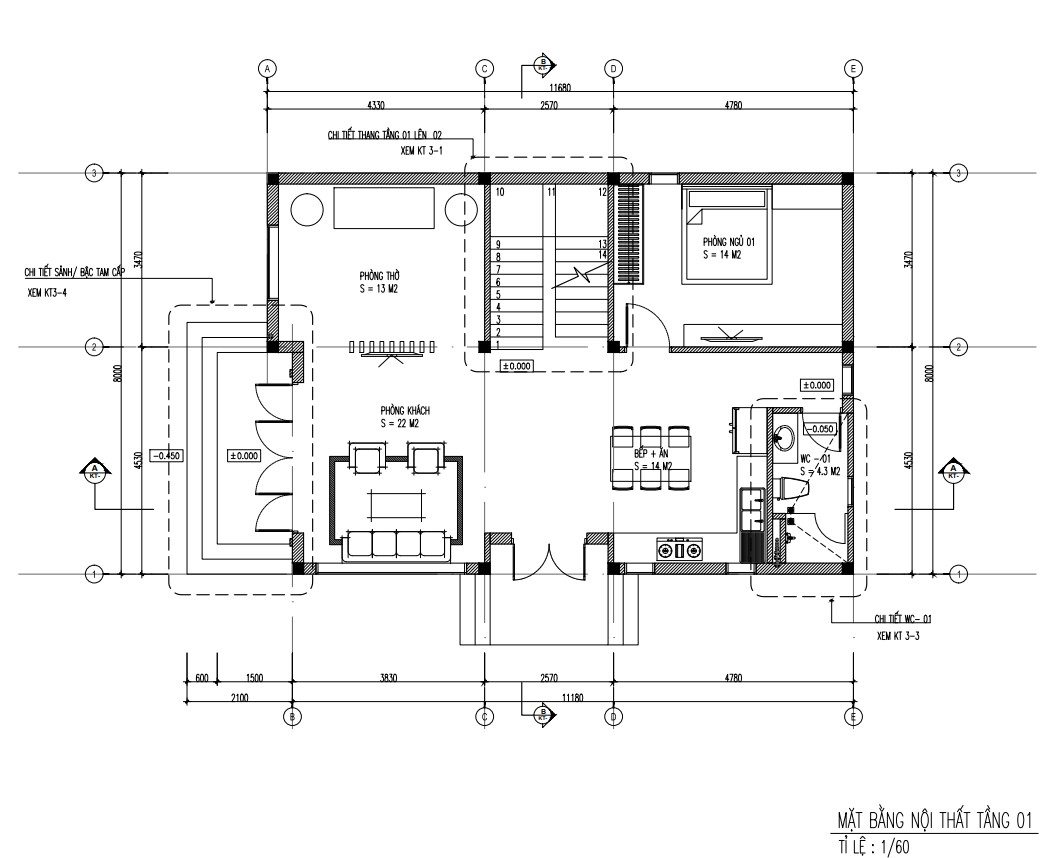
MẶT BẰNG CÔNG NĂNG BIỆT THỰ 2 TẦNG HIỆN ĐẠI DIỆN TÍCH 8M X 11,6M
.jpg)
.jpg)
Mặt bằng nội thất tầng 2
.jpg)
Mặt cắt 3D nội thất tầng 1
.jpg)
Mặt cắt 3D nội thất tầng 2
Công năng tầng 1 khi bước vào cửa chính sẽ là phòng khách, bên trái là phòng thờ được chia bởi vách ngăn bằng gỗ, nếu bạn muốn không gian rộng hơn thì các bạn có thể không dùng vách ngăn. Tiếp đến là không gian phòng bếp và 1 phòng ngủ nhỏ, vệ sinh chung được đặt cuôi nhà.
Tầng 2 được thiết kế khá hoàn hảo với 3 phòng ngủ, 1 sân phơi và sảnh giải trí chung ( 15m2) điều này mang đến một không gian tràn ngập không khí trong lành, ngôi nhà như hòa mình với thiên nhiên, mang đến một cảm giác dễ chịu khi trở về nhà sau ngày dài học tập và làm việc.
Trên đây là bản thiết kế mẫu biệt thự 2 tầng diện tích 8m x 11,6m của gia đình nhà anh Nha tại Sóc Sơn . Hy vọng trên đây sẽ là gợi ý phù hợp cho các bạn khi đang muốn xây dựng ngôi nhà phong cách và kích thước tương tự. Cảm ơn và chúc các bạn thành công!
