BT2021002 | BIỆT THỰ 2 TẦNG MÁI NHẬT ĐẸP LUNG LINH TẠI QUẢNG NINH
Biệt thự 2 tầng mái nhật là kiểu biệt thự được thiết kế theo phong cách kiến trúc mái nhật với các đường nét tinh tế và bắt mắt. Kiểu mái này mang đậm nét cổ xưa và có sự hài hòa với môi trường sống xung quanh. Biệt thự mái Nhật 2 tầng mang phong cách kiến trúc nhẹ nhàng, khiến người nhìn thấy thoải mái mà không bị rối mắt. Nó như một làn gió mới thổi hồn vào từng không gian sống, khiến gia chủ được tận hưởng cuộc sống an lành và dễ chịu. Hôm nay Nhà Đẹp 4.0 sẽ chia sẻ tới mọi người 1 mẫu biệt thự mái nhật rất được các chủ đầu tư quan tâm trong thời gian gần đây do đội ngũ kts Nhà Đẹp 4.0 đã thiết kế, để mọi người có thể tham khảo và lên ý tưởng cho ngô nhà mơ ước của gia đình mình.
.jpg)
Phối cảnh 3D mẫu biệt thự 2 tầng mái Nhật diện tích 10m x 13,5m
Biệt thự 2 tầng mái nhật tại Quảng Ninh được thiết kế cho gia đình anh Trung theo phong cách hiện đại, đơn giản nhưng không hề đơn điệu. Các đường nét hình khối đem đến sự khỏe khoắn, vững chắc và tạo sự thu hút với người nhìn. Bên cạnh đó, các đường nét chi tiết thiết kế được tối giản nhằm tôn lên nét đẹp hiện đại và tinh tế cho ngôi nhà.
Nhìn vào phối cảnh 3D mẫu nhà 2 tầng hiện đại mặt tiền 10m điểm nổi bật nhất được chú ý ngay từ cái nhìn đầu tiên đó chính là hệ mái Nhật độc đáo. Hệ mái ngói Nhật với gam màu xanh tạo nên một không gian tổng thể mới mẻ, mang hơi hướng hiện đại, tự do. Không chỉ đảm bảo về thẩm mỹ, hệ mái Nhật còn mang lại những công dụng tuyệt vời cho mẫu nhà đẹp hiện đại đó chính là giúp giải nhiệt, tỏa nhiệt cho ngôi nhà tạo không gian thoáng đãng, thoáng khí hơn nữa còn giúp thoát nước tốt, tránh tình trạng ứ đọng trên mái.
.jpg)
Phối cảnh 3D mẫu biệt thự 2 tầng mái Nhật diện tích 10m x 13,5m
Tô điểm nhẹ nhàng trên tổng thể không gian ngoại thất mô hình nhà 2 tầng mái Nhật đó chính là hệ sảnh chính, được thiết kế hệ ngũ cấp cùng với 2 cột chính, giúp bố cục trở lên cân đối và thanh thoát hơn. Toàn bộ đế công trình được ốp đá không chỉ mang lại tính thẩm mĩ mà còn ngăn thấm nước giảm bớt sự ảnh hưởng cho chất lượng của công trình trong thời gian sử dụng.
Mái ngói màu xanh kết hợp cùng tone màu trắng sứ nhẹ nhàng sẽ tạo nên sự liên kết nổi bật và hơi hướng hiện đại. Ngoài ra, ngôi nhà còn được sử dụng màu nâu tạo điểm nhấn trên các phần phân tầng, tạo điểm nhấn nổi bật cho công trình. Thân nhà và viền cửa sổ còn được trâng trí những gờ đắp nổi chạy xung quanh làm cho người nhìn không hề nhàm chán.
Đáp ứng nhu cầu thông thoáng gần gũi với thiên nhiên, chúng tôi bố trí xung quanh nhà anh Trung những hệ cửa sổ bằng chất liệu nhôm kính, giúp không gian sinh hoạt trở nên thoải mái và dễ chịu, chinh phục mọi góc nhìn từ nhiều phía.
.jpg)
Phối cảnh 3D mẫu biệt thự 2 tầng mái Nhật diện tích 10m x 13,5m
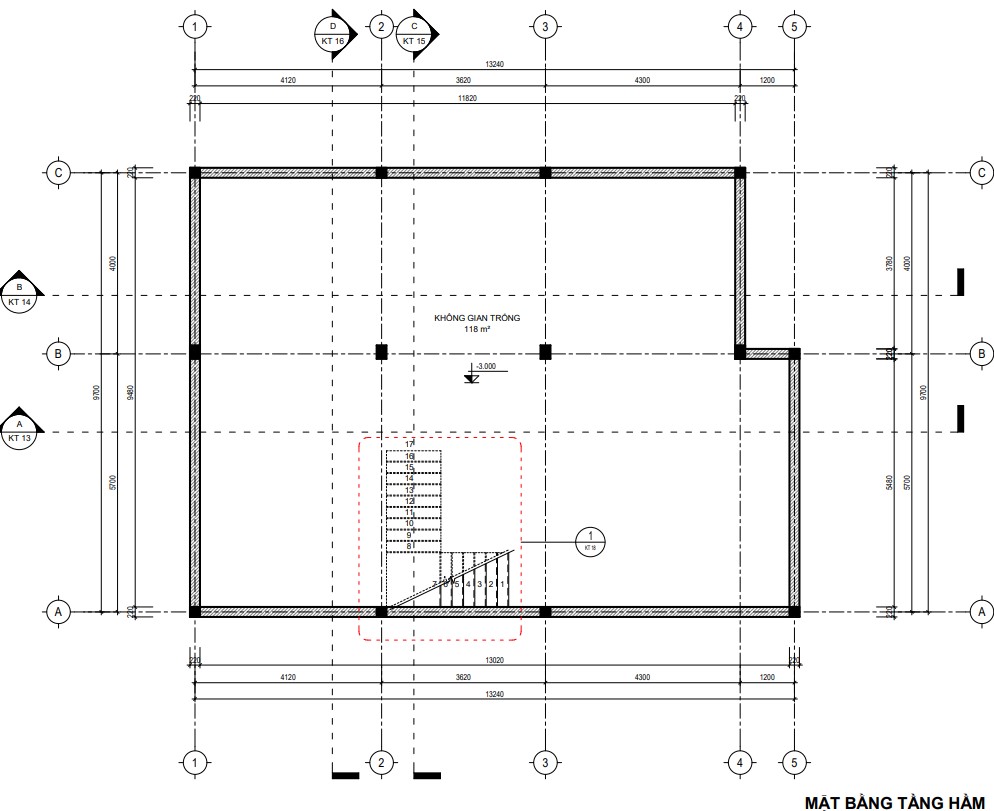
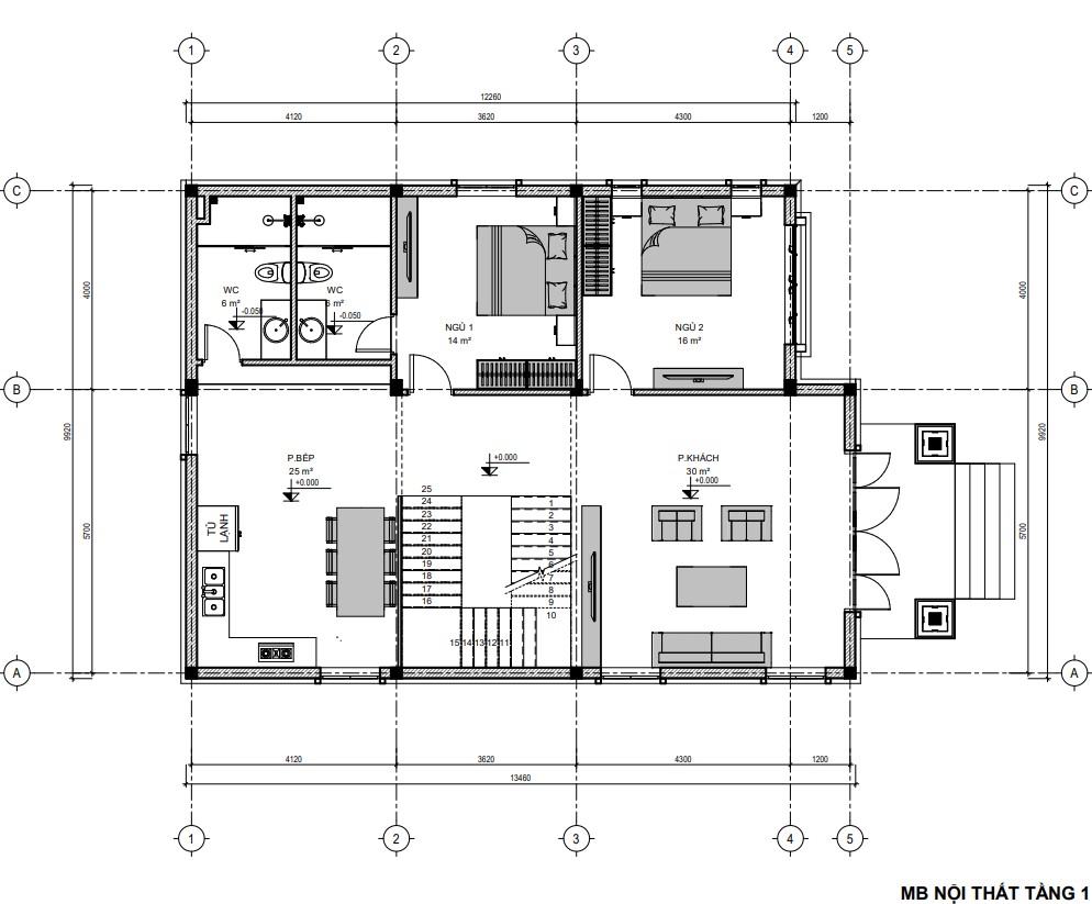
MẶT BẰNG CÔNG NĂNG BIỆT THỰ 2 TẦNG DIỆN TÍCH 10M X 13,5M ( CÓ TẦNG HẦM)
.jpg)
.jpg)
.jpg)
Tầng hầm bỏ trống
Bước từ ngoài vào là không gian phòng khách thiết kế rộng rãi với diện tích 30m2. Không gian phòng khách được thiết kế tối giản với các hệ cửa sổ tạo sự thoải mái và thoáng đãng cho ngôi nhà. Vào sâu thêm là khu vực cầu thang tiếp đến là bếp ăn (25m2), đối diện cầu thang là 2 phòng ngủ. 1 phòng ngủ lớn rộng 20m2 ( có WC riêng) và phòng ngủ nhỏ rộng 16m2 cùng 1 wc chung cho toàn tầng 1.
Tầng 2 được phân chia với bên trái cầu thang là 1 phòng ngủ có kích thước 17m2 và 1 WC chung cho toàn tầng. Trên tầng 2 được bố trí 1 phòng sinh hoạt chung rộng 15m2. Còn lại là không gian của 1 phòng ngủ lớn và 1 phòng ngủ nhỏ có diênh tích tương tự như dưới tầng 1.
Và đương nhiên, tất cả các phòng trong ngôi nhà của bác Sáu đều có cửa sổ thông ra bên ngoài, điều này mang đến một không gian tràn ngập không khí trong lành, ngôi nhà như hòa mình với thiên nhiên, mang đến một cảm giác dễ chịu khi trở về nhà sau ngày dài học tập và làm việc.
Trên đây là bản thiết kế mẫu biệt thự 2 tầng diện tích 11m x 15m của gia đình nhà anh Trung tại Quảng Ninh. Hy vọng trên đây sẽ là gợi ý phù hợp cho các bạn khi đang muốn xây dựng ngôi nhà phong cách và kích thước tương tự. Cảm ơn và chúc các bạn thành công!
