BT2020002| BIỆT THỰ 3 TẦNG MÁI BẰNG HIỆN ĐẠI
Hiện nay nhu cầu xây nhà kiểu biệt thự rất phổ biến, trong đó, các mẫu biệt thự mái Thái, mái bằng hoặc mái Nhật được rất nhiều người ưa chuộng với tính tiện dụng và những lợi thể mà nó mang lại trong quá trình sử dụng. Tùy theo nhu cầu sử dụng, khả năng tài chính cũng như sở thích của từng gia chủ, có thể lựa chọn các kiểu phong cách biệt thự khác nhau.
Sau khi gặp gỡ, trao đổi cũng như tư vấn, anh Tuyển đã quyết định lựa chọn phong cách hiện đại với mái bằng cho mẫu biệt thự 3 tầng nhà mình. Đồng thời, để đáp ứng nhu cầu sử dụng, kiến trúc sư đã thiết kế nhà theo kiểu hình hộp để có thể tận dụng tối đa không gian sử dụng của ngôi nhà.
.jpg)
Phối cảnh 3D cho A Tuyển - Thanh Hóa
Ngay từ cái nhìn bao quát của ngôi nhà, bạn sẽ cảm nhận được được nét đẹp hiện đại, năng động toát ra từ kiến trúc ngoại thất. Phong cách hiện đại được thể hiện rõ nét thông qua việc sử dụng các khối cột vuông vức, không có quá nhiều đường gờ phào hay hoa văn trang trí mà chỉ điểm xuyết vào đó những rãnh xẻ nông ở cột để tránh sự đơn điệu cho mặt tiền.
Sử dụng tối đa chất liệu hiện đại khi thiết kế biệt thự đẹp phong cách hiện đại cũng rất thường thấy. Cửa chính, cửa sổ hay lan can ban công thay vì sử dụng chất liệu gỗ (thường dùng khi thiết kế biệt thự tân cổ điển) đã được sử dụng kính trong suốt để lấy ánh sáng, tạo tầm nhìn thoáng, rộng và giúp tăng thêm nét đẹp hiện đại, sang trọng.
.jpg)
1 view khác của công trình
Mẫu nhà lấy tông màu chủ đạo là màu trắng kết hợp với nâu tạo điểm nhấn khá nhã nhặn, thanh lịch. Hai tone màu này cũng rất hiện đại và ít khi bị lỗi thời. Chính sự đơn giản, không màu mè trong việc sử dụng màu sắc đã mang đến sự sang trọng và tinh tế cho kiến trúc tổng thể bên ngoài.
.jpg)
Ngôi nhà nhìn từ trên cao xuống
Biệt thự sử dụng mái Bằng, đây là kiểu mái phổ biến được sử dụng khi thiết kế biệt thự hiện đại ngày nay. Mái bằng vừa mang nét đẹp năng động, vừa giúp tiết kiệm chi phí thi công cho gia chủ
Mặt bằng công năng trong thiết kế biệt thự 3 tầng
Một trong những công đoạn quan trọng nhất khi thiết kế nhà chính là lên phương án mặt bằng công năng cho các tầng. Công đoạn này chiếm nhiều thời gian cũng như hiệu quả của nó ảnh hưởng rất lớn tới việc sử dụng của gia chủ sau này.
Nếu việc phân chia không gian được thực hiện một cách đại khái, qua loa sẽ ảnh hưởng rất lớn việc sinh hoạt và sử dụng nhà sau này. Chính bởi thế, mà đội ngũ Kiến Trúc sư của NHÀ ĐẸP 4.0 bằng kinh nghiệm hơn 10 năm của mình trong lĩnh vực thiết kế kiến trúc – nội thất đã tư vấn theo nhu cầu công năng, tối ưu không gian sử dụng.
Cụ thể, cách bố trí các không gian mỗi tầng như sau:
.jpg)
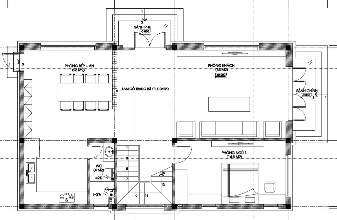
Mặt bằng công năng tầng 1
Mặt bằng tầng 1: Gồm không gian Phòng khách có diện thích 35m2, ngăn cách với không gian phòng ngủ nhỏ của ông bà bên trong là cầu thang. Phía bên phải là khu bếp và bàn ăn với diện tích 28m2.
.jpg)
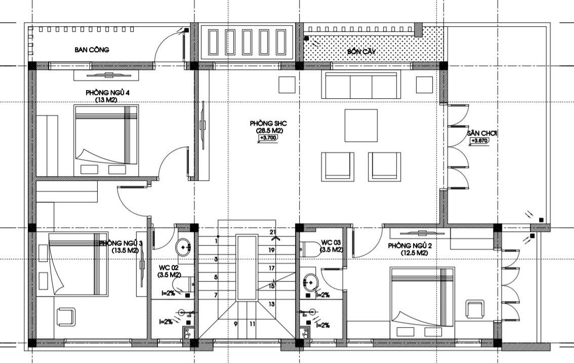
Mặt bằng công năng Tầng 2
Mặt bằng tầng 2: Tầng 2 gồm 03 phòng ngủ, trong đó có 1 phòng ngủ Master có diện tích 16m2, phòng sinh hoạt chung có diện tích 28m2 và sân chơi khá rộng, gia chủ có thể đặt bàn trà ngắm cảnh, thưởng trà.
.jpg)
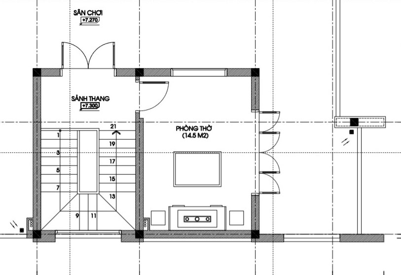
Mặt bằng công năng Tầng 3
Mặt bằng tầng 3: Tầng 3 được bố trí phòng thờ có diện tích 14m2 và khu vực sân chơi tự do. Gia chủ có thể sử dụng sân phơi hoặc trồng cây cảnh, làm vườn rau trên cao cũng rất hợp lý.
Trên đây là một trong những mẫu thiết kế biệt thự 3 tầng đẹp mà NHÀ ĐẸP 4.0 muốn giới thiệu tới bạn.
Ngoài thiết kế biệt thự, chúng tôi còn chuyên thiết kế nhà phố, nhà ống, nhà vườn, thiết kế lâu đài, khách sạn, nhà hàng…. Để tham khảo mẫu nhà đẹp và tư vấn thiết kế nhà miễn phí, bạn vui lòng gọi tới Hotline, gửi nội dung tư vấn qua email, tin nhắn zalo, Fanpage NHÀ ĐẸP 4.0 hoặc tới trực tiếp văn phòng của chúng tôi để được tư vấn. Hãy để chúng tôi có cơ hội phục vụ và đồng hành cùng bạn trên con đường chinh phục ngôi nhà mơ ước. Chúng tôi tin sẽ làm bạn hài lòng.
