BIỆT THỰ VƯỜN 1 TẦNG ĐẸP NỨC LÒNG NGƯỜI NHÌN
Bạn đang có ý định xây ngôi nhà cho mình nhưng vẫn chưa có định hướng rõ ràng?
Bạn muốn ngôi nhà nhà mình đơn giản nhưng độc đáo mà vẫn chưa thể tìm được mẫu nhà ưng ý. Vậy thì bạn đừng nên bỏ qua bài viết này nhé.
Mẫu thiết kế biệt thự vườn 1 tầng hiện đại mái Thái với kích thước 11,6m x 14,5m được công ty tư vấn thiết kế kiến trúc và nội thất Nhà Đẹp 4.0 thiết kế cho gia đình anh Đạt có địa chỉ tại Thanh Hóa. Mời các bạn cùng tham khảo.
.jpg)
Mẫu biệt thự vườn 1 tầng hiện đại 11,6 x 14,5m
THÔNG TIN CÔNG TRÌNH BIỆT THỰ VƯỜN 1 TẦNG DIỆN TÍCH 11,6M X 14,5M
- Chủ đầu tư: anh Đạt
- Điạ điểm: Thọ Xuân – Thanh Hóa
- Năm thiết kế: 2020
- Diện tích thiết kế: 11,6m x 14,5m
- Công năng: 3 phòng ngủ, 1 phòng khách, 1 phòng bếp
YÊU CẦU THIẾT KẾ CHO BIỆT THỰ VƯỜN 1 TẦNG DIỆN TÍCH 11,6M X 14,5M
Anh Đạt tìm đến công ty chúng tôi với yêu cầu và mong muốn về ngôi nhà của mình như sau:
- Gia đình muốn thi công mẫu nhà vườn 1 tầng với diện tích hơn 160m2.
- Với thế đất nhà mình, anh Đạt muốn ngôi nhà của mình thực sự nổi bật, thông thoáng và nhiều cây xanh.
- Mang hơi hướng hiện đại, đơn giản nhưng vẫn thu hút, độc đáo.
- Công năng dự kiến thi công là 3 phòng ngủ, 1 phòng khách, phòng bếp và wc chung thiết kế thông thoáng và có sự tách biệt với cách không gian khác đồng thời cũng có sảnh riêng của công trình phụ.
- Ngoại thất công trình có gam màu chủ đạo nhẹ nhàng, mát mẻ.
.jpg)
Phối cảnh 3d mẫu biệt thự vườn 1 tầng diện tích 11,6 x 14,5m
Ngay sau khi tiếp nhận yêu cầu tư vấn thiết kế của chủ đầu tư, chúng tôi đã đến hiện trạng bắt tay vào khảo sát khu vực thi công công trình, từ đó đưa ra các phương án sơ bộ cho chủ đầu tư lựa chọn.
Sau khi được tư vấn rất cụ thế kỹ càng cho công trình nhà mình, anh Đạt nhanh chóng chốt phương án chọn, và chúng tôi tiến hành họp bàn và chốt phương án 3D chi tiết.
.jpg)
Với thiết kế hệ mái Thái độ dốc cao, cùng 2 sảnh cho công trình sẽ giúp công trình thông thoáng hơn rất nhiều, thiết kế đơn giản nhưng vẫn có sức hút độc đáo, sang trọng. Hệ mái được bố trí 1 mái chính và 1 mái phụ, vừa tạo bố cục hài hòa cân đối, vừa mang điểm nhấn độc đáo cho ngôi nhà.
Công trình được thiết kế hệ ngũ cấp cùng với 2 cột chính. Toàn bộ đế công trình được ốp đá không chỉ mang lại tính thẩm mĩ mà còn ngăn thấm nước giảm bớt sự ảnh hưởng cho chất lượng của công trình trong thời gian sử dụng.
Mái ngói màu xanh dương kết hợp cùng tone màu xanh nhạt nhẹ nhàng sẽ tạo nên sự liên kết nổi bật và hơi hướng hiện đại, đáp ứng được nhu cầu của anh Đạt là khi nhìn vào ngôi nhà nhà mình sẽ thấy nhẹ nhàng, mát mẻ và thoải mái. Ngoài màu xanh nhạt, ngôi nhà còn được sử dụng màu trắng sứ trên phần phân tầng và mái, cùng với các đường kẻ chỉ ngang chạy suốt xung quan thân nhà màu xanh đậm. Thân nhà còn được bật lên bởi màu của cửa sổ hệ nhôm xingfa. Việc kết hợp màu sắc này giúp công trình của chúng ta không chỉ cuốn hút và nổi bật, mà còn bộc lộ được tính cách của gia chủ.
Đáp ứng nhu cầu thông thoáng gần gũi với thiên nhiên, chúng tôi không quên đặt ở mái hệ thống cửa sổ thông gió, đồng thời có sảnh riêng với các hệ lam gỗ cho khu phụ, và xung quanh nhà đều được bố trí những khoảng đất nhỏ trồng cây xanh, giúp không gian sinh hoạt trở nên thoải mái và dễ chịu, chinh phục mọi góc nhìn từ nhiều phía.
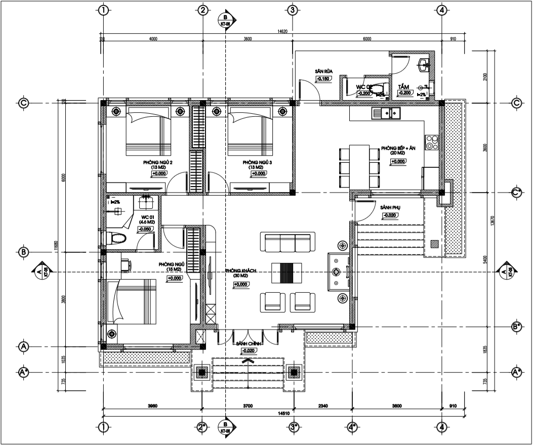
MẶT BẰNG CÔNG NĂNG BIỆT THỰ VƯỜN 1 TẦNG DIỆN TÍCH 13,2M X 16,5M
.png)
Nhìn vào bản vẽ chúng ta có thể nhận thấy cách bài trí công năng ngôi nhà khá phù hợp. Bước từ ngoài vào trong là phòng khách thiết kế rộng rãi với diện tích 30m2. Không gian phòng khách được thiết kế tối giản, với 1 hệ cửa sổ lớn tạo sự thoải mái và thoáng đãng cho ngôi nhà.
Bên trái là 3 phòng ngủ với 1 phòng ngủ master (15m2) và 2 phòng ngủ nhỏ (13m2). Còn lại khu vực bếp và wc chung được đặt phía bên phải của ngôi nhà. Với khu bếp sẽ có 1 sảnh phụ, và khu wc sẽ đặt riêng biệt ra bên ngoài.
.jpg)
Phối cảnh bố trí công năng + nội thất nhà vườn 1 tầng kích thước 11,6 x 14,5m
Tất cả các phòng trong ngôi nhà của anh Đạt đều có cửa sổ thông ra bên ngoài, điều này mang đến một không gian tràn ngập không khí trong lành, ngôi nhà như hòa mình với thiên nhiên, mang đến một cảm giác dễ chịu khi trở về nhà sau ngày dài học tập và làm việc.
Trên đây là bản thiết kế mẫu nhà vườn 1 tầng diện tích 11,6m x 14,5m của gia đình nhà anh Đạt tạiThanh Hóa. Hy vọng trên đây sẽ là gợi ý phù hợp cho các bạn khi đang muốn xây dựng ngôi nhà phong cách và kích thước tương tự. Cảm ơn và chúc các bạn thành công!
Link youtube review chi tiết hồ sơ thiết kế công trình nhà anh Đạt - Thọ Xuân:
