BIỆT THỰ VƯỜN 1 TẦNG BẮT MẮT TẠI THANH HÓA
Với thời đại phát triển như hiện nay, tất cả sự thay đổi vật chất như theo 1 guồng quay vội vã. Việc chúng ta có một cuộc sống trong căn nhà tạo sự thoải mái để sống chậm lại là điều vô cùng quan trọng. Từ những mong muốn cơ bản về ngoại thất nói chung và bố trí công năng bên trong nói riêng, thì công trình biệt thự 1 tầng dưới đây là niềm tin cậy hài lòng từ chủ nhà và chinh phục mọi khán giả. Chúng tôi xin trân trọng giới thiệu mẫu biệt thự 1 tầng với kích thước 13 x 17m được công ty cổ phần tư vấn thiết kế kiến trúc và nội thất Nhà Đẹp 4.0 thiết kế cho gia đình nhà anh Hoàng có địa chỉ tại Thanh Hóa. Mời quý vị cũng chiêm ngưỡng.

Mẫu nhà biệt thự mái Thái với mặt tiền 17m
THÔNG TIN CÔNG TRÌNH BIỆT THỰ MÁI THÁI DIỆN TÍCH 11,7M X 13,2M
- Chủ đầu tư: anh Hoàng
- Địa điểm: Thanh Hóa
- Năm thiết kế: 2020
- Diện tích thiết kế: 13m x 17m
- Công năng: 4 phòng ngủ, 1 phòng thờ, 1 phòng khách, 1 phòng bếp, 1 wc chung.
- Chi phí hoàn thiện dự kiến: 1,5 tỷ
YÊU CẦU THIẾT KẾ CHO NGÔI NHÀ BIỆT THỰ 1 TẦNG 13X17M
Anh Hoàng tìm đến công ty chúng tôi với những mong muốn cho ngôi nhà của mình cụ thể như sau:
- Gia đình muốn thi công mẫu biệt thự 1 tầng mái Thái với diện tích 13m x 17m.
- Khu đất của gia đình khá rộng, nên muốn ngôi nhà thật sự nổi bật và sang trọng.
- Mang hơi hướng hiện đại, đơn giản nhưng vẫn thu hút, độc đáo.
- Công năng dự kiến thi công là 4 phòng ngủ, 1 phòng thờ, 1 phòng khách, phòng bếp và wc chung.
- Ngoại thất công trình màu trắng chủ đạo, điểm nhấn khỏe khoắn hiện đại, gần gũi với thiên nhiên.
- Chi phí hoàn thiện dự tính không vượt quá 2 tỷ.

Phối cảnh 3d mẫu biệt thự mái Thái hiện đại diện tích 13mx17m
Ngay sau khi tiếp nhận yêu cầu tư vấn thiết kế của chủ đầu tư, chúng tôi đã đến hiện trạng bắt tay vào khảo sát khu vực thi công công trình, từ đó đưa ra các phương án sơ bộ cho chủ đầu tư lựa chọn. Sau khi được tư vấn cụ thể kỹ càng cho công trình nhà mình, anh Hoàng nhanh chóng chốt phương án chọn, và chúng tôi tiến hành đưa ra bản vẽ chi tiết.

Hệ thống mái là điểm nhìn đầu tiên gây ấn tượng lớn. Sự sắp xếp chồng lớp và bố cục hợp lý cho hệ thống mái Thái độ dốc cao. Vị trí các mái chính và mái phụ góp phần lớn trong thẩm mĩ ngoại thất của 1 công trình. Viền mái khỏe khoắn được sơn toàn bộ màu trắng sứ. Ngói được sử dụng màu nâu đỏ để khi kết hợp với tông màu trắng chủ đạo của công trình sẽ tạo lên sự hài hòa thiện cảm. Toàn bộ dưới hệ mái là những cửa sổ thoáng với kích thước lớn, vừa tăng thẩm mỹ, vừa giúp lưu thông không khí bên trong nhà.
Màu sắc ngoại thất công trình rõ nét, cá tính, bật lên trên nền trắng là những đường kẻ chỉ và gờ đắp nổi màu nâu đậm. Toàn bộ xung quanh cửa số cửa chính cũng là những đường gờ khỏe khoắn chạy xuyên suốt. Sử dụng tông màu đơn giản nhưng lại vô cùng hiện đại, bắt mắt. Hoàn toàn phù hợp với những hình khối, cách bố trí các mảng tường. Công trình được thiết kế hệ ngũ cấp cùng với 2 cột chính. Hệ cột được thu nhỏ từ thân lên đầu cột tạo sự phá cách và độc đáo cho công trình. Toàn bộ đế công trình được ốp đá không chỉ mang lại tính thẩm mĩ mà còn ngăn thấm nước giảm bớt sự ảnh hưởng cho chất lượng của công trình trong thời gian sử dụng.
Ngoài bố cục khỏe khoắn của các chi tiết, thì chúng tôi cũng khá quan tâm tới cảm giác của gia đình gia chủ, nên từ sảnh phụ cho đến khuôn viên đất, chúng tôi đều bố trí những khoảng xanh bắt mắt, giúp cuộc sống của mọi người luôn thoải mái, dễ chịu gần gũi với thiên nhiên.
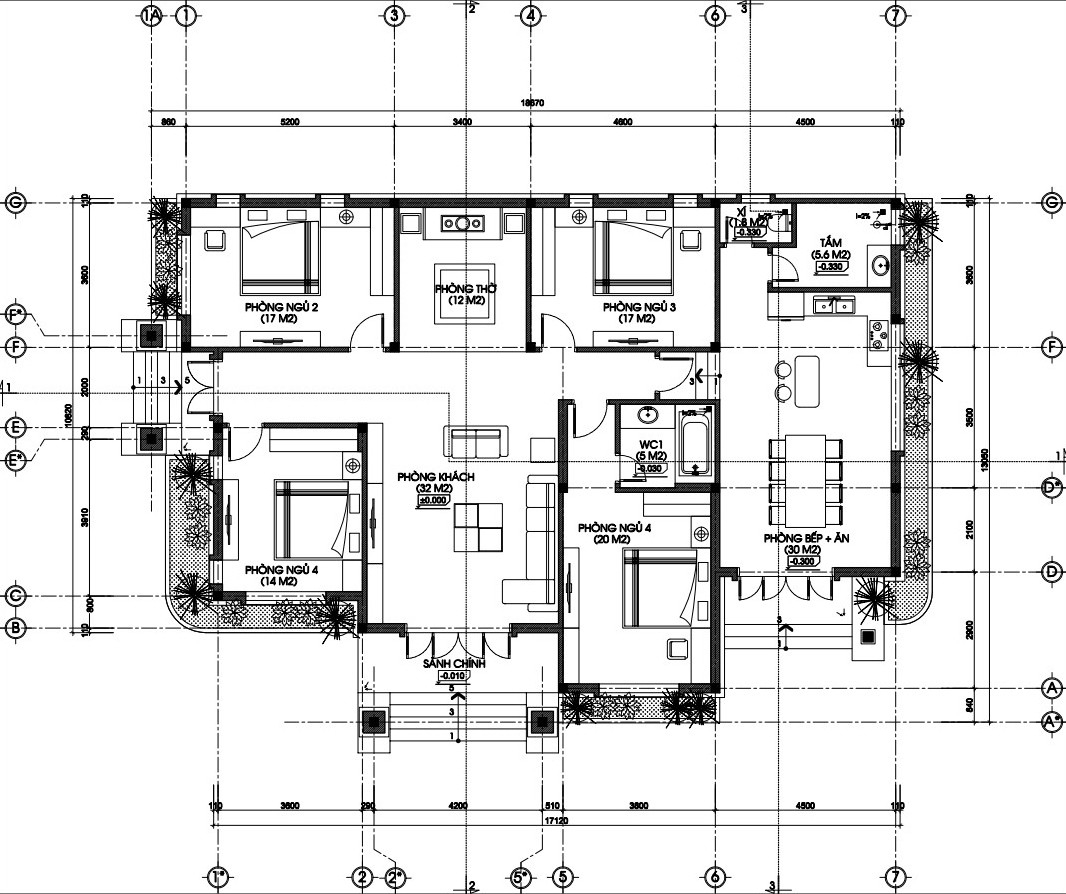
MẶT BẰNG CÔNG NĂNG NHÀ BIỆT THỰ MÁI THÁI DIỆN TÍCH 13M X 17M

Bước từ ngoài vào trong là phòng khách thiết kế rộng rãi với diện tích 32m2. Không gian phòng khách là nơi đầu tiên để cả nhà gặp gỡ, chào đón khách, nên sự sắp xếp đồ đạc cần gọn gàng.
Đối diện phòng khách là phòng thờ (12m2) nhỏ nhắn và giữ được sự ấm cúng trang nghiêm. Bên trái ngôi nhà được bố trí 2 phòng ngủ, 1 phòng ngủ 14m2 và 1 phòng ngủ 17m2. Từ đây cũng có 1 lối phụ đi ra ngoài rất riêng tư mà không phải đi qua phòng khách.
Cuối cùng bên phải còn lại 2 phòng ngủ với 1 phòng ngủ 17m2 và 1 phòng ngủ master rộng 20m2. Khu vực bếp và vệ sinh chung được đặt gần như tách biệt với các không gian khác, giữ một không gian sống luôn thoáng mát và sạch sẽ. Khu vực bếp ăn rộng 30m2 và cũng có lối ra sảnh phụ phía trước, dễ dàng giao lưu với khống gian bên ngoài.
Và chúng ta vừa được chiêm ngưỡng mẫu biệt thự 1 tầng diện tích 13x17m của gia đình anh Hoàng tại Thanh Hóa. Hy vọng sẽ là gợi ý phù hợp cho các bạn khi đang muốn xây dựng ngôi nhà phong cách và kích thước tương tự. Mọi ý kiến đóng góp quý vị có thể để lại dưới phần bình luận, hoặc đang cần tư vấn về thiết kế thi công, quý vị hãy liên hệ với hotline của Nhà Đẹp 4.0 để chúng tôi có thể hỗ trợ trực tiếp. Chúc các bạn thành công!
