BIỆT THỰ PHỐ HIỆN ĐẠI TẠI HẢI DƯƠNG
Nhà phố luôn là bài toán hay ho cho các kiến trúc sư thiết kế sao cho công trình nhà ở được đáp ứng đủ nhu cầu, giải quyết hết các vấn đề về công năng, ánh sáng, và cả mặt thẩm mĩ. Quý vị đừng bỏ qua số này để chiêm ngưỡng mẫu thiết kế căn nhà phố mang lại một cảm giác sống xanh cho mỗi thành viên trong gia đình mình. Hồ sơ thiết kế được chúng tôi bàn giao cho gia đình anh Hậu tại Hải Dương– một sản phẩm của Nhà Đẹp 4.0. Mời quý vị và các bạn cùng khám phá.

Mẫu nhà phố với mặt tiền 5m
THÔNG TIN CÔNG TRÌNH NHÀ PHỐ DIỆN TÍCH 5M x 18,5M
- Chủ đầu tư: anh Hậu
- Địa điểm: Hải Dương
- Năm thiết kế: 2020
- Diện tích thiết kế: 5m x 18,5m
- Công năng: 3 phòng ngủ, 1 phòng thờ, 1 phòng khách, 1 phòng bếp, 1 sân chơi.
- Chi phí hoàn thiện dự kiến: 1,16 tỷ.
YÊU CẦU THIẾT KẾ CHO NGÔI NHÀ PHỐ 5X18,5M
Anh Hậu tìm đến công ty chúng tôi với những mong muốn cho ngôi nhà của mình cụ thể như sau:
- Gia đình muốn thi công mẫu nhà phố với diện tích 5m x 18,5m.
- Chính vì là nhà phố duy nhất 1 mặt tiền nên anh mong muốn ngôi nhà thật sự nổi bật và sang trọng.
- Mang hơi hướng hiện đại, đơn giản nhưng vẫn thu hút, độc đáo.
- Công năng dự kiến thi công là 3 phòng ngủ, 1 phòng thờ, 1 phòng khách, phòng bếp và sinh hoạt vui chơi.
- Ngoại thất công trình màu trắng chủ đạo, điểm nhấn khỏe khoắn hiện đại, gần gũi với thiên nhiên.
- Chi phí hoàn thiện dự tính không vượt quá 1,5 tỷ.

Phối cảnh 3d mẫu nhà phố hiện đại diện tích 5x18,5m
Ngay sau khi tiếp nhận yêu cầu tư vấn thiết kế của chủ đầu tư, chúng tôi đã đến hiện trạng bắt tay vào khảo sát khu vực thi công công trình, từ đó đưa ra các phương án sơ bộ cho chủ đầu tư lựa chọn. Sau khi được tư vấn cụ thể kỹ càng cho công trình nhà mình, anh Hậu nhanh chóng chốt phương án chọn, và chúng tôi tiến hành đưa ra bản vẽ chi tiết.

Không đi theo lối mái bằng, công trình nhà anh Hậu được sử dụng mái thái độ dốc cao. Nên với kích thước 5x18,5m, ngoài việc phát triển theo chiều sâu thì công trình còn phát triển theo chiều đứng. Với những mong muốn ban đầu của anh Hậu, mặt tiền rất hạn chế, vì vậy chú muốn căn nhà mình có khoảng thở, có khoảng xanh, và đặc biệt là đáp ứng đủ độ thông thoáng, nổi bật trong mọi ánh nhìn. Bởi vậy chúng tôi biến đổi mặt tiền công trình nhà anh với những nét chấm phá riêng biệt. Trải dài từ mái xuống tầng 1 vẫn là bố cục vuông vắn khỏe khoắn, đơn giản nhưng không hề đơn điệu. Khi quan sát kỹ mới thấy những nét đẹp tiềm ẩn của công trình nhà phố. Gam màu được sử cũng hết sức khiêm tốn với màu trắng chủ đạo. Cùng với đó là màu gạch ốp. bồn cây trên tầng 2 và tầng 3.Cuốn hút bởi sự giản dị, không cầu kỳ, công trình còn có cảm tình cho người nhìn bằng những điểm xanh nổi bật. Từ tầng 1 lên tầng cao đều được dành ra những khoảng thở của cây xanh, để nơi nào ở công trình cũng có những vị trí gia chủ có thể đứng lặng và tận hưởng những không khí trong lành, dễ chịu sau ngày dài học tập và làm việc mệt mỏi. Ban ngày là những cái nhìn ấn tượng nhẹ nhàng cho công trình, còn ban tối sẽ lung linh khi có ánh điện ngoài công trình.
MẶT BẰNG CÔNG NĂNG NHÀ PHỐ DIỆN TÍCH 5M X 18,5M
.jpg)
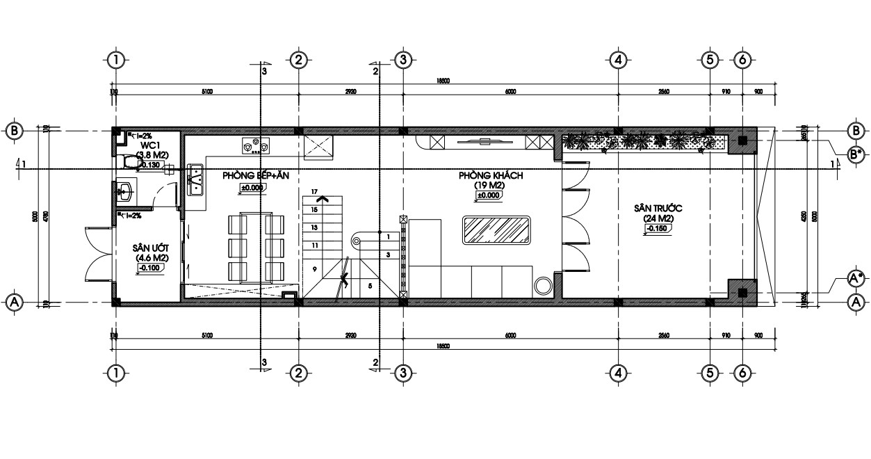
Mặt bằng tầng 1 nhà phố 5x18,5m
.jpg)
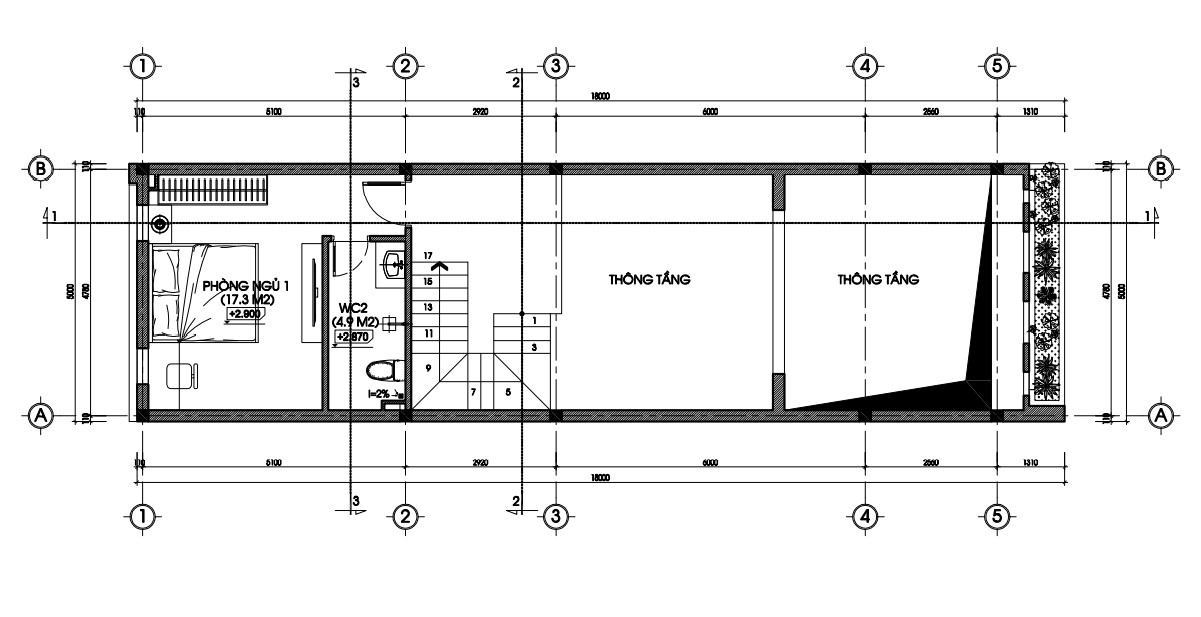
Mặt bằng tầng lửng nhà phố 5x18,5m
.jpg)
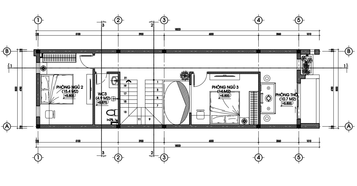
Mặt bằng tầng 2 nhà phố 5x18,5m
.jpg)
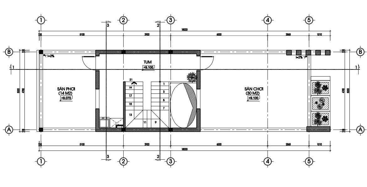
Mặt bằng tầng 3 nhà phố 5x18,5m
Bước từ ngoài vào trong là khoảng sân rộng rãi với diện tích 24m2. ở đây gia chủ có thể thoải mái trồng cây xanh theo sở thích, tăng thêm sự trong lành cho công trình. Vào bên trong là không gian phòng khách rộng 19m2. Là nơi tiếp đón mọi người nên vị trí này được trưng bày gọn gàng hút măt. Đi sâu vào bên trong là khô gian bếp ăn (18m2) với lối ra sân ướt và 1 wc chung phía bên ngoài. Từ tầng 1 sẽ được thông tầng với tầng lửng. tại tầng lửng được bố trí 1 phòng ngủ master rộng 17,3m2. Tương tự lên tầng 2 được bố trí 1 phòng ngủ master có kích thước như phòng ngủ bên dưới và wc được đặt ra ngoài. 1 phòng ngủ nhỏ nữa rộng 14m2 được bố trí bên phải cầu thang. Còn lại trên tầng 3 là 1 phòng thờ rộng 10,7m2. Tiếp tục lên tầng 3 là dành riêng cho khu vực sân phơi và sân chơi.
Tất cả các không gian bên trong đều được lấy sáng tự nhiên thuận lợi bằng hệ thống cửa sổ, đặc biệt công trình được bố trí giếng trời nên hoàn toàn anh Hậu rất ưng ý.
Trên đây là bản thiết kế mẫu nhà phố diện tích 5x18,5m cho gia đình nhà anh Hậu. Với những gì chúng tôi đã chia sẽ, hy vọng mọi người đã có ý tưởng và dự định cho bản thân và sớm sở hữu cho mình một ngôi nhà lý tưởng. Mọi ý kiến đóng góp quý vị có thể để lại dưới phần bình luận, hoặc đang cần tư vấn về thiết kế thi công, quý vị hãy liên hệ với hotline của Nhà Đẹp 4.0 để chúng tôi có thể hỗ trợ trực tiếp. Chúc các bạn thành công!
