BIỆT THỰ NHỎ XINH TẠI THÁI NGUYÊN
Mẫu biệt thự 1 tầng hiện đại với phối cảnh kiến trúc ấn tượng và công năng khoa học, có tổng mức kinh phí đầu tư chưa đến 800 triệu được Nhà Đẹp 4.0 thiết kế cho gia đình nhà anh Hà tại Thái Nguyên. Hi vọng sẽ giúp các bạn hoàn thiện ý tưởng thiết kế mẫu biệt thự vườn 1 tầng cho gia đình mình nhé.
Mẫu thiết kế nhà đến với công ty chúng tôi là một chữ duyên tình cờ, khi mà trong chuyến công tác của mình, bộ phận kiến trúc sư của chúng tôi đã có cơ hội tiếp xúc trực tiếp với chủ đầu tư. Từ đó tiếp cận trực tiếp và đón nhận được những mong muốn của anh. Chúng tôi đã khảo sát hiện trạng trước khi đưa ra những phương án phác thảo khoa học nhất dành cho mẫu biệt thự đẹp.
.jpg)
Mẫu nhà vườn mái Thái với mặt tiền 9m
THÔNG TIN CÔNG TRÌNH NHÀ CẤP 4 MÁI THÁI DIỆN TÍCH 12M X 13M
- Chủ đầu tư: anh Hà
- Địa điểm: Thái Nguyên
- Năm thiết kế: 2020
- Diện tích thiết kế: 9m x 20,5m
- Công năng: 3 phòng ngủ, 1 phòng khách, 1 phòng thờ, 1 phòng bếp.
YÊU CẦU THIẾT KẾ CHO NGÔI NHÀ VƯỜN 12X13M
Anh Hà tìm đến công ty chúng tôi với những mong muốn cho ngôi nhà của mình cụ thể như sau:
- Gia đình muốn thi công mẫu nhà vườn mái Thái với diện tích 9m x 20,5m.
- Khu đất của gia đình khá rộng, nên muốn ngôi nhà thật sự nổi bật và sang trọng.
- Mang hơi hướng hiện đại nhưng vẫn mang một chút tân cổ, đơn giản nhưng vẫn thu hút, độc đáo.
- Công năng dự kiến thi công là 3 phòng ngủ, 1 phòng khách, 1 phòng thờ, 1 phòng bếp.
- Ngoại thất công trình màu nhẹ nhàng, thanh thoát, gần gũi với thiên nhiên, đặc biệt gia chủ muốn kết hợp trắng sứ với xanh lam.
.jpg)
Dự định anh Hà định thi công mẫu biệt thự 1 tầng hiện đại mái lệch, tuy nhiên suy đi tính lại, mẫu nhà ấn tượng ban đầu vẫn là sự lựa chọn số 1. Anh chốt phương án thiết kế mà mình sẽ thi công chính là mẫu biệt thự 1 tầng hiện đại mái thái.
Phối cảnh kiến trúc yêu cầu phải thể hiện được sự độc đáo, khác biệt và tươi mới hơn so với những mẫu nhà cấp 4 khác. Thiết kế biệt thự phải thể hiện được sự bề thế, sang trọng, tuy nhiên công năng phải khoa học và có thể thiết kế hành lang giao thông tối ưu cho việc di chuyển giữa các không gian trong nhà. Thiết kế đảm bảo có không gian để xe thuận tiện và khoa học, đảm bảo tính riêng tư và thống nhất, không liên quan đến các không gian khác.
Tổng kinh phí đầu tư cho mẫu thiết kế biệt thự 1 tầng hiện đại không vượt quá 800 triệu, hoàn thiện trước tết nguyên đán 2021.
Với cái nhìn bao quát tổng thể, chúng ta có thể nhìn thấy hình khối mẫu thiết kế nhà toát lên những nét thanh tao và hiện đại. Hình khối kiến trúc kiên cố, từ thiết kế hệ thống mảng khối cho đến bố cục tường, vách đều được tính toán chi tiết và cẩn thận.
Kiến trúc mái thái thiết kế khối mái chữ A được xếp chồng 2 lớp mái, khối đua rộng cùng với màu sắc hiện đại tạo nên những điểm nhấn mạnh mẽ, tinh tế và bề thế cho công trình nhà anh Hà.
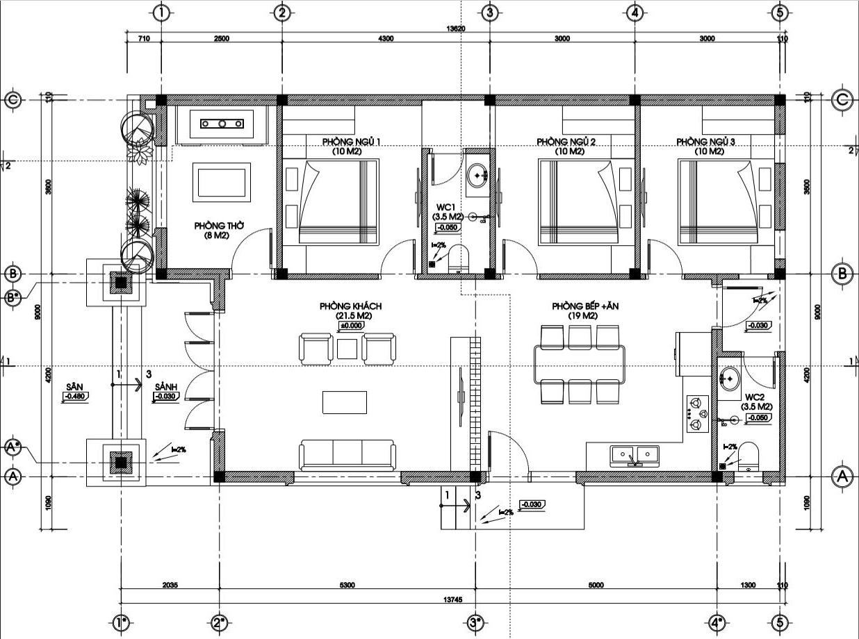
MẶT BẰNG CÔNG NĂNG MẪU CẤP 4 MÁI THÁI DIỆN TÍCH

Mặt bằng mẫu biệt thự 1 tầng 3 phòng ngủ
Toàn bộ sàn nhà được ốp gạch màu nhạt, đi cùng với ngoại thất màu trằn sáng và thiết kế mái thái màu xanh lam, tạo nên sự đối xứng hoàn hảo.
Mặt tiền và ngoại thất ăn nhập với nhau một cách ăn ý, trong tổng thể cảnh quan sân vườn tươi mát, mẫu nhà hoàn toàn chinh phục được chủ đầu tư.
Phối cảnh công năng mẫu biệt thự 1 tầng 3 phòng ngủ
Đi từ ngoài vào trong sẽ là không gian phòng khách (21,5m2) được bố trí 1 hệ cửa sổ lớn tạo độ sáng và thoáng cho không gian bên trong. Phía bên trái sẽ là 1 phòng thờ (8m2) và 1 phòng ngủ 10m2.
Đi sâu vào bên trong sẽ là 2 phòng ngủ còn lại có kích thước tương tự và 1 phòng bếp. Bếp có diện tích 19m2, có lối đi ra sân riêng.
Trên đây là sơ lược hồ sơ bản vẽ chúng tôi thiết kế cho anh Hà tại Thái Nguyên. Hy vọng đây sẽ là gợi ý cho các bạn. Chúc các bạn sớm đạt được ước mơ của mình!

.jpg)