BIỆT THỰ NHẸ NHÀNG TẠI CẨM GIÀNG HẢI DƯƠNG
Với khu đất phát triển về chiều sâu, chủ đầu tư sẽ cần cân nhắc về thiết công trình nhà tầng của gia đình mình như thế nào cho cân đối, khoa học nhưng vẫn tiết kiệm chi phí. Mẫu biệt thự 2 tầng hiện đại kích thước 9,8 x 13m được Nhà Đẹp 4.0 thiết kế cho gia đình chũ Sỹ tại Hải Dương sẽ là câu trả lời cho các bạn. Mặt tiền ấn tượng cùng với công năng sử dụng khoa học, hy vọng sẽ giúp các bạn có thể tham khảo để có thêm những ý tưởng thiết kế hoàn hảo cho gia đình mình.
.jpg)
Mẫu nhà vườn mái Thái với mặt tiền 13m
THÔNG TIN CÔNG TRÌNH NHÀ 2 TẦNG MÁI NHẬT DIỆN TÍCH 9,8M X 13M
- Chủ đầu tư: chú Sỹ
- Địa điểm: Hải Dương
- Năm thiết kế: 2020
- Diện tích thiết kế: 9,8m x 13m
- Công năng: 4 phòng ngủ, 1 phòng thờ, 1 phòng khách (khu phụ đặt bên ngoài).
YÊU CẦU THIẾT KẾ CHO NGÔI NHÀ VƯỜN 9,8X13M
Chú Sỹ tìm đến công ty chúng tôi với những mong muốn cho ngôi nhà của mình cụ thể như sau:
- Gia đình muốn thi công mẫu nhà vườn mái Nhật với diện tích 9,8m x 13m.
- Khu đất của gia đình khá rộng, nên muốn ngôi nhà thật sự nổi bật và sang trọng.
- Mang hơi hướng hiện đại nhưng vẫn mang một chút tân cổ, đơn giản nhưng vẫn thu hút, độc đáo.
- Công năng dự kiến thi công là 4 phòng ngủ, 1 phòng thờ, 1 phòng khách.
- Ngoại thất công trình màu nhẹ nhàng, thanh thoát, gần gũi với thiên nhiên.

Mẫu nhà vườn mái Nhật hiện đại diện tích 9,8x13m
Ngay sau khi tiếp nhận yêu cầu tư vấn thiết kế của chủ đầu tư, chúng tôi đã đến hiện trạng bắt tay vào khảo sát khu vực thi công công trình, từ đó đưa ra các phương án sơ bộ cho chủ đầu tư lựa chọn. Sau khi được tư vấn cụ thể kỹ càng cho công trình nhà mình, chú Sỹ nhanh chóng chốt phương án chọn, và chúng tôi tiến hành đưa ra bản vẽ chi tiết.

Với thiết kế hệ mái Nhật độ dốc không cao, cùng 2 sảnh cho công trình giúp công trình có được bố cục và tỉ lệ vàng như quý vị có thể thấy. Mái ngói màu xanh dương kết hợp cùng tone màu trắng sứ nhẹ nhàng sẽ tạo nên sự liên kết nổi bật và hơi hướng hiện đại. Những chi tiết nhỏ như phần kẻ chỉ trên thân nhà và cột cũng không hề kém phần thẩm mĩ đóng góp cho ngoại thất công trình. Thân nhà và viền cửa sổ còn được bật lên bởi những gờ đắp nổi chạy xung quanh tạo điểm nhấn mạnh cho công trình của nhà chú Sỹ. Xung quanh công trình là những mảng khối được ốp gạch thẻ đậm màu, nhấn nhá mạnh mẽ bố cục ngoại thất, tạo cảm giác thú vị cho người ngắm nhìn xung quanh.
Tầng 2 còn có một điểm chú ý rất quan trọng, đó là 1 ban công rộng rãi với hệ lam bê tông chắc chắn. Và tổng thể ngoại thất công trình không thể thiếu được những điểm xanh, đó là bồn đất trồng cây trước nhà và trên tầng 2. Đây là những điểm nhìn hút mắt gây dấu ấn lớn khi chúng ta ngắm nhìn một ngôi nhà.
Cùng với bố cục vuông vắn là hệ ngũ cấp càng tôn lên sự bề thế cho công trình, thước cột trước sảnh được sử dụng kích thước lớn 600x600. Cả 2 sảnh đều được mở rộng để chào đón khách khứa đến chơi nhà có cảm giác thoải mái dễ chịu nhất.
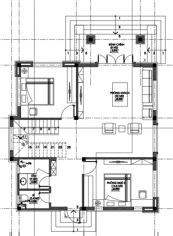
MẶT BẰNG CÔNG NĂNG NHÀ 2 TẦNG DIỆN TÍCH 9,8M X 13M


Bước từ ngoài vào trong là phòng khách thiết kế rộng rãi với diện tích 30m2. Không gian phòng khách được thiết kế tối giản, tạo không gian thoáng đáng cho nơi tiếp khách. Phía bên phải cạnh cầu thang là 1 phòng ngủ 13m2, bố trí 2 cửa sổ lấy sáng khá lớn. Còn lại là 1 phòng ngủ kích thước 14,5m2 cũng được bố trí tương tự. Khu vệ sinh chung được đặt riêng xí và tắm và vị trí này giúp không gian khác trong nhà luôn đảm bảo trong lành thoáng mát. Từ đây có một lối riêng đi ra sân sau nhà.
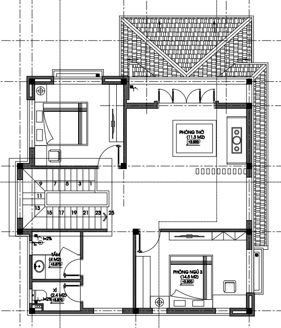
Tầng 2 được phân chia bố cục tương tự. Với 2 phòng ngủ kích thước và bố trí tương đương ở tầng 1. Một phòng thờ nho nhỏ diện tích 11,3m2 được đặt hướng hợp mênh gia chủ. Và trên tầng 2 có một ban công rộng rãi, mở rộng diện tích lấy sáng tối ưu cho không gian tầng 2.
Trên đây là bản thiết kế mẫu nhà biệt thự 2 tầng diện tích 9,8m x 13m của gia đình nhà chú Sỹ tại Hải Dương. Mặt tiền ấn tượng cùng với công năng sử dụng khoa học, hy vọng sẽ giúp các bạn có thể tham khảo để có thêm những ý tưởng thiết kế hoàn hảo cho gia đình mình. Mọi ý kiến đóng góp quý vị có thể để lại dưới phần bình luận, hoặc đang cần tư vấn về thiết kế thi công, quý vị hãy liên hệ với hotline của Nhà Đẹp 4.0 để chúng tôi có thể hỗ trợ trực tiếp. Chúc các bạn thành công!
