BIỆT THỰ MINI 3 TẦNG HIỆN ĐẠI 5 PHÒNG NGỦ
Mẫu biệt thự mini 3 tầng hiện đại với phối cảnh kiến trúc kiên cố, mặt tiền thoáng rộng cùng với những vật liệu thi công mới đem đến hiệu ứng thẩm mỹ khá khả quan và thu hút được nhiều sự chú ý của khách hàng. Nếu như bạn đang tìm kiếm mẫu thiết kế tiện nghi và tiết kiệm chi phí thì đừng bỏ qua mẫu thiết của Wedo dưới đây nhé.
.jpg)
Diện tích thiết kế thi công gia đình mong muốn là 100m2/sàn, hình khối kiến trúc hiện đại, mặt tiền thoáng, thiết kế có sân vườn hiện đại và hệ thống tường rào bao quanh kiên cố. Khối ban công đua rộng, thiết kế lan can bằng kính cường lực hiện đại, khoảng mặt bằng mái có sự kết hợp của mái bằng và mái thái để tạo điểm nhấn cho hiệu ứng không gian hoàn hảo nhất.
Công năng chức năng cơ bản phải đảm bảo 5 phòng ngủ, phòng sinh hoạt chung và sảnh thang thông tầng của mỗi tầng sẽ được tận dụng làm phòng uống trà. Mặt bằng sử dụng chức năng phải được tính toán chi tiết và khoa học, đảm bảo không gian di chuyển cho các thành viên trong nhà.
Tiến độ thi công hoàn thiện công mẫu biệt thự dự định trong vòng 8 tháng, tổng kinh phí đầu tư hoàn thiện ở mức cơ bản không vượt quá 2,5 tỷ đồng.
Đánh giá và chiêm ngưỡng mẫu thiết kế nhà biệt thự 3 tầng hiện đại

Phối cảnh thiết kế mẫu biệt thự mini hiện đại và khoa học
Không gian kiến trúc cũng như cảnh quan sân vườn của mẫu biệt thự được bố trí theo cách khoa học và khá đẹp mắt. Từ thiết kế sân trước sử dụng gạch xanh xám, chuyên thi công cho những mẫu biệt thự vườn hiện đại, cho đến tiểu cảnh xanh và những khối phẳng, đường nét tinh xảo đã tạo nên một không gian sống không những có tính bền vững về kết cấu, nó còn đảm bảo trọn vẹn tính thẩm mỹ tinh tế của không gian chung.
Để mặt tiền mẫu nhà đẹp trở nên thông thoáng, kiến trúc sư sử dụng hệ thống cửa kính với thiết kế vách kính cao sát trần, thay thế cho những bức tường bê tông, cùng với đó là khối ban công đua rộng và thiết kế mặt tiền sử dụng lam chớp nhôm để tạo điểm nhấn thẩm mỹ và đón sáng mang đến một không gian tổng hòa chung khá mới mẻ.
Kiến trúc mái thiết kế mái chéo, cùng với khoảng sân thượng thiết kế tiểu cảnh xanh, mang, giúp không gian sống thêm phần trọn vẹn và tươi mới hơn rất nhiều.
Với hình khối kiến trúc đơn giản, việc sử dụng màu sơn ngoại thất trắng cùng với cách phối màu thông minh, giúp cho khoảng không gian không những hài hòa hơn, cuốn hút hơn, nó còn điểm tô và phô diễn trọn vẹn một cuộc sống tiện nghi với đầy đủ các công năng.
Mặt bằng công năng sử dụng mẫu biệt thự mini 3 tầng hiện đại và khoa học

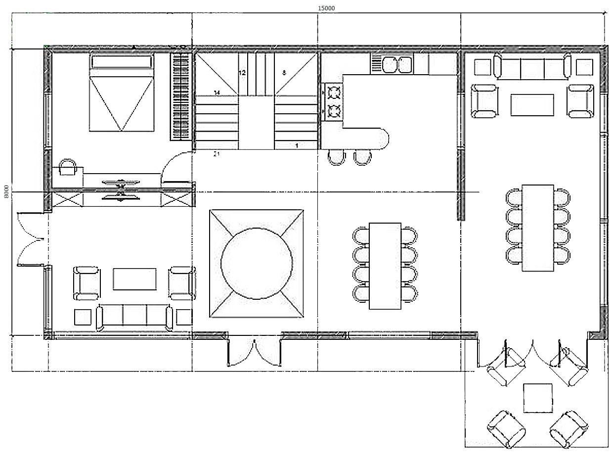
Mặt bằng tầng 1 mẫu biệt thự mini hiện đại 3 tầng
Hình khối kiến trúc mẫu biệt thự mini 3 tầng hiện đại đẹp mắt sẽ giúp không gian sống thêm ấn tượng. Tuy nhiên nếu mặt bằng công năng không khoa học thì cuộc sống sinh hoạt của gia đình sẽ gặp nhiều vướng mắc. Nhận biết tầm quan trọng này, kiến trúc sư đã tiến hành khảo sát hiện trạng, từ đó đưa ra phương án thiết kế sao cho khoa học nhất với gia đình chủ đầu tư.
Phòng khách thiết kế cạnh với cửa chính, thiết kế tiếp giáp với phòng ăn và bếp nấu. Phía trong cùng là phòng sinh hoạt chung của các thành viên, 1 phòng ngủ nhỏ dành cho ông bà được thiết kế hướng cửa trước, nên đó nhận được nhiều ánh sáng và gió không khí lưu thông cho không gian.

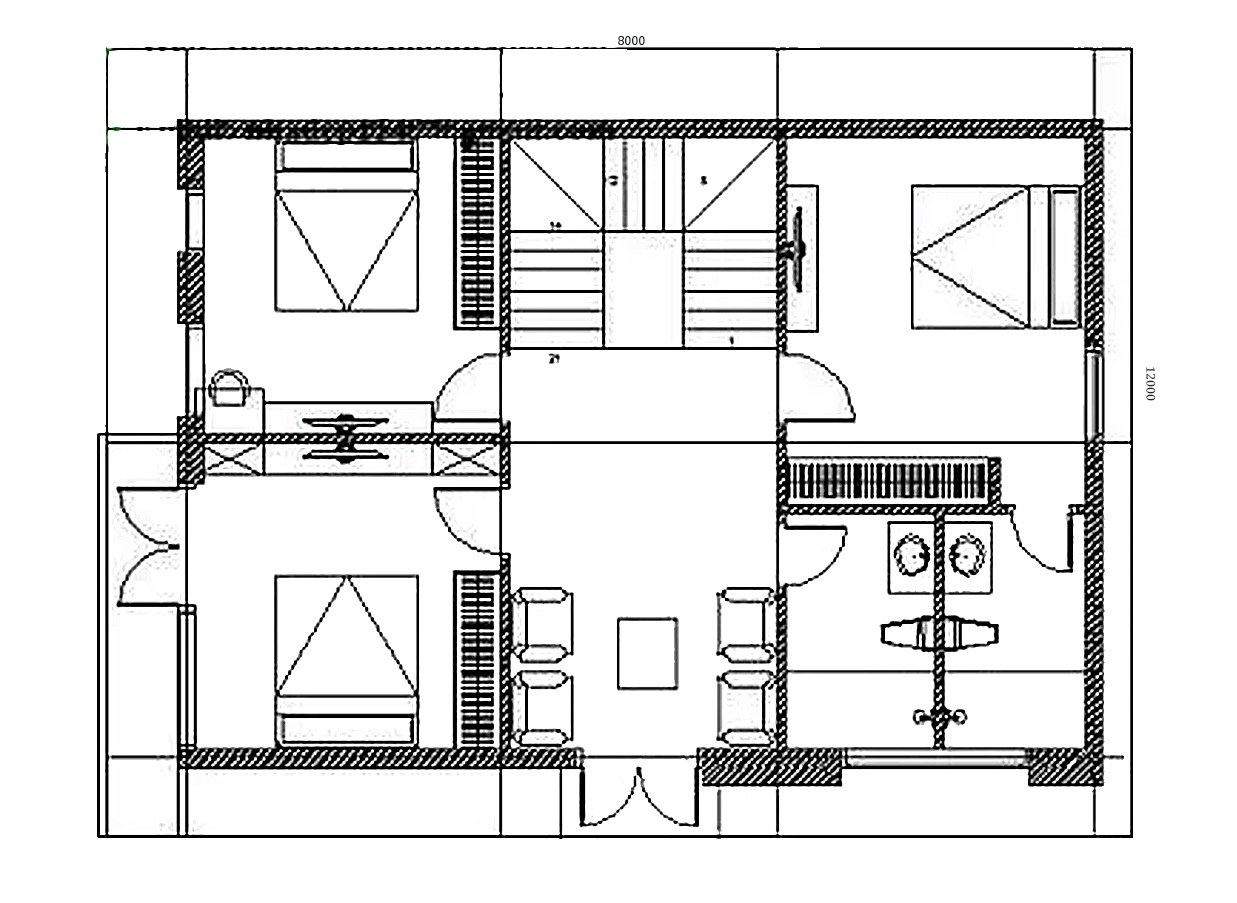
Mặt bằng tầng 2 mẫu biệt thự mini hiện đại 3 tầng
Tầng 2 bố trí 3 phòng ngủ, phòng ngủ chính thiết kế nhà vệ sinh khép kín được thiết kế cuối hành lang. Nhà vệ sinh chung của tầng được bố trí cạnh nhà vệ sinh khép kín của phòng ngủ master. Đối diện sảnh thang thông tầng tận dụng làm phòng trà với thiết kế bộ bàn ghế sofa đơn giản. 2 phòng ngủ nhỏ dành cho hai con được bố trí liền nhau và đối diện với phòng ngủ master.

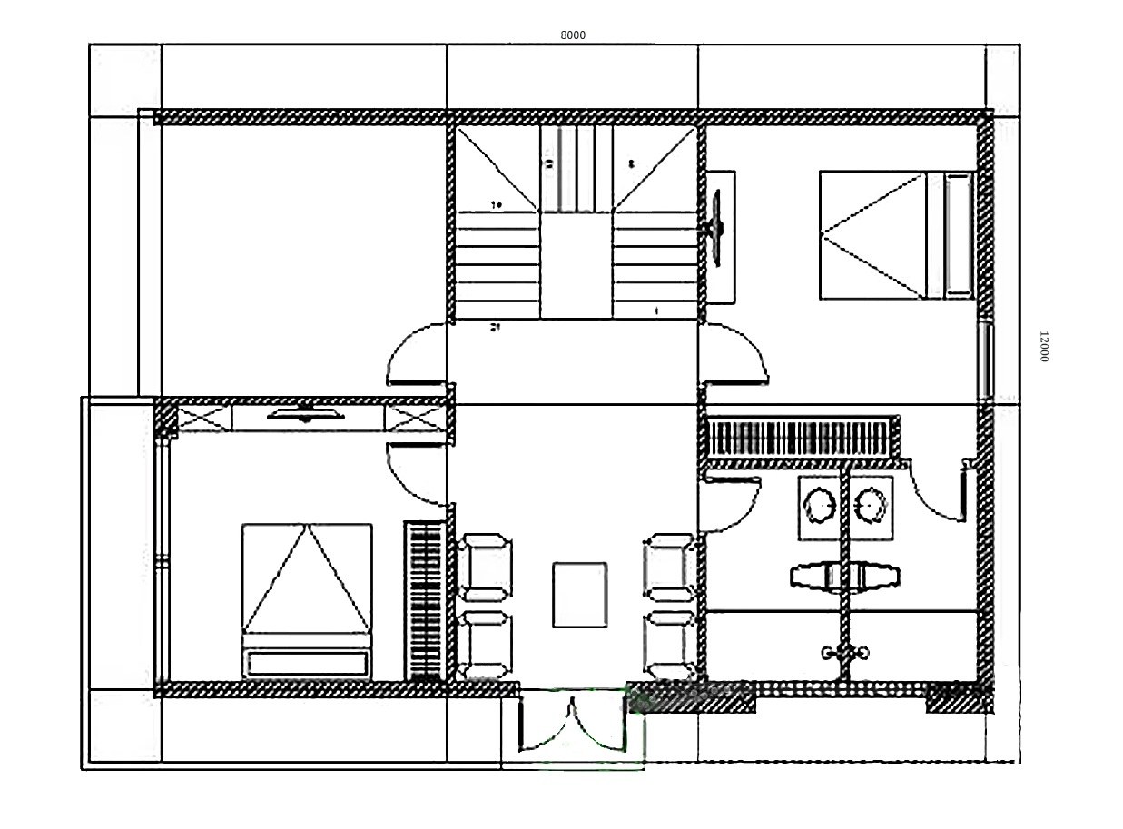
Mặt bằng tầng 3 mẫu biệt thự mini hiện đại 3 tầng
Tầng 3 thiết kế 2 phòng ngủ, trong đó có 1 phòng ngủ master dành cho vợ chồng cô con gái lớn hay về nhà chơi vào cuối tuần, 1 phòng ngủ nhỏ hướng ban công dành cho cậu con trai út. Nhà vệ sinh chung của tầng vẫn được bố trí kết cấu giống như tầng 2, nằm liền kề với nhà vệ sinh của phòng ngủ master. Sảnh thang thông tần vẫn được tận dụng làm phòng trà hoặc phòng sinh hoạt nhỏ cho cả tầng.
Với cách bố trí công năng thông minh và khoa học, kiến trúc sư của chúng tôi đã hoàn toàn thuyết phục được chủ đầu tư về phương án thiết kế mẫu biệt thự 3 tầng.
Nếu như gia đình bạn đang tìm kiếm mẫu thiết kế nhà khoa học và tiết kiệm chi phí, hãy liên hệ để được kiến trúc sư tư vấn sát với mặt bằng thực tế của gia đình.
