BIỆT THỰ 2 TẦNG TẠI BẮC NINH
Làng quê luôn yên bình đến lạ. Từ khung cảnh, không khí, cho đến nếp sống thường ngày đều giản dị mộc mạc, tự nhiên . Bởi vậy, nơi ở của chúng ta cũng thanh bình đến thế. Cho dù là một ngôi nhà biệt thự thì ai ai cũng muốn ngôi nhà nhà mình sở hữu vẻ đẹp độc đáo, nhẹ nhàng để người nhìn thực sự cảm tình ngay sau lần đầu tiên nhìn ngắm.
Và ngày hôm nay, chúng tôi xin giới thiệu với quý vị mẫu biệt thự vườn 2 tầng mái Thái được đội ngũ kiến trúc sư của Nhà Đẹp 4.0 thiết kế cho gia đình nhà anh Công có địa chỉ tại Bắc Ninh với kích thước 10,2m x 11,3m. Mời các bạn cùng tham khảo.
.jpg)
Mẫu biệt thự 2 tầng hiện đại mái Thái diện tích 10,2 x 11,3m
THÔNG TIN CÔNG TRÌNH BIỆT THỰ 2 TẦNG DIỆN TÍCH 10,2M X 11,3M
- Chủ đầu tư: anh Công
- Điạ điểm: Bắc Ninh
- Năm thiết kế: 2020
- Diện tích thiết kế: 10,2m x 11,3m
- Công năng: 4 phòng ngủ, 1 phòng khách, 1 phòng thờ.
YÊU CẦU THIẾT KẾ CHO BIỆT THỰ 2 TẦNG DIỆN TÍCH 10,6M X 11,4M
Anh Công tìm đến công ty chúng tôi với yêu cầu và mong muốn về ngôi nhà của mình như sau:
- Gia đình muốn thi công mẫu nhà biệt thự 2 tầng với diện tích 1 sàn hơn 100m2.
- Với thế đất nhà mình, anh Công muốn ngôi nhà của mình thực sự nổi bật, thông thoáng.
- Mang hơi hướng hiện đại, 2 mặt tiền, đơn giản nhưng vẫn thu hút, độc đáo.
- Công năng dự kiến thi công là 4 phòng ngủ, 1 phòng khách, 1 phòng thờ.
- Ngoại thất công trình có gam màu chủ đạo nhẹ nhàng, nổi bật.
.jpg)
Phối cảnh 3d mẫu biệt thự vườn 2 tầng diện tích 10,2 x 11,3m
Ngay sau khi tiếp nhận yêu cầu tư vấn thiết kế của chủ đầu tư, chúng tôi đã đến hiện trạng bắt tay vào khảo sát khu vực thi công công trình, từ đó đưa ra các phương án sơ bộ cho chủ đầu tư lựa chọn.
Sau khi được tư vấn rất cụ thế kỹ càng cho công trình nhà mình, anh Công nhanh chóng chốt phương án chọn, và chúng tôi tiến hành họp bàn và chốt phương án 3D chi tiết.
.jpg)
Với thiết kế hệ mái Thái độ dốc cao, cùng 2 sảnh cho công trình sẽ giúp công trình thông thoáng hơn rất nhiều, thiết kế đơn giản nhưng vẫn có sức hút độc đáo, sang trọng.
Công trình được thiết kế hệ tam cấp cùng với 2 cột chính, giúp bố cục trở lên cân đối và thanh thoát hơn. Toàn bộ đế công trình được ốp đá không chỉ mang lại tính thẩm mĩ mà còn ngăn thấm nước giảm bớt sự ảnh hưởng cho chất lượng của công trình trong thời gian sử dụng.
Mái ngói màu đỏ kết hợp cùng tone màu trắng sứ nhẹ nhàng sẽ tạo nên sự liên kết nổi bật và hơi hướng hiện đại. Ngoài ra, ngôi nhà còn được sử dụng màu sữa tạo điểm nhấn trên các phần phân tầng và thân cột. Thân nhà và viền cửa sổ còn được bật lên bởi những gờ đắp nổi chạy xung quanh tạo điểm nhấn mạnh cho công trình của nhà anh Công. Hệ cửa chính được sử dụng chất liệu gỗ lim Nam Phi tạo sự sang trọng, còn lại các hệ cửa sổ được sử dụng vật liệu nhôm xingfa giúp việc lấy sáng cho công trình trở nên dễ dàng.
Đáp ứng nhu cầu thông thoáng gần gũi với thiên nhiên, chúng tôi bố trí xung quanh nhà anh Công những khoảng vườn nhỏ để chú có thể trồng cây xanh, trồng hoa, giúp không gian sinh hoạt trở nên thoải mái và dễ chịu, chinh phục mọi góc nhìn từ nhiều phía.
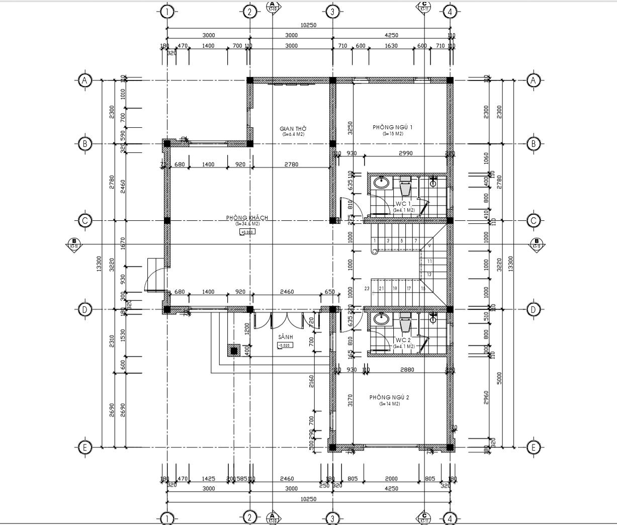
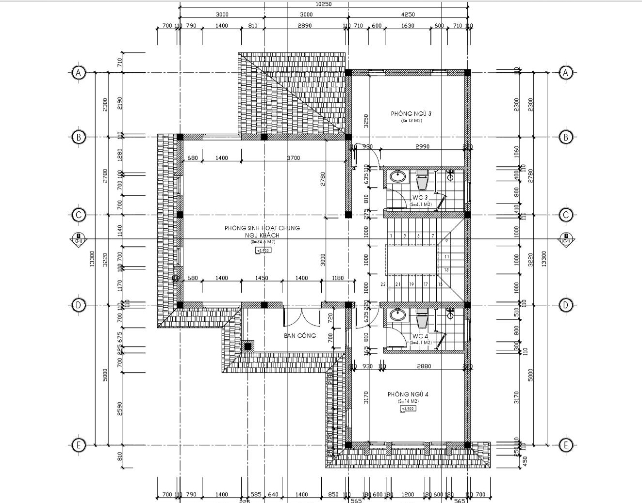
MẶT BẰNG CÔNG NĂNG BIỆT THỰ 2 TẦNG DIỆN TÍCH 10,2M X 11,3M

Mặt bằng bố trí công năng tầng 1 mẫu biệt thự 2 tầng diện tích 10,2 x 11,3m

Mặt bằng bố trí công năng tầng 2 mẫu biệt thự 2 tầng diện tích 10,2 x 11,3m
Bước từ ngoài vào trong là phòng khách thiết kế rộng rãi với diện tích 34,5m2. Không gian phòng khách được thiết kế tối giản, với 2 hệ cửa sổ lớn, đồng thời đươc mở bởi 2 sảnh tạo sự thoải mái và thoáng đãng cho ngôi nhà.
Tiếp đó là không gian phòng thờ (6,4m2) được đặt ngay sâu bên trong, tiện lợi cho việc hương khói của gia đình và khách khứa khi đến thăm nhà.
Bên phải là 2 phòng ngủ master 15m2 (khu phụ được đặt bên ngoài).
Tầng 2 được phân chia bố cục tương tự, với 2 phòng ngủ master có kích thước tương tự và 1 không gian sinh hoạt chung. Ngoài ra trên tầng 2 được bố trí 1 ban công giúp tăng độ thông thoáng cho ngôi nhà. .jpg)
Phối cảnh bố trí công năng + nội thất biệt thự tầng 1
.jpg)
Phối cảnh bố trí công năng + nội thất biệt thự tầng 2
Và đương nhiên, tất cả các phòng trong ngôi nhà của anh Công đều có cửa sổ thông ra bên ngoài, điều này mang đến một không gian tràn ngập không khí trong lành, ngôi nhà như hòa mình với thiên nhiên, mang đến một cảm giác dễ chịu khi trở về nhà sau ngày dài học tập và làm việc.
Trên đây là bản thiết kế mẫu nhà vườn 1 tầng diện tích 10,2m x 11,3m của gia đình nhà anh Công tại Bắc Ninh. Hy vọng trên đây sẽ là gợi ý phù hợp cho các bạn khi đang muốn xây dựng ngôi nhà phong cách và kích thước tương tự. Cảm ơn và chúc các bạn thành công!
