BIỆT THỰ 2 TẦNG SIÊU KHỦNG TẠI TAM DƯƠNG - VĨNH PHÚC
Biệt thự mái Thái đang là mẫu thiết kế đang hot nhất hiện nay, hình khối kiến trúc kiên cố, có hệ thống sân vườn đẹp mắt. Việc thiết kế và thi công biệt thự đòi hỏi phải có nghệ thuật, kỹ thuật và hiệu ứng thẩm mĩ cao. Sự phô diễn những đường nét, giúp cho hình khối và ngoại thất công trình nổi bật giữa hàng nghìn công trình khác. Hôm nay chúng tôi xin giới thiệu hồ sơ thiết kế cho gia đình nhà bác Sáu có địa chỉ tại Tam Dương, Vĩnh Phúc, được thực hiện bởi đội ngũ Nhà Đẹp 4.0. Mời các bạn cùng tham khảo.

Mẫu biệt thự 2 tầng hiện đại mái Thái diện tích 11m x 15m
THÔNG TIN CÔNG TRÌNH BIỆT THỰ 2 TẦNG DIỆN TÍCH 11M X 15M
- Chủ đầu tư: bác Sáu
- Điạ điểm: Tam Dương, Vĩnh Phúc
- Năm thiết kế: 2020
- Diện tích thiết kế: 11m x 15m
- Công năng: 5 phòng ngủ, 1 phòng khách, 1 phòng thờ, 1 phòng sinh hoạt chung, 1 phòng bếp.
YÊU CẦU THIẾT KẾ CHO BIỆT THỰ 2 TẦNG DIỆN TÍCH 11M X 15M
Bác Sáu tìm đến công ty chúng tôi với yêu cầu và mong muốn về ngôi nhà của mình như sau:
- Gia đình muốn thi công mẫu nhà biệt thự 2 tầng với diện tích 1 sàn hơn 150m2.
- Với thế đất nhà mình, phát triển theo chiều sâu, bác Sáu muốn ngôi nhà của mình thực sự nổi bật, thông thoáng.
- Mang hơi hướng hiện đại, đơn giản nhưng vẫn thu hút, độc đáo.
- Công năng dự kiến thi công là 5 phòng ngủ, 1 phòng khách, 1 phòng thờ, 1 phòng sinh hoạt chung, 1 phòng bếp, đặc biệt có thêm sân chơi cho cả nhà.
- Ngoại thất công trình có gam màu chủ đạo nhẹ nhàng, nổi bật.

Phối cảnh 3d mẫu biệt thự vườn 2 tầng diện tích 11m x 15m
Ngay sau khi tiếp nhận yêu cầu tư vấn thiết kế của chủ đầu tư, chúng tôi đã đến hiện trạng bắt tay vào khảo sát khu vực thi công công trình, từ đó đưa ra các phương án sơ bộ cho chủ đầu tư lựa chọn.
Sau khi được tư vấn rất cụ thế kỹ càng cho công trình nhà mình, bác Sáu nhanh chóng chốt phương án chọn, và chúng tôi tiến hành họp bàn và chốt phương án 3D chi tiết.

Với thiết kế hệ mái Thái độ dốc cao, cùng 2 sảnh cho công trình sẽ giúp công trình thông thoáng hơn rất nhiều, thiết kế đơn giản nhưng vẫn có sức hút độc đáo, sang trọng.
Công trình được thiết kế hệ tam cấp cùng với 2 cột chính, giúp bố cục trở lên cân đối và thanh thoát hơn. Toàn bộ đế công trình được ốp đá không chỉ mang lại tính thẩm mĩ mà còn ngăn thấm nước giảm bớt sự ảnh hưởng cho chất lượng của công trình trong thời gian sử dụng.
Mái ngói màu xanh than kết hợp cùng tone màu trắng sứ nhẹ nhàng sẽ tạo nên sự liên kết nổi bật và hơi hướng hiện đại. Ngoài ra, ngôi nhà còn được sử dụng màu nâu tạo điểm nhấn trên các phần phân tầng, tạo điểm nhấn nổi bật cho công trình. Thân nhà và viền cửa sổ còn được bật lên bởi những gờ đắp nổi chạy xung quanh tạo điểm nhấn mạnh cho công trình của nhà bác Sáu. Những đường chỉ lõm trên cột, những đường kẻ chỉ trên thân nhà cùng với hệ thống đèn hàng lang đã thổi được hơi hướng tân cổ vào công trình như mong muốn của bác Sáu, bác hoàn toàn rất ưng ý.
Đáp ứng nhu cầu thông thoáng gần gũi với thiên nhiên, chúng tôi bố trí xung quanh nhà bác Sáu những khoảng vườn nhỏ để anh có thể trồng cây xanh, trên tầng 2 cũng được bố trí giàn hoa ngoài ban công, giúp không gian sinh hoạt trở nên thoải mái và dễ chịu, chinh phục mọi góc nhìn từ nhiều phía.
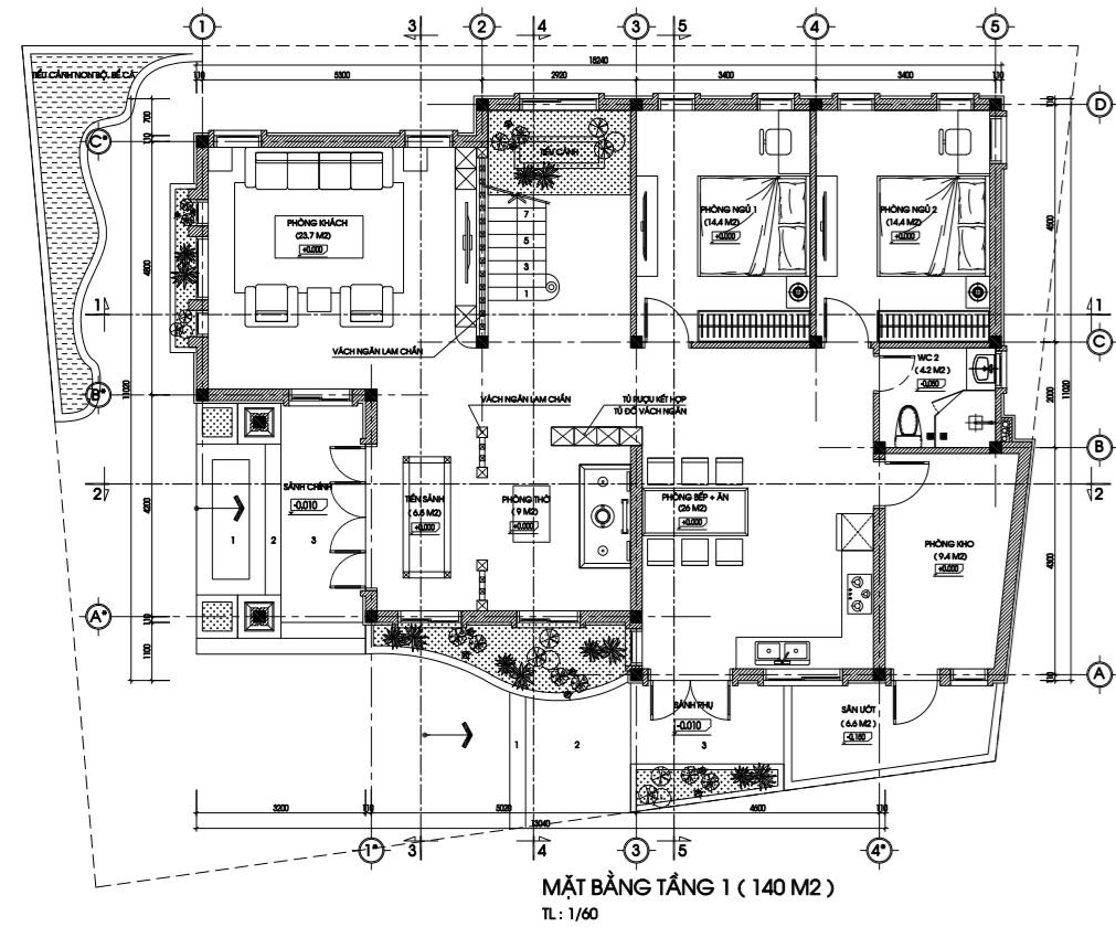
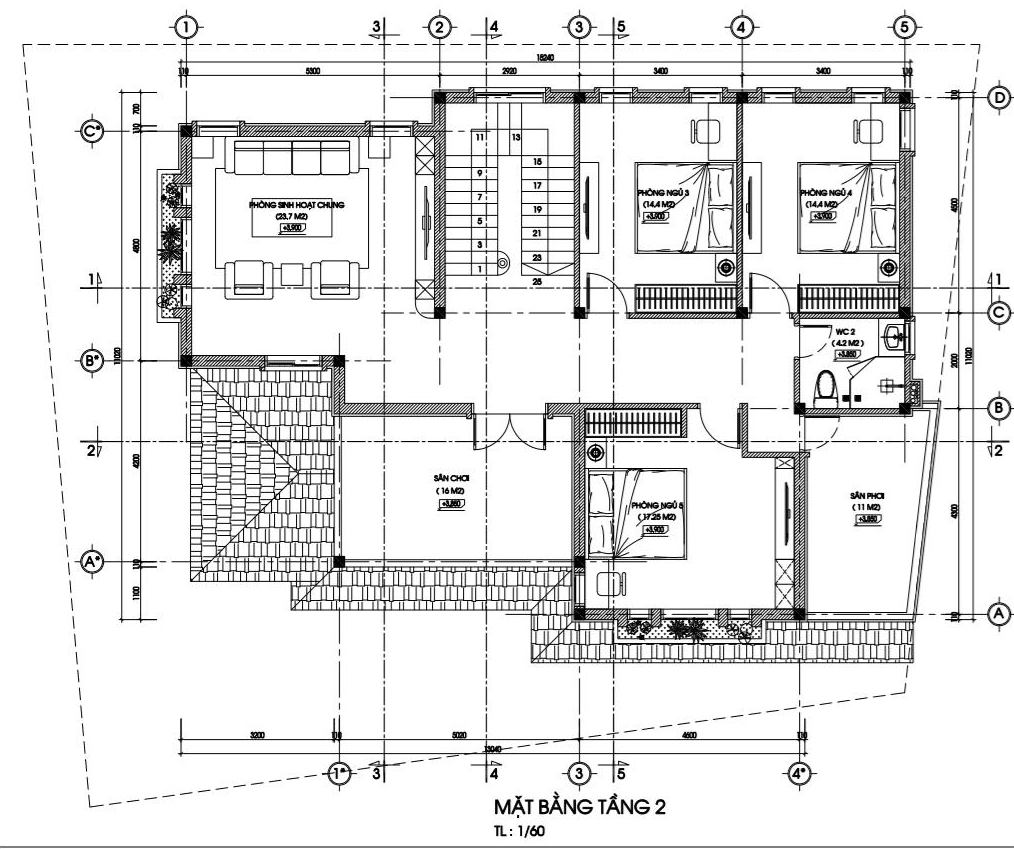
MẶT BẰNG CÔNG NĂNG BIỆT THỰ 2 TẦNG DIỆN TÍCH 11M X 15M

Mặt bằng bố trí công năng tầng 1 mẫu biệt thự 2 tầng diện tích 11 x 15m

Mặt bằng bố trí công năng tầng 2 mẫu biệt thự 2 tầng diện tích 11m x 15m
Điều đặc biệt của công trình nhà bác Sáu là bước từ ngoài vào trong là phòng thờ đầu tiên (9m2). Tạo sự riêng tư cho phòng thờ, chúng tôi bố trí 1 tiền sảnh rộng 6m2, cùng với hệ vách gỗ sang trọng cho phòng thờ. Tiếp đó phía bên trái là phòng khách thiết kế rộng rãi với diện tích 23,7m2. Không gian phòng khách được thiết kế tối giản với các hệ cửa sổ tạo sự thoải mái và thoáng đãng cho ngôi nhà. Đi sâu vào phía bên trong là 2 phòng ngủ có kích thước tương tự nhau (14,4m2) cùng 1 wc chung cho toàn tầng 1. Cuối cùng là không gian bếp ăn rộng 26m2. Riêng khu vực bếp có 1 lối đi ra sảnh phụ và lối vào kho thông ra sân ướt, tối ưu những tiện lợi cần có khi nhà có công việc.
Tầng 2 được phân chia với bên trái cầu thang là 2 phòng ngủ nhỏ có kích thước tương tự 2 phòng ngủ bên dưới, và 1 phòng ngủ lớn hơn 17m2. Trên tầng 2 được bố trí 1 phòng sinh hoạt chung rộng 23,7m2. Thiết kế được tôn trọng theo phong thủy, dưới tầng 1 là phòng thờ, thì thẳng lên tầng 2 chúng tôi bố trí sân chơi ở đó. Sân chơi (16m2) được bố trí giàn hoa hệ lam gỗ, tăng thêm sự tinh tế và hiện đại cho công trình.

Phối cảnh bố trí công năng + nội thất biệt thự tầng 1

Phối cảnh bố trí công năng + nội thất biệt thự tầng 2
Và đương nhiên, tất cả các phòng trong ngôi nhà của bác Sáu đều có cửa sổ thông ra bên ngoài, điều này mang đến một không gian tràn ngập không khí trong lành, ngôi nhà như hòa mình với thiên nhiên, mang đến một cảm giác dễ chịu khi trở về nhà sau ngày dài học tập và làm việc.
Trên đây là bản thiết kế mẫu nhà vườn 1 tầng diện tích 11m x 15m của gia đình nhà bác Sáu tại Vĩnh Phúc. Hy vọng trên đây sẽ là gợi ý phù hợp cho các bạn khi đang muốn xây dựng ngôi nhà phong cách và kích thước tương tự. Cảm ơn và chúc các bạn thành công!
