BIỆT THỰ 2 TẦNG MÁI NHẬT TẠI TAM DƯƠNG - VĨNH PHÚC
Với mặt tiền rộng 9m, chiều sâu 17m, chủ đầu tư khá lo lắng khi không biết nên thiết kế công trình nhà 2 tầng của gia đình mình như thế nào cho cân đối, khoa học nhưng vẫn tiết kiệm chi phí. Mẫu biệt thự 2 tầng kích thước 8,7 x 16,8 tràn ngập sức sống hiện đại được Nhà Đẹp 4.0 thiết kế cho gia đình anh Hoàng tại Tam Dương, Vĩnh Phúc. Mặt tiền ấn tượng cùng với công năng sử dụng khoa học, hy vọng sẽ giúp các bạn có thể tham khảo để có thêm những ý tưởng thiết kế hoàn hảo cho gia đình mình nhé.
.jpg)
Mẫu biệt thự 2 tầng hiện đại mái Nhật diện tích 8,7 x 16,8m
THÔNG TIN CÔNG TRÌNH BIỆT THỰ 2 TẦNG DIỆN TÍCH 8,7M X 16,8M
- Chủ đầu tư: anh Hoàng
- Điạ điểm: Vĩnh Phúc
- Năm thiết kế: 2020
- Diện tích thiết kế: 8,7x 16,8m
- Công năng: 5 phòng ngủ, 1 phòng khách, 1 phòng thờ, 1 phòng bếp.
YÊU CẦU THIẾT KẾ CHO BIỆT THỰ 2 TẦNG DIỆN TÍCH 8,7 x 16,8M
Anh Hoàng tìm đến công ty chúng tôi với yêu cầu và mong muốn về ngôi nhà của mình như sau:
- Gia đình muốn thi công mẫu nhà biệt thự 2 tầng với diện tích 1 sàn hơn 120m2.
- Với thế đất nhà mình, phát triển ngôi nhà theo chiều sâu, anh Hoàng muốn ngôi nhà của mình thực sự nổi bật, thông thoáng.
- Mang hơi hướng hiện đại, 2 mặt tiền, đơn giản nhưng vẫn thu hút, độc đáo.
- Công năng dự kiến thi công là 5 phòng ngủ, 1 phòng khách, 1 phòng thờ, 1 phòng bếp.
- Ngoại thất công trình có gam màu chủ đạo nhẹ nhàng,ấm áp, nổi bật.
Phối cảnh 3d mẫu biệt thự 2 tầng diện tích 8,7 x 16,8m
Ngay sau khi tiếp nhận yêu cầu tư vấn thiết kế của chủ đầu tư, chúng tôi đã đến hiện trạng bắt tay vào khảo sát khu vực thi công công trình, từ đó đưa ra các phương án sơ bộ cho chủ đầu tư lựa chọn.
Sau khi được tư vấn rất cụ thế kỹ càng cho công trình nhà mình, anh Hoàng nhahn chóng chốt phương án chọn, và chúng tôi tiến hành họp bàn và chốt phương án 3D chi tiết.
.jpg)
Với thiết kế hệ mái Nhật độ dốc không cao, cùng 2 sảnh cho công trình sẽ giúp công trình thông thoáng hơn rất nhiều, thiết kế đơn giản nhưng vẫn có sức hút độc đáo, sang trọng.
Công trình được thiết kế hệ tam cấp cùng với 2 cột chính, giúp bố cục trở lên cân đối và thanh thoát hơn. Toàn bộ đế công trình được ốp đá không chỉ mang lại tính thẩm mĩ mà còn ngăn thấm nước giảm bớt sự ảnh hưởng cho chất lượng của công trình trong thời gian sử dụng.
Mái ngói màu xanh than kết hợp cùng tone màu trắng sứ và vàng nhạt nhẹ nhàng sẽ tạo nên sự liên kết nổi bật và hơi hướng hiện đại. Ngoài ra, ngôi nhà còn được sử dụng màu cà phê tạo điểm nhấn trên các phần phân tầng, kẻ chỉ trên thân cột. Thân nhà và viền cửa sổ còn được bật lên bởi những gờ đắp nổi chạy xung quanh tạo điểm nhấn mạnh cho công trình của nhà anh Hoàng. Hệ lan can kính được bố trí trên tầng 2 giúp công trình trở nên hiện đại và sang trọng hơn.
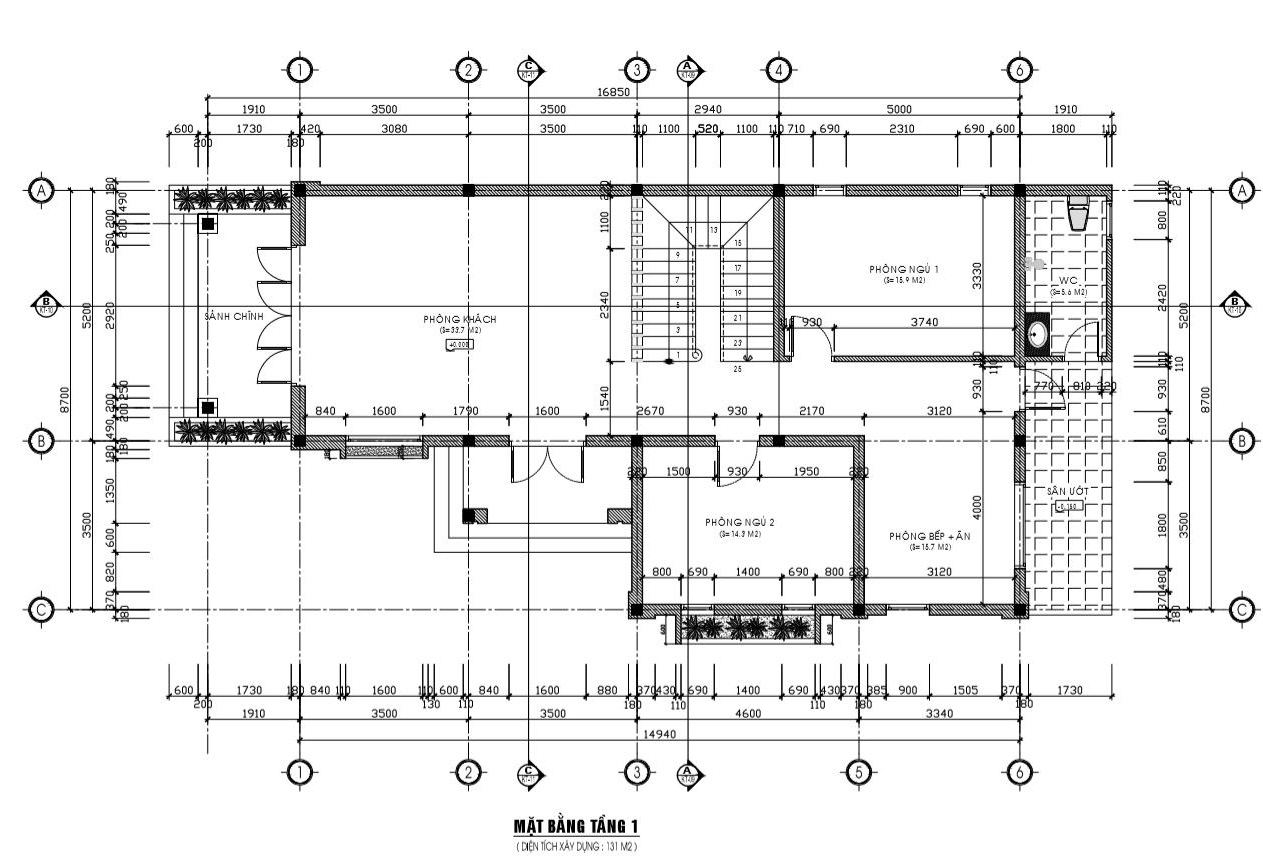
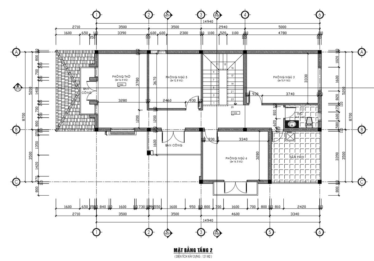
MẶT BẰNG CÔNG NĂNG BIỆT THỰ 2 TẦNG DIỆN TÍCH 8,7M X 16,8M


Bước từ ngoài vào trong là phòng khách thiết kế rộng rãi với diện tích 34m2. Không gian phòng khách được thiết kế tối giản, với 1 hệ cửa sổ lớn, đồng thời đươc mở bởi 2 sảnh tạo sự thoải mái và thoáng đãng cho ngôi nhà. Đi sâu vào bên trong là 2 phòng ngủ (15m2) và khu vực bếp (16m2). Sân ướt và khu wc chung được đặt riêng biệt giúp giữ không gian trong nhà được sạch sẽ hơn.
Tầng 2 được phân chia bố cục tương tự. Bước lên tầng 2, bên trái là 2 phòng ngủ với kích thước tương tự 2 phòng ngủ ở tầng 1, 1 sân phơi rộng thoáng. Phía bên phải là 1 phòng ngủ còn lại (13m2) và 1 phòng thờ (16m2). Ngoài 1 ban công chung cho cả không gian tầng 2, thì phòng thờ cũng có 1 ban công riêng nhỏ gọn, giúp cho mọi không gian của ngôi nhà được mở hết sức có thể.
.jpg)
Phối cảnh bố trí công năng + nội thất biệt thự tầng 1
.jpg)
Phối cảnh bố trí công năng + nội thất biệt thự tầng 2
Và đương nhiên, tất cả các phòng trong ngôi nhà của anh Hoàng có cửa sổ thông ra bên ngoài, điều này mang đến một không gian tràn ngập không khí trong lành, ngôi nhà như hòa mình với thiên nhiên, mang đến một cảm giác dễ chịu khi trở về nhà sau ngày dài học tập và làm việc.
Trên đây là bản thiết kế mẫu biệt thự 2 tầng diện tích 8,7 x 16,8m của gia đình nhà anh Hoàng tại Tam Dương, Vĩnh Phúc. Hy vọng trên đây sẽ là gợi ý phù hợp cho các bạn khi đang muốn xây dựng ngôi nhà phong cách và kích thước tương tự. Cảm ơn và chúc các bạn thành công!
