BIỆT THỰ 2 TẦNG MÁI NHẬT HOT TẠI NAM ĐỊNH
Với khuôn viên đất rộng, thoáng, thì không ngại gì chúng ta lại không dành cho mình một ngôi nhà vườn phải không nào.
Và ngày hôm nay, chúng tôi xin giới thiệu với quý vị mẫu biệt thự vườn 2 tầng mái Nhật được đội ngũ kiến trúc sư của Nhà Đẹp 4.0 thiết kế cho gia đình nhà chú Phụ có địa chỉ tại Nam Định với kích thước 10,1m x 10,6m. Mời các bạn cùng tham khảo.
.jpg)
Mẫu biệt thự 2 tầng hiện đại mái Nhật diện tích 12 x 15,4m
THÔNG TIN CÔNG TRÌNH BIỆT THỰ 2 TẦNG DIỆN TÍCH 12M X 15,4M
- Chủ đầu tư: chú Phụ
- Điạ điểm: Nam Định
- Năm thiết kế: 2020
- Diện tích thiết kế: 12m x 15,4m
- Công năng: 3 phòng ngủ, 1 phòng khách, 1 phòng thờ, 1 phòng bếp, 1 phòng làm việc.
YÊU CẦU THIẾT KẾ CHO BIỆT THỰ 2 TẦNG DIỆN TÍCH 12M X 15,4M
Chú Phụ tìm đến công ty chúng tôi với yêu cầu và mong muốn về ngôi nhà của mình như sau:
- Gia đình muốn thi công mẫu nhà biệt thự 2 tầng với diện tích 1 sàn 180m2.
- Với thế đất nhà mình, chú Phụ muốn ngôi nhà của mình thực sự nổi bật, thông thoáng và nhiều cây xanh.
- Mang hơi hướng hiện đại, 2 mặt tiền, đơn giản nhưng vẫn thu hút, độc đáo.
- Công năng dự kiến thi công là 3 phòng ngủ, 1 phòng khách, 1 phòng thờ, 1 phòng bếp, 1 phòng làm việc.
- Ngoại thất công trình có gam màu chủ đạo khỏe khoắn, nổi bật.
.jpg)
Phối cảnh 3d mẫu biệt thự vườn 1 tầng diện tích 12 x 15,4m
Ngay sau khi tiếp nhận yêu cầu tư vấn thiết kế của chủ đầu tư, chúng tôi đã đến hiện trạng bắt tay vào khảo sát khu vực thi công công trình, từ đó đưa ra các phương án sơ bộ cho chủ đầu tư lựa chọn.
Sau khi được tư vấn rất cụ thế kỹ càng cho công trình nhà mình, chú Phụ nhanh chóng chốt phương án chọn, và chúng tôi tiến hành họp bàn và chốt phương án 3D chi tiết.
.jpg)
Với thiết kế hệ mái lùn kiểu Nhật độ dốc không cao, cùng 2 sảnh cho công trình sẽ giúp công trình thông thoáng hơn rất nhiều, thiết kế đơn giản nhưng vẫn có sức hút độc đáo, sang trọng.
Công trình được thiết kế hệ ngũ cấp cùng với 2 cột chính. Toàn bộ đế công trình được ốp đá không chỉ mang lại tính thẩm mĩ mà còn ngăn thấm nước giảm bớt sự ảnh hưởng cho chất lượng của công trình trong thời gian sử dụng.
Mái ngói màu nâu kết hợp cùng tone màu trắng sứ nhẹ nhàng sẽ tạo nên sự liên kết nổi bật và hơi hướng hiện đại. Ngoài ra, ngôi nhà còn được sử dụng màu cà phê tạo điểm nhấn trên các phần phân tầng, đầu và chân cột. Thân nhà còn được bật lên bởi những gờ đắp nổi chạy xung quanh và các đường kẻ chỉ trên thân nhà và tạo điểm nhấn mạnh cho các hệ thống cửa sổ.
Đáp ứng nhu cầu thông thoáng gần gũi với thiên nhiên, chúng tôi bố trí trên tầng 2 cho nhà chú Phụ một khoảng ban công rộng với dàn hoa phía trên. Vừa đóng vai trò là một ban công, vừa là một sân chơi với nhiều cây hoa cây cảnh tạo sự thoải mái và trong lành sau những giờ làm việc và học tập mệt mỏi. Xung quanh nhà đều được bố trí những khoảng đất nhỏ trồng cây xanh, giúp không gian sinh hoạt trở nên thoải mái và dễ chịu, chinh phục mọi góc nhìn từ nhiều phía.
MẶT BẰNG CÔNG NĂNG BIỆT THỰ 2 TẦNG DIỆN TÍCH 12M X 15,4M

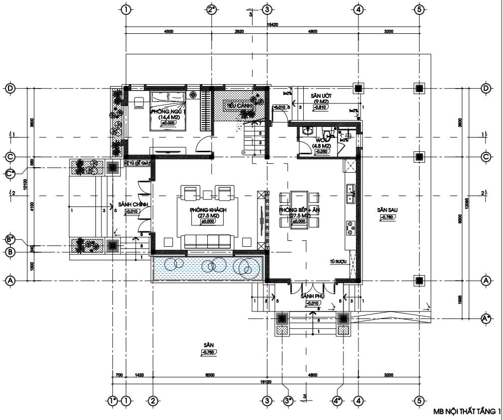
Mặt bằng bố trí công năng tầng 1 mẫu biệt thự 2 tầng diện tích 12 x 15,4m

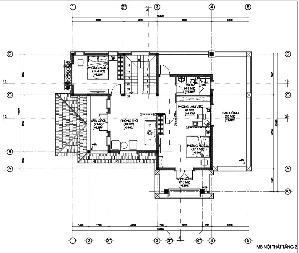
Mặt bằng bố trí công năng tầng 2 mẫu biệt thự 2 tầng diện tích 12 x 15,4m
Bước từ ngoài vào trong là phòng khách thiết kế rộng rãi với diện tích lên đến 27,5m2. Không gian phòng khách được thiết kế tối giản, với 1 hệ cửa sổ lớn cùng tiểu cảnh bên ngoài tạo sự thoải mái và thoáng đãng cho ngôi nhà.
Bên trái là 1 phòng ngủ (14,4 m2). Đi sâu vào bên trong là khu phụ và không gian bếp (27,5m2). Tại khu vực bếp có sảnh phụ rộng thoáng và 1 lối ra sân ướt, tiện lợi cho việc chế biến thực phẩm của gia đình khi có công việc.
Dưới hệ thống cầu thang được bố trí thêm tiểu cảnh, hòn non bộ, như một góc xanh trong nhà giúp mọi người cảm nhận được sự trong lành thoải mái khi bước chân vào bên trong.
Tầng 2 được phân chia bố cục tương tự, với 1 phòng thờ (13m2) và 2 phòng ngủ còn lại. Phòng ngủ thứ nhất trên tầng 2 có diện tích tương tự phòng ngủ bên dưới. Phòng ngủ cuối cùng là phòng master được bố trí riêng phòng làm việc rộng rãi. Và cuối cùng là 1 ban công – sân chơi bên ngoài, đáp ứng đúng nhu cầu của chú Phụ. Sân chơi được bố trí hệ lam làm dàn hoa càng tăng thêm độ gần gũi với thiên nhiên cho công trình.
.jpg)
Phối cảnh bố trí công năng + nội thất biệt thự tầng 1
.jpg)
Phối cảnh bố trí công năng + nội thất biệt thự tầng 2
Và đương nhiên, tất cả các phòng trong ngôi nhà của chú Phụ đều có cửa sổ thông ra bên ngoài, điều này mang đến một không gian tràn ngập không khí trong lành, ngôi nhà như hòa mình với thiên nhiên, mang đến một cảm giác dễ chịu khi trở về nhà sau ngày dài học tập và làm việc.
Trên đây là bản thiết kế mẫu nhà vườn 1 tầng diện tích 12m x 15,4m của gia đình nhà chú Phụ tại Nam Định. Hy vọng trên đây sẽ là gợi ý phù hợp cho các bạn khi đang muốn xây dựng ngôi nhà phong cách và kích thước tương tự. Cảm ơn và chúc các bạn thành công!
