BIỆT THỰ 2 TẦNG MÁI NHẬT ĐẸP LUNG LINH TẠI HÒA BÌNH
Với mặt tiền rộng 13,2 m, chiều sâu 17m, chủ đầu tư khá lo lắng khi không biết nên thiết kế công trình nhà 2 tầng của gia đình mình như thế nào để công trình vẫn rộng thoáng trên khu đất hạn chế như vậy. Mẫu biệt thự 2 tầng kích thước 13,2x16m tràn ngập sức sống hiện đại được Nhà Đẹp 4.0 thiết kế cho gia đình chị Bích tại Hòa Bình. Mặt tiền ấn tượng cùng với công năng sử dụng khoa học, hy vọng sẽ giúp các bạn có thể tham khảo để có thêm những ý tưởng thiết kế hoàn hảo cho gia đình mình nhé.

Mẫu biệt thự 2 tầng hiện đại mái Nhật diện tích 13,2 x 16m
THÔNG TIN CÔNG TRÌNH BIỆT THỰ 2 TẦNG DIỆN TÍCH 13,2M X 16M
- Chủ đầu tư: chị Bích
- Điạ điểm: Hòa Bình
- Năm thiết kế: 2020
- Diện tích thiết kế: 13,2m x 16m
- Công năng: 5 phòng ngủ, 1 phòng khách, 1 phòng thờ, 1 phòng điện, 1 phòng bếp.
YÊU CẦU THIẾT KẾ CHO BIỆT THỰ 2 TẦNG DIỆN TÍCH 13,2M X 16M
Chị Bích tìm đến công ty chúng tôi với yêu cầu và mong muốn về ngôi nhà của mình như sau:
- Gia đình muốn thi công mẫu nhà biệt thự 2 tầng với diện tích 1 sàn tầm gần 200m2.
- Với thế đất nhà mình, phát triển ngôi nhà theo chiều sâu, chị Bích muốn ngôi nhà của mình thực sự nổi bật, thông thoáng.
- Mang hơi hướng hiện đại, 2 mặt tiền, đơn giản nhưng vẫn thu hút, độc đáo.
- Công năng dự kiến thi công là 5 phòng ngủ, 1 phòng khách, 1 phòng thờ, 1 phòng điện, 1 phòng bếp.
- Ngoại thất công trình có gam màu chủ đạo nhẹ nhàng,ấm áp, nổi bật.
Phối cảnh 3d mẫu biệt thự 2 tầng diện tích 13,2 x 16m
Ngay sau khi tiếp nhận yêu cầu tư vấn thiết kế của chủ đầu tư, chúng tôi đã đến hiện trạng bắt tay vào khảo sát khu vực thi công công trình, từ đó đưa ra các phương án sơ bộ cho chủ đầu tư lựa chọn.
Sau khi được tư vấn rất cụ thế kỹ càng cho công trình nhà mình, chị Bích nhanh chóng chốt phương án chọn, và chúng tôi tiến hành họp bàn và chốt phương án 3D chi tiết.

Với thiết kế hệ mái Nhật độ dốc không cao, cùng 2 sảnh cho công trình sẽ giúp công trình thông thoáng hơn rất nhiều, thiết kế đơn giản nhưng vẫn có sức hút độc đáo, sang trọng.
Công trình được thiết kế hệ ngũ cấp cùng với 2 cột chính, giúp bố cục trở lên cân đối và thanh thoát hơn. Toàn bộ đế công trình được ốp đá không chỉ mang lại tính thẩm mĩ mà còn ngăn thấm nước giảm bớt sự ảnh hưởng cho chất lượng của công trình trong thời gian sử dụng.
Mái ngói màu nâu kết hợp cùng tone màu trắng sữa và vàng nhạt nhẹ nhàng sẽ tạo nên sự liên kết nổi bật và hơi hướng hiện đại. Ngoài ra, ngôi nhà còn được sử dụng màu cà phê tạo điểm nhấn trên các phần cột và ban công trên tầng 2. Thân nhà và viền cửa sổ còn được bật lên bởi những gờ đắp nổi chạy xung quanh tạo điểm nhấn mạnh cho công trình của nhà chị Bích. Hệ lan can họa tiết sơn tĩnh điện đơn giản được bố trí trên tầng 2 giúp công trình trở nên hiện đại và sang trọng hơn.
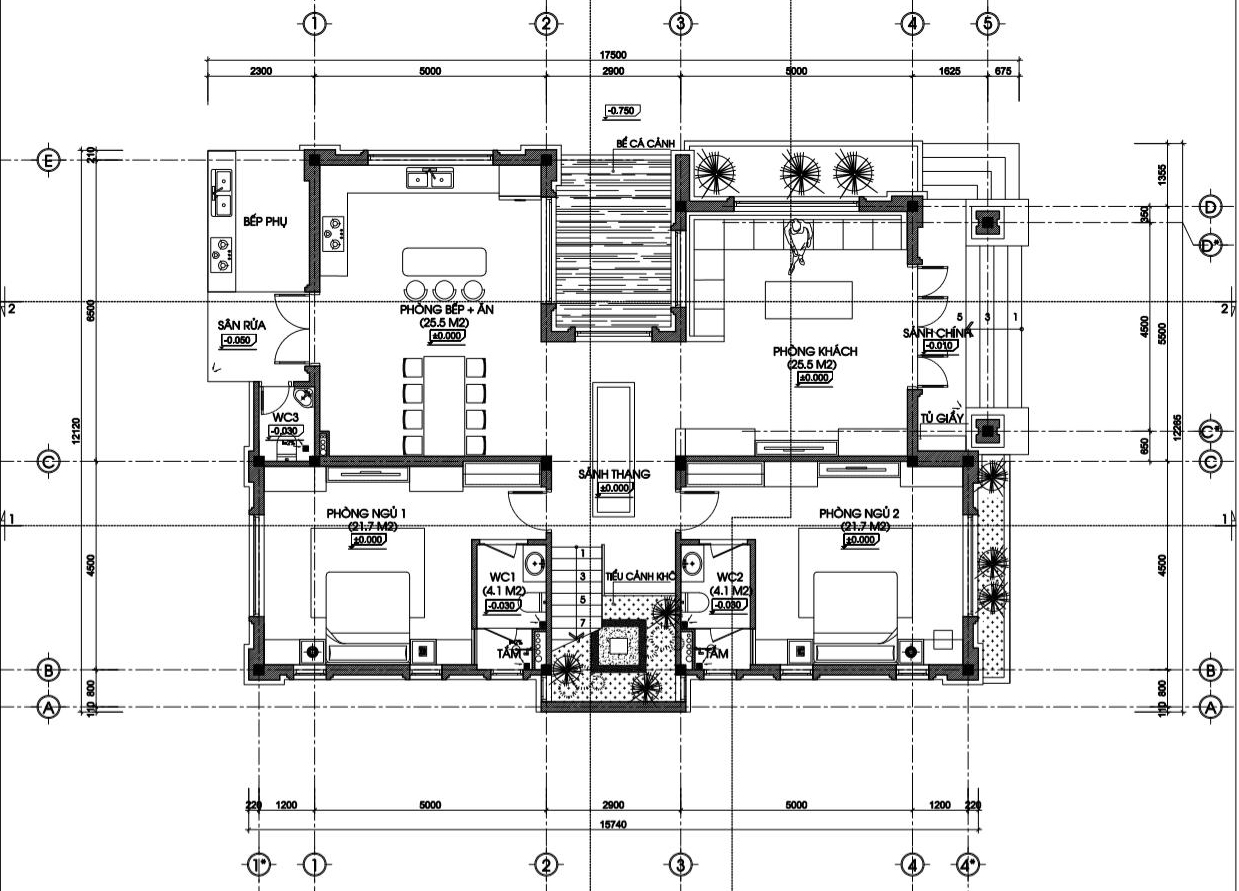
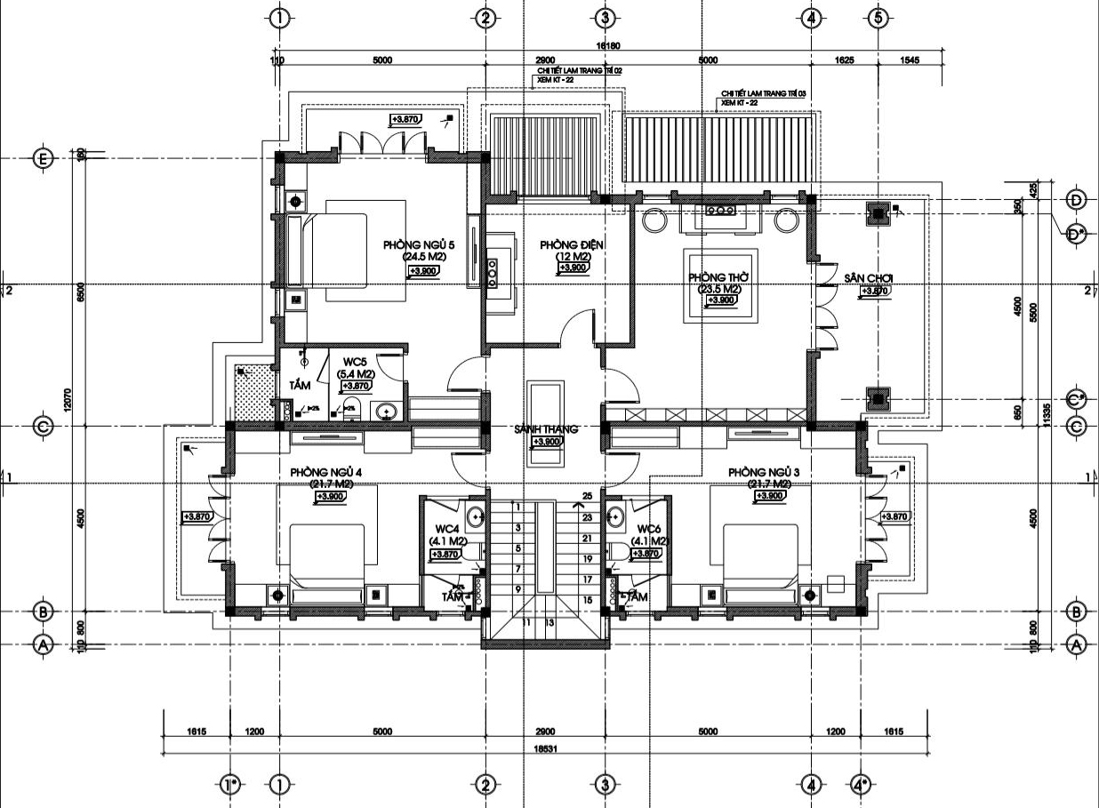
MẶT BẰNG CÔNG NĂNG BIỆT THỰ 2 TẦNG DIỆN TÍCH 13,2M X 16M
Bước từ ngoài vào trong là phòng khách thiết kế rộng rãi với diện tích 25m2. Không gian phòng khách được thiết kế tối giản, với 1 hệ cửa sổ lớn tạo sự thoải mái và thoáng đãng cho ngôi nhà. Phía bên trái là khu vực cầu thang và 1 phòng ngủ master 21,7m2. Phía bên phải được bố trí 1 bể cá cảnh làm điểm nhấn đặc biệt. Bể cá được kiên cố các mảng kính xung quanh nên từ các không gian bên trong cũng có thể chiêm ngưỡng được. Đi sâu vào bên trong, phía bên trái là 1 phòng ngủ khép kín rộng 26m2. Cuối cùng bên phải là khu vực bếp 25,2m2 với 1 cửa đi ra sân ướt tiện lợi cho việc chế biến mỗi khi có công có việc.
Tầng 2 được phân chia 3 phòng ngủ khép kín và 1 phòng điện với 1 phòng thờ. Các phòng ngủ có kích thước gần tương tự nhau. Phòng điện nho nhỏ 12m2 được đặt hướng tốt. Còn lại, phòng thờ rộng 23,5m2 và có 1 ban công lớn thoáng mát.

Mặt bằng biệt thự tầng 1

Mặt bằng biệt thự tầng 2
Và đương nhiên, tất cả các phòng trong ngôi nhà của chị Bích đều có cửa sổ thông ra bên ngoài, điều này mang đến một không gian tràn ngập không khí trong lành, ngôi nhà như hòa mình với thiên nhiên, mang đến một cảm giác dễ chịu khi trở về nhà sau ngày dài học tập và làm việc.
Trên đây là bản thiết kế mẫu biệt thự 2 tầng diện tích 13,2m x 16m của gia đình nhà chị Bích tại Hòa Bình. Hy vọng trên đây sẽ là gợi ý phù hợp cho các bạn khi đang muốn xây dựng ngôi nhà phong cách và kích thước tương tự. Cảm ơn và chúc các bạn thành công!
