BIỆT THỰ 2 TẦNG LUNG LINH TẠI VĨNH PHÚC
Khi sở hữu một khu đất hình chữ nhật phát triển về chiều sâu, các bạn sẽ nghĩ ngay đến việc xây cho mình một ngôi nhà ống. Nhưng nhà ống sẽ rất ít phô được những vẻ đẹp độc đáo bên ngoài của nhà mình. Và để các bạn có được ý tưởng cho ngôi nhà của mình, hôm nay chúng tôi xin giới thiệu với quý vị mẫu biệt thự vườn 2 tầng mái Thái được đội ngũ kiến trúc sư của Nhà Đẹp 4.0 thiết kế cho gia đình nhà anh Hà có địa chỉ tại Yên Lạc với kích thước 8m x 13,7m. Mời các bạn cùng tham khảo.
.jpg)
Mẫu biệt thự 2 tầng hiện đại mái Thái diện tích 8m x 13,7m
THÔNG TIN CÔNG TRÌNH BIỆT THỰ 2 TẦNG DIỆN TÍCH 8M X 13,7M
- Chủ đầu tư: anh Hà
- Điạ điểm: Yên Lạc
- Năm thiết kế: 2020
- Diện tích thiết kế: 8m x 13,7m
- Công năng: 4 phòng ngủ, 1 phòng khách, 1 phòng thờ, 1 phòng bếp.
YÊU CẦU THIẾT KẾ CHO BIỆT THỰ 2 TẦNG DIỆN TÍCH 8M X 13,7M
Anh Hà tìm đến công ty chúng tôi với yêu cầu và mong muốn về ngôi nhà của mình như sau:
- Gia đình muốn thi công mẫu nhà biệt thự 2 tầng với diện tích 1 sàn hơn 100m2.
- Với thế đất nhà mình, phát triển theo chiều sâu, anh Hà muốn ngôi nhà của mình thực sự nổi bật, thông thoáng.
- Mang hơi hướng hiện đại, nhưng pha một chút tân cổ, đơn giản nhưng vẫn thu hút, độc đáo.
- Công năng dự kiến thi công là 4 phòng ngủ, 1 phòng khách, 1 phòng thờ, 1 phòng bếp.
- Ngoại thất công trình có gam màu chủ đạo nhẹ nhàng, nổi bật.
.jpg)
Phối cảnh 3d mẫu biệt thự vườn 2 tầng diện tích 8m x 13,7m
Ngay sau khi tiếp nhận yêu cầu tư vấn thiết kế của chủ đầu tư, chúng tôi đã đến hiện trạng bắt tay vào khảo sát khu vực thi công công trình, từ đó đưa ra các phương án sơ bộ cho chủ đầu tư lựa chọn.
Sau khi được tư vấn rất cụ thế kỹ càng cho công trình nhà mình, anh Hà nhanh chóng chốt phương án chọn, và chúng tôi tiến hành họp bàn và chốt phương án 3D chi tiết.
.jpg)
Với thiết kế hệ mái Thái độ dốc cao, cùng 2 sảnh cho công trình sẽ giúp công trình thông thoáng hơn rất nhiều, thiết kế đơn giản nhưng vẫn có sức hút độc đáo, sang trọng.
Công trình được thiết kế hệ ngũ cấp cùng với 2 cột chính, giúp bố cục trở lên cân đối và thanh thoát hơn. Toàn bộ đế công trình được ốp đá không chỉ mang lại tính thẩm mĩ mà còn ngăn thấm nước giảm bớt sự ảnh hưởng cho chất lượng của công trình trong thời gian sử dụng.
Mái ngói màu xanh than kết hợp cùng tone màu trắng sứ nhẹ nhàng sẽ tạo nên sự liên kết nổi bật và hơi hướng hiện đại. Ngoài ra, ngôi nhà còn được sử dụng màu xanh ghi tạo điểm nhấn trên các phần phân tầng, tạo điểm nhấn nhẹ nhàng cho công trình. Thân nhà và viền cửa sổ còn được bật lên bởi những gờ đắp nổi chạy xung quanh tạo điểm nhấn mạnh cho công trình của nhà anh Hà. Những đường chỉ lõm trên cột, cùng với hoa văn trên các hệ vòm trước sảnh đã thổi được hơi hướng tân cổ vào công trình như mong muốn của anh Hà, anh hoàn toàn rất ưng ý.
Đáp ứng nhu cầu thông thoáng gần gũi với thiên nhiên, chúng tôi bố trí xung quanh nhà anh Hà những khoảng vườn nhỏ để anh có thể trồng cây xanh, trên tầng 2 cũng được bố trí giàn hoa ngoài ban công, giúp không gian sinh hoạt trở nên thoải mái và dễ chịu, chinh phục mọi góc nhìn từ nhiều phía.
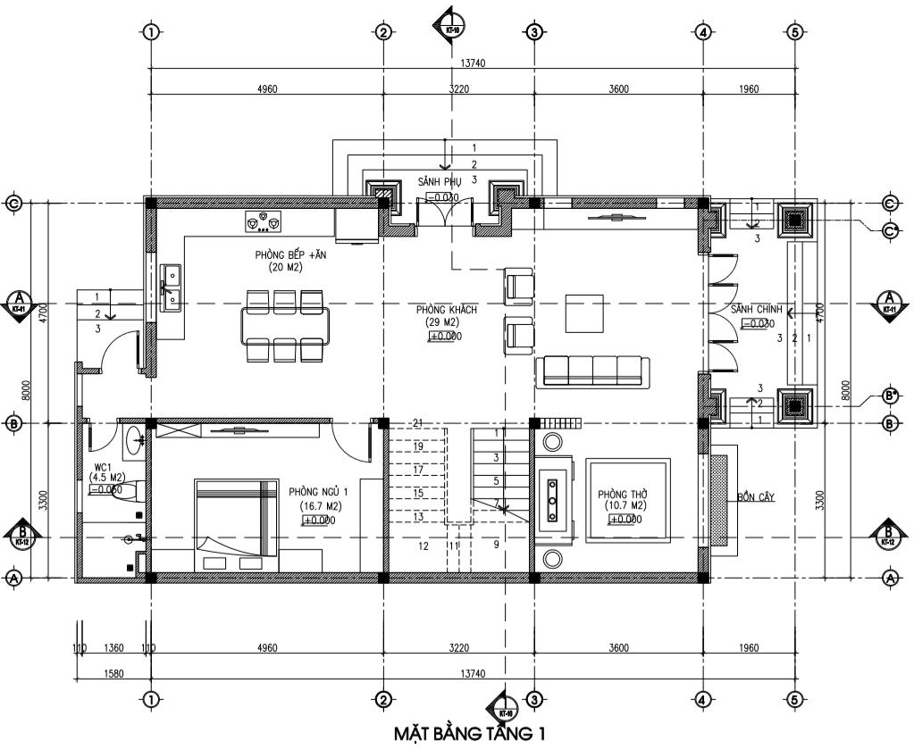
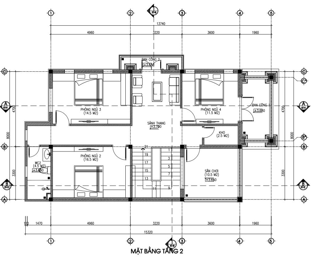
MẶT BẰNG CÔNG NĂNG BIỆT THỰ 2 TẦNG DIỆN TÍCH 8M X 13,7M

Mặt bằng bố trí công năng tầng 1 mẫu biệt thự 2 tầng diện tích 8 x 13,7m

Mặt bằng bố trí công năng tầng 2 mẫu biệt thự 2 tầng diện tích 8m x 13,7m
Bước từ ngoài vào trong là phòng khách thiết kế rộng rãi với diện tích 29m2. Không gian phòng khách được thiết kế tối giản, với 2 hệ cửa sổ tạo sự thoải mái và thoáng đãng cho ngôi nhà.
Tiếp đó là không gian phòng thờ (10,7m2) được đặt phía bên trái, tiện lợi cho việc hương khói của gia đình và khách khứa khi đến thăm nhà.
Đi sâu vào bên trong sẽ là 1 phòng ngủ (16,7m2) và 1 phòng bếp (20m2) với 1 wc chung (4,5m2). Từ không gian phòng bếp sẽ có thêm một lối ra sảnh phụ và một lối ra sân ướt.
Tầng 2 được phân chia với bên trái cầu thang là 2 phòng ngủ lớn 14,5m2 & 16m2 và phía bên phải là 1 phòng ngủ nhỏ (11,5 m2) và 1 sân chơi. Sân chơi (10m2) được bố trí giàn hoa hệ lam gỗ, tăng thêm sự tinh tế và hiện đại cho công trình.
.jpg)
Phối cảnh bố trí công năng + nội thất biệt thự tầng 1
.jpg)
Phối cảnh bố trí công năng + nội thất biệt thự tầng 2
Và đương nhiên, tất cả các phòng trong ngôi nhà của anh Hà đều có cửa sổ thông ra bên ngoài, điều này mang đến một không gian tràn ngập không khí trong lành, ngôi nhà như hòa mình với thiên nhiên, mang đến một cảm giác dễ chịu khi trở về nhà sau ngày dài học tập và làm việc.
Trên đây là bản thiết kế mẫu nhà vườn 1 tầng diện tích 8m x 13,7m của gia đình nhà anh Hà tại Yên Lạc. Hy vọng trên đây sẽ là gợi ý phù hợp cho các bạn khi đang muốn xây dựng ngôi nhà phong cách và kích thước tương tự. Cảm ơn và chúc các bạn thành công!
