BIỆT THỰ 2 TẦNG ĐẸP MƠ MỘNG TẠI BẮC NINH
Mẫu nhà 2 tầng mái Thái hiện đại và sang trọng của chủ đầu tư tại Bắc Ninh với chi phí chưa đến 1,5 tỷ đã tạo nên cơn sốt thời gian qua tại khu vực gia đình đang sinh sống. Chủ đầu tư của chúng tôi là anh Đức và chú Đắp, đến với Nhà Đẹp 4.0 tình cờ qua các mẫu nhà chúng tôi chia sẻ trên cộng đồng youtube. Qua quá trình tiếp xúc và trao đổi những mong muốn của anh và chú, chúng tôi đưa ra những phương án và lựa chọn kỹ càng để không phụ lòng mong mỏi của chủ đầu tư. Từ đó thiết kế lên 1 căn nhà 2 tầng mái Thái hiện đại với kích thước 9x14m. Mời quý vị và các bạn cùng trải nghiệm trong số này của Nhà Đẹp 4.0.

Phối cảnh tổng thể
THÔNG TIN CÔNG TRÌNH BIỆT THỰ 2 TẦNG DIỆN TÍCH 9M X 14M
- Chủ đầu tư: chú Đắp
- Điạ điểm: Bắc Ninh
- Năm thiết kế: 2020
- Diện tích thiết kế: 9m x 14m
- Công năng: 4 phòng ngủ, 1 phòng khách, 1 phòng thờ, 1 phòng bếp.
YÊU CẦU THIẾT KẾ CHO BIỆT THỰ 2 TẦNG DIỆN TÍCH 9M X 14M
Chú Đắp tìm đến công ty chúng tôi với yêu cầu và mong muốn về ngôi nhà của mình như sau:
- Gia đình muốn thi công mẫu nhà biệt thự 2 tầng với diện tích 1 sàn hơn 100m2.
- Với thế đất nhà mình, chú Đắp muốn ngôi nhà theo phong cách chữ L của mình thực sự nổi bật, thông thoáng.
- Mang hơi hướng hiện đại, 2 sảnh, đơn giản nhưng vẫn thu hút, độc đáo.
- Công năng dự kiến thi công là 4 phòng ngủ, 1 phòng khách, 1 phòng thờ, 1 phòng bếp.
- Ngoại thất công trình có gam màu chủ đạo nhẹ nhàng,ấm áp, nổi bật.

Phối cảnh 3d mẫu biệt thự 2 tầng diện tích 9 x 14m
Ngay sau khi tiếp nhận yêu cầu tư vấn thiết kế của chủ đầu tư, chúng tôi đã đến hiện trạng bắt tay vào khảo sát khu vực thi công công trình, từ đó đưa ra các phương án sơ bộ cho chủ đầu tư lựa chọn. Sau khi được tư vấn cụ thể kỹ càng cho công trình nhà mình, chú Đắp nhanh chóng chốt phương án chọn, và chúng tôi tiến hành đưa ra bản vẽ chi tiết.

Đầu tiên công trình được ghi dấu ấn bởi hệ mái độ dốc cao, kết hợp với bố cục chữ L tôn lên sự khỏe khoắn và cách điệu hình dáng cho công trình. Việc sử dụng các tông màu kết hợp với nhau cũng rất quan trọng trong mặt thẩm mĩ và kiến trúc của 1 công trình nhà ở. Ở đây, chúng tôi tư vấn cho chú Đắp về máu ngói sử dụng màu nâu trầm, kết hợp tone màu trắng chủ đạo ngoại thất. Bộ phận dưới mái và các mảng tường chìm trên tường cột được sơn màu vàng nhạt. Sự kết hợp không theo lối tương phản giúp gây thiện cảm và cảm giác nhẹ nhàng cho người nhìn.
Tuy cách sử dụng tông màu đơn giản, nhưng chúng tôi hết sức chú trọng những chi tiết nhỏ nhặt nhưng quan trọng của ngoại thất công trình nhà chú Đắp. Dưới mái được bố trí hệ con sơn đôi vững chắc, và những ô cửa sổ thoáng vừa có giá trị về mặt thẩm mĩ, vữa giúp lưu thông luồng không khí từ bên ngoài vào nhà. Tuy ngôi nhà mang theo phong cách hiện đại, nhưng đường nét nhấn nhá lại nằm ở những phào chỉ đơn giản sử dụng hầu khắp trên các chi tiết, từ viền mái, viền cửa sổ cho đến viền tường cột. Toàn bộ đều có sự đồng nhất 1 cách hợp lý.
Bằng việc bố trí phân tán xung quanh rất nhiều hệ cửa sổ lớn nhỏ, ngôi nhà dành cho gia đình chú Đắp hoàn toàn rất thoáng mát và thoải mái. Tất cả các hệ cửa sổ được sử dụng chất liệu nhôm kính, sang trọng và bền đẹp, còn lại cửa chính được ưu tiên dùng chất liệu gỗ lim Nam Phi hiện đại chắc chắn. Đặc biệt, trên tầng 2 được bố trí 2 ban công rộng rãi. Đây chính là điểm nhìn hút mắt chúng ta không thể không chú ý tới. Dàn hoa leo đầy thơ mộng, ăn khớp với đường uốn lượn khéo léo của lan can ban công, ngôi nhà thực sự rất nổi bật.
Sảnh công trình nhỏ gọn, thay vào đó là thước cột tròn to khiến người nhìn quên đi sự hạn chế mà lại tò mò muốn khám phá phía bên trong.
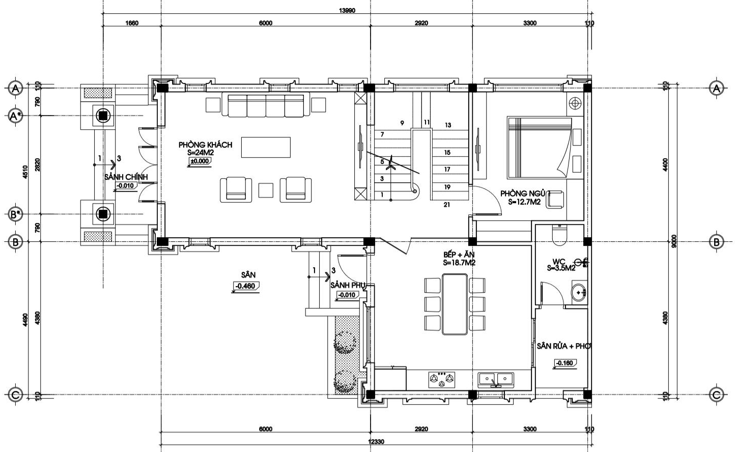
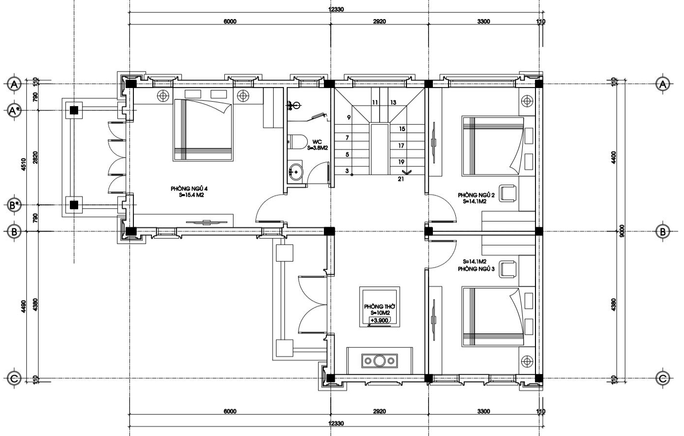
MẶT BẰNG CÔNG NĂNG BIỆT THỰ 2 TẦNG DIỆN TÍCH 9M X 14M

Mặt bằng tầng 1

Mặt bằng tầng 2
Bước chân từ sảnh chính vào là phòng khách với diện tích 24m2. Không gian phòng khách được mở rộng bằng nhiều hệ cửa sổ nhỏ, giúp không gian trở nên rộng thoáng dễ chịu hơn. Tiếp đò là khu vực cầu thang, với việc bố trí khu vực cầu thang ở đây tạo sự riêng tư cho phòng khách, sự ngăn cách khéo léo giữa không gian này với các không gian còn lại. tầng 1 còn lại 1 phòng ngủ và 1 bếp ăn. 1 phòng ngủ nho nhỏ diện tích 12,7m2 thiết kế hệ tủ âm tường tiết kiệm diện tích. Bếp ăn được mở rộng bằng 1 lối phụ rộng rãi. Bếp ăn được khép kín tiện lợi cho mùa hè cần dùng điều hòa. Từ khu bếp ăn có cửa trượt đi ra sân ướt phía sau nhà.
Tầng 2 được phân chia cho các phòng ngủ và 1 phòng thờ. Lên cầu thang phía bên phải là 1 phòng ngủ rộng 15,4m2 có ban công riêng. Bên cạnh là 1 NVS chung cho cả tầng 2. Còn lại phía bên trái là 2 phòng ngủ có kích thước và sự sắp xếp tương tự, diện tích 14,2m2. 1 phòng thờ nhỏ 10m2 có ban công riêng rộng rãi, vẫn giữ được sự ấm cúng và tôn nghiêm cho 1 không gian phòng thờ.
Và đó là sơ lược công trình nhà 2 tầng hiện đại kích thước 9x14m được Nhà Đẹp 4.0 thiết kế cho gia đình chú Đắp tại Bắc Ninh. Quý vị thấy sao về mẫu nhà này? Hãy để lại ý kiến dưới phần bình luận để chúng ta cùng trao đổi. Chúc các bạn thành công!
