BIỆT THỰ 2 TẦNG CHỮ L NỔI BẬT TẠI THANH OAI
Đất vùng nông thôn đang dần trở nên hẹp và chật chội hơn rất nhiều. Vì vậy ngôi nhà trong tương lai của bạn cần được quan tâm và thiết kế sao cho tạo được cảm giảm rộng thoáng cho người nhìn, và đặc biệt, phong cách mới mẻ đột phá theo thời đại.
Và ngày hôm nay, chúng tôi xin giới thiệu với quý vị mẫu biệt thự 2 tầng mái Thái được đội ngũ kiến trúc sư của Nhà Đẹp 4.0 thiết kế cho gia đình nhà chú Chiến có địa chỉ tại Thanh Oai với kích thước 9m x 11,5m. Mời các bạn cùng tham khảo và cảm nhận.
.jpg)
Mẫu biệt thự 2 tầng hiện đại mái Thái diện tích 9 x 11,5m
THÔNG TIN CÔNG TRÌNH BIỆT THỰ 2 TẦNG DIỆN TÍCH 9M X 11,5M
- Chủ đầu tư: chú Chiến
- Điạ điểm: Thanh Oai, Hà Nội
- Năm thiết kế: 2020
- Diện tích thiết kế: 9m x 11,5m
- Công năng: 5 phòng ngủ, 1 phòng khách, 1 phòng thờ.
- Chi phí: 900 triệu.
YÊU CẦU THIẾT KẾ CHO BIỆT THỰ 2 TẦNG DIỆN TÍCH 9M X 11,5M
Chú Chiến tìm đến công ty chúng tôi với yêu cầu và mong muốn về ngôi nhà của mình như sau:
- Gia đình muốn thi công mẫu nhà biệt thự 2 tầng với diện tích xây dựng 100m2.
- Với thế đất và không gian thu hẹp như hiện nay, chú Chiến muốn ngôi nhà của mình thực sự nổi bật, thông thoáng.
- Mang hơi hướng hiện đại, 2 mặt tiền, đơn giản nhưng vẫn thu hút, độc đáo.
- Công năng dự kiến thi công là 4 phòng ngủ, 1 phòng khách, 1 phòng thờ, 1 phòng bếp.
- Ngoại thất công trình có gam màu chủ đạo nhẹ nhàng, nhưng vẫn hiện đại và nổi bật.
.jpg)
Phối cảnh 3d mẫu biệt thự vườn 1 tầng diện tích 9 x 11,5m
Ngay sau khi tiếp nhận yêu cầu tư vấn thiết kế của chủ đầu tư, chúng tôi đã đến hiện trạng bắt tay vào khảo sát khu vực thi công công trình, từ đó đưa ra các phương án sơ bộ cho chủ đầu tư lựa chọn.
Sau khi được tư vấn rất cụ thế kỹ càng cho công trình nhà mình, chú Chiến nhanh chóng chốt phương án chọn, và chúng tôi tiến hành họp bàn và chốt phương án 3D chi tiết.
.jpg)
Với thiết kế hệ mái Thái độ dốc cao, cùng 2 sảnh cho công trình sẽ giúp công trình thông thoáng hơn rất nhiều, thiết kế đơn giản nhưng vẫn có sức hút độc đáo, sang trọng. Ngoài sự hiện đại trong hình khối và màu sắc, công trình nổi bật lên bởi hệ cột tròn và phào đơn giản, gợi chút tân cổ trong đó, khiến công trình càng trở nên sang trọng và khỏe khoắn.
Công trình được thiết kế hệ tam cấp cùng với 2 cột chính, giúp bố cục trở lên cân đối và thanh thoát hơn. Phong cách thiết kế chữ L giúp gia đình có một khoảng sân sinh hoạt khá rộng và thoải mái. Mái ngói màu xanh dương kết hợp cùng tone màu trắng sứ sẽ tạo nên sự liên kết nổi bật và hơi hướng hiện đại, đồng thời cũng là gam màu ít hấp thụ nhiệt tạo sự mát mẻ và dễ chịu cho công trình nhà chú Chiến. Ngoài ra, ngôi nhà còn được sử dụng màu ghi tạo điểm nhấn trên các phần phân tầng, kẻ chỉ trên mái. Thân nhà và viền cửa sổ còn được bật lên bởi những gờ đắp nổi chạy xung quanh tạo điểm nhấn mạnh cho công trình của nhà chú Chiến.
Đáp ứng nhu cầu thông thoáng gần gũi với thiên nhiên, chúng tôi bố trí xung quanh nhà chú Chiến những khoảng đất nhỏ để chú có thể trồng cây xanh, trồng hoa, đồng thời trên các khu vực ban công cũng được bố trí hệ lam để chúng ta có thể treo cũng như trồng những cây hoa leo xanh mát tuyệt đẹp, giúp không gian sinh hoạt trở nên thoải mái và dễ chịu, chinh phục mọi góc nhìn từ nhiều phía.
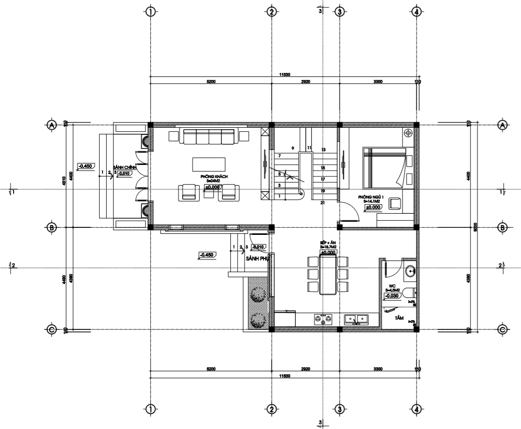
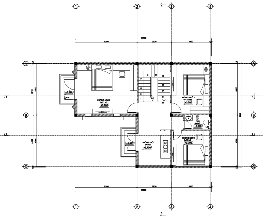
MẶT BẰNG CÔNG NĂNG BIỆT THỰ 2 TẦNG DIỆN TÍCH 9M X 11,5M
.png)
Mặt bằng bố trí công năng tầng 1 mẫu biệt thự 2 tầng diện tích 9 x 11,5m
.png)
Mặt bằng bố trí công năng tầng 2 mẫu biệt thự 2 tầng diện tích 9 x 11,5m
Bước từ ngoài vào trong là phòng khách thiết kế rộng rãi với diện tích 24m2. Không gian phòng khách được thiết kế với 1 hệ cửa sổ lớn và 2 cửa sổ nhỏ, từ trong không gian phòng khách có thể ngắm nhìn mọi thứ bên ngoài nhà một cách dễ dàng.
Đi sâu bên trong phía bên trái là 1 phòng ngủ(14m2) và 1 phòng bếp gần 20m2 với 1 wc chung cho tầng 1 khá rộng (4,5m2). Khu vực bếp có 1 sảnh nữa tiện cho việc chợ búa cũng như riêng biệt với sảnh phòng khách.
Tầng 2 được phân chia bố cục tương tự. bên trái là 2 phòng ngủ với 1 phòng ngủ lớn có ban công riêng (21m2) và 1 phòng ngủ còn lại 14m2. phía bên phải là 1 phòng ngủ nhỏ (10m2) và phòng thờ (9m2) có ban công riêng. Việc đặt phòng thờ trên tầng 2 cũng giúp cho không gian này của gia đình được riêng tư và ấm cúng hơn.
.jpg)
Phối cảnh bố trí công năng + nội thất biệt thự tầng 1
.jpg)
Phối cảnh bố trí công năng + nội thất biệt thự tầng 2
Và đương nhiên, tất cả các phòng trong ngôi nhà của chú Chiến đều có cửa sổ thông ra bên ngoài, điều này mang đến một không gian tràn ngập không khí trong lành, ngôi nhà như hòa mình với thiên nhiên, mang đến một cảm giác dễ chịu khi trở về nhà sau ngày dài học tập và làm việc.
Trên đây là bản thiết kế mẫu nhà vườn 1 tầng diện tích 9m x 11,5m của gia đình nhà chú Chiến tại Thanh Oai. Hy vọng trên đây sẽ là gợi ý phù hợp cho các bạn khi đang muốn xây dựng ngôi nhà phong cách và kích thước tương tự. Cảm ơn và chúc các bạn thành công!
Link youtube review chi tiết hồ sơ thiết kế công trình nhà chú Chiến tại Thanh Oai:
https://www.youtube.com/embed/S2Mf5uPYr7o
