BIỆT THỰ 1 TẦNG TẠI PHÚ THỌ 13M X 18M
Một căn biệt thự vườn 1 tầng ắt hẳn nhiều người sẽ nhắc tới nếu dành cho khuôn viên đất rộng rãi. Nhưng quý vị vẫn chưa thể tìm được mẫu nhà ưng ý cho riêng gia đình mình. Vậy thì ngày hôm nay chúng ta cùng khám phá công trình gây ấn tượng với rất nhiều chủ đầu tư bên Nhà Đẹp 4.0.Mẫu thiết kế biệt thự vườn 1 tầng hiện đại mái Thái với kích thước 13,6m x 18,3m được công ty tư vấn thiết kế kiến trúc và nội thật Nhà Đẹp 4.0 thiết kế cho gia đình chú Bân có địa chỉ tại Phú Thọ. Mời các bạn cùng tham khảo.
.jpg)
Mẫu nhà vườn mái Thái với mặt tiền 18m
THÔNG TIN CÔNG TRÌNH NHÀ CẤP 4 MÁI THÁI DIỆN TÍCH 13,6M X 18,3M
- Chủ đầu tư: chú Bân
- Địa điểm: Phú Thọ
- Năm thiết kế: 2020
- Diện tích thiết kế: 13,6m x 18,3m
- Công năng: 3 phòng ngủ, 1 phòng thờ, 1 phòng khách, 1 phòng bếp.
YÊU CẦU THIẾT KẾ CHO NGÔI NHÀ VƯỜN 13,6X18,3M
Chú Bân tìm đến công ty chúng tôi với những mong muốn cho ngôi nhà của mình cụ thể như sau:
- Gia đình muốn thi công mẫu nhà vườn mái Thái với diện tích 13,6m x 18,3m.
- Khu đất của gia đình khá rộng, nên muốn ngôi nhà thật sự nổi bật và sang trọng.
- Mang hơi hướng hiện đại, đơn giản nhưng vẫn thu hút, độc đáo.
- Công năng dự kiến thi công là 3 phòng ngủ, 1 phòng thờ, 1 phòng khách, 1 phòng bếp ăn.
- Ngoại thất công trình màu nhẹ nhàng, thanh thoát, gần gũi với thiên nhiên.
.jpg)
Mẫu nhà vườn mái Thái hiện đại diện tích 13,6x18,3m
Ngay sau khi tiếp nhận yêu cầu tư vấn thiết kế của chủ đầu tư, chúng tôi đã đến hiện trạng bắt tay vào khảo sát khu vực thi công công trình, từ đó đưa ra các phương án sơ bộ cho chủ đầu tư lựa chọn.Sau khi được tư vấn rất cụ thế kỹ càng cho công trình nhà mình, chú Bân nhanh chóng chốt phương án chọn, và chúng tôi tiến hành đưa ra bản vẽ chi tiết.
.jpg)
Sự sắp xếp chính phụ giữa các mái đã tạo nên điểm nhấn đầu tiên cho công trình. Với mặt tiền là cách bố trí song song cùng mái lớn và mái nhỏ, còn với hông nhà cách sắp xếp chồng lớp tinh tế cùng hệ thống ống khói giả làm điểm nhấn nổi bật. Dưới mái là những cửa sổ thoáng giúp cho việc điều hòa không khí bên trong nhà tốt hơn. Màu ngói được sử dụng màu xanh, hài hòa với lớp sơn áo ngoài của công trình. Màu chủ đạo được chúng tôi tư vấn cho gia chủ là màu trắng sứ, cũng là tone màu rất phù hợp mệnh của gia chủ, chú Bân rất hài lòng. Nối bật trên nền sơn nhã nhặn là những mảng tường được ốp gạch thẻ dưới mái và quanh cửa sổ. Những màu sắc được sử dụng nhã nhặn, nhè nhàng như mong muốn của gia chủ, để mỗi khi nhìn vào công trình đều tạo được cảm giác thoải mái cho mỗi thành viên. Những đường gờ đắp nổi được sử dụng tại nhiều chi tiết như cổ mái, xung quanh cửa sổ, thân nhà là 1 nét khỏe khoắn, tạo sự riêng biệt nhất định bật lên cá tính căn biệt thự.
Để phù hợp với vẻ ngoài nhẹ nhàng và nét trang nhã cho công trình nhà chú Bân, chúng tôi bố trí rất nhiều hệ cửa sổ nhôm kính xingfa phân tán xung quanh nhà. Còn lại cửa chính được ưu tiên chất liệu Lim Nam Phi giữ được nét sang trọng cho công trình.
Công trình được thiết kế hệ tam cấp cùng với 2 cột chính. Thân cột được thu nhỏ dần về phía đầu cột, việc cách điệu này cũng tăng thêm phần hiện đại cho ngôi nhà của chú Bân. Toàn bộ đế công trình được ốp đá không chỉ mang lại tính thẩm mĩ mà còn ngăn thấm nước giảm bớt sự ảnh hưởng cho chất lượng của công trình trong thời gian sử dụng.
Bên hông nhà được bố trí vị trí để xe oto ngoài trời. Mọi góc cạnh của công trình đều được chau chuốt từng chi tiết, nên vị trí này cũng được chúng tôi rấ quan tâm. Đây không chỉ đơn thuần là vị trí để xe, mà còn là hệ lam hoa leo bắt mắt độc đáo, để mọi người có thể ngồi lại ngắm nhìn hòa mình với thiên nhiên hơn.
.jpg)
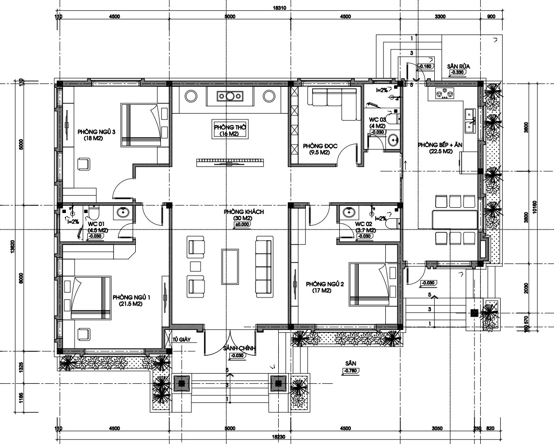
MẶT BẰNG CÔNG NĂNG NHÀ CẤP 4 MÁI THÁI DIỆN TÍCH 13,6M X 18,3M

Nhìn vào bản vẽ chúng ta có thể nhận thấy công trình được mở rộng bởi 2 sảnh. Bước từ sảnh chính vào trong là phòng khách kết hợp không gian phòng thờ thiết kế rộng rãi với diện tích 30m2, và phòng thờ rộng 16m2. Đây là không gian ở trung tâm, và sự kết nối giữa các không gian có sự liền mạch. Phía bên trái là 2 phòng ngủ với 1 phòng ngủ master rộng 21,5m2, và 1 phòng ngủ thường rộng 18m2. Bên phải là 1 phòng ngủ master nữa nhưng nhỏ hơn 1 chút, rộng 17m2, một phòng đọc nho nhỏ rộng 9m2, đáp ứng đủ nhu cầu ánh sáng và yên tĩnh cho 1 phòng đọc. Và cuối cùng là khu WC chung và khu bếp ăn. Bếp ăn rộng 22,5m2 và gần như được ngăn cách tách biệt. Khu bếp có 1 lối đi sảnh phụ và 1 lối ra sân phía sau nhà, bảo toàn việc chợ búa riêng tư.
.jpg)
Trên đây là mẫu thiết kế biệt thự 1 tầng kích thước 13,6x18,3m với công năng chúng ta vừa tham quan. Hy vọng công trình nhà chú Bân tại Phú Thọ sẽ là 1 gợi ý phù hợp khi đang muốn xây dựng công trình có kích thước tương tự. Mọi ý kiến đóng góp quý vị có thể để lại dưới phần bình luận. cần thiết kế thi công quý vị hãy để lại sđt hoặc liên hệ hotline của Nhà Đẹp 4.0 để chúng tôi có thể hỗ trợ trực tiếp. Còn bây giờ xin chào và hẹn gặp lại quý vị trong những số tiếp theo.
