BIỆT THỰ 1 TÀNG TẠI LAI CHÂU ĐẸP NHẸ NHÀNG, MÊ MẨN
Biệt thự 1 tầng có tum ắt hẳn ít người chọn cho mình được mẫu ưng ý. Vậy hôm nay, chúng tôi sẽ giới thiệu cho các bạn một trong số những mẫu dễ chiều lòng các chủ đầu tư nhất. Mẫu thiết kế biệt thự vườn 1 tầng có tum hiện đại mái Thái với kích thước 11,6m x 14,5m được công ty tư vấn thiết kế kiến trúc và nội thật Nhà Đẹp 4.0 thiết kế cho gia đình anh Nam có địa chỉ tại Lai Châu. Mời các bạn cùng tham khảo.
.jpg)
Mẫu biệt thự vườn 1 tầng 1 tum hiện đại 10,7 x 11,6m
THÔNG TIN CÔNG TRÌNH BIỆT THỰ VƯỜN 1 TẦNG 1 TUM DIỆN TÍCH 10,7M X 11,6M
- Chủ đầu tư: anh Nam
- Điạ điểm: Lai Châu
- Năm thiết kế: 2020
- Diện tích thiết kế: 10,7m x 11,6m
- Công năng: 3 phòng ngủ, 1 phòng khách, 1 phòng thờ.
- Chi phí dự kiến: 850 triệu.
YÊU CẦU THIẾT KẾ CHO BIỆT THỰ VƯỜN 1 TẦNG DIỆN TÍCH 10,7M X 11,6M
Anh Nam tìm đến công ty chúng tôi với yêu cầu và mong muốn về ngôi nhà của mình như sau:
- Gia đình muốn thi công mẫu nhà vườn 1 tầng 1 tum với diện tích hơn 100m2.
- Với thế đất nhà mình, anh Nam muốn ngôi nhà của mình thực sự nổi bật, thông thoáng và nhiều cây xanh.
- Mang hơi hướng hiện đại, đơn giản nhưng vẫn thu hút, độc đáo.
- Công năng dự kiến thi công là 3 phòng ngủ, 1 phòng khách, 1 phòng thờ, khu phụ đặt bên ngoài.
- Ngoại thất công trình có gam màu chủ đạo nhẹ nhàng, mát mẻ.
- Chi phí xây dựng dưới 1 tỷ.
.jpg)
Phối cảnh 3d mẫu biệt thự vườn 1 tầng 1 tum diện tích 10,7 x 11,6m
Ngay sau khi tiếp nhận yêu cầu tư vấn thiết kế của chủ đầu tư, chúng tôi đã đến hiện trạng bắt tay vào khảo sát khu vực thi công công trình, từ đó đưa ra các phương án sơ bộ cho chủ đầu tư lựa chọn.
Sau khi được tư vấn rất cụ thế kỹ càng cho công trình nhà mình, anh Nam nhanh chóng chốt phương án chọn, và chúng tôi tiến hành họp bàn và chốt phương án 3D chi tiết.
.jpg)
Với thiết kế hệ mái Thái độ dốc cao, cùng sảnh lớn sẽ giúp công trình thông thoáng hơn rất nhiều, thiết kế đơn giản nhưng vẫn có sức hút độc đáo, sang trọng. Hệ mái được bố trí 2 mái chính và 1 mái phụ, vừa tạo bố cục hài hòa cân đối, vừa mang điểm nhấn độc đáo cho ngôi nhà.
Công trình được thiết kế hệ ngũ cấp cùng với 2 cột chính lớn. Hệ cột được thu nhỏ dần từ thân lên đầu cột tạo sự phá cách độc đáo cho công trình. Toàn bộ đế và chân cột công trình được ốp đá không chỉ mang lại tính thẩm mĩ mà còn ngăn thấm nước giảm bớt sự ảnh hưởng cho chất lượng của công trình trong thời gian sử dụng.
Mái ngói màu xanh dương kết hợp cùng tone màu xanh nhạt nhẹ nhàng sẽ tạo nên sự liên kết nổi bật và hơi hướng hiện đại, đáp ứng được nhu cầu của anh Nam là khi nhìn vào ngôi nhà nhà mình sẽ thấy nhẹ nhàng, mát mẻ và thoải mái. Ngoài màu xanh nhạt, ngôi nhà còn được sử dụng màu trắng sứ trên phần phân tầng và mái, cùng với các đường kẻ chỉ ngang chạy suốt xung quan thân nhà màu xanh đậm. Thân nhà còn được bật lên bởi các gờ đắp nổi với tone màu của cửa sổ hệ nhôm xingfa. Việc kết hợp màu sắc này giúp công trình của chúng ta không chỉ cuốn hút và nổi bật, mà còn bộc lộ được tính cách của gia chủ.
Đáp ứng nhu cầu thông thoáng gần gũi với thiên nhiên, chúng tôi không quên đặt ở mái hệ thống cửa sổ thông gió, xung quanh nhà đều được bố trí những khoảng đất nhỏ trồng cây xanh, giúp không gian sinh hoạt trở nên thoải mái và dễ chịu, chinh phục mọi góc nhìn từ nhiều phía.
MẶT BẰNG CÔNG NĂNG BIỆT THỰ VƯỜN 1 TẦNG DIỆN TÍCH 10,7M X 11,6M

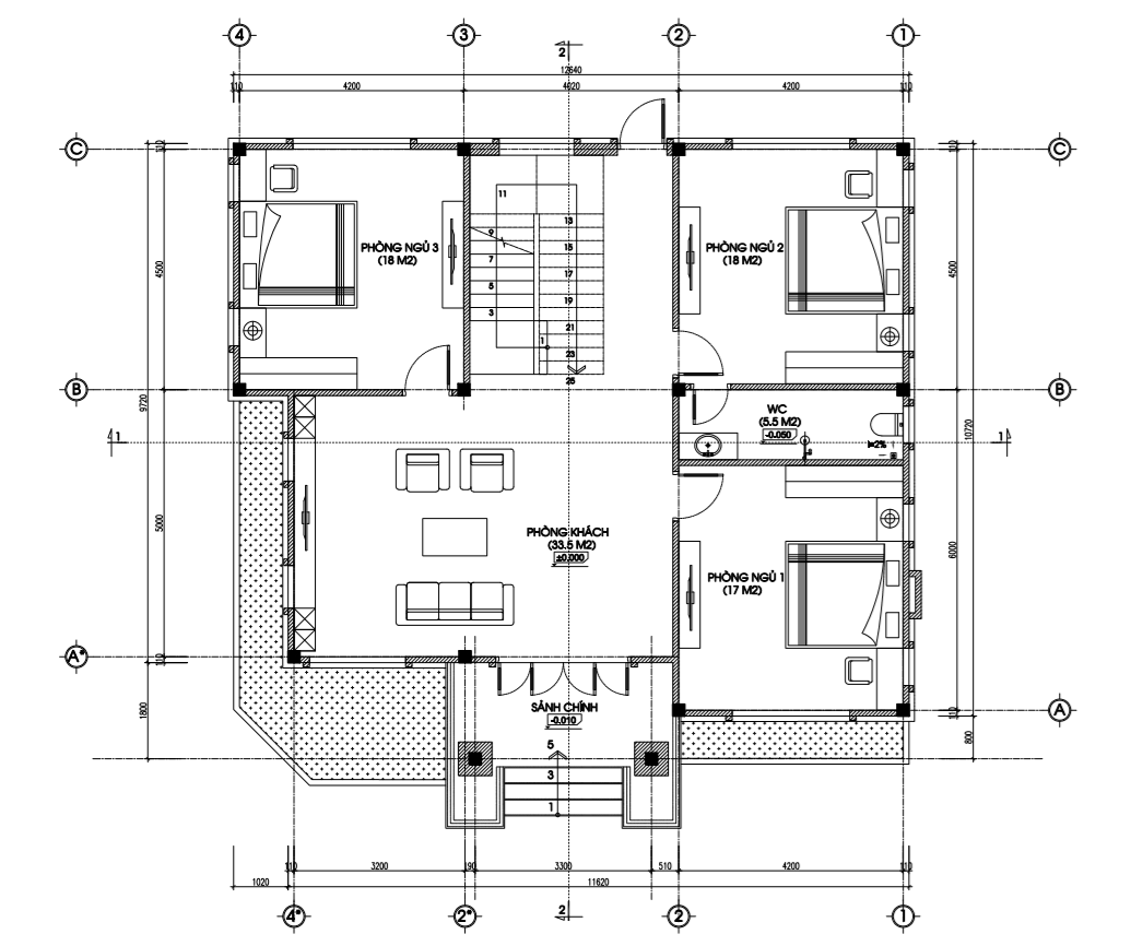
Mặt bằng tầng 1 nhà biệt thự 10,7m x 11,6m

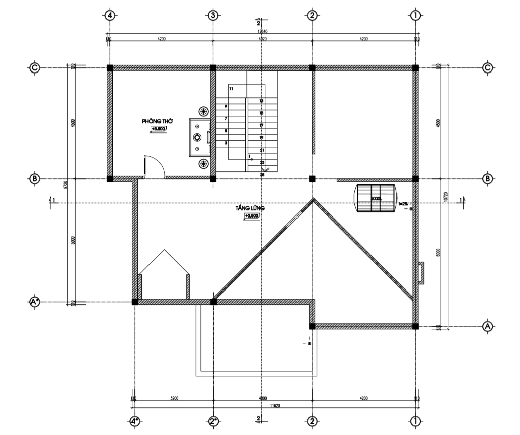
Mặt bằng tầng tum nhà biệt thự 10,7m x 11,6m
Nhìn vào bản vẽ chúng ta có thể nhận thấy cách bài trí công năng ngôi nhà khá phù hợp. Bước từ ngoài vào trong là phòng khách thiết kế rộng rãi với diện tích 33,5m2. Không gian phòng khách được thiết kế với 1 hệ cửa sổ lớn và 2 cửa sổ nhỏ. Không gian phòng khách được tạo mở bởi khu cây xanh bên ngoài, tăng thêm sự thoải mái và thoáng đãng cho ngôi nhà.
Bên trái là 1 phòng ngủ với diện tích 18m2 và bên phải là 2 phòng ngủ có kích thước tương tự với 1 phòng ngủ có wc riêng. Khu phụ được đặt bên ngoài, và ở khu phụ có wc. Đây cũng là mong muốn của nhiều gia chủ, đặt khu phụ bên ngoài sẽ sạch sẽ và giảm thiểu mùi cho không gian bên trong ngôi nhà.
Ở giữa là lối cầu thang lên tầng tum. Trên tầng tum được đặt phòng thờ với diện tích 18m2, được đặt theo hướng hợp mệnh gia chủ.
.jpg)
Phối cảnh bố trí công năng + nội thất nhà vườn 1 tầng kích thước 10,7 x 11,6m
Và đương nhiên, tất cả các phòng trong ngôi nhà của anh Nam đều có cửa sổ thông ra bên ngoài, điều này mang đến một không gian tràn ngập không khí trong lành, ngôi nhà như hòa mình với thiên nhiên, mang đến một cảm giác dễ chịu khi trở về nhà sau ngày dài học tập và làm việc.
Trên đây là bản thiết kế mẫu nhà vườn 1 tầng diện tích 10,7m x 11,7m của gia đình nhà anh Nam tại Lai Châu. Hy vọng đây sẽ là gợi ý phù hợp cho các bạn khi đang muốn xây dựng ngôi nhà phong cách và kích thước tương tự. Cảm ơn và chúc các bạn thành công!
Link youtube review chi tiết hồ sơ thiết kế công trình nhà anh Nam - Lai Châu
