BIỆT THỰ 1 TẦNG NHỎ NHẮN MỘNG MƠ TẠI ĐÀ LẠT
Thiết kế biệt thự phố có gác lửng với phối cảnh kiến trúc sang trọng, tỷ lệ hình khối và mảng cục cân đối. Không gian sống sang trọng, cùng với mức kinh phí đầu tư hợp lý, hứa hẹn đem đến cho bạn một không gian sống tối ưu hoá công năng. Hôm nay chúng tôi xin giới thiệu với các bạn mẫu biệt thự phố được đội ngũ kiến trúc sư Nhà Đẹp 4.0 thiết kế cho gia đình nhà anh Trần Tiểu Tri có địa chỉ tại Đà Lạt. Mời các bạn cùng tham khảo.

Mẫu nhà phố hiện đại diện tích 6,5x25m
THÔNG TIN CÔNG TRÌNH NHÀ PHỐ DIỆN TÍCH 6,5M x 25M
- Chủ đầu tư: anh Tri
- Địa điểm: Đà Lạt
- Năm thiết kế: 2020
- Diện tích thiết kế: 6,5m x 25m
- Công năng: 3 phòng ngủ, 1 phòng thờ, 1 phòng khách, 1 phòng bếp.
- Chi phí hoàn thiện dự kiến: 1,1 tỷ
YÊU CẦU THIẾT KẾ CHO NGÔI NHÀ PHỐ 6,5X25M
Anh Tri tìm đến công ty chúng tôi với những mong muốn cho ngôi nhà của mình cụ thể như sau:
- Gia đình muốn thi công mẫu nhà phố với diện tích 6,5m x 25m.
- Chính vì là nhà phố duy nhất 1 mặt tiền nên anh chị mong muốn ngôi nhà thật sự nổi bật và sang trọng.
- Mang hơi hướng hiện đại, đơn giản nhưng vẫn thu hút, độc đáo.
- Công năng dự kiến thi công là 3 phòng ngủ, 1 phòng thờ, 1 phòng khách, phòng bếp và có tum.
- Ngoại thất công trình màu trắng chủ đạo, điểm nhấn khỏe khoắn hiện đại, gần gũi với thiên nhiên.
- Chi phí hoàn thiện dự tính không vượt quá 1,5 tỷ.

Phối cảnh 3d mẫu nhà phố hiện đại diện tích 6,5x25m
Ngay sau khi tiếp nhận yêu cầu tư vấn thiết kế của chủ đầu tư, chúng tôi đã đến hiện trạng để khảo sát khu vực thi công công trình, từ đó đưa ra các phương án sơ bộ cho chủ đầu tư lựa chọn.
Sau khi chốt phương án tư vấn, chúng tôi tiến hành họp bàn và chốt phương án 3D chi tiết.
.jpg)
Với thiết kế hệ mái dốc, cùng khoảng sân rộng rãi cho công trình sẽ giúp công trình thông thoáng hơn rất nhiều, thiết kế đơn giản nhưng vẫn có sức hút độc đáo, sang trọng.
Toàn bộ đế công trình được ốp đá không chỉ mang lại tính thẩm mĩ mà còn ngăn thấm nước giảm bớt sự ảnh hưởng cho chất lượng của công trình trong thời gian sử dụng.
Ngoài màu trắng sứ, thân nhà còn được bật lên bởi màu vàng nhạt của đá ốp toàn bộ bề mặt tầng 1. Việc kết hợp màu sắc này giúp công trình của chúng ta không chỉ mạnh mẽ, bề thế, mà còn rất cuốn hút và nổi bật.
Đặc biệt, hệ cửa chắn là điểm phá cách nhấn nhá cho tầng 2 và toàn bộ công trình nhà anh Tri, hoàn toàn tươi mới và hiện đại.
Đáp ứng nhu cầu thông thoáng gần gũi với thiên nhiên, chúng tôi không quên đặt ở phía trước nhà và ban công tầng 2 khoảng đất trồng cây giúp không gian sinh hoạt trở nên thoải mái và dễ chịu, chinh phục mọi góc nhìn xung quanh.
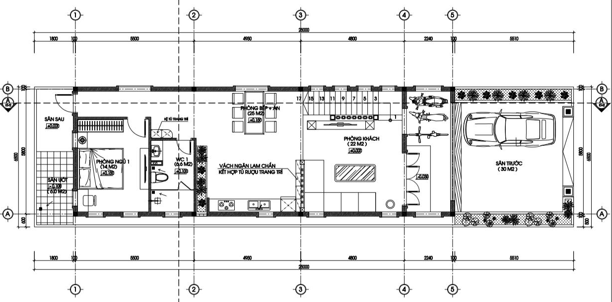
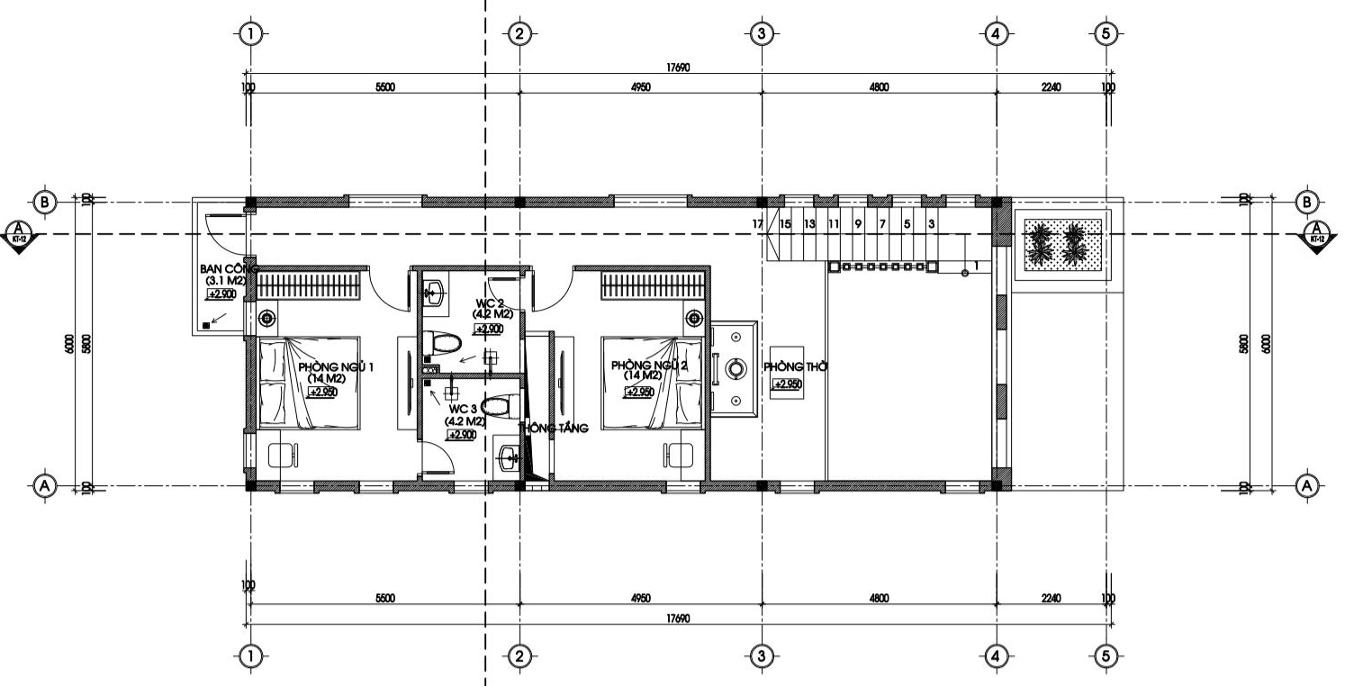
MẶT BẰNG CÔNG NĂNG NHÀ PHỐ DIỆN TÍCH 6,5M X 25M

Mặt bằng tầng 1 nhà phố 6,5x25m

Mặt bằng tầng 2 nhà phố 6,5x25m
Bước từ ngoài vào trong là phòng khách thiết kế rộng rãi với diện tích 22m2. Không gian phòng khách được thiết kế tối giản với 2 hệ cửa sổ tạo sự thoải mái và thoáng đãng cho ngôi nhà.
Đi sâu vào bên trong sẽ là một phòng bếp (25m2) được bố trí tủ rượu, trưng bày decor, trang trí, đồng thời đây cũng thay cho vách ngăn giữa không gian phòng khách và phòng bếp. Còn lại, phía bên trong sẽ là 1 phòng ngủ 14m2. Ngoài ra phía sau sẽ có một lối đi ra sân ướt.
Công trình được làm thông tầng với hệ cầu thang đơn nhỏ gọn. Đồng thời sàn tầng 2 được thu nhỏ lại còn 6,5 x 17,5m. Trên tầng 2 bố trí 2 phòng ngủ và 1 phòng thờ (3m2). Hai phòng ngủ đều khép kín và có kích thước tương tự nhau (14m2).

Bố trí công năng tầng 1 nhà phố 6,5x25m

Bố trí công năng tầng 2 nhà phố 6,5x25m
Tất cả các phòng trong ngôi nhà của anh Tri đều có cửa sổ thông ra bên ngoài, điều này mang đến một không gian tràn ngập không khí trong lành, ngôi nhà như hòa mình với thiên nhiên, mang đến một cảm giác dễ chịu khi trở về nhà sau ngày dài học tập và làm việc.
Trên đây là bản thiết kế mẫu nhà phố diện tích 6,5x25m cho gia đình nhà anh Tri tại Đà Lạt. Với những gì chúng tôi đã chia sẽ, hy vọng mọi người đã có ý tưởng và dự định cho bản thân và sớm sở hữu cho mình một ngôi nhà lý tưởng. Chúc các bạn thành công!
