BIỆT THỰ 1 TẦNG MÁI THÁI TẠI NỔI BẬT TẠI BẮC KẠN
Với chi phí chưa đến 1 tỷ đồng, quý vị có rất nhiều sự lựa chọn phong cách nhà cho gia đình mình. Đặc biệt là với những mẫu biệt thự 1 tầng có khá nhiều chủ đầu tư lựa chọn. Dưới đây là mẫu biệt thự vườn 1 tầng được đội ngũ KTS của Nhà Đẹp 4.0 thiết kế cho gia đình anh Thành có địa chỉ tại Bạch Thông, tỉnh Bắc Cạn. Chúng ta sẽ cùng đi khám phá ngay sau đây.

Mẫu biệt thự 1 tầng hiện đại mái Nhật diện tích 13m x 17m
THÔNG TIN CÔNG TRÌNH BIỆT THỰ 1 TẦNG DIỆN TÍCH 13M X 17M
- Chủ đầu tư: anh Thành
- Điạ điểm: Bắc Kạn
- Năm thiết kế: 2020
- Diện tích thiết kế: 13m x 17m
- Công năng: 4 phòng ngủ, 1 phòng khách, 1 phòng thờ, 1 phòng bếp.
YÊU CẦU THIẾT KẾ CHO BIỆT THỰ 1 TẦNG DIỆN TÍCH 13M X 17M
Anh Thành tìm đến công ty chúng tôi với yêu cầu và mong muốn về ngôi nhà của mình như sau:
- Gia đình muốn thi công mẫu nhà biệt thự 1 tầng với diện tích xây dựng hơn 150m2.
- Với thế đất nhà mình, anh Thành muốn ngôi nhà của mình thực sự nổi bật, thông thoáng và nhiều cây xanh.
- Mang hơi hướng hiện đại, 2 mặt tiền, đơn giản nhưng vẫn thu hút, độc đáo.
- Công năng dự kiến thi công là 4 phòng ngủ, 1 phòng khách, 1 phòng thờ, 1 phòng bếp.
- Ngoại thất công trình có gam màu chủ đạo khỏe khoắn, nổi bật.

Phối cảnh 3d mẫu biệt thự vườn 1 tầng diện tích 13 x 17m
Ngay sau khi tiếp nhận yêu cầu tư vấn thiết kế của chủ đầu tư, chúng tôi đã đến hiện trạng bắt tay vào khảo sát khu vực thi công công trình, từ đó đưa ra các phương án sơ bộ cho chủ đầu tư lựa chọn. Sau khi được tư vấn cụ thể kỹ càng cho công trình nhà mình, anh Thành nhanh chóng chốt phương án chọn, và chúng tôi tiến hành đưa ra bản vẽ chi tiết.

Khuôn viên đất rộng rãi, nên chủ đầu tư lựa chọn cho mình phong cách biệt thự vườn hệ mái Thái độ dốc cao. Lối thiết kế kiến trúc có sự thổi hồn đặc biệt từ phong cách thấp tầng của châu Âu. Dưới phần mái là những ô cửa sổ thoáng lấy sáng và lưu thông không khí bên trong nhà. Nét chấm phá cổ điển nằm ở hệ vòm cửa cửa sổ thoáng. Cùng với đó là màu sắc được sử dụng trầm ấm, mang lại nét hài hòa cho cảm nhận của người xem. Màu ngói nâu đỏ, kết hợp cùng tông màu trắng chủ đạo, dễ dàng pha trộn giữa các màu nóng và gam màu trung tính. Trải dài từ tường mái cho đến hết thân nhà đều được bật lên những đường kẻ chỉ lõm chạy xuyên suốt, tại các góc tường là mảng miếng ghi xám nhấn nhá cho công trình. Với kích thước 13 x 17m, công trình phát triển theo chiều ngang, tuy nhiên, lối tiếp cận được mở rộng bằng 2 sảnh rộng rãi. Thước cột vuông lớn trước sảnh chính được ốp chân toàn bộ, cùng bố trí đèn hơi hướng cổ điển. Đặc biệt, sảnh phụ được bố trí hệ lam hoa leo độc đáo, bắt mắt.
Với chiều cao của một công trình một tầng diện tích xấp xỉ 200m2 thì sử dụng hệ tam cấp hoàn toàn hợp lý. Toàn bố đế ngôi nhà được ốp đá, tạo sự vững chắc tăng tính thẩm mĩ và bảo vệ lớp sơn bên dưới của công trình.
Xung quanh nhà được bố trí hệ thống cửa sổ và vách kính có kích thước lớn, ưu tiên sử dụng chất liệu nhôm kính xingfa để lấy sáng tự nhiên thuận lợi. Còn lại các cửa chính sử dụng chất liệu lim Nam Phi sang trọng. anh Thành khá ưng ý vê ngoại thất đẹp mắt.
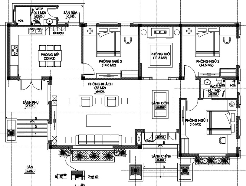
MẶT BẰNG CÔNG NĂNG BIỆT THỰ 1 TẦNG DIỆN TÍCH 13M X 17M

Khi đi từ sảnh chính và sẽ là khoảng không gian tiếp đón rộng rãi. Phía bên trái là phòng khách rộng 32m2. Được thiết kế độ mở tối đa cùng cửa sổ 1 cánh và vách kính dễ dàng quan sát giao lưu với không gian bên ngoài. Sâu vào trong có 1 phòng ngủ nho nhỏ kích thước 14,5m2. Một bếp ăn rộng 20m2 hoàn toàn được tách biệt với phòng khách. Từ khu vực bếp sẽ có lối ra sảnh phụ bên hông nhà và 1 lối đi ra sân ướt, cũng như khu vực vệ sinh chung, đảm bảo cho không gian bên trong luôn được sạch sẽ thoáng mát. Phía bên phải là 1 phòng thờ nho nhỏ rộng 11,5m2. Và cuối cùng là 2 phòng ngủ trong đó có 1 phòng ngủ master rộng 16m2.
Trên đây là mẫu biệt thự 1 tầng diện tích 13x17m của gia đình anh Thành tại Bắc Cạn. Hy vọng sẽ là gợi ý phù hợp cho các bạn khi đang muốn xây dựng ngôi nhà phong cách và kích thước tương tự. Mọi ý kiến đóng góp quý vị có thể để lại dưới phần bình luận, hoặc đang cần tư vấn về thiết kế thi công, quý vị hãy liên hệ với hotline của Nhà Đẹp 4.0 để chúng tôi có thể hỗ trợ trực tiếp. Chúc các bạn thành công!
